Veslefjellet 50
8 250 000 kr
201 m²
3 soverom
Solgt

Leirsund
Kommer for salg i januar: Familievennlig enebolig i naturskjønne omgivelser | Garasje | Asak skolekrets
Prisantydning
8 250 000 krOmkostninger
227 240 krTotalpris
8 477 240 kr
Pris
Bruksareal
229 m²BRA-I (internt bruksareal)
201 m²BRA-E (eksternt bruksareal)
28 m²TBA (terrasse-balkongareal)
54 m²
Areal
Byggeår
1990Soverom
3 soveromBad
2 badTomteareal
721 m² (eiet)Type
Enebolig - FrittliggendeEierform
EietFasiliteter
Garasje/P-plass og Balkong/TerrasseEnergimerke
Oransje E
Nøkkelinfo
Unngå doble boligrenter
Vi tilbyr gunstig forsikring.
Vurderer du utleie?
Få et tilbud fra Utleie KrogsveenHva koster lånet?
Sjekk estimert lånekostnadBeskrivelse
Kort om eiendommen
Velkommen til Veslefjellet 50! Her presenteres en innholdsrik og velholdt enebolig med en attraktiv beliggenhet i et rolig og barnevennlig område på Leirsund. Nabolaget byr på en landlig følelse med umiddelbar nærhet til skog og mark, samtidig som det er kort vei til Lillestrøm sentrum. Området er ideelt for familier, med gangavstand til både skole og barnehage.
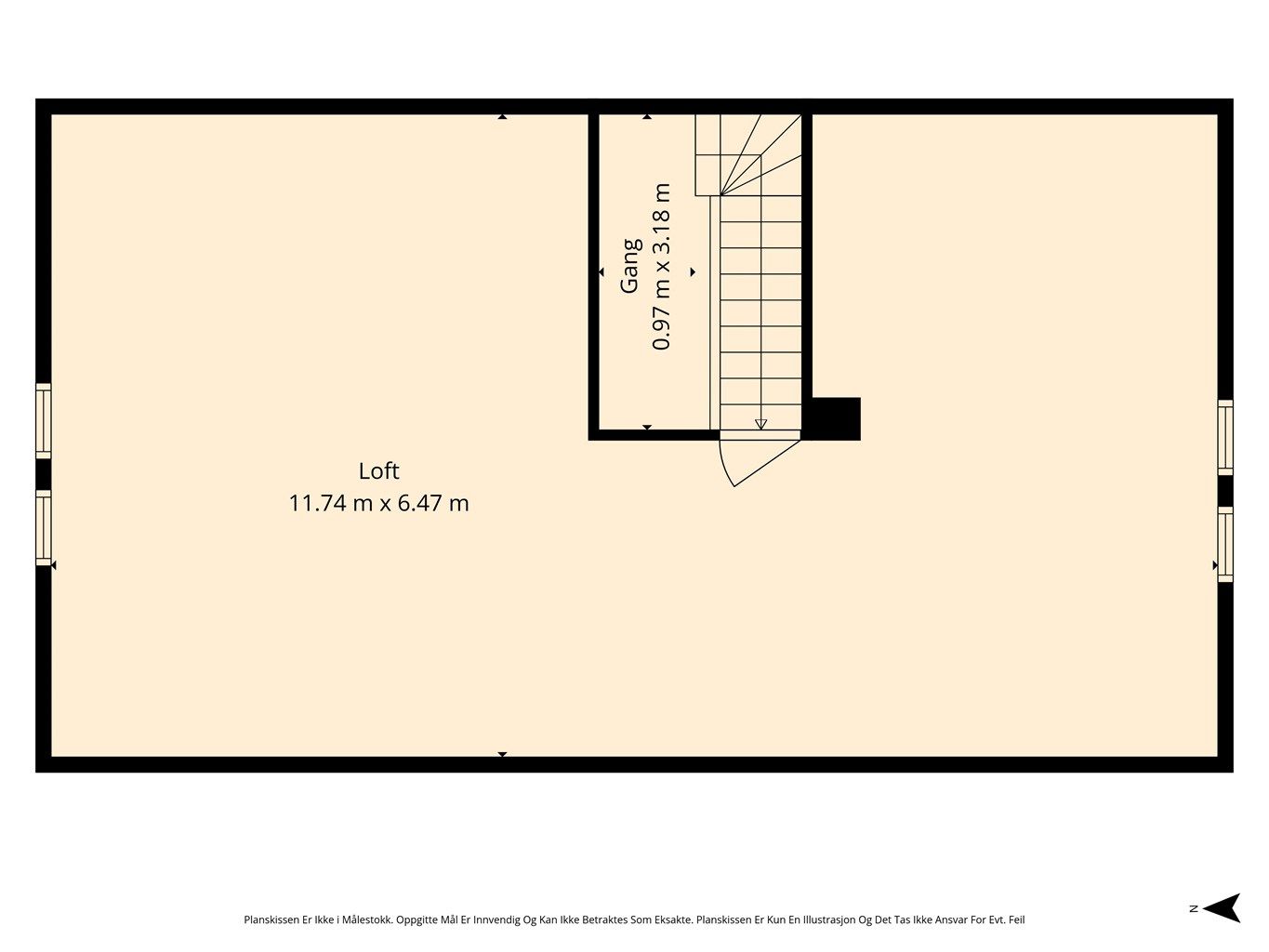
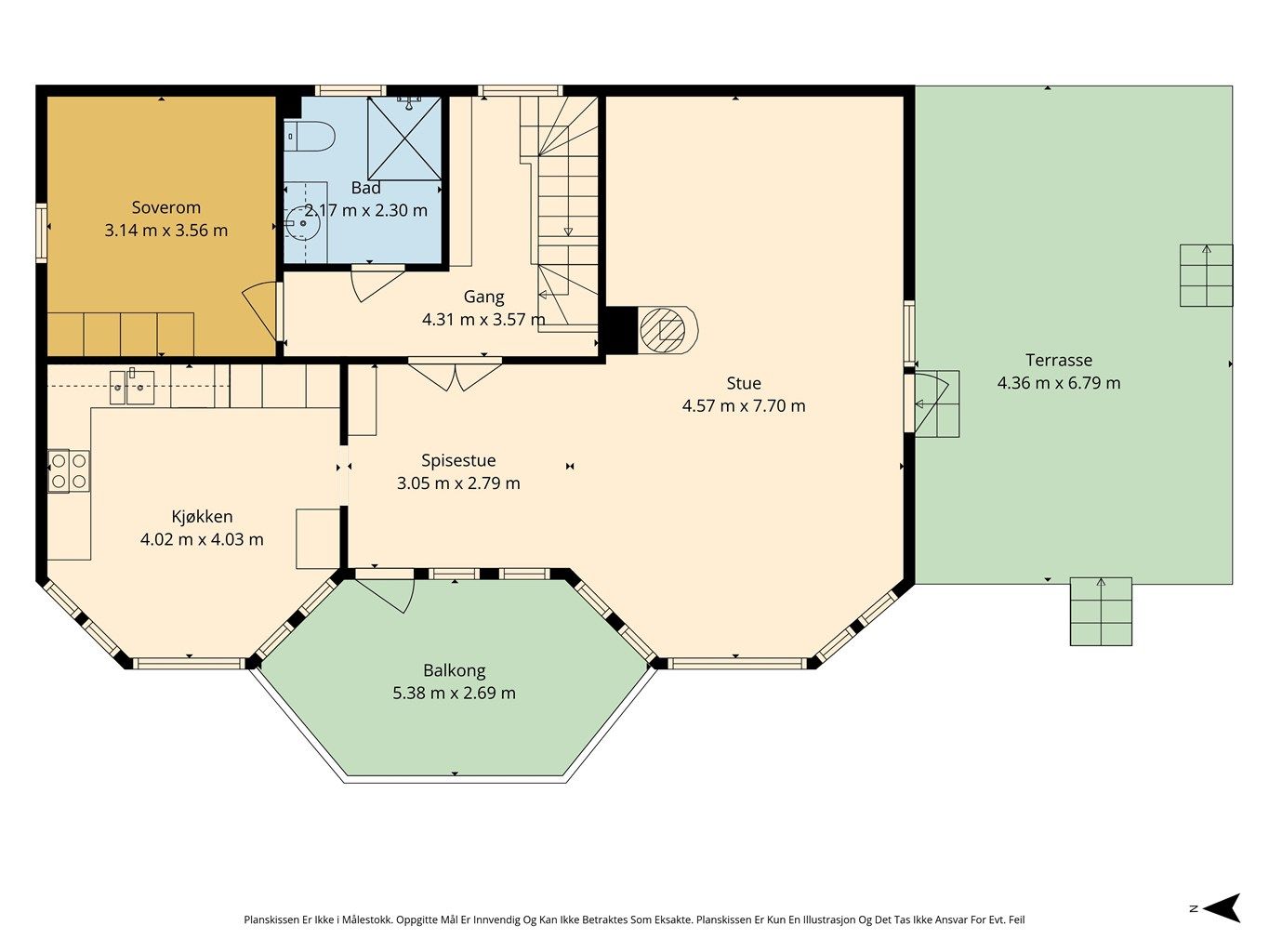
Boligen er innholdsrik over tre plan og byr på flere gode kvaliteter. Her får du blant annet et moderne kjøkken fra 2018 med integrerte hvitevarer, en romslig stue med peis og en nyere varmepumpe fra 2022. Eiendommen har flere flotte uteplasser, inkludert en stor platting på 30 m², en balkong på 11 m² og en herlig innglasset hagestue på 13 m². I tillegg er det garasje på 28 m².
Område
Legg til steder som er viktige for deg
Megler

Eskil R. Tyskeberget
Eiendomsmegler
På flyttefot? Tenk kjøp og salg samtidig.
Få din egen rådgiver gjennom hele kjøps- og salgsprosessen. Det starter med en verdivurdering.
Unngå doble boligrenter
Vi tilbyr gunstig forsikring.
Vurderer du utleie?
Få et tilbud fra Utleie KrogsveenHva koster lånet?
Sjekk estimert lånekostnadVil du varsles om lignende boliger?
Ved å lagre ditt boligsøk hos oss får du beskjed når vi har en bolig som ligner denne, før den legges ut på markedet!
