Teglvegen 17
5 900 000 kr
197 m²
3 soverom
Komplett salgsoppgave
Sandvika
Flott og velholdt enebolig med pent opparbeidet tomt, 3 soverom og dobbelgarasje. Attraktiv og barnevennlig beliggenhet.
Prisantydning
5 900 000 krOmkostninger
168 490 krTotalpris
6 068 490 kr
Pris
Bruksareal
242 m²BRA-I (internt bruksareal)
197 m²BRA-E (eksternt bruksareal)
45 m²TBA (terrasse-balkongareal)
37 m²
Areal
Byggeår
1972Soverom
3 soveromBad
1 badTomteareal
904 m² (eiet)Type
Enebolig - FrittliggendeEierform
EietFasiliteter
Garasje/P-plass og Balkong/Terrasse
Nøkkelinfo
Unngå doble boligrenter
Vi tilbyr gunstig forsikring.
Vurderer du utleie?
Få et tilbud fra Utleie KrogsveenHva koster lånet?
Sjekk estimert lånekostnadBeskrivelse
Kort om eiendommen
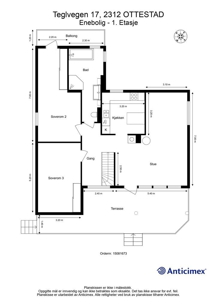
Teglvegen 17 er en velholdt og familievennlig enebolig i et attraktivt og veletablert boligområde, med god intern beliggenhet innerst i blindvei samt grensende mot friareal. Eiendommen fremstår meget pent opparbeidet med fin hage, belegningsstein, dobbelgarasje og inngjerdet tomt. Boligen går over to plan og inneholder i 1. etasje 2 soverom, romslig baderom, kjøkken i eget rom og stue med peisovn. Fra stue er det utgang til delvis overbygd terrasse med gode solforhold. Begge soverom er av god størrelse og med skyvedørsgarderobe, og utgang til balkong fra soverom 2. Kjelleretasje med boligens entré, soverom, toalettrom, kjellerstue, kombinert vaske/tekniskrom og 2 boder for gode oppbevaringsmuligheter.
Velkommen til en hyggelig visning!
Innhold og byggemåte
Innhold og byggemåte
Eiendommen
Teglvegen 17, 2312 OTTESTAD
Kommunenummer 3413, gårdsnummer 15, bruksnummer 57, ideell andel 1/1
Innhold
Totalt bruksareal BRA: 242 kvm
BRA-i:
Enebolig :
Kjeller: 95 kvm: Entré, wc, gang, kjellerstue, soverom, 2 boder og teknisk rom.
1. etasje 102 kvm: Gang, 2 soverom, bad, kjøkken og stue.
BRA-e:
Garasje:
1. etasje 35 kvm: Dobbel garasje.
Lekestue :
1. etasje 10 kvm: Lekestue.
Åpent areal:
Enebolig :
1. etasje 37 kvm: Terrasse og balkong.
Vedlagte plantegninger er ikke målbare. De oppgitte arealer er hentet fra rapport med befaringsdato 22.04.2026 utført av Anticimex v/Marius Hasselknipe Olsby. Arealene er beregnet og rom er definert etter dagens faktiske bruk, uavhengig av hva som er godkjent av bygningsmyndighetene.
Byggemåte
Selger har innhentet en tilstandsrapport av boligen/eiendommen. Av rapporten fremgår det at flere bygningsdeler har fått tilstandsgrad ikke undersøkt/ikke tilgjengelig for undersøkelse (TG IU), 2 (TG2) og/eller 3 (TG3). Rapporten beskriver også avvik på undersøkte bygningsdeler uten tilstandsgrad. Kjøper overtar ansvaret for de opplysninger som fremkommer av salgsdokumentasjonen, og kan ikke gjøre gjeldende som mangel noe som burde vært kjent eller som ikke kan anses å ha betydning for avtalen.
Bygningen er iht. tilstandsrapporten:
Bolig oppført i 1972. Grunnmur av lettklinkerblokker. Bygget er oppført med underetasje med støpt gulv mot grunnen. Yttervegger av trekonstruksjoner. Utvendige fasader er kledd med liggende og stående trekledning og murpuss på underetasje. Etasjeskillere av trekonstruksjoner. Saltak i trekonstruksjoner. Yttertak er belagt med takplater av metall. Entrédør med glassfelter. Døren har i tillegg elektronisk dørlås/kodelås. Vinduer med karmer av tre, fra forskjellige årstall. Balkong- og terrassedør med karmer av tre, fra forskjellige årstall. Boligen ventileres hovedsakelig med naturlig ventilasjon gjennom vinduer og ventiler.
Det gjøres spesielt oppmerksom på at følgende bygningsdeler har fått TG3 (Store eller alvorlige avvik):
Teknisk rom:
• Vanntett sjikt har en alder som erfaringsmessig tilsier at fremtidig funksjon er svært usikker.
• Gulvbelegget har synlige sprekker og utettheter. Det vurderes derfor at det vanntette sjiktet ikke lenger oppfyller sin tiltenkte funksjon.
• Slukets klemring er ikke montert.
Det gjøres spesielt oppmerksom på at følgende bygningsdeler har fått TG2 (Vesentlige avvik):
Bad:
• Gulvet i sluksonen er tilnærmet flatt.
• Fallforhold utenfor sluksonen vurderes ikke til å være tilstrekkelig for å lede eventuelt lekkasjevann til sluk, og det er ikke påvist at vanntett sjikt har tilstrekkelig oppkant ved dørterskel for å kompensere for dette.
• Vanntett sjikt har en alder som tilsier at fremtidig funksjon er usikker.
• Drenering fra innebygget toalettsisterne er ikke registrert.
• Det er registrert stedvis riss i porselenet til servanten.
Teknisk rom:
• Gulvbelegg har stedvis redusert vedheft til underlaget.
• Avløpsrør av støpejern har en alder som tilsier at fremtidig funksjon er usikker.
• Våtrommet har kun naturlig ventilasjon.
Teknisk anlegg:
• Boligens vannrør av kobber (og tilhørende komponenter) har en alder som tilsier at fremtidig funksjon er usikker.
• En fordelerstamme for rør-i-rør er plassert (luke i entré) rom uten sluk eller annen sikring mot fuktskader.
• Boligens avløpsrør av støpejern (og tilhørende komponenter) har en alder som tilsier at fremtidig funksjon er usikker.
• Enkelte radiatorer og tilhørende røropplegg har en alder som tilsier at fremtidig funksjon er usikker.
Øvrige rom:
• Synlige deler av gulvets overflatemateriale på soverom har stedvise åpninger/gliper i skjøter og overganger.
Kjeller:
• Det er registrert knirk i deler av gulvet.
Loft:
• Deler av kaldtloftet (kaldtloft på tilbygget del) lot seg ikke undersøke grunnet redusert tilkomstmulighet.
Yttervegger:
• Ytterkledningens materialer viser tydelige tegn til elde, med stedvise symptomer på begynnende råteskader på østvendt hjørne
• Det er ikke etablert spalte for lufting og drenering bak ytterkledningen.
Yttertak:
• Undertaket har en alder som tilsier at fremtidig funksjon er usikker (inkluderer taktro, innfestninger og lignende).
Drenering:
• Drenering har en alder som tilsier at fremtidig funksjon er usikker.
• Grunnmurens utvendige fuktsperre er ikke avsluttet med beslag/topplist.
Stikkledninger og tanker:
• Utvendige vannledninger har en alder som tilsier at fremtidig funksjon er usikker. Til informasjon: Ifølge huseier ble det gjort utvendige utskiftninger i forbindelse med tilbygg i 2007, men det er likevel
benyttet TG2 grunnet at synnlig inntaksrør i boligen er fra byggeår. Det er usikkert i hvilket omfang utvendig vannledning er skiftet.
Se supplerende tekst i tilstandsrapporten. Kjøper overtar ansvar og risiko for dette.
Tilstandsrapporten er inntatt i salgsoppgaven. Rapporten inneholder informasjon om avvikene og konsekvensen av disse. For avvik som er gitt TG3 har den bygningssakkyndige i tillegg gitt et anslag på hva det vil koste å utbedre disse avvikene. Ettersom kjøper regnes å være kjent med forhold som tydelig fremgår av tilstandsrapporten, oppfordres du til å sette deg grundig inn i rapporten i sin helhet.
Moderniseringer og påkostninger
Selger opplyser at følgende moderniseringer/påkostninger er utført.
2022:
- Skiftet vinduer i stue (ved terrassedør)
- Nytt terrassegulv
2021:
- Skiftet tak på garasje
2020:
- Skiftet vindu i kjellerstue
2018:
- Installert bergvarme
2014:
- Skiftet terrassedør ved stue, vindu i trapp og loftsvindu
- Nye garasjeporter
2011
- Skiftet trapp
- Ny parkett i stue, kjøkken, gang og kjellerstue
2007:
- Skiftet alle innerdører
- Nye vinduer i alle soverom og kjøkken
- Tilbygg ferdig
Standard
Kjøkken:
L-formet kjøkken i eget praktisk rom med plass til spisegruppe. Innredning er fra 1987 med oppgraderinger utført i ca. 2017. Det er profilerte fronter, benkeplate med laminert overflate og nedfelt kjøkkenvask. Gulvflater belagt med parkett, tapetserte veggflater, takplater i himling og laminert plate mellom kjøkkenbenk og overskap. Ventilator i overskap, integrert stekeovn og platetopp og frittstående oppvaskmaskin og kjøleskap. Det er kun de hvitevarene som er listet opp som følger med. Disse hvitevarene følger med: Oppvaskmaskin, kjøleskap, stekeovn, platetopp og tørketrommel slik det fremstår på visning.
Bad:
Romslig baderom fra 2007 som fremstår lyst og delikat med gode oppbevaringsmuligheter. Det er flislagt gulv med gulvvarme, flislagte vegger og panelbord i himling. Vegghengt servantinnredning, speilskap med overlys, vegghengt baderomsmøbel, dusjkabinett, badekar, vegghengt toalett og elektrisk håndkletørker.
Toalettrom:
Gulvflate belagt med fliser, plater på veggflater, panelbord i himling, vegghengt servantinnredning og gulvstående toalett.
Teknisk rom:
Kombinerer vaskerom/teknisk rom som er i kjelleretasjen. Det er gulvflate belagt med gulvbelegg, synlig grunnmur, takplater i himling og opplegg for vaskemaskin.
Øvrige rom 1. etasje:
Gulv belagt med parkett og laminat. Vegger av malte veggflater, malt panel på vegger, tapetserte veggflater og plater på veggflater. Tak med Takplater og panelbord i himling. Det er profilerte innerdører.
Øvrige rom kjelleretasje:
Gulvflater belagt med parkett, fliser, gulvbelegg og vegg-til-vegg teppe. Det er gulvvarme i entré, gang, stue og toalettrom. Vegger med plater, malt panel og malte flater. Takplater og panelbord i himling. Det er profilerte og glatte innerdører.
Løsøre og tilbehør
Vi viser til liste fra Norges Eiendomsmeglerforbund som gjelder fra 01.01.2020 angående løsøre og tilbehør.
Selger opplyser om at følgende løsøre og tilbehør ikke medfølger:
- Lampe i hjørnet ved terrassedør
- Lampe over spisestuebord
- Lampe i trappeoppgang
- 3 hyller på kjøkkenvegg
Oppvarming
Boligen varmes opp ved bruk av vannbårene radiatorer og vannbåren gulvvarme (tilkoblet varmesentral) og ildsted plassert i stue.
Dersom beboelsesrom ikke har vegg- eller fastmonterte varmekilder ved visning, følger dette heller ikke med.
Ferdigattest/brukstillatelse
Det foreligger ikke ferdigattest på eiendommen, men midlertidig brukstillatelse ble gitt 22.09.1972. Tillatelsen er gitt på følgende vilkår:
Bærestolpe under hjørne av tak over inngangsparti må monters. Dør til fyrrom må påmonteres dørpumpe eller tilsvarende.
Selger opplyser at det er montert branndør med dørpumpe til fyrrom og at boligen ble påbygd i 2007 hvor bærestole var plassert.
Det gjøres oppmerksom på at det ikke lenger utstedes ferdigattest på tiltak det er søkt om før 1998 jf. plan- og bygningsloven § 21-10. Kommunen vil ikke kreve ferdigattest for disse tiltakene og vil avvise eventuelle søknader. Bestemmelsen innebærer ikke at tiltak med manglende søknad blir lovlige, men at man ikke trenger å avslutte gamle byggesaker. Normalt sett kreves ferdigattest for alle søknadspliktige tiltak som gjøres etter plan- og bygningsloven.
Det er mottatt byggetegninger fra kommunen for bolig og garasje. Disse er i samsvar med dagens bruk. Tegningen er stemplet av Stange kommune, tiltakene er ikke avsluttet med ferdigattest.
Tinglyste heftelser og rettigheter
Det er tinglyst følgende servitutter på eiendommen.
Dagboknr. 102934, tinglyst 02.06.1971, type heftelse: Bestemmelse om bebyggelse, gjerde og veg. Kopi av servitutten kan fås ved henvendelse til megler.
Servituttene vil følge eiendommen. Kjøpers bank vil få prioritet etter ovennevnte heftelser og servitutter.
Eventuell adgang til utleie
Eiendommen har ikke separat utleieenhet. Det vil normalt være anledning til utleie av hele eiendommen eller enkeltrom, såfremt utleiearealet er bygningsmessig godkjent for varig opphold og har forsvarlige radonnivåer.
Diverse
I følge Elvia ble det elektriske anlegget sist kontrollert 20.02.2019. Foreligger det pålegg om utbedring av feil på det elektriske anlegget: Nei.
Beliggenhet og tomteforhold
Beliggenhet og tomteforhold
Beliggenhet
Beliggende i attraktive Sandvika i et veletablert og barnevennlig boligområde. Fra eiendommen er det kort vei til barnehage og skole, samt kun ca. 4 minutters kjøretid til nærmeste matbutikk på Vikasenteret. På Vikasenteret har man også apotek, blomsterbutikk, sportsbutikk og spisested. Ønsker man et større utvalg er det kort vei til Hamar sentrum med et meget godt utvalg av ulike butikker, spisesteder og kulturitlbud. Området byr på gode turmuligheter med Ottestadstien og et fantastisk kulturlandskap for flotte sykkelturer og langrennsløyper på vinteren. Eiendommen grenser mot friareale hvor det er opparbeidet lekeplass, samt kun 50 meter til innebandybane, ishockeybane og akebakke. Se ellers vedlagt nabolagsprofil for nærhet til diverse fasiliteter.
Adkomst
Se kart for adkomst.
Det vil bli skiltet med Krogsveen visningsskilt ved fellesvisninger.
Beskrivelse av tomt
Eiertomt på 904 kvm som er opparbeidet med blant annet belegningsstein, steinheller, diverse støttemurer, biloppstillingsplass, plenarealer og diverse beplantninger. Det er er frittstående lekestue frittstående garasje på tomten.
Deler av garasjen og gjerde ligger utenfor tomtegrensen.
Parkering
Parkering i dobbelgarasje.
Vei, vann og avløp
Eiendommen har adkomst via kommunal vei.
Eiendommen er tilknyttet kommunalt ledningsnett via private stikkledninger. Eier er selv ansvarlig for private stikkledninger til boligen.
Regulerings-og arealplaner
Eiendommen omfattes av Nordstadfeltet, eldre reguleringsplan, vedtatt 02.06.1972 med id 008, hvor eiendommen er regulert til bolig.
Eiendommen omfattes av Kommunedelplan for Ottestad, vedtatt 12.08.2011 med id 20001, hvor eiendommen er regulert til bolig.
Eiendommen omfattes av Kommuneplanenes arealdel 2023-2035, vedtatt 18.10.2023 med id 202301, hvor eiendommen er regulert til bebyggelse og anlegg. Delareal av eiendommen ligger innen for hensynsone H220, gul sone.
Utsnitt av plan med tilhørende bestemmelser kan fås ved henvendelse til megler.
Økonomi
Økonomi
Kommunale utgifter
Kommunale avgifter er kr. 13 678 for inneværende år. I dette inngår gebyr for vann, avløp, renovasjon og feiing/tilsyn. Det tas forbehold om at kommunen kan justere gebyrene i løpet av året.
Nåværende eier har et strømforbruk som tilsvarer ca. kr. 16 600 pr. år. / 12 500 kwh. pr. år. I selgers husstand har det bodd to mennesker.
Boligen har en årlig forsikringspremie på ca. kr. 7 440.
Det er frivillig velavgift på kr. 400 pr. år. Kr. 200 pr. år for pensjonister/trygde.
Boligen er tilknyttet fiber. Altibox er leverandør av kabel-tv og har avgift på kr. 1 499 pr. mnd. To stk. tv-tuner/dekoder kan medfølge hvis ønskelig.
Boligen er tilknyttet alarm. Abonnement medfølger ikke.
Utgiftene er basert på nåværende eiers forbruk og avtaler.
Selger har avtalt Norgespris på strøm på eiendommen til 31.12.2026, og denne er pt på kr 50 øre inkl mva. Nettleie, avgifter og påslag fra kraftleverandøren kommer i tillegg. Er det fjernvarme vil det også komme kostnader i tillegg. Denne avtalen vil følge eiendommen i den avtalte perioden.
Les mer om Norgespris her: https://www.regjeringen.no/no/aktuelt/legg-fram-lov-om-norgespris-pa-straum-og-fjernvarme/id3102642/
Formuesverdi
Formuesverdi for 2024 var kr. 919 390 ifølge selgers skattemelding/Skatteetaten. Beløpet forutsetter at eier bor fast i boligen (primærbolig).
Ved eventuell øvrig bruk av eiendommen (f.eks. fritidsbolig, pendlerbolig, utleieobjekt) var formuesverdien for 2024 kr. 3 677 599.
Fra 2026 har Stortinget vedtatt en oppdatert modell for beregning av formuesverdi for primærbolig, så avvik kan forekomme.
For mer informasjon se skatteetaten.no.
Eiendomsskatt
Eiendomsskatten utgjør kr. 6 949 pr. år.
Omkostninger
5 900 000,00 Prisantydning
Omkostninger
147 500,00 Dokumentavgift til staten (2,5% av kjøpesum)
19 900,00 Gjensidige Boligkjøperpakke* (valgfritt)
545,00 Tinglysing panterettsdokument
545,00 Tinglysing skjøte
--------------------------------------------------------
148 590,00 Omkostninger totalt (uten Gjensidige Boligkjøperpakke)
168 490,00 Omkostninger totalt (med Gjensidige Boligkjøperpakke)
--------------------------------------------------------
6 048 590,00 Totalpris inkl. omkostninger
6 068 490,00 Totalpris inkl. omkostninger (med Gjensidige Boligkjøperpakke)
--------------------------------------------------------
Totalpris inkl. omkostninger forutsetter kjøp til prisantydning.
Det tas forbehold om endringer i avgifter og gebyrer.
Betalingsbetingelser
Kjøpesum inkludert omkostninger, samt pantedokument tilknyttet eventuelt lån, skal være disponibelt hos megler 2 virkedager før overtagelsen.
Annen viktig informasjon
Annen viktig informasjon
Eier
Arve Henry Vold
Overtakelse
Etter nærmere avtale. Vennligst oppgi ønsket overtagelse i budskjema.
Boligselgerforsikring
Selger har i forbindelse med salget tegnet boligselgerforsikring levert av Gjensidige.
Boligselgerforsikringen dekker selgers ansvar etter avhendingsloven begrenset oppad til kr 14 millioner. Dersom kjøper oppdager forhold ved eiendommen som hen mener utgjør en mangel ved eiendommen, vil Gjensidige behandle reklamasjonen på vegne av selger. Forsikringsvilkår kan fås ved henvendelse til megler.
Vedlagt salgsoppgaven følger selgers egenerklæringsskjema og tilstandsrapport. Interessenter må sette seg inn i dokumentene før bud inngis.
Boligkjøperforsikring
Innen kontraktsmøtet må kjøper ta stilling til om det ønskes å bestille Boligkjøperpakken gjennom Gjensidige. I denne gunstige pakken er boligen ferdig forsikret og inkluderer rettshjelpsforsikring, også kalt Boligkjøperforsikring. Rettshjelpsforsikring gir trygghet og tilgang på profesjonell juridisk hjelp dersom det oppdages uventede feil eller mangler det første året etter overtagelse. Forsikringsselskapet behandler i så fall ethvert mangelskrav kjøper måtte ha overfor selger.
Boligkjøperpakken inkluderer bygningsforsikring for hus og hytte, innboforsikring, flytteforsikring og dobbel rentedekning - i situasjoner hvor kjøper ikke får solgt nåværende primærbolig.
Kjøper mottar ingen særskilt faktura for Boligkjøperpakken da kostnaden det første året legges til kjøpesummen for boligen. Det gjøres oppmerksom på Krogsveen mottar et honorar for denne formidlingen.
Produktark for Boligkjøperpakken ligger vedlagt i salgsoppgaven.
Dersom ikke boligkjøperpakke ønskes kan kun rettshjelpsforsikring, også kalt boligkjøperforsikring, tegnes særskilt via megler. Rettshjelpsforsikringen varer i 5 år fra overtagelse og leveres gjennom Gjensidige. Ta kontakt med megler for ytterligere informasjon.
Selskap og privatpersoner som driver med kjøp/salg/utvikling som ledd i egen næringsvirksomhet kan ikke tegne boligkjøperpakke eller rettshjelpsforsikring.
Budgivning
Forbrukerinformasjon om budgivning er vedlagt denne salgsoppgaven og er også på vår hjemmeside Krogsveen.no. Alle bud og budforhøyelser må inngis skriftlig. I tillegg må legitimasjon være fremlagt sammen med signatur fra budgiver.
Vi oppfordrer til å gi bud elektronisk via GI BUD-knappen på eiendommens hjemmeside på Krogsveen.no. Da vil samtlige vilkår bli oppfylt.
Eventuelle forhøyelser eller endringer av budet kan bekreftes pr SMS eller på e-post. Vi oppfordrer alltid til å kontakte megler pr. telefon i tillegg da forsinkelser i SMS og e-post kan forekomme.
For at budene skal kunne bli behandlet og videreformidlet skriftlig til alle involverte parter, må alle bud ha en tilstrekkelig lang akseptfrist, jf. eiendomsmeglingsforskriften § 6-3.
Selger må også skriftlig akseptere budet før aksept kan formidles til budgiver. Akseptfrist bør derfor være på minimum 30 minutter, og budforhøyelser må derfor skje i god tid før fristens utløp.
Bud i forbrukerforhold kan uansett ikke settes med kortere frist enn kl. 12.00 første virkedag etter siste annonserte visning. I tillegg kan ikke budet ha forbehold om at det skal holdes hemmelig ovenfor øvrige interessenter. Megler har iht lov om eiendomsmegling ikke anledning til å videreformidle disse budene, og de vil dermed heller ikke bli journalført.
Etter at eiendommen er solgt vil kjøper og selger få tilsendt budjournal. Øvrige budgivere kan få utlevert kopi av budjournalen i anonymisert form.
Hvitvaskingsreglene
I henhold til lov om hvitvasking og terrorfinansiering har megler plikt til å gjennomføre kontrolltiltak overfor kunder, herunder fullmektiger. Dette innebærer bl.a. å bekrefte kunders og reelle rettighetshaveres identitet på bakgrunn av fremvist gyldig legitimasjon eller på annen godkjent måte, samt å innhente opplysninger om kundeforholdets formål og tilsiktede art.
Dersom slike kundetiltak ikke kan gjennomføres, kan megler ikke etablere kundeforholdet eller utføre transaksjonen.
Hvis kjøper ikke bidrar til gjennomføring av kundekontrollen og dette fører til at transaksjonen blir forsinket eller ikke kan gjennomføres, vil dette ansees som mislighold av avtalen og gi selger rettigheter etter avhendingslova kapittel 5. I tilfeller der selger ikke bidrar til gjennomføring av løpende kundekontroll underveis i oppdraget, er det selger som misligholder sine forpliktelser etter avtalen og gi kjøper rettigheter etter avhendingslovens kapittel 4. Partene er selv ansvarlige for eventuelle kostnader og ansvar dette kan medføre. Eiendomsmegleren eller eiendomsmeglingsforetaket kan ikke holdes ansvarlig for de konsekvenser dette vil kunne få for partene eller andre som har interesser i eiendomshandelen.
Kjøper oppfordres til å innbetale kjøpesummen som ikke kommer fra låneinstitusjon i én samlet innbetaling fra egen konto i norsk bank. Megler har plikt til å melde fra til Økokrim om eiendomshandler som fremstår som mistenkelige. Melding sendes Økokrim uten at partene varsles.
Personopplysningsloven
I henhold til personopplysningsloven gjør vi oppmerksom på at interessenter kan bli registrert for videre oppfølging.
Lovanvendelse
Generelle bestemmelser
Salgsoppgaven er basert på de opplysningene selger har gitt til megler, den bygningssakyndiges tilstandsrapport, samt opplysninger innhentet fra kommunen, Kartverket og andre tilgjengelige kilder. Det er viktig at kjøper setter seg grundig inn i alle salgsdokumentene, herunder salgsoppgave, tilstandsrapport og selgers egenerklæring. Kjøper anses kjent med forhold som er tydelig beskrevet i salgsdokumentene, og slike forhold kan ikke påberopes som mangler. Dette gjelder uavhengig av om kjøper har lest dokumentene. Alle interessenter oppfordres til å undersøke eiendommen nøye, gjerne sammen med fagkyndig før bud inngis. Kjøper som velger å kjøpe usett kan ikke gjøre gjeldende som mangel noe han burde blitt kjent med ved undersøkelsen.
Dersom det er behov for avklaringer, anbefaler vi at interessenter rådfører seg med eiendomsmegler eller egne rådgivere før det legges inn bud.
En bolig som har blitt brukt i en viss tid, har vanligvis blitt utsatt for slitasje og skader kan ha oppstått. Slik bruksslitasje må kjøper regne med, og det kan avdekkes enkelte forhold etter overtakelse som nødvendiggjør utbedringer. Normal slitasje og skader som nødvendiggjør utbedring, er innenfor hva kjøper må forvente og vil ikke utgjøre en mangel.
Kjøper og selgers rettigheter og plikter reguleres av avtalen mellom partene, samt informasjonen som har vært tilgjengelig for kjøperen i forbindelse med handelen. Avtalen utfylles av avhendingsloven, og det gjelder ulike avtalevilkår avhengig av om kjøper er forbrukerkjøper eller ikke. Dette er nærmere beskrevet nedenfor.
På grunn av ulike avtalevilkår kan selger vurdere bud fra en som ikke er forbruker, ulikt fra en forbrukers bud. Dersom kjøper ikke er forbruker, er selger sitt mulige mangelsansvar begrenset fordi eiendommen selges "som den er". Selger kan ikke ta «som den er»- forbehold overfor en forbrukerkjøper. Selv et lavere bud fra en som ikke er forbruker kan foretrekkes fordi begrensningen i mulig mangelsansvar kan ha egenverdi for selger. Selger står fritt til å forkaste eller akseptere ethvert bud, og er for eksempel ikke forpliktet til å akseptere høyeste bud.
Budgiver skal i budskjema avgi egenerklæring om budgiver er forbruker eller næringsdrivende/ person som hovedsakelig handler som ledd i næringsvirksomhet. Budgivere får informasjon dersom andre bud er inngitt av en som ikke er forbruker.
Forbrukerkjøp - definisjon
Med forbrukerkjøp menes kjøp av eiendom når kjøperen er en fysisk person som ikke hovedsakelig handler som ledd i næringsvirksomhet.
Forbruker – avtalevilkår
Eiendommen har en mangel dersom den ikke er i samsvar med kravene som følger av avtalen, eller det foreligger brudd på bestemmelsene i avhendingsloven §§ 3-2 til 3-8. Hvis eiendommen ikke er i samsvar med det kjøperen må kunne forvente ut ifra alder, type og synlig tilstand, kan det være grunnlag for mangelskrav. Det samme gjelder hvis det er holdt tilbake eller gitt uriktige opplysninger om eiendommen. Dette gjelder likevel bare dersom man kan gå ut ifra at det virket inn på avtalen at opplysningen ikke ble gitt eller at mangelskravet ikke blir rettet i tide på en tydelig måte.
Boligen kan ha en mangel etter avhendingsloven § 3-3 andre ledd, dersom det er avvik mellom opplyst og faktisk innvendig areal, forutsatt at avviket er på 2% eller mer og minimum 1 kvm.
Ved beregning av et eventuelt prisavslag eller erstatning må kjøper selv dekke tap/kostnader opptil et beløp på kr 10 000 (egenandel).
Ikke-forbruker (næringsdrivende) – definisjon
Hvis kjøper er en juridisk person, eller en fysisk person som hovedsakelig handler som ledd i næringsvirksomhet, vil kjøpet ikke anses som et forbrukerkjøp.
Ikke-forbruker – avtalevilkår
Eiendommen har en mangel dersom den ikke er i samsvar med kravene som følger av avtalen.
Eiendommen selges «som den er», og selgers ansvar utover det konkret avtalte er da begrenset etter avhendingsloven § 3-9, første ledd andre setning.
Avhendingsloven § 3-3 andre ledd fravikes, og hvorvidt boligens arealsvikt utgjør en mangel vurderes etter avhendingsloven § 3-8.
Informasjon om kjøpers undersøkelsesplikt, herunder oppfordringen om å undersøke eiendommen nøye, gjelder også for kjøpere som ikke anses som forbrukere.
Det forutsettes at hjemmel overføres til kjøper. Hvis kjøper ikke ønsker hjemmelsoverføring av eiendommen, må det tas forbehold om dette i budet.
Meglers vederlag
Meglers vederlag betales av selger og er avtalt til:
Vederlag: 0,80 % av salgssummen.
Vederlag:
Kontroll av hjemmel og heftelser kr 2 900,00
Markedsføringspakke kr 29 900,00
Oppgjør kr 7 500,00
Tilrettelegging kr 17 000,00
Visninger pr stk kr 4 000,00
Utlegg:
Innhenting av offentlig opplysninger Stange kommune, inkl tegn. kr 6 085,00
Tinglysing sikring kr 545,00
Andre utgifter:
AX tilstandsrapport enebolig kr 20 625,00
Boligselgerforsikring Gjensidige Eiet - regnes av prisantydning kr 34 260,00
Foto - 30 bilder - drone kr 6 363,00
Interiørveiledning kr 1 700,00
Vi er opptatt av verdiskapning, og har knyttet til oss samarbeidspartnere som skal sikre våre kunder de beste produkter og tjenester;
• I forbindelse med forberedelse av salget, innhenter vi informasjon om eiendommen hovedsakelig fra vår samarbeidspartner Ambita.
• Gjensidige leverer boligselgerforsikring og tilbyr bygningsforsikring
• Boligkjøperforsikring leveres av Hiscox og med Sedgwick som skadebehandler, og er formidlet gjennom Gjensidige.
• BN bank tilbyr finansieringsløsninger
• Vår avdeling Krogsveen Pluss tilbyr flyttetjenester som utvask, visningsvask, lager, tømming og transport av flyttelass, i tillegg til å formidle kontakt med Flip for overflateoppussing.
• I forbindelse med overtagelse av eiendommen tilbyr Overo avtale om strøm, alarm og bredbånd.
• Krogsveen er, sammen med øvrige bransjeaktører, medeier i den digitale annonseringsplattformen Hjem som eies av Bomega AS.
Opplysninger om oppdraget
Oppdragsnummer 65-0321/25
Eiendomsmegler Krogsveen AS, avd. Hamar
Strandgata 31, 2308, HAMAR
950 007 613
Oppdragets KR-kode KR65.25321
Dato
Sist oppdatert: 30. april 2026 kl. 14:00
Dokumenter
Dokumenter
PDF – 920 KB
PDF – 166 KB
PDF – 696 KB
PDF – 715 KB
PDF – 312 KB
PDF – 29 KB
PDF – 127 KB
PDF – 392 KB
Område
Legg til steder som er viktige for deg
Visning
For å delta på visning, ber vi om at du melder deg på. Da sikrer vi at du får nødvendig informasjon og at det er satt av tilstrekkelig med tid. Husk å lese salgsoppgaven før visningen, så du stiller forberedt.
Ønsker du kun å bli holdt orientert, kan du fra eiendommens hjemmeside få varsel om solgtpris, eller kontakte megler.
Lurer du på noe?
Unngå doble boligrenter
Vi tilbyr gunstig forsikring.
Vurderer du utleie?
Få et tilbud fra Utleie KrogsveenHva koster lånet?
Sjekk estimert lånekostnadVil du varsles om lignende boliger?
Ved å lagre ditt boligsøk hos oss får du beskjed når vi har en bolig som ligner denne, før den legges ut på markedet!




