Sandekra 31
6 850 000 kr
78 m²
3 soverom
Solgt

Presenteres av
Pojan EskandariBillingstad
VISNING AVLYST! Nydelig, påkostet 4-roms leilighet i 3.etg fra 2023. Solrik balkong på 8 kvm. Vannbåren gulvvarme. Lave felleskostnader.
Prisantydning
6 850 000 krOmkostninger
182 290 krTotalpris
7 032 290 kr
Pris
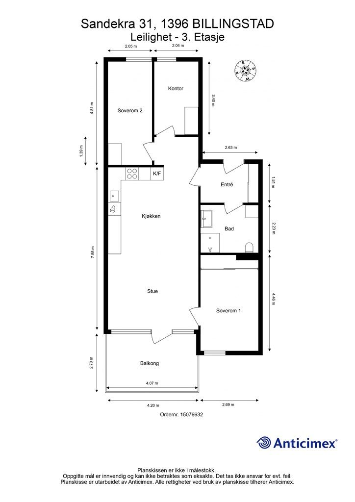
Bruksareal
83 m²BRA-I (internt bruksareal)
78 m²BRA-E (eksternt bruksareal)
5 m²TBA (terrasse-balkongareal)
8 m²
Areal
Etasje
3Byggeår
2023Soverom
3 soveromBad
1 badType
EierleilighetEierform
EierseksjonFasiliteter
Heis og Balkong/TerrasseFellesutgifter
3 364 krEnergimerke
Grønn A
Nøkkelinfo
Unngå doble boligrenter
Vi tilbyr gunstig forsikring.
Vurderer du utleie?
Få et tilbud fra Utleie KrogsveenHva koster lånet?
Sjekk estimert lånekostnadBeskrivelse
Kort om eiendommen
Velkommen til Sandekra 31, presentert av Pojan Eskandari i Krogsveen.
Her får du en strøken 4-roms leilighet fra 2023 med høy standard, vannbåren gulvvarme og solrik balkong med både morgen- og kveldssol. Leiligheten har blitt påkostet med et nytt flott kjøkken fra Drømmekjøkkenet og nye overflater. Her har du lave felleskostnader og utbyggergaranti til 2028. Kort vei til tog, buss og dagligvarebutikk – et hjem som kombinerer komfort, kvalitet og perfekt beliggenhet!
Kort fortalt:
- 3 soverom
- Vannbåren gulvvarme
- Morgensol og kveldssol på balkongen
- Nytt kjøkken fra Drømmekjøkkenet
- Nye overflater og innredning
- Mulighet for å kjøpe/leie p-plass
- Høy standard
- Utbyggergaranti til 2028
- Kort vei til buss og tog
- Kun TG 1
- Heis
Område
Legg til steder som er viktige for deg
På flyttefot? Tenk kjøp og salg samtidig.
Få din egen rådgiver gjennom hele kjøps- og salgsprosessen. Det starter med en verdivurdering.
Unngå doble boligrenter
Vi tilbyr gunstig forsikring.
Vurderer du utleie?
Få et tilbud fra Utleie KrogsveenHva koster lånet?
Sjekk estimert lånekostnadVil du varsles om lignende boliger?
Ved å lagre ditt boligsøk hos oss får du beskjed når vi har en bolig som ligner denne, før den legges ut på markedet!
På flyttefot? Slik gjør vi det enklere for deg
Skreddersydd flyttepakke
Vi fikser håndverkere, vask, pakking, lagring og transport, og legger ut for utgiftene underveis.
Hjelp med både kjøp og salg
Hos oss har du din egen rådgiver gjennom hele kjøps- og salgsprosessen.
Hjelp til finansiering
Vårt samarbeid med BN Bank sikrer deg rask og løsningsorientert hjelp, til konkurransedyktige betingelser.

