Badstuveien 28
3 890 000 kr
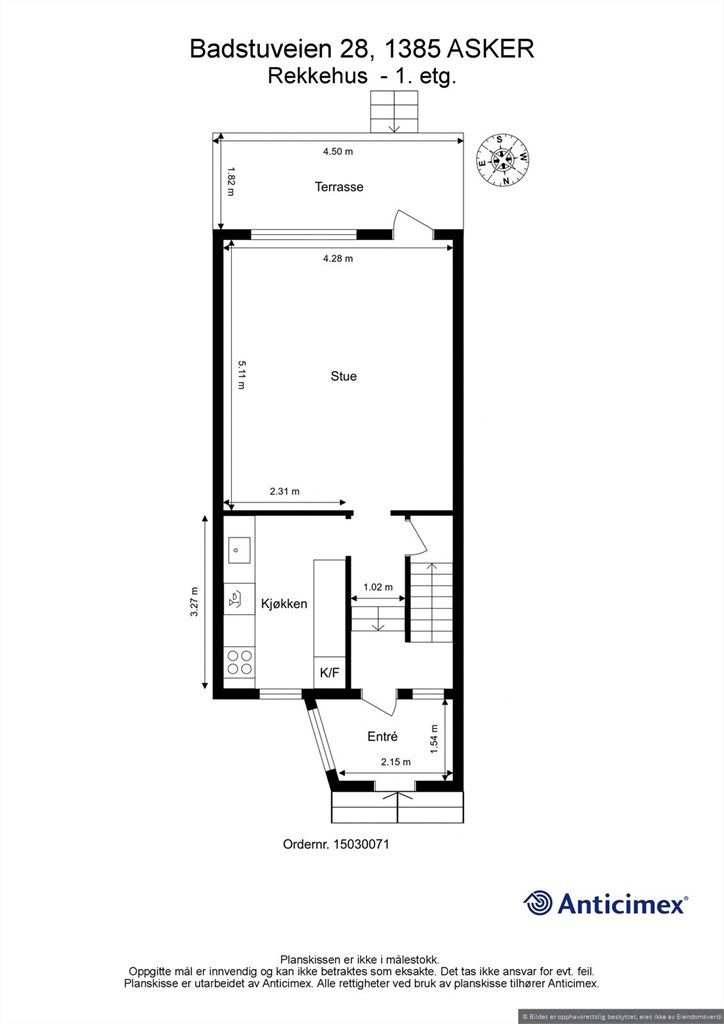
88 m²
3 soverom
Solgt

Presenteres av
Elias KarlsenAttraktivt og hyggelig rekkehus med nydelig uteplass | Solrikt | Nyere bad og kjøkken | Barnevennlig & rolig | Markanært
Prisantydning
3 890 000 krAndel fellesgjeld
195 529 krOmkostninger
19 252 krTotalpris
4 104 781 kr
Pris
Bruksareal
97 m²BRA-I (internt bruksareal)
88 m²BRA-E (eksternt bruksareal)
9 m²TBA (terrasse-balkongareal)
8 m²
Areal
Etasje
3Byggeår
1964Soverom
3 soveromBad
1 badType
RekkehusEierform
AndelFasiliteter
Balkong/TerrasseFellesutgifter
6 203 krEnergimerke
Grønn G
Nøkkelinfo
Unngå doble boligrenter
Vi tilbyr gunstig forsikring.
Vurderer du utleie?
Få et tilbud fra Utleie KrogsveenHva koster lånet?
Sjekk estimert lånekostnadBeskrivelse
Kort om eiendommen
Velkommen til Badstuveien 28 - En innholdsrik familiebolig i et barnevennlig område på Dikemark i Asker, i landlige og naturskjønne omgivelser. Her bor dere med kort vei til skoler, barnehager, dagligvarebutikk og offentlig kommunikasjon, samt lekeplasser og idylliske turområder i nærområdet.
Høydepunkter:
Meget attraktivt rekkehus over 3 plan
Oppgradert i nyere tid med kjøkken i 2022 og bad i 2017
God planløsning med alle soverom og bad på samme plan
Nydelig sydvendt terrasse
Direkte utgang til felleshage fra terrassen
Felles varmtvann og oppvarming
Meget barnevennlig og rolig område
Umiddelbar nærhet til marka
Område
Legg til steder som er viktige for deg
På flyttefot? Tenk kjøp og salg samtidig.
Få din egen rådgiver gjennom hele kjøps- og salgsprosessen. Det starter med en verdivurdering.
Unngå doble boligrenter
Vi tilbyr gunstig forsikring.
Vurderer du utleie?
Få et tilbud fra Utleie KrogsveenHva koster lånet?
Sjekk estimert lånekostnadVil du varsles om lignende boliger?
Ved å lagre ditt boligsøk hos oss får du beskjed når vi har en bolig som ligner denne, før den legges ut på markedet!
På flyttefot? Slik gjør vi det enklere for deg
Skreddersydd flyttepakke
Vi fikser håndverkere, vask, pakking, lagring og transport, og legger ut for utgiftene underveis.
Hjelp med både kjøp og salg
Hos oss har du din egen rådgiver gjennom hele kjøps- og salgsprosessen.
Hjelp til finansiering
Vårt samarbeid med BN Bank sikrer deg rask og løsningsorientert hjelp, til konkurransedyktige betingelser.

