Dvergsnessvingen 64
9 190 000 kr
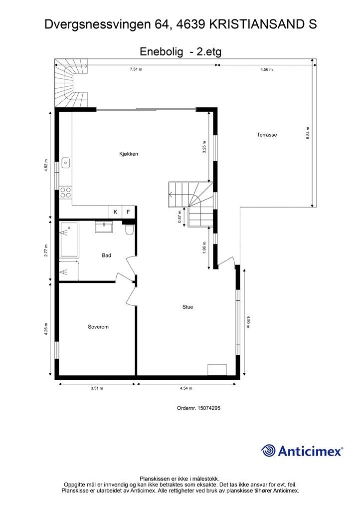
226 m²
4 soverom
Solgt

Dvergsnes
Lekker og innholdsrik enebolig fra 2020 - mulighet for hybel. Gode solforhold. 130 kvm takterrasse. Dobbel garasje.
Prisantydning
9 190 000 krOmkostninger
250 740 krTotalpris
9 440 740 kr
Pris
Bruksareal
228 m²BRA-I (internt bruksareal)
226 m²BRA-E (eksternt bruksareal)
2 m²TBA (terrasse-balkongareal)
212 m²
Areal
Etasje
2Byggeår
2020Soverom
4 soveromBad
2 badTomteareal
371 m² (eiet)Type
Enebolig - FrittliggendeEierform
EietFasiliteter
Garasje/P-plass og Balkong/TerrasseÅrlig velavgift
500 kr
Nøkkelinfo
Unngå doble boligrenter
Vi tilbyr gunstig forsikring.
Vurderer du utleie?
Få et tilbud fra Utleie KrogsveenHva koster lånet?
Sjekk estimert lånekostnadBeskrivelse
Kort om eiendommen
Romslig og moderne enebolig på attraktive Dvergsnes, perfekt for barnefamilier! Her får du en innholdsrik bolig med svært solrik beliggenhet i et trygt og etablert nabolag.
Med enkle grep kan du etablere en egen hybel – ideelt for utleie eller generasjonsbolig.
Nærområdet byr på barnehager, skoler, dagligvare og flotte badeplasser kun noen hundre meter unna. Sørlandsidyllen kompletteres med gode turmuligheter langs kysten og kort kjøretur til Rona senter, Sørlandssenteret og Kristiansand sentrum. Tomten er pent opparbeidet med stor gressplen, dobbel garasje og flere uteplasser.
Her kan du nyte solen fra morgen til kveld – enten på terrassen i 2. etasje eller på takterrassen på hele 130 kvm.
En bolig med høy standard, flotte detaljer og alt du trenger for å flytte rett inn!
Område
Legg til steder som er viktige for deg
På flyttefot? Tenk kjøp og salg samtidig.
Få din egen rådgiver gjennom hele kjøps- og salgsprosessen. Det starter med en verdivurdering.
Unngå doble boligrenter
Vi tilbyr gunstig forsikring.
Vurderer du utleie?
Få et tilbud fra Utleie KrogsveenHva koster lånet?
Sjekk estimert lånekostnadVil du varsles om lignende boliger?
Ved å lagre ditt boligsøk hos oss får du beskjed når vi har en bolig som ligner denne, før den legges ut på markedet!

