Svelvikveien 436
1 090 000 kr
26 m²
1 soverom
Komplett salgsoppgave

Ved Drammensfjorden
Pen sommerhytte med en usjenert beliggenhet øverst på feltet. Suveren fjordutsikt. Omkranset av naturskjønne omgivelser.
Prisantydning
1 090 000 krOmkostninger
48 240 krTotalpris
1 138 240 kr
Pris
Bruksareal
47 m²BRA-I (internt bruksareal)
26 m²BRA-E (eksternt bruksareal)
21 m²TBA (terrasse-balkongareal)
64 m²
Areal
Etasje
1Byggeår
1935Soverom
1 soveromBad
1 badTomteareal
547 m² (eiet)Type
Fritidseiendom ved sjøenEierform
EietFasiliteter
Balkong/TerrasseEnergimerke
Rød G
Nøkkelinfo
Vurderer du utleie?
Få et tilbud fra Utleie KrogsveenHva koster lånet?
Sjekk estimert lånekostnadBeskrivelse
Kort om eiendommen
Innhold og byggemåte
Innhold og byggemåte
Eiendommen
Svelvikveien 436, 3037 DRAMMEN
Kommunenummer 3301, gårdsnummer 36, bruksnummer 121
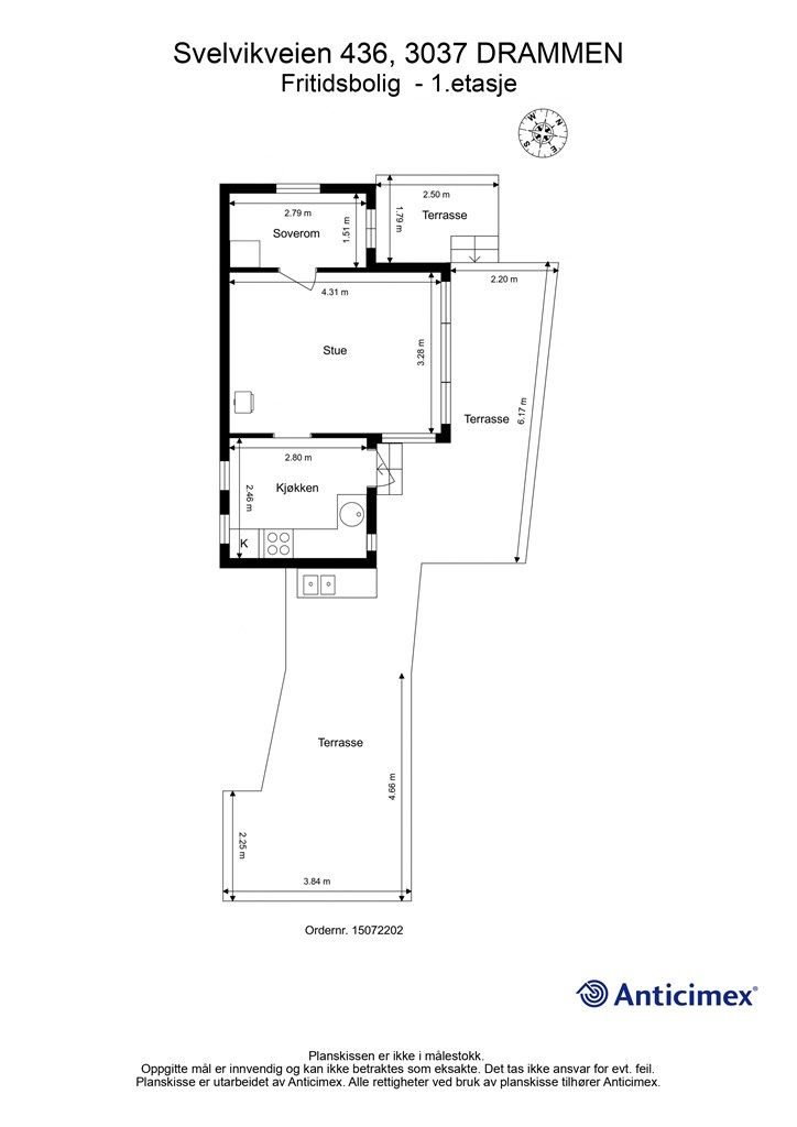
Innhold
BRA-i (internt bruksareal)
1. etasje:
26 kvm: Stue, kjøkken og soverom.
BRA-e (eksternt bruksareal)
Anneks (ikke byggemeldt):
12 kvm: Bad og soverom.
Utebod:
5 kvm: Bod.
Uthus:
4 kvm: Snekkerbod.
TBA (terrasse- og balkongareal)
1. etasje:
64 kvm: Terrasse.
De oppgitte arealer er hentet fra rapport utført av Kjetil Sukkehagen-Fevang. Arealene er beregnet og rom er definert etter dagens faktiske bruk, uavhengig av hva som er godkjent av bygningsmyndighetene.
Byggemåte
Hytta er iht. tilstandsrapport, oppført på grunnmur av betong, naturstein og teglstein. Yttervegger av trekonstruksjoner. Fasaden er kledd med stående trekledning. Utvendig malt i ca. 2023. Etasjeskillere av trekonstruksjoner. Saltak i trekonstruksjoner. Yttertak er utvendig tekket med metallplater (ca. 2014). Boligen har entrédør med glassfelt. Vinduer med karmer av tre, og ett-lags glass (fra ukjent årstall). Vinduer med karmer av tre, og to-lags glass (fra 1992 og 1995).
Annekset er iht. tilstandsrapport oppført i trekonstruksjoner. Fasaden er kledd med liggende trekledning. Saltak i trekonstruksjoner (besiktiget fra bakkenivå) fra ca. 2014. Yttertak er utvendig tekket med metallplater.
Frittstående utebod er iht. tilstandsrapport oppført i trekonstruksjoner. Fasaden er kledd med liggende trekledning. Saltak i trekonstruksjoner (besiktiget fra bakkenivå). Yttertak er utvendig tekket med metallplater.
Frittstående uthus er iht. tilstandsrapport oppført i trekonstruksjoner. Fasaden er kledd med liggende trekledning. Saltak i trekonstruksjoner (besiktiget fra bakkenivå). Yttertak er utvendig tekket med metallplater.
Les forøvrig mer om byggemåte og den tekniske tilstanden til bygningene i rapporten.
Tilstandsrapporten og selgers egenerklæring er vedlagt salgsoppgaven. Interessenter må sette seg inn i dokumentene før bud inngis.
Standard
Fra hovedveien (Svelvikveien) er det gangsti opp til en utvendig trapp, som føres opp til hytta. Romslig og sammenhengende nordvendte terrasser på ca. 64 kvm, mellom bygningene. Det er lagt inn sommervann inntil hytteveggen, i tilknytning til dette er det en gulvstående benk med oppvaskkum. Det er tilgang til en frittstående utebod på ca. 5 kvm og et frittstående uthus på ca. 4 kvm. Eiendommen har sol fra soloppgang til ca. kl. 20.00 (midtsommerstid) iflg. selger.
Hytte
Stue: Stue med sofaområde og spiseplass. Godt med vindusflater som gir suveren fjordutsikt. Frittstående vedovn i hjørne (det foreligger avvik fra feiervesenet), med flislagt gulv og murvegger. Gulv av heltre, malt panel på vegger og malt panel i himling. Tilgang til uinnredet kaldtloft via luke.
Kjøkken: Kjøkkeninnredning med over- og underskap i hvit samt glatt utførelse. Nedfelt oppvaskkum (uten blandebatteri) i benkeplate av tre. Frittstående vitrineskap i hvit og profilert utførelse. Videre er kjøkkenet utstyrt med gasskomfyr og frittstående gasskjøleskap. Vegg-til-vegg teppe over gulv av heltre, malt panel på vegger og malt panel i himling. Rommet er opprinnelig byggemeldt som gang og bod.
Soverom: Overskap i hvit og glatt utførelse. Garderobeskap i hvit og glatt utførelse. Gulv av heltre, malt panel på vegger og malt panel i himling. Rommet er opprinnelig byggemeldt som kjøkken.
Anneks fra 2014 (ikke byggemeldt)
Bad: Heldekkende servant med pumpearmatur over servantskap i glatt utførelse. Tilsvarende utførelse på høyskap. Speil over servant. Videre er badet utstyrt med gulvstående tørrklosett og dusjkabinett. Gulv av heltre, malt panel på vegger og malt panel i himling. Rommet er ikke godkjent.
Soverom: Gulv av heltre, malt panel på vegger og malt panel i himling. Rommet er ikke godkjent.
Generelt: Gasstilførsel til hvitevarer, det er utvendige gassflasker med rørgjennomføring av kobber til kjøkkenet iflg. selger. Det er avløpsrør/gråvann ut i terreng (det er krav om tillatelse til utslipp ved innlagt vann i hytta, i dette tilfelle er det kun sommervann inntil hytteveggen). Det er ikke innlagt strøm til hytta per dags dato.
Selger har fått utarbeidet en tilstandsrapport for eiendommen, dvs. en teknisk gjennomgang av boligen hvor eventuelle avvik, risiko for kjøper og prisoverslag for hva som bør gjøres av oppgradering, er skissert. Se særskilt TGIU (tilstandsgrad ikke undersøkt), samt TG2 og TG3 som viser hva som er avvik fra boligens normale slitasje, alder og type, eller som bør/må utbedres. Rapporten og selgers egenerklæring er en del av salgsoppgaven og må leses nøye før bud inngis. Kjøper overtar ansvaret for de opplysninger som fremkommer av salgsdokumentasjonen, og kan ikke gjøre gjeldende som mangel noe som burde vært kjent eller som ikke kan anses å ha betydning for avtalen.
I rapporten fremkommer det som takstmannen mener kjøper må være særskilt oppmerksom på, dette gjelder blant annet (se utfyllende tekst i rapporten):
Følgende kontrollpunkter/forhold har blitt tildelt TG2:
- Kjøkken: Manglende ventilator.
- Øvrige rom: Stedvis riper/hakk/merker i gulv.
- Loft (uinnredet/råloft): Tildelt tilstandsgraden ut i fra en helhetsvurdering pga. redusert tilkomst for inspeksjon og ukjent konstruksjonsoppbygging, se rapport for nærmere detaljer.
- Etasjeskiller: Skjevhetsmåling - forskjell på 45 mm i stue.
- Yttervegger inkl. fasader og konstruksjon: Usikkert om panel er montert med lufting og ukjent om det er musesperre bak kledning.
- Yttertak: Takkonstruksjon har tegn til svekkelser, skjevheter samt svanker i konstruksjon, vurderinger av yttertak er kun gjort fra toppen av stige, kan ikke verifisere om det er etablert tilstrekkelig lufting i/ved gesims, deformasjoner/slitasje på renner samt nedløp og manglende snøfangerutstyr.
- Terrasser/platting på terreng: For lav rekkverkshøyde iht. dagens krav, noe skjevheter i konstruksjonen, slitt overflatebehandling og fundamentene bærer preg av ufaglært utførelse.
- Utvendige trapper: Tildelt tilstandsgraden ut i fra en helhetsvurdering pga. skjevheter, stedvis manglende rekkverk og slitt overflatebehandling, se rapport for nærmere detaljer.
- Drenering: Terreng rundt bygg har stedvis fall mot grunnmur.
- Frittstående byggverk (anneks): Tildelt tilstandsgraden ut i fra en helhetsvurdering pga. det kun er foretatt en forenklet og overordnet vurdering av tilstanden - moderat vedlikehold er vurdert til å være tilstrekkelig.
- Frittstående byggverk (uthus): Tildelt tilstandsgraden ut i fra en helhetsvurdering pga. det kun er foretatt en forenklet og overordnet vurdering av tilstanden - det er relativt høy slitasjegrad.
Følgende kontrollpunkter/forhold har blitt tildelt TG3:
- Ildsteder/skorsteiner innvendig: Tildelt tilstandsgraden ut i fra en helhetsvurdering pga. konstaterte avvik i tilsynsrapporten.
- Frittstående byggverk (utebod): Tildelt tilstandsgraden ut i fra en helhetsvurdering pga. vesentlig slitasje, feil og mangler.
Følgende kontrollpunkter/forhold har blitt tildelt TGIU (tilstandsgrad ikke undersøkt):
- Tekniske anlegg, VVS anlegg: Gassinstallasjon er ikke kontrollert.
- Radon: Ukjent om det er gjennomført radonmåling i hytta.
- Grunnmur, fundamenter: Fundamenter er naturgitt skjult og byggegrunnens beskaffenhet er ukjent.
Det anbefales ytterligere undersøkelser av disse punktene.
Se vedlagt tilstandsrapport for supplerende informasjon vedrørende boligens tilstand.
Løsøre og tilbehør
Hvitevarer på kjøkkenet medfølger i handelen, dette gjelder gasskomfyr og gasskjøleskap.
Gassflasker og strømaggregat medfølger i handelen.
Videre vises det til liste fra Norges Eiendomsmeglerforbund angående løsøre og tilbehør. Produkter og installasjoner som medfølger overdras uten noen form for garantier, utover eventuell gjenværende leverandørgaranti.
Oppvarming
Frittstående vedovn i stue.
Det har blitt foretatt en kontroll av pipe og ildsted i 2024, utført av Drammensregionens brannvesen IKS. Følgende bemerkninger ble konstatert under tilsynet: Skorsteinen fungerer ikke som forutsatt (skorstein bør rehabiliteres i hele sin høyde), brennbart materiale er for nær 1/2-steins skorsteinsvange, ovnsdør til ildsted er defekt (glass er sprukket) og røykrør fra ildsted er ikke utstyrt for feiing (mangler feieluke i røykrørets bend). Kjøper overtar alt ansvar og risiko for dette videre.
Dersom det ikke er vegg- eller fastmonterte varmekilder i beboelsesrom ved visning, følger dette heller ikke med.
Ferdigattest/brukstillatelse
Drammen kommune opplyser om at det ikke foreligger ferdigattest eller midlertidig brukstillatelse i deres arkiv. I henhold til matrikkelen for eiendommen, er bygningen først registrert tatt i bruk i år 1935.
Megler anfører at det ikke foreligger godkjente byggetegninger på opprinnelig bygning i kommunens arkiv. Det er da usikkert om rom for varig opphold i opprinnelig hytte er bruksendret/omsøkt og godkjent av kommunen. Kjøper overtar risiko og ansvaret for eventuelle pålegg fra kommunen samt kostnader forbundet med dette.
Det er utstedt godkjente byggetegninger for påbygg av hytta datert 12.06.1995, tiltaket omfatter etablering av gang og bod inntil eksisterende hytte.
Kjøkken er opprinnelig byggemeldt som gang og bod jf. Godkjente byggetegninger datert 12.06.1995. Innredning av rommet til bruk for varig opphold er ikke bruksendret/omsøkt og er heller ikke godkjent av kommunen. Konsekvensen ved søknad kan være at rommet ikke godkjennes som varig opphold og at rommet da må brukes/tilbakeføres til opprinnelig godkjent formål. Kjøper overtar alt ansvar og risiko for dette videre.
Megler anfører at det ikke foreligger godkjente byggetegninger på anneks i kommunens arkiv, av den grunn finnes det ikke dokumentasjon over bygningens lovlighet. Det er da usikkert om rom for varig opphold er bruksendret/omsøkt og godkjent av kommunen. Kjøper overtar risiko og ansvaret for eventuelle pålegg fra kommunen samt kostnader forbundet med dette.
Annekset ble oppført i 2014, det foreligger ikke ferdigattest, midlertidig brukstillatelse eller godkjente byggetegninger for bygningen. Dette innebærer at innredet rom i annekset (bad og soverom) ikke kan lovlig benyttes før enten midlertidig brukstillatelse eller ferdigattest foreligger. Kjøper overtar risikoen knyttet til manglende midlertidig brukstillatelse/ferdigattest.
Terrassedeler over 0,5 m er i utgangspunktet et søknadspliktig tiltak. Megler anfører at det ikke foreligger dokumentasjon på søknad til kommunen vedrørende det utførte tiltaket. Kjøper overtar risiko og ansvaret for eventuelle pålegg fra kommunen samt kostnader forbundet med dette.
Kjøper overtar eiendommen slik den framstår på visning.
Tinglyste heftelser og rettigheter
Eiendommen overdras fri for pengeheftelser.
Dagboknummer: 555
Tinglysningsdato: 22.01.1981
Servitutten omhandler: Rett til adkomst via gangsti over gnr. 36/bnr. 10. Mulighet for anleggelse av vannledning og stolper for elektrisk kraft over gnr. 36/bnr. 10 etter nærmere avtale med eier, hvis dette er aktuelt kan det fastsettes vederlag for denne retten. Rett til båtfeste og bading på felles strand. Rettigheten hefter i gnr. 36/bnr. 10.
Servitutten vil følge eiendommen. Kjøpers bank vil få pant etter ovennevnte heftelser og servitutter som ikke skal slettes ved overdragelse.
Eventuell adgang til utleie
Fritidseiendommen har ikke separat utleiedel. Det vil normalt være anledning til utleie av hele eiendommen eller enkeltrom, såfremt utleiearealet er bygningsmessig godkjent for varig opphold.
Diverse
Hytta har vært benyttet av selgers søster. Selger har ikke bebodd eiendommen og har derfor ikke kunnskap om eiendommens tilstand.
Vi er opptatt av verdiskapning, og har knyttet til oss samarbeidspartnere som skal sikre våre kunder de beste produkter og tjenester;
• Gjensidige leverer boligselgerforsikring og tilbyr bygningsforsikring
• Boligkjøperforsikring leveres av Hiscox og med Sedgwick som skadebehandler, og er formidlet gjennom Gjensidige.
• BN bank tilbyr finansieringsløsninger
• Vår avdeling Krogsveen Pluss tilbyr flyttetjenester som utvask, visningsvask, lager, tømming og transport av flyttelass, i tillegg til å formidle kontakt med Flip for overflateoppussing.
• I forbindelse med overtagelse av eiendommen tilbyr Overo avtale om strøm, alarm og bredbånd.
• Krogsveen er, sammen med øvrige bransjeaktører, medeier i den digitale annonseringsplattformen Hjem.
Energimerking
Komplett energiattest inkludert oppvarmingskarakter fås ved henvendelse til megler eller lastes ned fra www.krogsveen.no.
Beliggenhet og tomteforhold
Beliggenhet og tomteforhold
Beliggenhet
Eiendommen har en flott og usjenert beliggenhet i høyden på oversiden av Svelvikveien. Hytta ligger tilbaketrukket og veldig fint til helt øverst på feltet med suveren utsikt utover Drammensfjorden. Tomten er omkranset av markaområder (LNF-område) og har generelt naturskjønne omgivelser. Bilfri adkomst opp til eiendommen og god avstand til nærmeste bebyggelse/nabo, som medfører ingen form for trafikk og sjenanse. Det er fine turmuligheter med turløypenett i Røysjømarka, som ligger rett i bakkant av eiendommen. Ca. 6 minutters kjøring til Åskollen med to dagligvarebutikker, post-i-butikk, frisør m.v. Ca. 15 minutters kjøring til bykjernen i Drammen med et bredt utvalg av servicetilbud og sentrumsfasiliteter.
Kort gangavstand til badestrender, båtliv og fiskemuligheter langs fjorden, bademuligheter ved Solumstrand, i Sota Fjordpark og på Nøstodden. Med båt er det kort vei til Svelvik og sørlandsidyllen i Holmsbu. Flere flotte tur- og rekreasjonsområder både sommer og vinter i nærområdet, blant annet Nordbykollen med lysløype og turløypenett i Røysjømarka.
Glassverket IF er et aktivt idrettslag med mange aktiviteter. Klubben har eget idrettsanlegg med flere gressbaner, ny kunstgressbane og idrettshall. To musikkorps. Speiderbevegelse. For øvrig de fleste fritidstilbud både i Svelvik og Drammen.
Det er gangavstand til bussholdeplass nede langs Svelvikveien, hvor det er avganger til både Svelvik og Drammen (se www.brakar.no for rutetider). Fra Drammen sentrum er det god offentlig kommunikasjon mot Oslo, Kongsberg og Tønsberg, både via ekspressbusser og tog (se www.vy.no for avganger). Det er ca. 14 minutters kjøring til Svelvik og ca. 47 minutters kjøring til Oslo.
Adkomst
Det vil bli skiltet med Krogsveen visningsskilt ved fellesvisninger. Se kart i nettannonse eller Google Maps for nærmere veibeskrivelse. Velkommen til visning!
Beskrivelse av tomt
Eiertomt på 547 kvm. Skrånende naturtomt som er opparbeidet med plenarealer og diverse beplantninger.
Deler av opparbeidet tomt bak hytta/annekset eies av gnr. 36/bnr. 10, se vedlagt kartutsnitt for tomtegrenser.
Parkering
Parkering etter områdets bestemmelser.
Selger har praktisk parkering langs Svelvikveien, det foreligger ingen avtale på dette og det er heller ingen tinglyst rett.
Vei, vann og avløp
Eiendommen har adkomst via privat sti (tinglyst gangrett).
Det er avløpsrør/gråvann ut i terreng (det er krav om tillatelse til utslipp ved innlagt vann i hytta, i dette tilfelle er det kun sommervann inntil hytteveggen).
Regulerings-og arealplaner
Eiendommen ligger i et uregulert område men er avsatt til LNF-areal med hensyn til friluftsliv ved kommuneplanen datert 05.10.2015. Utsnitt av planer med tilhørende bestemmelser kan fås ved henvendelse til megler.
Det gjøres oppmerksom på at områder som er avsatt til LNF-formål (landbruks-, natur- og friluftsformål), kan gi begrensninger i forbindelse med evt. videre utbygging av tomt og ved fradeling av tomteareal. Konferer med megler for mer informasjon.
I mellom denne eiendommen og boligfeltet på nedsiden er det regulert en kjørevei i henhold til reguleringsplan datert 05.09.1975. I nåværende eiers periode (fra 2006 til dags dato) har det ikke blitt gitt informasjon fra kommunen som tilsier at veien vil bli gjennomført.
Økonomi
Økonomi
Kommunale utgifter
Renovasjonskostnader: kr 2.566,- pr. år (2 terminer). Type renovasjonsordning: Samarbeid renovasjon, 2025.
Det opplyses om at Drammen kommune har varslet om en vesentlig fremtidig økning av kommunale avgifter.
I tillegg påløper det en kostnad på kr 578,- pr. år for boliger med minst ett aktivt røykrør (kostnad pr. 2025). Det påløper også kostnader for feiing av ildsted, kontroll av fyringsanlegg m.m. Frekvens på feiing samt tilsyn er avhengig av behov og vurderes av feieren.
Eiendommen har sommervann, det må påregnes kostnader for bruk og vedlikehold av dette.
Hytta har en årlig forsikringspremie via IF på kr 3.010,- pr. år.
Selger har ikke bebodd eiendommen og har således ikke kjennskap til øvrige løpende utgifter for eiendommen.
Det må påregnes kostnader til innboforsikring.
Ovenstående er basert på nåværende eier/husstands senere års forbruk/utgifter. Dette vil variere avhengig av antall beboere, ønsket innetemperatur, egne fordelsavtaler, kanalvalg, hastighet på bredbånd m.m.
Formuesverdi
Formuesverdi for 2023 var kr 38 414,- ifølge skatteetaten.
Omkostninger
1 090 000,00 Prisantydning
Omkostninger
27 250,00 Dokumentavgift til staten (2,5% av kjøpesum)
19 900,00 Gjensidige Boligkjøperpakke (valgfri)
545,00 Tinglysing panterettsdokument
545,00 Tinglysing skjøte
--------------------------------------------------------
48 240,00 Omkostninger totalt
--------------------------------------------------------
1 138 240,00 Totalpris inkl. omkostninger
--------------------------------------------------------
Totalpris inkl. omkostninger forutsetter kjøp til prisantydning.
Det tas forbehold om endringer i avgifter og gebyrer.
Tilbud om lånefinansiering
Megler formidler gjerne kontakt med rådgiver hos vår samarbeidspartner BN Bank. De har konkurransedyktige betingelser samt rask og løsningsorientert behandling av din lånesøknad. Krogsveen mottar et honorar for denne formidlingen.
Betalingsbetingelser
Kjøpesum inkludert omkostninger, samt pantedokument tilknyttet eventuelt lån, skal være disponibelt hos megler 2 virkedager før overtagelsen.
Annen viktig informasjon
Annen viktig informasjon
Eier
Juri Kent Larsen
Overtakelse
Etter nærmere avtale.
Boligselgerforsikring
Selger har i forbindelse med salget tegnet boligselgerforsikring levert av Gjensidige.
Boligselgerforsikringen dekker selgers ansvar etter avhendingsloven begrenset oppad til kr 14 millioner. Dersom kjøper oppdager forhold ved eiendommen som hen mener utgjør en mangel ved eiendommen, vil Gjensidige behandle reklamasjonen på vegne av selger. Forsikringsvilkår kan fås ved henvendelse til megler.
Vedlagt salgsoppgaven følger selgers egenerklæringsskjema og tilstandsrapport. Interessenter må sette seg inn i dokumentene før bud inngis.
Boligkjøperforsikring
Innen kontraktsmøtet må kjøper ta stilling til om det ønskes å bestille Boligkjøperpakken gjennom Gjensidige. I denne gunstige pakken er boligen ferdig forsikret og inkluderer rettshjelpsforsikring, også kalt Boligkjøperforsikring. Rettshjelpsforsikring gir trygghet og tilgang på profesjonell juridisk hjelp dersom det oppdages uventede feil eller mangler det første året etter overtagelse. Forsikringsselskapet behandler i så fall ethvert mangelskrav kjøper måtte ha overfor selger.
Boligkjøperpakken inkluderer bygningsforsikring for hus og hytte, innboforsikring, flytteforsikring og dobbel rentedekning - i situasjoner hvor kjøper ikke får solgt nåværende primærbolig.
Kjøper mottar ingen særskilt faktura for Boligkjøperpakken da kostnaden det første året legges til kjøpesummen for boligen. Det gjøres oppmerksom på Krogsveen mottar et honorar for denne formidlingen.
Produktark for Boligkjøperpakken ligger vedlagt i salgsoppgaven.
Dersom ikke boligkjøperpakke ønskes kan kun rettshjelpsforsikring, også kalt boligkjøperforsikring, tegnes særskilt via megler. Rettshjelpsforsikringen varer i 5 år fra overtagelse og leveres gjennom Gjensidige. Ta kontakt med megler for ytterligere informasjon.
Selskap og privatpersoner som driver med kjøp/salg/utvikling som ledd i egen næringsvirksomhet kan ikke tegne boligkjøperpakke eller rettshjelpsforsikring.
Budgivning
Forbrukerinformasjon om budgivning er vedlagt denne salgsoppgaven og er også på vår hjemmeside Krogsveen.no. Alle bud og budforhøyelser må inngis skriftlig. I tillegg må legitimasjon være fremlagt sammen med signatur fra budgiver.
Vi oppfordrer til å gi bud elektronisk via GI BUD-knappen på eiendommens hjemmeside på Krogsveen.no. Da vil samtlige vilkår bli oppfylt.
Eventuelle forhøyelser eller endringer av budet kan bekreftes pr SMS eller på e-post. Vi oppfordrer alltid til å kontakte megler pr. telefon i tillegg da forsinkelser i SMS og e-post kan forekomme.
For at budene skal kunne bli behandlet og videreformidlet skriftlig til alle involverte parter, må alle bud ha en tilstrekkelig lang akseptfrist, jf. eiendomsmeglingsforskriften § 6-3.
Selger må også skriftlig akseptere budet før aksept kan formidles til budgiver. Akseptfrist bør derfor være på minimum 30 minutter, og budforhøyelser må derfor skje i god tid før fristens utløp.
Bud i forbrukerforhold kan uansett ikke settes med kortere frist enn kl. 12.00 første virkedag etter siste annonserte visning. I tillegg kan ikke budet ha forbehold om at det skal holdes hemmelig ovenfor øvrige interessenter. Megler har iht lov om eiendomsmegling ikke anledning til å videreformidle disse budene, og de vil dermed heller ikke bli journalført.
Etter at eiendommen er solgt vil kjøper og selger få tilsendt budjournal. Øvrige budgivere kan få utlevert kopi av budjournalen i anonymisert form.
Hvitvaskingsreglene
I henhold til lov om hvitvasking og terrorfinansiering har megler plikt til å gjennomføre kontrolltiltak overfor kunder, herunder fullmektiger. Dette innebærer bl.a. å bekrefte kunders og reelle rettighetshaveres identitet på bakgrunn av fremvist gyldig legitimasjon eller på annen godkjent måte, samt å innhente opplysninger om kundeforholdets formål og tilsiktede art.
Dersom slike kundetiltak ikke kan gjennomføres, kan megler ikke etablere kundeforholdet eller utføre transaksjonen.
Hvis kjøper ikke bidrar til gjennomføring av kundekontrollen og dette fører til at transaksjonen blir forsinket eller ikke kan gjennomføres, vil dette ansees som mislighold av avtalen og gi selger rettigheter etter avhendingslova kapittel 5. I tilfeller der selger ikke bidrar til gjennomføring av løpende kundekontroll underveis i oppdraget, er det selger som misligholder sine forpliktelser etter avtalen og gi kjøper rettigheter etter avhendingslovens kapittel 4. Partene er selv ansvarlige for eventuelle kostnader og ansvar dette kan medføre. Eiendomsmegleren eller eiendomsmeglingsforetaket kan ikke holdes ansvarlig for de konsekvenser dette vil kunne få for partene eller andre som har interesser i eiendomshandelen.
Kjøper oppfordres til å innbetale kjøpesummen som ikke kommer fra låneinstitusjon i én samlet innbetaling fra egen konto i norsk bank. Megler har plikt til å melde fra til Økokrim om eiendomshandler som fremstår som mistenkelige. Melding sendes Økokrim uten at partene varsles.
Personopplysningsloven
I henhold til personopplysningsloven gjør vi oppmerksom på at interessenter kan bli registrert for videre oppfølging.
Lovanvendelse
Generelle bestemmelser
Salgsoppgaven er basert på de opplysningene selger har gitt til megler, den bygningssakyndiges tilstandsrapport, samt opplysninger innhentet fra kommunen, Kartverket og andre tilgjengelige kilder. Det er viktig at kjøper setter seg grundig inn i alle salgsdokumentene, herunder salgsoppgave, tilstandsrapport og selgers egenerklæring. Kjøper anses kjent med forhold som er tydelig beskrevet i salgsdokumentene, og slike forhold kan ikke påberopes som mangler. Dette gjelder uavhengig av om kjøper har lest dokumentene. Alle interessenter oppfordres til å undersøke eiendommen nøye, gjerne sammen med fagkyndig før bud inngis. Kjøper som velger å kjøpe usett kan ikke gjøre gjeldende som mangel noe han burde blitt kjent med ved undersøkelsen.
Dersom det er behov for avklaringer, anbefaler vi at interessenter rådfører seg med eiendomsmegler eller egne rådgivere før det legges inn bud.
En bolig som har blitt brukt i en viss tid, har vanligvis blitt utsatt for slitasje og skader kan ha oppstått. Slik bruksslitasje må kjøper regne med, og det kan avdekkes enkelte forhold etter overtakelse som nødvendiggjør utbedringer. Normal slitasje og skader som nødvendiggjør utbedring, er innenfor hva kjøper må forvente og vil ikke utgjøre en mangel.
Kjøper og selgers rettigheter og plikter reguleres av avtalen mellom partene, samt informasjonen som har vært tilgjengelig for kjøperen i forbindelse med handelen. Avtalen utfylles av avhendingsloven, og det gjelder ulike avtalevilkår avhengig av om kjøper er forbrukerkjøper eller ikke. Dette er nærmere beskrevet nedenfor.
På grunn av ulike avtalevilkår kan selger vurdere bud fra en som ikke er forbruker, ulikt fra en forbrukers bud. Dersom kjøper ikke er forbruker, er selger sitt mulige mangelsansvar begrenset fordi eiendommen selges "som den er". Selger kan ikke ta «som den er»- forbehold overfor en forbrukerkjøper. Selv et lavere bud fra en som ikke er forbruker kan foretrekkes fordi begrensningen i mulig mangelsansvar kan ha egenverdi for selger. Selger står fritt til å forkaste eller akseptere ethvert bud, og er for eksempel ikke forpliktet til å akseptere høyeste bud.
Budgiver skal i budskjema avgi egenerklæring om budgiver er forbruker eller næringsdrivende/ person som hovedsakelig handler som ledd i næringsvirksomhet. Budgivere får informasjon dersom andre bud er inngitt av en som ikke er forbruker.
Forbrukerkjøp - definisjon
Med forbrukerkjøp menes kjøp av eiendom når kjøperen er en fysisk person som ikke hovedsakelig handler som ledd i næringsvirksomhet.
Forbruker – avtalevilkår
Eiendommen har en mangel dersom den ikke er i samsvar med kravene som følger av avtalen, eller det foreligger brudd på bestemmelsene i avhendingsloven §§ 3-2 til 3-8. Hvis eiendommen ikke er i samsvar med det kjøperen må kunne forvente ut ifra alder, type og synlig tilstand, kan det være grunnlag for mangelskrav. Det samme gjelder hvis det er holdt tilbake eller gitt uriktige opplysninger om eiendommen. Dette gjelder likevel bare dersom man kan gå ut ifra at det virket inn på avtalen at opplysningen ikke ble gitt eller at mangelskravet ikke blir rettet i tide på en tydelig måte.
Boligen kan ha en mangel etter avhendingsloven § 3-3 andre ledd, dersom det er avvik mellom opplyst og faktisk innvendig areal, forutsatt at avviket er på 2% eller mer og minimum 1 kvm.
Ved beregning av et eventuelt prisavslag eller erstatning må kjøper selv dekke tap/kostnader opptil et beløp på kr 10 000 (egenandel).
Ikke-forbruker (næringsdrivende) – definisjon
Hvis kjøper er en juridisk person, eller en fysisk person som hovedsakelig handler som ledd i næringsvirksomhet, vil kjøpet ikke anses som et forbrukerkjøp.
Ikke-forbruker – avtalevilkår
Eiendommen har en mangel dersom den ikke er i samsvar med kravene som følger av avtalen.
Eiendommen selges «som den er», og selgers ansvar utover det konkret avtalte er da begrenset etter avhendingsloven § 3-9, første ledd andre setning.
Avhendingsloven § 3-3 andre ledd fravikes, og hvorvidt boligens arealsvikt utgjør en mangel vurderes etter avhendingsloven § 3-8.
Informasjon om kjøpers undersøkelsesplikt, herunder oppfordringen om å undersøke eiendommen nøye, gjelder også for kjøpere som ikke anses som forbrukere.
Det forutsettes at hjemmel overføres til kjøper. Hvis kjøper ikke ønsker hjemmelsoverføring av eiendommen, må det tas forbehold om dette i budet.
Meglers vederlag
Meglers vederlag betales av selger og er avtalt til:
Vederlag: kr 40.000,-
Tilrettelegging kr 17.000,-
Oppgjør: kr 7.500,-
Markedsføringspakke: kr 27.400,-
Visninger: kr 4.000,- pr. stk (inntil 2 stk inkl.)
Oppslag eiendomsregister: kr 2.900,-
Megler har i tillegg krav på dekning av utlegg.
Meglers vederlag betales av selger og er avtalt til:
Vederlag: kr 40.000,-.
Vederlag
Kontroll av hjemmel og heftelser kr 2 900,00
Markedsføringspakke Fritid kr 27 400,00
Oppgjør kr 7 500,00
Tilrettelegging kr 17 000,00
Visninger pr stk kr. 4.000,- pr stk (2 stykker ink)
Utlegg
Innhenting av offentlig opplysninger Drammen tegninger og RFD kr 2 833,00
Innhenting av offentlig opplysninger Feierap Drammen brannvesen kr 573,00
Tinglysing sikring kr 545,00
Andre utgifter
Boligselgerforsikring Buysure (Beregnes 6,13 promille av salgssum, minimum kr. 10.750,-
Fotopakke kr 4 490,00
Tilstandsrapport fra bygningssakkyndig - faktura til megler kr 19 950,00
Opplysninger om oppdraget
Oppdragsnummer 20-0199/25
Eiendomsmegler Krogsveen AS, avd. Drammen
Nedre Storgate 16, 3015, DRAMMEN
950 007 613
Oppdragets KR-kode KR20.25199
Dato
Sist oppdatert: 13. februar 2026 kl. 13:35
Dokumenter
Dokumenter
PDF – 303 KB
PDF – 423 KB
PDF – 656 KB
PDF – 353 KB
PDF – 312 KB
PDF – 29 KB
PDF – 127 KB
PDF – 392 KB
Område
Legg til steder som er viktige for deg
Visning
For å delta på visning, ber vi om at du melder deg på. Da sikrer vi at du får nødvendig informasjon og at det er satt av tilstrekkelig med tid. Kontakt megler dersom annet tidspunkt ønskes. Husk å lese salgsoppgaven før visningen, så du stiller forberedt.
Ønsker du kun å bli holdt orientert, kan du fra eiendommens hjemmeside få varsel om solgtpris, eller kontakte megler.
Lurer du på noe?
Vurderer du utleie?
Få et tilbud fra Utleie KrogsveenHva koster lånet?
Sjekk estimert lånekostnadVil du varsles om lignende boliger?
Ved å lagre ditt boligsøk hos oss får du beskjed når vi har en bolig som ligner denne, før den legges ut på markedet!

