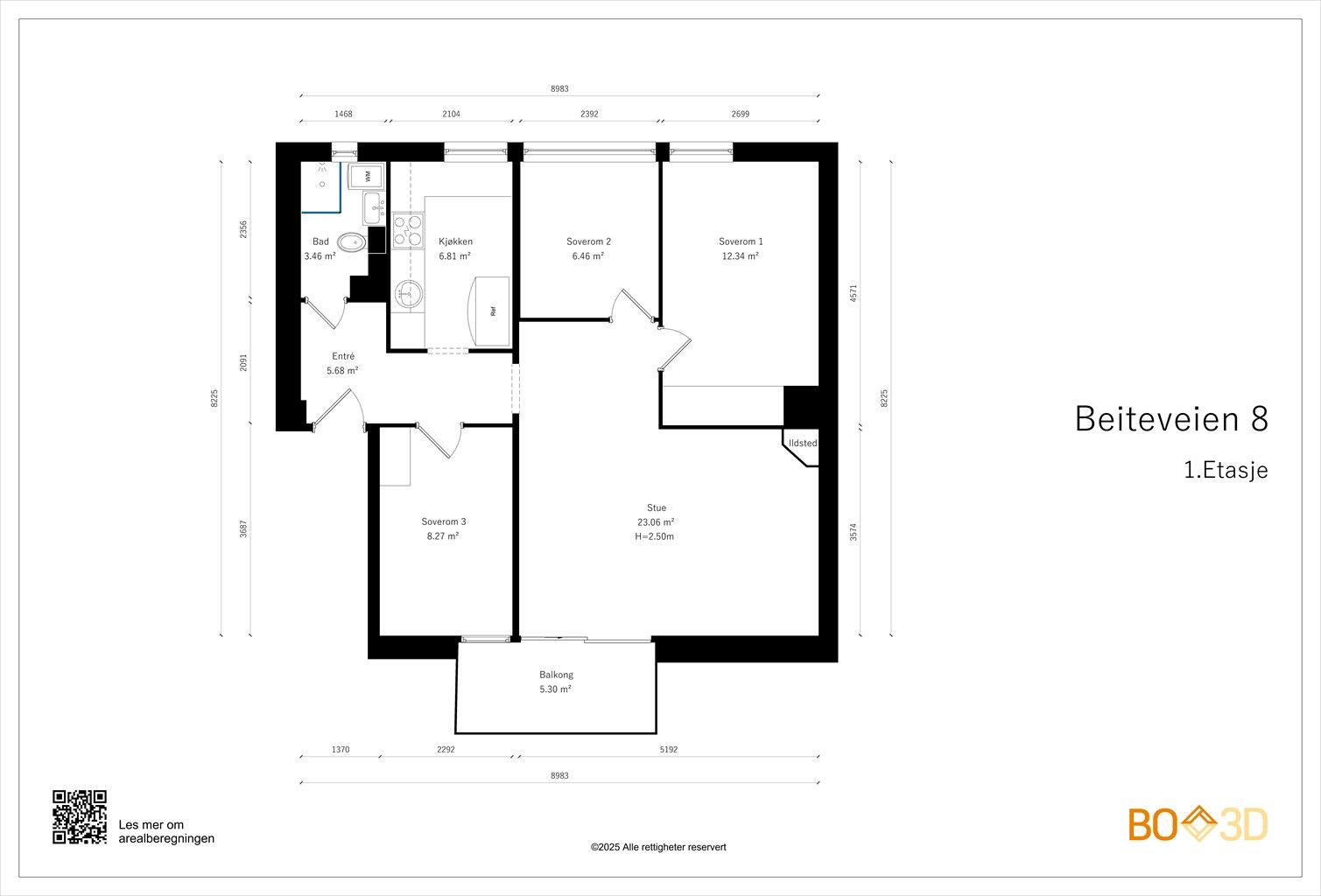
Beiteveien 8
4 800 000 kr
69 m²
3 soverom
Solgt

Manglerud
Stor, pen og gjennomgående 4-roms | Balkong | Vv. inkl. | T-bane, buss og senter like ved | Bad i regi av brl. | 3 boder
Prisantydning
4 800 000 krAndel fellesgjeld
162 049 krOmkostninger
19 252 krTotalpris
4 981 301 kr
Pris
Bruksareal
76 m²BRA-I (internt bruksareal)
69 m²BRA-E (eksternt bruksareal)
7 m²TBA (terrasse-balkongareal)
5 m²
Areal
Etasje
1Byggeår
1961Soverom
3 soveromBad
1 badType
AndelsleilighetEierform
AndelFasiliteter
Balkong/TerrasseFellesutgifter
4 093 krEnergimerke
Rød G
Nøkkelinfo
Unngå doble boligrenter
Vi tilbyr gunstig forsikring.
Vurderer du utleie?
Få et tilbud fra Utleie KrogsveenHva koster lånet?
Sjekk estimert lånekostnadDette liker selger best ved boligen
Manglerud senter m/ treningssenter, er rett over veien. T-bane er 200 m unna, tar 12 min til Jernbanetorget. Bilkollektivet har 4 biler stående til leie rett utenfor døren. Stor og fin "park" som bakgård. Veldig fin utsikt til 3 / 4 bakgård fra soverom, kontor og kjøkken. Generelt lite støy. Hyggelige naboer og familievennlige områder. Fine turmuligheter rundt Østensjø og kort vei til Østmarka. Borettslaget har 2 vaktmestere, så ingen dugnad. Boligen disponerer 3 boder i kjelleren.
Beskrivelse
Kort om eiendommen
Velkommen til Beiteveien 8!
Her får du en praktisk gjennomgående 4-roms beliggende i et populært og barnevennlig område på Manglerud. Leiligheten har en god planløsning, fine lysforhold og en solrik nordvestvendt balkong – perfekt for ettermiddagskaffen. Beliggenheten er ideell med kort vei til både Manglerud senter og T-bane. Populær beliggenhet med kort vei til blant annet Østmarka og kollektivtransport.
- Gjennomgående planløsning med 3 soverom
- Lys stue med utgang til solrik balkong
- Praktisk kjøkken med integrerte hvitevarer
- Flislagt bad med varmekabler
- Laminat, parkett og fliser på gulv
- Tre boder gir svært god lagringsplass
- Sentral beliggenhet nær butikker, skoler og kollektiv
- Kort vei til Østensjøvannet og Østmarka
- Populært og etablert boområde med godt bomiljø
Område
Legg til steder som er viktige for deg
På flyttefot? Tenk kjøp og salg samtidig.
Få din egen rådgiver gjennom hele kjøps- og salgsprosessen. Det starter med en verdivurdering.
Unngå doble boligrenter
Vi tilbyr gunstig forsikring.
Vurderer du utleie?
Få et tilbud fra Utleie KrogsveenHva koster lånet?
Sjekk estimert lånekostnadVil du varsles om lignende boliger?
Ved å lagre ditt boligsøk hos oss får du beskjed når vi har en bolig som ligner denne, før den legges ut på markedet!

