Gotaasalleen 15
4 490 000 kr
66 m²
2 soverom
Solgt

Jessheim
Lekker og tiltalende 3-roms leilighet med garasje i 5.etasje- Balkong med flott utsikt-Felles takterrasse-Heis
Prisantydning
4 490 000 krOmkostninger
113 475 krTotalpris
4 603 475 kr
Pris
Bruksareal
66 m²
Areal
Etasje
5Byggeår
2022Soverom
2 soveromBad
1 badType
EierleilighetEierform
EierseksjonFasiliteter
Garasje/P-plass, Heis og Balkong/TerrasseFellesutgifter
3 501 krEnergimerke
Grønn C
Nøkkelinfo
Unngå doble boligrenter
Vi tilbyr gunstig forsikring.
Vurderer du utleie?
Få et tilbud fra Utleie KrogsveenHva koster lånet?
Sjekk estimert lånekostnadBeskrivelse
Kort om eiendommen
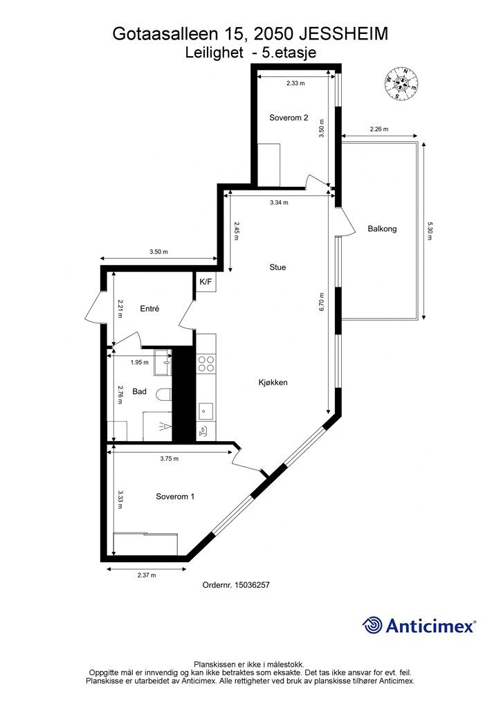
Velkommen til Gotaasalleen 15!
En innbydende 3-roms eierleilighet i byggets 5. etasje. Bygget er oppført i 2022 og leiligheten bærer preg av mange gode løsninger samt en arealeffektiv planløsning. Det er tilhørende parkeringsplass i felles garasjeanlegg med elbil-lader. Leiligheten ligger midt i Jessheim sentrum med gangavstand til alt av bymessige fasiliteter. Buss- og togstasjon ligger like ved og har gode forbindelser til bl.a. Gardermoen, Lillestrøm og Oslo.
Leiligheten rommer entré, bad, to soverom og stue med åpen kjøkkenløsning. Fra stuen er det utgang til nordøst-vendt balkong på 12 kvm med flott utsikt . Stor felles takterrasse. Oppvarming via vannbåren gulvvarme. Sykkelparkering og verksted for sykkel og ski. Attraktivt og nytt sameie midt i smørøyet.
Område
Legg til steder som er viktige for deg
På flyttefot? Tenk kjøp og salg samtidig.
Få din egen rådgiver gjennom hele kjøps- og salgsprosessen. Det starter med en verdivurdering.
Unngå doble boligrenter
Vi tilbyr gunstig forsikring.
Vurderer du utleie?
Få et tilbud fra Utleie KrogsveenHva koster lånet?
Sjekk estimert lånekostnadVil du varsles om lignende boliger?
Ved å lagre ditt boligsøk hos oss får du beskjed når vi har en bolig som ligner denne, før den legges ut på markedet!

