Trollveien 14
2 850 000 kr
205 m²
3 soverom
Komplett salgsoppgave

Åbol/Mosserød
Enebolig med renoveringsbehov og stort utviklingspotensial i et meget populært område
Prisantydning
2 850 000 krOmkostninger
92 240 krTotalpris
2 942 240 kr
Pris
Bruksareal
229 m²BRA-I (internt bruksareal)
205 m²BRA-E (eksternt bruksareal)
24 m²TBA (terrasse-balkongareal)
15 m²
Areal
Etasje
3Byggeår
1958Soverom
3 soveromBad
1 badTomteareal
917 m² (eiet)Type
Enebolig - FrittliggendeEierform
EietFasiliteter
Garasje/P-plass og Balkong/Terrasse
Nøkkelinfo
Unngå doble boligrenter
Vi tilbyr gunstig forsikring.
Vurderer du utleie?
Få et tilbud fra Utleie KrogsveenHva koster lånet?
Sjekk estimert lånekostnadBeskrivelse
Kort om eiendommen
Enebolig over 2 plan med kjeller beliggende i etablert og attraktivt boligområde i Trollveien 14. Eiendommen har en svært god beliggenhet og kan på sikt bli en meget attraktiv bolig for den rette kjøperen. Boligen fremstår med et generelt oppgraderings- og moderniseringsbehov, og kjøper må påregne kostnader knyttet til fornyelse av både innvendige og utvendige bygningsdeler.
Området byr på svært gode tur- og rekreasjonsmuligheter året rundt med Hjertås og Mokollen som nærmeste "nabo". Her er det fine muligheter for turer og trening både sommer og vinter. Løping, hundelufting og rolige familieturer kan enkelt starte på trappen hjemme.
-Oppgraderingsbehov
-Kort vei til skole og barnehage
-Søndagsturen med eller uten barn kan starte på trappen
-Lite trafikk
-Stor hage
Velkommen
Innhold og byggemåte
Innhold og byggemåte
Eiendommen
Trollveien 14, 3225 SANDEFJORD
Kommunenummer 3907, gårdsnummer 44, bruksnummer 124, ideell andel 1/1
Innhold
Totalt bruksareal BRA: 229 kvm
BRA-i:
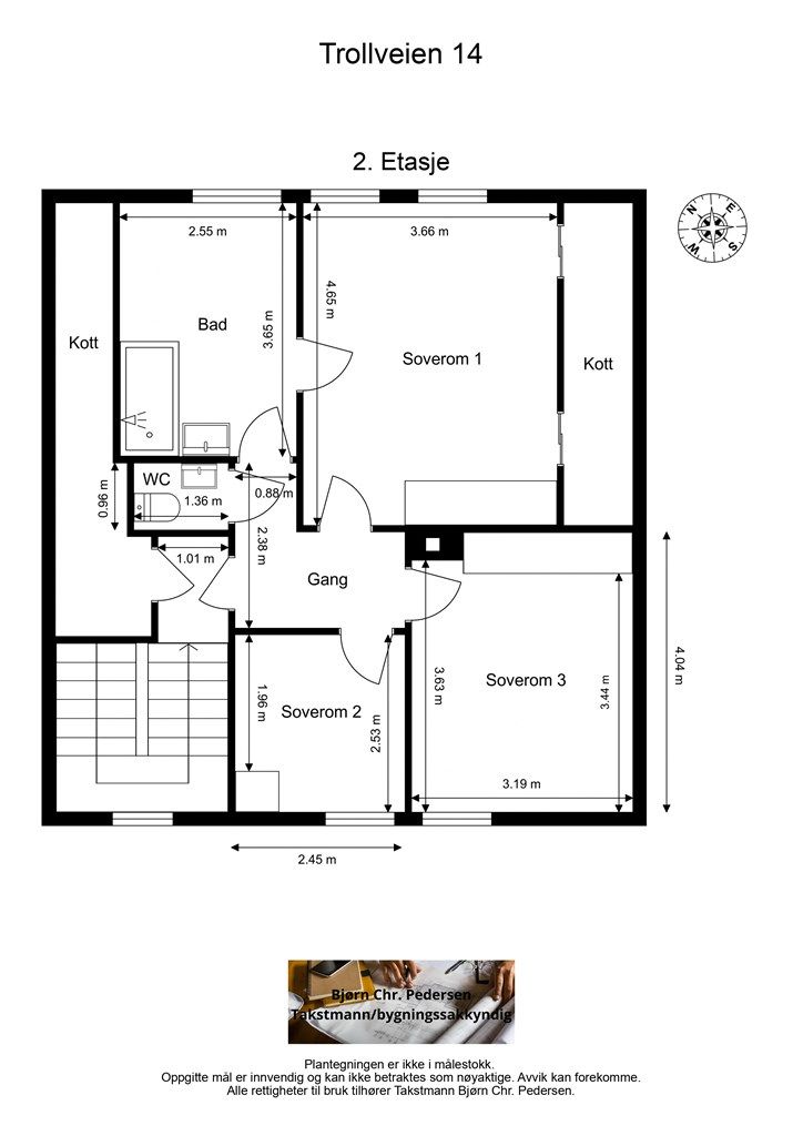
1. etasje 75 kvm: Entre, gang, stue, kjøkken, toalettrom og spisestue
2. etasje 59 kvm: Gang, bad, toalettrom og tre soverom
Kjeller 71 kvm: Gang, kjellerstue og fire boder
BRA-e:
Garasje: 18 kvm
Utebod: 6 kvm:
Åpent areal:
1. etasje 15 kvm: Terrasse
Vedlagte plantegninger er ikke målbare. De oppgitte arealer er hentet fra rapport med befaringsdato 01.04.2026 utført av Takstmann Bjørn Chr. Pedersen. Arealene er beregnet og rom er definert etter dagens faktiske bruk, uavhengig av hva som er godkjent av bygningsmyndighetene. Se punktet om ferdigattest for mer informasjon om godkjenning av rom.
Byggemåte
Selger har innhentet en tilstandsrapport av boligen/eiendommen. Av rapporten fremgår det at flere bygningsdeler har fått tilstandsgrad ikke undersøkt/ikke tilgjengelig for undersøkelse (TG IU), 2 (TG2) og/eller 3 (TG3). Rapporten beskriver også avvik på undersøkte bygningsdeler uten tilstandsgrad. Kjøper overtar ansvaret for de opplysninger som fremkommer av salgsdokumentasjonen, og kan ikke gjøre gjeldende som mangel noe som burde vært kjent eller som ikke kan anses å ha betydning for avtalen.
Bygningen er iht. tilstandsrapporten oppført på støpt betong mot grunn med grunnmur i betongkonstruksjon. Yttervegger, etasjeskiller og tak i trekonstruksjoner. Fasader med liggende trekledning. Saltak tekket med betongtakstein. Les for øvrig mer om byggemåte og den tekniske tilstanden i rapporten.
Denne boligen har et betydlig oppgraderingsbehov grunnet både alder men også skader. Det er 10 punkter i rapporten som får TG3 og 1 som får TG-IU. Det er 14 punkter som får TG2. Det må derfor påregnes betydelige oppgraderinger/renovering av huset. Det bes derfor om at alle intressenter og setter seg godt inn tilstandsrapporten før visning.
Det gjøres spesielt oppmerksom på boligens TG3, disse vil kreve oppgraderinger eller renovasjon før huset kan taes i bruk: drenering, rom under terreng, balkong, terrasse, platting, vinduer og dører, yttervegger, renner og nedløp, ildsted/skorstein, bad, innvendig overflater og garasje. Skorstein over tak er ikke inspisert av takstmann og får TG-IU. Det bemerkes spesielt at badet ikke kan benyttes som det står i dag og må renoveres før det taes i bruk.
Bygningsdeler som får TG2: grunnmur og fundament, takkonstruksjon og loft, taktekking, etasjeskille og gulv på grunn, kjøkken, toalettrommene i begge etasjene.
Se utfyllende tekst i rapporten om alle bygningsdeler spesielt de som nevnes her som TG3, TG-IU og TG2.
Tilstandsrapporten er inntatt i salgsoppgaven. Rapporten inneholder informasjon om avvikene og konsekvensen av disse. For avvik som er gitt TG3 har den bygningssakkyndige i tillegg gitt et anslag på hva det vil koste å utbedre disse avvikene. Ettersom kjøper regnes å være kjent med forhold som tydelig fremgår av tilstandsrapporten, oppfordres du til å sette deg grundig inn i rapporten i sin helhet.
Standard
Enebolig over 2 plan med kjeller beliggende i etablert og attraktivt boligområde i Trollveien 14. Eiendommen har en svært god beliggenhet og kan på sikt bli en meget attraktiv bolig for den rette kjøperen. Boligen fremstår med et generelt oppgraderings- og moderniseringsbehov, og kjøper må påregne kostnader knyttet til fornyelse av både innvendige og utvendige bygningsdeler. Standard og tekniske løsninger er i hovedsak av eldre dato. Eiendommen selges derfor med et tydelig rehabiliteringsbehov.
Eiendommen ligger i et veletablert og attraktivt boligområde på Åbol/Mosserød, et populært område vest for Sandefjord sentrum. Området er kjent for sitt rolige og familievennlige preg, med hovedsakelig småhusbebyggelse bestående av eneboliger og rekkehus, samt lite gjennomgangstrafikk. Kort vei til barnehager, barne- og ungdomsskoler gjør området særlig velegnet for barnefamilier. Dagligvarehandel og øvrige servicetilbud finnes i nærområdet, blant annet ved Mosserød og i Sandefjord sentrum, som enkelt nås både med bil, sykkel og kollektivtransport.
Eiendommens største kvaliteter er beliggenheten og det iboende potensialet i boligen og tomten etter omfattende oppussing. Tomten og plasseringen gir gode forutsetninger for å skape en fremtidsrettet bolig tilpasset egne behov og ønsker.
Eiendommen henvender seg særlig til kjøpere med god kompetanse innen oppussing og rehabilitering, og som ser verdien av å investere tid og innsats i en eiendom med attraktiv beliggenhet og betydelig potensial.
Området byr på svært gode tur- og rekreasjonsmuligheter året rundt. Hjertås og Mokollen ligger i kort avstand fra eiendommen og tilbyr flotte naturområder med merkede stier, utsiktspunkter og variert terreng. Her er det fine muligheter for turer og trening både sommer og vinter. Løping, hundelufting og rolige familieturer kan enkelt starte på trappen hjemme. Vinterstid benyttes områdene til blant annet turgåing og lek i snørike perioder, og gir et naturlig samlingspunkt for friluftsliv i nærmiljøet.
Velkommen til en hyggelig visning
Oppvarming
Varmepumpe og vedovn i stuen i første etasje, ellers elektrisk oppvarming. Dersom beboelsesrom ikke har vegg- eller fastmonterte varmekilder ved visning, følger dette heller ikke med. Feier ar følgende bemerkninger etter tilsyn i 2025: Dårlig tettet etter gamle ovner. Takstmann: innkledd teglsteinspipe. Alle fire sider skal kunne inspiseres. Her bør det påregnes oppgraderinger i samme periode som resten av huset oppgraderes.
Selger har avtalt Norgespris på strøm på eiendommen for perioden ut 2026, og denne er pt. på 50 øre inkl. mva. Nettleie, avgifter og påslag fra kraftleverandøren kommer i tillegg.
Denne avtalen vil følge eiendommen i den avtalte perioden.
Les mer om Norgespris her: https://www.regjeringen.no/no/aktuelt/legg-fram-lov-om-norgespris-pa-straum-og-fjernvarme/id3102642/
Ferdigattest/brukstillatelse
Det foreligger ferdigattest på eiendommen, datert 15.08.1958. Denne kan fås ved henvendelse til megler.
Huset er opprinnelig godkjent som en tomannsbolig med 2 leiligheter a 3 rom og kjøkken, wc, m/felles dusjbad i kjelleren. Det er ikke gjort endringer på bygningen som er kjent av dagens eier.
Kjeller er ikke opprinnelig byggemeldt til varig opphold ihht. byggetegninger og er ikke godkjent til varig opphold. Innredning av rommene til bruk for varig opphold er ikke bruksendret/omsøkt og er heller ikke godkjent av kommunen. Konsekvensen ved søknad kan være at rommet ikke godkjennes som varig opphold og at rommet da må brukes som bod/midlertidig oppbevaring. Kjøper overtar alt ansvar, kostnad og risiko for dette videre.
Kjøper må påregne kostnader til utbedring av denne boligen før den taes i bruk. Det vil derfor være anbefalt å sende inn en bruksendring til kommunen i samme prosess som renoveringen starter.
Tinglyste heftelser og rettigheter
Eiendommen overdras fri for pengeheftelser. Det er ingen tinglyste servitutter på eiendommen.
Eventuell adgang til utleie
Eiendommen har ikke separat utleieenhet. Det vil normalt være anledning til utleie av hele eiendommen eller enkeltrom, såfremt utleiearealet er bygningsmessig godkjent for varig opphold og har forsvarlige radonnivåer.
Diverse
Tilbud av produkter og tjenester fra våre samarbeidspartnere
Vi er opptatt av verdiskapning, og har knyttet til oss samarbeidspartnere som skal sikre våre kunder de beste produkter og tjenester;
• Gjensidige leverer boligselgerforsikring og tilbyr bygningsforsikring
• Boligkjøperforsikring leveres av Hiscox og med Sedgwick som skadebehandler, og er formidlet gjennom Gjensidige.
• BN bank tilbyr finansieringsløsninger
• Vår avdeling Krogsveen Pluss tilbyr flyttetjenester som utvask, visningsvask, lager, tømming og transport av flyttelass, i tillegg til å formidle kontakt med Flip for overflateoppussing.
• I forbindelse med overtagelse av eiendommen tilbyr Overo avtale om strøm, alarm og bredbånd.
• Krogsveen er, sammen med øvrige bransjeaktører, medeier i den digitale annonseringsplattformen Hjem.
Eiendommen inngår i et dødsbo hvor arvingene er selgere. Arvingene har ikke bebodd eiendommen og kjennskapen til eiendommens tilstand kan være mangelfull. Kjøper må derfor kunne påregne at det kan være flere feil og mangler som normalt oppdages ved bruk av boligen, men som selger av dødsbo ikke har mulighet å vite.
Hjemmel vil stå på avdøde frem til overskjøting til ny kjøper. Det gjøres oppmerksom på at det ikke vil bli tinglyst sikringsobligasjon eller annen form for pantesikkerhet på eiendommen før overskjøting. Oppgjør vil skje mot tinglyst skjøte.
Beliggenhet og tomteforhold
Beliggenhet og tomteforhold
Beliggenhet
Eiendommen ligger i et veletablert og attraktivt boligområde på Åbol/Mosserød, et populært område vest for Sandefjord sentrum. Området er kjent for sitt rolige og familievennlige preg, med hovedsakelig småhusbebyggelse bestående av eneboliger og rekkehus, samt lite gjennomgangstrafikk.
Kort vei til barnehager, barne- og ungdomsskoler gjør området særlig velegnet for barnefamilier. Dagligvarehandel og øvrige servicetilbud finnes i nærområdet, blant annet ved Mosserød og i Sandefjord sentrum, som enkelt nås både med bil, sykkel og kollektivtransport. Det er gode bussforbindelser til sentrum og øvrige deler av byen.
Området byr på svært gode tur- og rekreasjonsmuligheter året rundt. Hjertås og Mokollen ligger i kort avstand fra eiendommen og tilbyr flotte naturområder med merkede stier, utsiktspunkter og variert terreng. Her er det fine muligheter for turer og trening både sommer og vinter. Løping, hundelufting og rolige familieturer kan enkelt starte på trappen hjemme. Vinterstid benyttes områdene til blant annet turgåing og lek i snørike perioder, og gir et naturlig samlingspunkt for friluftsliv i nærmiljøet.
I tillegg er det kort vei til idrettsanlegg, treningssentre og øvrige fritidstilbud for både barn og voksne. Sandefjord sentrum med sine kaféer, butikker, kulturtilbud og havnepromenade ligger kun noen minutters kjøretur unna.
Beliggenheten gir en svært god kombinasjon av rolige og grønne omgivelser, samtidig som man har nærhet til byens fasiliteter og enkel adkomst til E18, med gode pendlermuligheter mot Tønsberg, Larvik og Oslo-området.
Adkomst
Huset er skiltet med "Krogsveen til salgs skilt", det er enkelt å finne frem i kart. Det vil bli skiltet med Krogsveen visningsskilt ved fellesvisninger.
Barnehager, skoler og fritid
Område tilhører Mosserød barneskole og Breidablikk ungdomsskole. Espira, Mokollen og Sverstad barnehage er noen av barnehagene som ligger i nærområde. Dersom skole- og barnehagetilbud er av betydning for kjøpet, ber vi om at det rettes en særskilt henvendelse til kommunen for oppdatert informasjon.
Beskrivelse av tomt
Selveiertomt på 917 kvm. Stor, inngjerdet gresslagthage rundt huset. Gruset oppkjørsel. Det er utgang til terrasse fra stuen. Det er muligheter for en uteplass på baksiden av huset. Det er trapper opp til denne plassen i dag, så her er det potensialet for en ekstra uteplass med utsikt over nærområdet. Sommeren er rett rundt svingen, så dette er en hage som innbyr til både både lek og grilling.
Parkering
Gode parkeringsmuligheter på egen eiendom.
Vei, vann og avløp
Eiendommen har adkomst via kommunal vei.
Eiendommen er tilknyttet kommunalt ledningsnett via private stikkledninger. Eier er selv ansvarlig for private stikkledninger til boligen.
Regulerings-og arealplaner
Eiendommen ligger i et uregulert område, men er i kommuneplan datert 21.09.2023 avsatt til: Boligbebyggelse og ras og skredfare.
Utsnitt av plan med tilhørende bestemmelser kan fås ved henvendelse til megler.
Økonomi
Økonomi
Kommunale utgifter
Kommunale avgifter er kr 15.540,- for inneværende år. I dette inngår gebyr for vann, avløp, renovasjon og feiing/tilsyn. Det tas forbehold om at kommunen kan justere gebyrene i løpet av året.
Nåværende eier har et strømforbruk som i følge strømregningen estimeres til ca. 13.883 kwh. pr. år.
Boligen har en årlig forsikringspremie på kr 17.700,-
Boligen er ikke tilknyttet noen leverandør for tv og internett pr. i dag. Arvingene er ikke kjent med om huset er koblet til fiber. Det er tidligere vært tilkoblet riks-tv og antenne på taket.
Utgiftene er kun estimater og kan derfor variere. Selger har ikke bebodd eiendommen og har således ikke kjennskap til øvrige løpende utgifter for eiendommen.
Formuesverdi
Formuesverdi for 2024 var kr 1.152.768,- ifølge Skatteetaten. Beløpet forutsetter at eier bor fast i boligen (primærbolig).
Ved eventuell øvrig bruk av eiendommen (f.eks. fritidsbolig, pendlerbolig, utleieobjekt) var formuesverdien for 2024 kr 4.611.070,-
Fra 2026 har Stortinget vedtatt en oppdatert modell for beregning av formuesverdi for primærbolig, så avvik kan forekomme.
For mer informasjon se skatteetaten.no
Omkostninger
2 850 000,00 Prisantydning
Omkostninger
71 250,00 Dokumentavgift til staten (2,5% av kjøpesum)
19 900,00 Gjensidige Boligkjøperpakke* (valgfritt)
545,00 Tinglysing panterettsdokument
545,00 Tinglysing skjøte
--------------------------------------------------------
72 340,00 (Omkostninger totalt (uten Gjensidige Boligkjøperpakke))
92 240,00 Omkostninger totalt (med Gjensidige Boligkjøperpakke))
--------------------------------------------------------
2 922 340,00 Totalpris inkl. omkostninger
2 942 240,00 Totalpris inkl. omkostninger (med Gjensidige Boligkjøperpakke)
--------------------------------------------------------
Betalingsbetingelser
Kjøpesum inkludert omkostninger, samt pantedokument tilknyttet eventuelt lån, skal være disponibelt hos megler 2 virkedager før overtagelsen.
Annen viktig informasjon
Annen viktig informasjon
Eier
Diana Engelstad og Bjørn Ove Blomholm Engelstad
Overtakelse
Etter nærmere avtale.
Boligselgerforsikring
Selger har i forbindelse med salget tegnet Boligselgerforsikring levert av Gjensidige. Boligselgerforsikring dekker selgers ansvar etter avhendingsloven begrenset oppad til kr 14 millioner. Dersom kjøper oppdager forhold ved eiendommen som hen mener utgjør en mangel ved eiendommen, vil Gjensidige behandle reklamasjonen på vegne av selger. Forsikringsvilkår kan fås ved henvendelse til megler.
Vedlagt salgsoppgaven følger selgers egenerklæringsskjema og tilstandsrapport. Interessenter må sette seg inn i dokumentene før bud inngis. Egenerklæringen er fylt ut av arvingene iht deres kjennskap om eiendommen. Da de ikke har bebodd eiendommen kan kjennskapen være mangelfull.
Boligkjøperforsikring
Innen kontraktsmøtet må kjøper ta stilling til om det ønskes å bestille Boligkjøperpakken gjennom Gjensidige. I denne gunstige pakken er boligen ferdig forsikret og inkluderer rettshjelpsforsikring, også kalt Boligkjøperforsikring. Rettshjelpsforsikring gir trygghet og tilgang på profesjonell juridisk hjelp dersom det oppdages uventede feil eller mangler det første året etter overtagelse. Forsikringsselskapet behandler i så fall ethvert mangelskrav kjøper måtte ha overfor selger.
Boligkjøperpakken inkluderer bygningsforsikring for hus og hytte, innboforsikring, flytteforsikring og dobbel rentedekning - i situasjoner hvor kjøper ikke får solgt nåværende primærbolig.
Kjøper mottar ingen særskilt faktura for Boligkjøperpakken da kostnaden det første året legges til kjøpesummen for boligen. Det gjøres oppmerksom på Krogsveen mottar et honorar for denne formidlingen.
Produktark for Boligkjøperpakken ligger vedlagt i salgsoppgaven.
Dersom ikke boligkjøperpakke ønskes kan kun rettshjelpsforsikring, også kalt boligkjøperforsikring, tegnes særskilt via megler. Rettshjelpsforsikringen varer i 5 år fra overtagelse og leveres gjennom Gjensidige. Ta kontakt med megler for ytterligere informasjon.
Selskap og privatpersoner som driver med kjøp/salg/utvikling som ledd i egen næringsvirksomhet kan ikke tegne boligkjøperpakke eller rettshjelpsforsikring.
Budgivning
Forbrukerinformasjon om budgivning er vedlagt denne salgsoppgaven og er også på vår hjemmeside Krogsveen.no. Alle bud og budforhøyelser må inngis skriftlig. I tillegg må legitimasjon være fremlagt sammen med signatur fra budgiver.
Vi oppfordrer til å gi bud elektronisk via GI BUD-knappen på eiendommens hjemmeside på Krogsveen.no. Da vil samtlige vilkår bli oppfylt.
Eventuelle forhøyelser eller endringer av budet kan bekreftes pr SMS eller på e-post. Vi oppfordrer alltid til å kontakte megler pr. telefon i tillegg da forsinkelser i SMS og e-post kan forekomme.
For at budene skal kunne bli behandlet og videreformidlet skriftlig til alle involverte parter, må alle bud ha en tilstrekkelig lang akseptfrist, jf. eiendomsmeglingsforskriften § 6-3.
Selger må også skriftlig akseptere budet før aksept kan formidles til budgiver. Akseptfrist bør derfor være på minimum 30 minutter, og budforhøyelser må derfor skje i god tid før fristens utløp.
Bud i forbrukerforhold kan uansett ikke settes med kortere frist enn kl. 12.00 første virkedag etter siste annonserte visning. I tillegg kan ikke budet ha forbehold om at det skal holdes hemmelig ovenfor øvrige interessenter. Megler har iht lov om eiendomsmegling ikke anledning til å videreformidle disse budene, og de vil dermed heller ikke bli journalført.
Etter at eiendommen er solgt vil kjøper og selger få tilsendt budjournal. Øvrige budgivere kan få utlevert kopi av budjournalen i anonymisert form.
Hvitvaskingsreglene
I henhold til lov om hvitvasking og terrorfinansiering har megler plikt til å gjennomføre kontrolltiltak overfor kunder, herunder fullmektiger. Dette innebærer bl.a. å bekrefte kunders og reelle rettighetshaveres identitet på bakgrunn av fremvist gyldig legitimasjon eller på annen godkjent måte, samt å innhente opplysninger om kundeforholdets formål og tilsiktede art.
Dersom slike kundetiltak ikke kan gjennomføres, kan megler ikke etablere kundeforholdet eller utføre transaksjonen.
Hvis kjøper ikke bidrar til gjennomføring av kundekontrollen og dette fører til at transaksjonen blir forsinket eller ikke kan gjennomføres, vil dette ansees som mislighold av avtalen og gi selger rettigheter etter avhendingslova kapittel 5. I tilfeller der selger ikke bidrar til gjennomføring av løpende kundekontroll underveis i oppdraget, er det selger som misligholder sine forpliktelser etter avtalen og gi kjøper rettigheter etter avhendingslovens kapittel 4. Partene er selv ansvarlige for eventuelle kostnader og ansvar dette kan medføre. Eiendomsmegleren eller eiendomsmeglingsforetaket kan ikke holdes ansvarlig for de konsekvenser dette vil kunne få for partene eller andre som har interesser i eiendomshandelen.
Kjøper oppfordres til å innbetale kjøpesummen som ikke kommer fra låneinstitusjon i én samlet innbetaling fra egen konto i norsk bank. Megler har plikt til å melde fra til Økokrim om eiendomshandler som fremstår som mistenkelige. Melding sendes Økokrim uten at partene varsles.
Personopplysningsloven
I henhold til personopplysningsloven gjør vi oppmerksom på at interessenter kan bli registrert for videre oppfølging.
Lovanvendelse
Generelle bestemmelser
Salgsoppgaven er basert på de opplysningene selger har gitt til megler, den bygningssakyndiges tilstandsrapport, samt opplysninger innhentet fra kommunen, Kartverket og andre tilgjengelige kilder. Det er viktig at kjøper setter seg grundig inn i alle salgsdokumentene, herunder salgsoppgave, tilstandsrapport og selgers egenerklæring. Kjøper anses kjent med forhold som er tydelig beskrevet i salgsdokumentene, og slike forhold kan ikke påberopes som mangler. Dette gjelder uavhengig av om kjøper har lest dokumentene. Alle interessenter oppfordres til å undersøke eiendommen nøye, gjerne sammen med fagkyndig før bud inngis. Kjøper som velger å kjøpe usett kan ikke gjøre gjeldende som mangel noe han burde blitt kjent med ved undersøkelsen.
Dersom det er behov for avklaringer, anbefaler vi at interessenter rådfører seg med eiendomsmegler eller egne rådgivere før det legges inn bud.
En bolig som har blitt brukt i en viss tid, har vanligvis blitt utsatt for slitasje og skader kan ha oppstått. Slik bruksslitasje må kjøper regne med, og det kan avdekkes enkelte forhold etter overtakelse som nødvendiggjør utbedringer. Normal slitasje og skader som nødvendiggjør utbedring, er innenfor hva kjøper må forvente og vil ikke utgjøre en mangel.
Kjøper og selgers rettigheter og plikter reguleres av avtalen mellom partene, samt informasjonen som har vært tilgjengelig for kjøperen i forbindelse med handelen. Avtalen utfylles av avhendingsloven, og det gjelder ulike avtalevilkår avhengig av om kjøper er forbrukerkjøper eller ikke. Dette er nærmere beskrevet nedenfor.
På grunn av ulike avtalevilkår kan selger vurdere bud fra en som ikke er forbruker, ulikt fra en forbrukers bud. Dersom kjøper ikke er forbruker, er selger sitt mulige mangelsansvar begrenset fordi eiendommen selges "som den er". Selger kan ikke ta «som den er»- forbehold overfor en forbrukerkjøper. Selv et lavere bud fra en som ikke er forbruker kan foretrekkes fordi begrensningen i mulig mangelsansvar kan ha egenverdi for selger. Selger står fritt til å forkaste eller akseptere ethvert bud, og er for eksempel ikke forpliktet til å akseptere høyeste bud.
Budgiver skal i budskjema avgi egenerklæring om budgiver er forbruker eller næringsdrivende/ person som hovedsakelig handler som ledd i næringsvirksomhet. Budgivere får informasjon dersom andre bud er inngitt av en som ikke er forbruker.
Forbrukerkjøp - definisjon
Med forbrukerkjøp menes kjøp av eiendom når kjøperen er en fysisk person som ikke hovedsakelig handler som ledd i næringsvirksomhet.
Forbruker – avtalevilkår
Eiendommen har en mangel dersom den ikke er i samsvar med kravene som følger av avtalen, eller det foreligger brudd på bestemmelsene i avhendingsloven §§ 3-2 til 3-8. Hvis eiendommen ikke er i samsvar med det kjøperen må kunne forvente ut ifra alder, type og synlig tilstand, kan det være grunnlag for mangelskrav. Det samme gjelder hvis det er holdt tilbake eller gitt uriktige opplysninger om eiendommen. Dette gjelder likevel bare dersom man kan gå ut ifra at det virket inn på avtalen at opplysningen ikke ble gitt eller at mangelskravet ikke blir rettet i tide på en tydelig måte.
Boligen kan ha en mangel etter avhendingsloven § 3-3 andre ledd, dersom det er avvik mellom opplyst og faktisk innvendig areal, forutsatt at avviket er på 2% eller mer og minimum 1 kvm.
Ved beregning av et eventuelt prisavslag eller erstatning må kjøper selv dekke tap/kostnader opptil et beløp på kr 10 000 (egenandel).
Ikke-forbruker (næringsdrivende) – definisjon
Hvis kjøper er en juridisk person, eller en fysisk person som hovedsakelig handler som ledd i næringsvirksomhet, vil kjøpet ikke anses som et forbrukerkjøp.
Ikke-forbruker – avtalevilkår
Eiendommen har en mangel dersom den ikke er i samsvar med kravene som følger av avtalen.
Eiendommen selges «som den er», og selgers ansvar utover det konkret avtalte er da begrenset etter avhendingsloven § 3-9, første ledd andre setning.
Avhendingsloven § 3-3 andre ledd fravikes, og hvorvidt boligens arealsvikt utgjør en mangel vurderes etter avhendingsloven § 3-8.
Informasjon om kjøpers undersøkelsesplikt, herunder oppfordringen om å undersøke eiendommen nøye, gjelder også for kjøpere som ikke anses som forbrukere.
Det forutsettes at hjemmel overføres til kjøper. Hvis kjøper ikke ønsker hjemmelsoverføring av eiendommen, må det tas forbehold om dette i budet.
Meglers vederlag
Meglers vederlag betales av selger og er avtalt til: 40000. Vederlag: Fotopakke kr 4000. Kontroll av hjemmel og heftelser kr 3900. Markedsføringspakke kr 29900. Oppgjør kr 8900. Tilrettelegging kr 17000. Visninger pr stk kr 1875. Utlegg: Innhenting av offentlig opplysninger kr 3504. Tinglysing sikring kr 545.
Vi er opptatt av verdiskapning, og har knyttet til oss samarbeidspartnere som skal sikre våre kunder de beste produkter og tjenester;
• Gjensidige leverer boligselgerforsikring og tilbyr bygningsforsikring
• Boligkjøperforsikring leveres av Hiscox og med Sedgwick som skadebehandler, og er formidlet gjennom Gjensidige.
• BN bank tilbyr finansieringsløsninger
• Vår avdeling Krogsveen Pluss tilbyr flyttetjenester som utvask, visningsvask, lager, tømming og transport av flyttelass, i tillegg til å formidle kontakt med Flip for overflateoppussing.
• I forbindelse med overtagelse av eiendommen tilbyr Overo avtale om strøm, alarm og bredbånd.
• Krogsveen er, sammen med øvrige bransjeaktører, medeier i den digitale annonseringsplattformen Hjem som eies av Bomega AS.
Opplysninger om oppdraget
Oppdragsnummer 22-0045/26
Eiendomsmegler Krogsveen AS, avd. Sandefjord
Jernbanealléen 13, 3210, SANDEFJORD
950 007 613
Oppdragets KR-kode KR22.2645
Dato
Sist oppdatert: 12. april 2026 kl. 14:40
Dokumenter
Dokumenter
PDF – 902 KB
PDF – 6 MB
PDF – 168 KB
PDF – 797 KB
PDF – 312 KB
PDF – 29 KB
PDF – 127 KB
PDF – 392 KB
Område
Legg til steder som er viktige for deg
Visning
Vi legger til rette for gode visninger med tid til alle. Kontakt megler på 41603938 eller via linken «visningspåmelding» for å avtale tidspunkt. Husk også å lese salgsoppgaven før visningen.
Lurer du på noe?
Unngå doble boligrenter
Vi tilbyr gunstig forsikring.
Vurderer du utleie?
Få et tilbud fra Utleie KrogsveenHva koster lånet?
Sjekk estimert lånekostnadVil du varsles om lignende boliger?
Ved å lagre ditt boligsøk hos oss får du beskjed når vi har en bolig som ligner denne, før den legges ut på markedet!

