Harry Sønsterøds vei 20
6 990 000 kr
112 m²
3 soverom
Komplett salgsoppgave

Heggedal Terrasse
Rålekker og moderne enderekkehus fra 2023. 3 soverom og 2 bad. 2 garasjeplasser, én m/lader. Takterrasse på 40 kvm.
Prisantydning
6 990 000 krOmkostninger
185 790 krTotalpris
7 175 790 kr
Pris
Bruksareal
112 m²BRA-I (internt bruksareal)
112 m²TBA (terrasse-balkongareal)
19 m²
Areal
Etasje
2Byggeår
2023Soverom
3 soveromBad
2 badType
RekkehusEierform
EierseksjonFasiliteter
Garasje/P-plass og Balkong/TerrasseFellesutgifter
3 206 krEnergimerke
Rød B
Nøkkelinfo
Unngå doble boligrenter
Vi tilbyr gunstig forsikring.
Vurderer du utleie?
Få et tilbud fra Utleie KrogsveenHva koster lånet?
Sjekk estimert lånekostnadBeskrivelse
Kort om eiendommen
Innhold og byggemåte
Innhold og byggemåte
Eiendommen
Harry Sønsterøds vei 20, 1389 HEGGEDAL
Kommunenummer 3203, gårdsnummer 79, bruksnummer 87, seksjonsnummer 51, ideell andel 1/1
Innhold
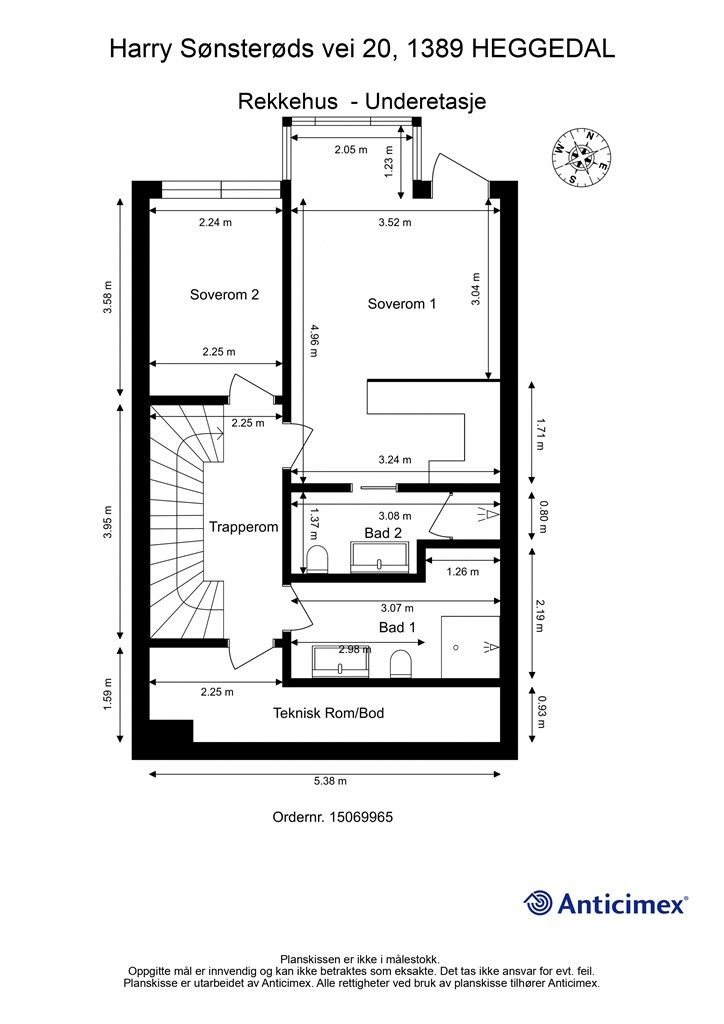
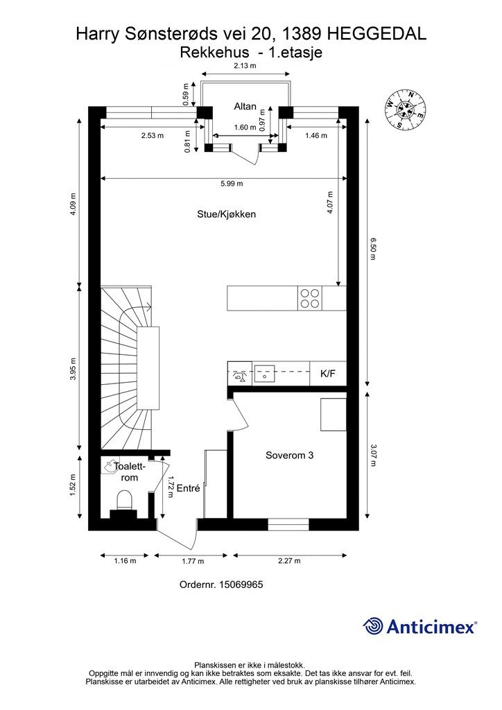
Totalt bruksareal BRA: 112 kvm
BRA-i:
Rekkhus:
-1. etasje 56 kvm: Trapperom, to bad, to soverom og teknisk rom/bod.
1. etasje 56 kvm: Entré, toalettrom, stue/kjøkken og soverom.
Åpent areal:
Rekkhus:
1. etasje 19 kvm: Altan og steinlagt platting
Vedlagte plantegninger er ikke målbare. De oppgitte arealer er hentet fra rapport med befaringsdato 05.05.2025 utført av Anticimex AS.
Byggemåte
Selger har fått utarbeidet en tilstandsrapport, dvs. en teknisk gjennomgang av boligen hvor eventuelle avvik, risiko for kjøper og prisoverslag for hva som bør gjøres av oppgradering, er skissert. Se særskilt TGIU (tilstandsgrad ikke undersøkt), samt TG2 og TG3 som viser hva som er avvik fra boligens normale slitasje, alder og type, eller som bør/må utbedres. Rapporten og selgers egenerklæring er en del av salgsoppgaven og må leses nøye før bud inngis. Kjøper overtar ansvaret for de opplysninger som fremkommer av salgsdokumentasjonen, og kan ikke gjøre gjeldende som mangel noe som burde vært kjent eller som ikke kan anses å ha betydning for avtalen.
Rekkehus over 1 etasje og underetasje. Bygningen har støpt gulv mot grunn. Grunnmur av betong. Etasjeskillere av tre. Yttervegger av trekonstruksjoner utvendig kledd med liggende kledning. Tilnærmet flat takkonstruksjon utvendig tekket med membran. Boligen har dører og vinduer fra byggeår. Slett entrédør med glassfelt. Altandør og terrassedør samt vinduer med karmer/rammer av tre utvendig beslått med metall og tre-lags glass. Motorisert takvindu/dør til takhage. Boligen har balansert ventilasjon.
Teknisk anlegg/VVS
Leiligheten har teknisk anlegg fra byggeår. Plassert i teknisk rom/bod: Fordelerskap for rør-i-rør, stoppekraner, vannmåler og automatisk lekkasjestopper. Fordelerskap for rør-i-rør og stoppekraner. Varmtvannsbereder på ca 190 liter fra byggeår. Enhet for balansert ventilasjon. Utevannkran. Vannrør av type rør-i-rør. Synlige avløpsrør av plast. Leiligheten har balansert ventilasjon
Elektrisk anlegg
Sikringsskap med automatsikringer og måler plassert i teknisk rom/bod. Hovedsikring er på 32A. Boligen har skjult elektrisk anlegg.
Brann
Rekkehuset har brannslukningsapparat og røykvarslere.
Det gjøres spesielt oppmerksom på:
TG 2 er gitt på følgende bygningsdeler:
- Baderom i underetasje: Nivåforskjell fra døråpning på topp overflate gulv og til sluk er på tilfeldig sted målt til ca. 16 mm.
- Innvendige trapper: Trappetrinnsteppe er ikke godt festet.
TGIU (tilstandsgrad ikke undersøkt):
- Stakeluke: Avløpsrørene er skjult og eventuell stakeluke er ikke lokalisert.
- Konstruksjon: Takkonstruksjonen er lukket, inspeksjon ikke mulig.
- Grunnmur, fundamenter: Fundamenter er naturgitt skjult, byggegrunnens beskaffenhet er ukjent.
- Vann- og avløpsledninger: Ikke besiktiget.
Det er ikke påvist noen TG 3.
Se supplerende tekst i tilstandsrapporten om overnevnte bygningsdeler. Kjøper overtar ansvar og risiko for dette. Les forøvrig mer om byggemåte og den tekniske tilstanden i rapporten.
Selger opplyser i tillegg om følgende:
- Garasjen har en pågående reklamasjon sak fra vårt sameie til utbygger. En styringsgruppe er laget for å finne en løsning til garasjeanlegget. SINTEF har skrevet en rapport på garasjen som har funnet feil
på byggeteknisk og maskinen. Dette vil bli tatt videre til utbygger for en mulig løsning/bedring. Det er positiv fremdriftsplan på videre fremdrift i garasjen fra sameiet sin side.
- Luftlekkasje under kjellerdør og bak en stikkontakt, funnet ved termokamera. Dette er en pågående reklamasjon sak opp mot utbygger.
- Det foreligger en tilsynssak fra kommunen knyttet til TEK17 og klassifiseringen som passivhus. Nå er boligen godkjent som passivhus, men det kan bli aktuelt med en vurdering av eventuelle avvik dersom kommunen konkluderer annerledes. En takstmann fra SB Takst har bemerket at boligen burde hatt to varmekilder, men i henhold til regelverket for passivhus er det kun krav om én varmekilde
Se vedlagt dokument til salgsoppgaven med selgers egenerklæring for tilleggsinformasjon til tilstandsrapporten.
Standard
Entré
Lys entré med stor integrert skyvedørsgarderobe. Fra entreén er det adkomst til toalettrom og et soverom, samt direkte til stuen.
Stue og spisestue
Den åpne stueløsningen gir en moderne og innbydende atmosfære med en god planløsning. Store vindusflater slipper inn rikelig med dagslys og har en flott utsikt. Stuen har god plass til både spisebord og sofagruppe, og skaper en sosial sone med flyt mellom kjøkken og stuen. Fra stuen har du adkomst til et altan, hvor du kan nyte kveldssolen.
Kjøkken
Lekkert Sigdal kjøkken med åpen planløsning og innbydende kjøkkenøy. Kjøkkeninnredning med slette fronter fra byggeår. Benkeplate av laminat. Planlimt oppvaskkum i rustfritt stål med ett-greps armatur. Stikkontakt på vegg over kjøkkenbenk. Integrert kjøleskap med fryser, oppvaskmaskin, stekeovn og induksjonstopp. Takhengt ventilator tilkoblet avtrekk. Vannrør av type rør-i-rør. Synlige avløpsrør av plast. Kjøkkenet har montert lekkasjestopper og komfyrvakt.
De integrerte hvitevarene (platetopp, oppvaskmaskin, kjøleskap) medfølger ved salg. Det gjøres oppmerksom på at hvitevarene er kjøpt for noen år tilbake, og kjøper må forvente slitasje som følge av alder og normal bruk.
Baderom i underetasje
Stor og fint baderom fra byggeår. Flislagt gulv med varme og flislagte vegger. Nedsenket himling med downlights. Vegghengt servantskap. Ovenpåliggende servant med ett-greps armatur. Speil med belysning samt stikkontakt på vegg over servant. Dusjsone med innfellbar dør av glass. Dusjarmatur tilkoblet hånddusj. Vegghengt toalett. Mekanisk avtrekksventil i himling. Vannrør av type rør-i-rør. Synlige avløpsrør av plast.
Toalettrom i 1.etasje
Praktisk toalettrom fra byggeår med adkomst fra entré. Gulvflate belagt med en-stavs parkett. Vegger i malte flater. Himling i malt flate. Vegghengt servant med ett-greps armatur. Speil på vegg over servant. Vegghengt toalett. Panelovn på vegg. Mekanisk avtrekksventil i himling. Vannrør av type rør-i-rør. Synlige avløpsrør av
plast.
Baderom i underetasje
Moderne baderom fra byggeår på hovedsoverommet. Flislagt gulv med varme og flislagte vegger. Nedsenket himling med downlights. Vegghengt servantskap. Ovenpåliggende servant med ett-greps armatur. Speil med belysning samt stikkontakt på vegg over servant. Dusjsone med innfellbar dør av glass. Dusjarmatur tilkoblet hånddusj. Vegghengt toalett. Mekanisk avtrekksventil i himling. Vannrør av type rør-i-rør. Synlige avløpsrør av plast.
Soverom
Boligen har tre soverom av god størrelse. Et i 1. etasje og to i underetasjen. Det er god plass til dobbeltseng, skrivebord og garderobeskap i rommene. Hovedsoverommet har eget walk-in closet og eget baderom. Det er godt med naturlig lysinnslipp i rommene.
Lagringsplass
Boligen har én bod i underetasjen.
Overflater
Gulv: En-stavs parkett
Vegger: Malte flater.
Himling: Malt flate
Løsøre og tilbehør
Vi viser til liste fra Norges Eiendomsmeglerforbund som gjelder fra 01.01.2020 angående løsøre og tilbehør.
Følgende medfølger ikke ved salg:
- Vinhylle
- Lampe i stuen
- Hyller på barnerom
- Skap på kontor
- Kommoden i stuen
- Hvite kommoden på barnerommet
Følgende medfølger ved salg:
- Vaskemaskin og tørketrommel
Oppvarming
Boligen oppvarmes med elektrisitet. Det er varmekabler i gulv på begge bad i underetasjen.
Dersom beboelsesrom ikke har vegg- eller fastmonterte varmekilder ved visning, følger dette heller ikke med.
Ferdigattest/brukstillatelse
Det foreligger ikke ferdigattest på eiendommen, men midlertidig brukstillatelse ble gitt 05.07.2023. Det er i tillegg gitt midlertidig brukstillatelse på veier på hele feltet. Midlertidig brukstillatelse er en tillatelse fra bygningsmyndighetene til å ta å ta hele eller deler av byggverket midlertidig i bruk før søknadspliktig tiltak er ferdigstilt og utførelsen er endelig avsluttet.
Den midlertidige dispensasjonen omfatter følgende bestemmelse:
1. Bestemmelser § 3.5.3 50% overbygde sykkelparkeringsplasser.
2. Reguleringsplan for Åmotåsen 18.12.2020. Mindre avvik i fasaden
og bod under bakken.
3. Bestemmelser § 2.1.7; Lysmaster på interne veier
4. Bestemmelser § 2.1.8; Parkeringsanlegg er ikke ferdigstilt.
5. Bestemmelsene § 5.2.1 og 5.2.3. Renovasjonsanlegg
6. Bestemmelsene §§ 2.1.9, 3.4.2 og 3.4.4, Bilpoolordning.
Dispensasjonen gis på følgende vilkår:
1. Sykkelparkering med 50% overbygg skal være ferdigstilt innen 30.08.2023.
2. Søknad om dispensasjon skal være godkjent før ferdigattest utstedes.
3. Lysmaster på interne veier skal være ferdigstilt innen 30.09.2023.
4. Parkeringsanlegget skal være ferdigstilt og tilgjengelig for beboere på feltet.
5. Midlertidig løsning for håndtering av avfall skal til enhver tid være i tråd med godkjenning fra avdeling for Miljø og samferdsel.
6. Midlertidig parkering er etablert på feltet – mot rekke B og A
Brukstillatelsen gis på følgende vilkår:
1. Dere har oppgitt at søknad om ferdigattest skal innsendes innen
24.05.2024. Søknad om ferdigattest må innsendes innen denne dato.
2. Det skal til enhver tid være trygg og god ferdsel og bruk av utearelene som er ment for boliger som har mottatt midlertidig brukstillatelse. Det skal være god avgrensing mellom resterende byggplass og areal for boliger som ha mottatt brukstillatelse.
Følgende arbeider må ferdigstilles før ferdigattest:
1. Ferdigstille sykkelparkering inkludert overbygd del.
2. Ferdigstille utomhus og veianlegg
3. Dispensasjon for mindre avvik i fasaden og bod under bakken, skal være godkjent.
4. All gatebelysning skal være etablert.
5. Parkeringsanlegget for BK1 skal være ferdig etablert og klar til bruk.
6. Adkomst til renovasjonsanlegget skal være avklart og ivaretatt.
7. Bilpoolordningen skal være etablert og midlertidig parkering på tidligere riggområde skal være fjernet.
8. Midlertidig parkeringsplasser ved rekke A skal være tilbakeført.
9. Midlertidige sikringer av gangvei ved rekke A skal være vurdert som permanent og evnt. ferdigstilt.
10. H540 – Hensynssone foran rekke B mot Rødsåsen. Kravet til sikring av skrent i hensynssone mot vei og boligene, skal være avklart med etablert sameie for evntuell ytterlig sikring.
11. Hensynssonen H540 skal revegeteres.
Dersom gjenstående arbeider ikke blir utført innen fristen, skal plan- og bygningsmyndighetene gi pålegg om ferdigstillelse, som kan gjennomføres ved sanksjoner, jf pbl § 21-10 tredje ledd siste punktum.
Kjøper overtar alt ansvar, kostnad og risiko for dette videre.
Tinglyste heftelser og rettigheter
Leiligheten overdras fri for pengeheftelser.
Det er tinglyst følgende servitutter på sameiets eiendom:
Dagboknr 999867, tinglyst 08.09.2022, type heftelse: Seksjonering
Dagboknr 222021, tinglyst 01.03.2023, type heftelse: Bestemmelse om nettstasjon.
Sameiet har legalpant for krav mot sameieren som følger av sameieforholdet iht. eierseksjonsloven § 31. Pantet er begrenset oppad til 2G, (G = folketrygdens grunnbeløp).
Servituttene vil følge eiendommen. Kjøpers bank vil få prioritet etter ovennevnte heftelser og servitutter.
Eventuell adgang til utleie
Leiligheten kan leies ut såfremt leiligheten har forsvarlige radonverdier. Leietaker må følge sameiets vedtekter og ordensregler på lik linje som eier.
I henhold til sameiets vedtekter er korttidsutleie av hele boligseksjonen i mer enn 90 døgn årlig er ikke tillatt. Med korttidsutleie menes utleie i inntil 30 døgn sammenhengende.
Diverse
Tilbud av produkter og tjenester fra våre samarbeidspartnere
Vi er opptatt av verdiskapning, og har knyttet til oss samarbeidspartnere som skal sikre våre kunder de beste produkter og tjenester;
• Gjensidige leverer boligselgerforsikring og tilbyr bygningsforsikring
• Boligkjøperforsikring levers av Hiscox og med Sedgwick som skadebehandler, og er formidlet gjennom Gjensidige.
• BN bank tilbyr finansieringsløsninger
• Vår avdeling Krogsveen Pluss tilbyr flyttetjenester som utvask, visningsvask, lager, tømming og transport av flyttelass, i tillegg til å formidle kontakt med Flip for overflateoppussing.
• I forbindelse med overtagelse av eiendommen tilbyr Overo avtale om strøm, alarm og bredbånd.
• Krogsveen er, sammen med øvrige bransjeaktører, medeier i den digitale annonseringsplattformen Hjem.
Beliggenhet og tomteforhold
Beliggenhet og tomteforhold
Beliggenhet
Heggedal Terrasse er beliggende på et solrikt høydedrag med utsikt med kort avstand fra Heggedal sentrum. Området er et rolig, men samtidig opplevelsesrikt boligområde, kjent for sine gode friluftsområder med nærheten til naturen. Den terrasserte bebyggelsen er utformet med en moderne struktur på flere nivåer og bygninger, og legger vekt på gode uteområder, bærekraftige materialer og moderne løsninger, som også gjenspeiles i omgivelsene rundt prosjektet.
Prosjektet legger stor vekt på gode fellesområder med grønne uteplasser, lekeområder og sosiale møteplasser. Her bor du tett på naturen, med turstier og – samtidig som tog og buss gir enkel pendling til Asker og Oslo.
Den sentrale beliggenheten gjør det til et naturlig knutepunkt mellom det nye og det gamle Asker, og kommunen satser aktivt på Heggedal. Sentrum har gjennomgått en omfattende utvikling og har et variert tilbud med butikker, restauranter, kafeer og nødvendige fasiliteter. Det er også bygget ny togstasjon, nytt veisystem, en ny skole og et oppgradert vann- og avløpssystem. I Heggedal møtes naturen, kulturlandskapet og det urbane på en unik måte.
Kun 15 minutters kjøretur befinner du deg i Asker sentrum. Her du har et bredt og variert utvalg av offentlig kommunikasjon, servicetilbud og forretninger. Blant annet kan man finne restauranter, kafeer, kino, bibliotek, teater/konsertsal, treningsstudio og Asker stasjon som anses for å være et knutepunkt i offentlig kommunikasjon. Fra Asker stasjon går det i tillegg til lokal og regions-tog, også flytog. Asker sentrum byr på koselige arkitekturer, gåturer, og spennende kultur- og uteliv.
Adkomst
Se vedlagt kartskisse på nederst i annonsen på Krogsveen.no. Ved å trykke på kartet får du enkelt tilgang til en spesifisert reiserute fra din startdestinasjon til boligen. Det vil bli skiltet med Krogsveen visningsskilt ved fellesvisninger. Velkommen til visning!
Barnehager, skoler og fritid
Skoler:
- Heggedal skole (5 min kjøretur)
- Hovedgården ungdomsskole (14 min med gange)
- Bleiker videregående skole (13 min kjøretur)
- Asker videregående skole (13 min kjøretur)
Barnehager:
- Vikingjordet barnehage Åmotåsen (5 min med gange)
- Kistefossdammen barnehage (6 min med gange)
- Heggedalskogen barnehage (22 min med gange)
Beskrivelse av tomt
Eiertomt på 27 365 kvm som tilhører sameiet. Tomten er fellesareal. Felles tomt for sameiet opparbeidet med blant annet asfalterte internveier, parkeringsplasser, gressplen, trær, prydbusker og diverse beplantning.
Utgang fra stue/kjøkken til en nord vendt altan.
Utgang fra entré til syd-vendt steinlagt platting.
Tilgang fra trapp i 1.etasje til en solrik takterrasse på ca 40 kvm.
Eiendommen har svært gode solforhold. Det er sol på eiendommen fra tidlig på morgningen til kl 22 ifølge selger.
Parkering
Seksjonseier disponerer to stk. parkeringsplasser i sameiets garasjeanlegg med én el-bil lader. Plass nummer 61 med el-bil lader og plass nummer 51.
Vei, vann og avløp
Eiendommen har adkomst via privat vei med felles vedlikeholdsansvar.
Eiendommen er tilknyttet kommunalt ledningsnett via private stikkledninger. Eier er selv ansvarlig for private stikkledninger til boligen.
Regulerings-og arealplaner
Eiendommen er regulert til konsentrert småhusbebyggelse i henhold til reguleringsplan Åmotåsen datert 02.02.2021 med tilhørende reguleringsbestemmelser.
Eiendommen ligger også i område for kommuneplanens arealdel iht. Kommuneplan for Asker 2023-2035.
Utsnitt av plan med tilhørende bestemmelser kan fås ved henvendelse til megler.
Økonomi
Økonomi
Boligens kostnader
Kommunale avgifter er kr 11 659,- for 2024. I dette inngår gebyr for vann og avløp.
Fellesutgiftene er kr 3 206,- pr. mnd. og inkluderer: Vaktmester (måking/feiing), renovasjon, felles bygningsforsikring, utendørs belysning,forretningsførsel, revisjon, grunnpakke TV/bredbånd, og andre driftskostnader.
Felleskostnadene blir fordelt slik:
- Felleskostnader kr 1.417,- pr. md.
- Kabel-TV kr 399,- pr. md.
- Parkering a 500,- kr 1.000,- pr. md.
- Felleskostnader flat fordeling kr 390,- pr. md.
Fellesutgiftene justeres normalt en til to ganger årlig i forhold til sameiets faktiske utgifter. Det tas forbehold om at felleskostnadene kan justeres fortløpende pga renteøkninger.
Nåværende eier har et strømforbruk som tilsvarer ca. kr ,- 15 730pr. år. / 14 890 kwh. pr. år.
Boligen er tilknyttet Telenor som leverandør av TV og internett, og betales i felleskostnadene. Tv-tuner/dekoder medfølger.
Boligen er ikke tilknyttet alarmselskap.
Utgiftene er basert på nåværende eiers forbruk. Kjøper må selv tegne innboforsikring.
Formuesverdi
Formuesverdi for 2023 var kr 1 731 446,- ifølge skatteetaten. Beløpet forutsetter at eier bor fast i boligen (primærbolig).
Ved eventuell øvrig bruk av eiendommen (f.eks. fritidsbolig, pendlerbolig, utleieobjekt) var formuesverdien for 2023 kr 6 925 783,-.
Formuesverdien justeres normalt årlig. Se skatteetaten.no for mer informasjon om fastsettelse av formuesverdien.
Opplysninger om fellesgjeld
Det er ikke felles lån i sameiet.
Omkostninger
6 990 000,00 Prisantydning
Omkostninger
174 750,00 Dokumentavgift til staten (2,5% av kjøpesum)
9 950,00 Gjensidige Boligkjøperpakke (valgfri)* (valgfritt)
545,00 Tinglysing panterettsdokument
545,00 Tinglysing skjøte
--------------------------------------------------------
175 840,00 Omkostninger totalt (uten Gjensidige Boligkjøperpakke (valgfri))
185 790,00 Omkostninger totalt (med Gjensidige Boligkjøperpakke (valgfri))
--------------------------------------------------------
7 165 840,00 Totalpris inkl. omkostninger
7 175 790,00 Totalpris inkl. omkostninger (med Gjensidige Boligkjøperpakke (valgfri))
--------------------------------------------------------
Dersom sameiet har fellesgjeld, vil leilighetens andel av fellesgjelden komme i tillegg til kjøpesummen. Denne gjelden skal ikke innbetales i oppgjøret, men følger leiligheten.
Totalpris inkl. omkostninger forutsetter kjøp til prisantydning.
Det tas forbehold om endringer i avgifter og gebyrer.
Tilbud om lånefinansiering
Megler formidler gjerne kontakt med rådgiver hos vår samarbeidspartner BN Bank. De har konkurransedyktige betingelser samt rask og løsningsorientert behandling av din lånesøknad. Krogsveen mottar et honorar for denne formidlingen.
Betalingsbetingelser
Kjøpesum inkludert omkostninger, samt pantedokument tilknyttet eventuelt lån, skal være disponibelt hos megler 2 virkedager før overtagelsen.
Annen viktig informasjon
Annen viktig informasjon
Eier
Vetle Bergersen Moe og Marie Bergersen Moe
Informasjon om sameiet
Sameiet er et kombinert sameie som består av 157 boligseksjoner og 1 næringsseksjon for parkering i eiendommen gnr. 79, bnr. 87 i Asker kommune.
Forretningsfører er OBOS Eiendomsforvaltning AS.
Sameiets parkeringsplasser er seksjonert i en egen næringsseksjon nr. 158. Parkeringsplasser eies av seksjonseiere i eierseksjonssameiet. Usolgte plasser eies av utbygger Beliggenhet Holding AS og tilhørende datterselskaper. En parkeringsplass kan kun selges eller leies ut sammen med boligseksjonen eller til andre seksjonseiere i eierseksjonssameiet unntatt utbygger som i en overgangsperiode kan leie ut usolgte plasser til personer utenfor sameiet.
Dugnad må påregnes.
Dyrehold er tillatt.
Økonomi:
Regnskapet viser et overskudd for 2023 på Kr 855 236,- mot et budsjettert overskudd på Kr 422 800,-.
Sameiets egenkapital utgjør per 31.12.2023: Kr 855 236,-.
Fremtidige planer:
- Maling av utvendig fasade om 4-5 år.
- Serviceavtaler er og blir inngått.
Iht. sameiets vedtekter må kjøper godkjennes av styret som ny sameier. Det er kjøpers ansvar at styregodkjenning blir gitt, men styret kan ikke nekte godkjenning uten saklig grunn.
Vi gjør videre oppmerksom på at det iht. eierseksjonsloven ikke er anledning å erverve mer enn 2 seksjoner i sameiet, her teller også eierskap via. firma, nærstående og familie. Kjøper har risikoen for at overskjøting på denne bakgrunn kan nektes av Statens Kartverk. I så fall vil kjøper uansett være forpliktet til å gjennomføre handelen, og oppgjør til selger vil finne sted tross manglende overskjøting. Konferer med megler for mer informasjon.
Dokumenter for sameiet og kopi av seksjonsbegjæringen kan fås ved henvendelse til megler.
Overtakelse
Etter nærmere avtale.
Boligselgerforsikring
Selger har i forbindelse med salget tegnet boligselgerforsikring levert av Gjensidige.
Boligselgerforsikringen dekker selgers ansvar etter avhendingsloven begrenset oppad til kr 14 millioner. Dersom kjøper oppdager forhold ved eiendommen som hen mener utgjør en mangel ved eiendommen, vil Gjensidige behandle reklamasjonen på vegne av selger. Forsikringsvilkår kan fås ved henvendelse til megler.
Vedlagt salgsoppgaven følger selgers egenerklæringsskjema og tilstandsrapport. Interessenter må sette seg inn i dokumentene før bud inngis.
Boligkjøperforsikring
Innen kontraktsmøtet må kjøper ta stilling til om det ønskes å bestille Boligkjøperpakken gjennom Gjensidige. I denne gunstige pakken er boligen ferdig forsikret og inkluderer rettshjelpsforsikring, også kalt Boligkjøperforsikring. Rettshjelpsforsikring gir trygghet og tilgang på profesjonell juridisk hjelp dersom det oppdages uventede feil eller mangler det første året etter overtagelse. Forsikringsselskapet behandler i så fall ethvert mangelskrav kjøper måtte ha overfor selger.
Boligkjøperpakken inkluderer bygningsforsikring for hus og hytte, innboforsikring, flytteforsikring og dobbel rentedekning - i situasjoner hvor kjøper ikke får solgt nåværende primærbolig.
Kjøper mottar ingen særskilt faktura for Boligkjøperpakken da kostnaden det første året legges til kjøpesummen for boligen. Det gjøres oppmerksom på Krogsveen mottar et honorar for denne formidlingen.
Produktark for Boligkjøperpakken ligger vedlagt i salgsoppgaven.
Dersom ikke boligkjøperpakke ønskes kan kun rettshjelpsforsikring, også kalt boligkjøperforsikring, tegnes særskilt via megler. Rettshjelpsforsikringen varer i 5 år fra overtagelse og leveres gjennom Gjensidige. Ta kontakt med megler for ytterligere informasjon.
Selskap og privatpersoner som driver med kjøp/salg/utvikling som ledd i egen næringsvirksomhet kan ikke tegne boligkjøperpakke eller rettshjelpsforsikring.
Budgivning
Forbrukerinformasjon om budgivning er vedlagt denne salgsoppgaven og er også på vår hjemmeside Krogsveen.no. Alle bud og budforhøyelser må inngis skriftlig. I tillegg må legitimasjon være fremlagt sammen med signatur fra budgiver.
Vi oppfordrer til å gi bud elektronisk via GI BUD-knappen på eiendommens hjemmeside på Krogsveen.no. Da vil samtlige vilkår bli oppfylt.
Eventuelle forhøyelser eller endringer av budet kan bekreftes pr SMS eller på e-post. Vi oppfordrer alltid til å kontakte megler pr. telefon i tillegg da forsinkelser i SMS og e-post kan forekomme.
For at budene skal kunne bli behandlet og videreformidlet skriftlig til alle involverte parter, må alle bud ha en tilstrekkelig lang akseptfrist, jf. eiendomsmeglingsforskriften § 6-3.
Selger må også skriftlig akseptere budet før aksept kan formidles til budgiver. Akseptfrist bør derfor være på minimum 30 minutter, og budforhøyelser må derfor skje i god tid før fristens utløp.
Bud i forbrukerforhold kan uansett ikke settes med kortere frist enn kl. 12.00 første virkedag etter siste annonserte visning. I tillegg kan ikke budet ha forbehold om at det skal holdes hemmelig ovenfor øvrige interessenter. Megler har iht lov om eiendomsmegling ikke anledning til å videreformidle disse budene, og de vil dermed heller ikke bli journalført.
Etter at eiendommen er solgt vil kjøper og selger få tilsendt budjournal. Øvrige budgivere kan få utlevert kopi av budjournalen i anonymisert form.
Hvitvaskingsreglene
I henhold til lov om hvitvasking og terrorfinansiering har megler plikt til å gjennomføre kontrolltiltak overfor kunder, herunder fullmektiger. Dette innebærer bl.a. å bekrefte kunders og reelle rettighetshaveres identitet på bakgrunn av fremvist gyldig legitimasjon eller på annen godkjent måte, samt å innhente opplysninger om kundeforholdets formål og tilsiktede art.
Dersom slike kundetiltak ikke kan gjennomføres, kan megler ikke etablere kundeforholdet eller utføre transaksjonen.
Hvis kjøper ikke bidrar til gjennomføring av kundekontrollen og dette fører til at transaksjonen blir forsinket eller ikke kan gjennomføres, vil dette ansees som mislighold av avtalen og gi selger rettigheter etter avhendingslova kapittel 5. I tilfeller der selger ikke bidrar til gjennomføring av løpende kundekontroll underveis i oppdraget, er det selger som misligholder sine forpliktelser etter avtalen og gi kjøper rettigheter etter avhendingslovens kapittel 4. Partene er selv ansvarlige for eventuelle kostnader og ansvar dette kan medføre. Eiendomsmegleren eller eiendomsmeglingsforetaket kan ikke holdes ansvarlig for de konsekvenser dette vil kunne få for partene eller andre som har interesser i eiendomshandelen.
Kjøper oppfordres til å innbetale kjøpesummen som ikke kommer fra låneinstitusjon i én samlet innbetaling fra egen konto i norsk bank. Megler har plikt til å melde fra til Økokrim om eiendomshandler som fremstår som mistenkelige. Melding sendes Økokrim uten at partene varsles.
Personopplysningsloven
I henhold til personopplysningsloven gjør vi oppmerksom på at interessenter kan bli registrert for videre oppfølging.
Lovanvendelse
Generelle bestemmelser
Salgsoppgaven er basert på de opplysningene selger har gitt til megler, den bygningssakyndiges tilstandsrapport, samt opplysninger innhentet fra kommunen, Kartverket og andre tilgjengelige kilder. Det er viktig at kjøper setter seg grundig inn i alle salgsdokumentene, herunder salgsoppgave, tilstandsrapport og selgers egenerklæring. Kjøper anses kjent med forhold som er tydelig beskrevet i salgsdokumentene, og slike forhold kan ikke påberopes som mangler. Dette gjelder uavhengig av om kjøper har lest dokumentene. Alle interessenter oppfordres til å undersøke eiendommen nøye, gjerne sammen med fagkyndig før bud inngis. Kjøper som velger å kjøpe usett kan ikke gjøre gjeldende som mangel noe han burde blitt kjent med ved undersøkelsen.
Dersom det er behov for avklaringer, anbefaler vi at interessenter rådfører seg med eiendomsmegler eller egne rådgivere før det legges inn bud.
En bolig som har blitt brukt i en viss tid, har vanligvis blitt utsatt for slitasje og skader kan ha oppstått. Slik bruksslitasje må kjøper regne med, og det kan avdekkes enkelte forhold etter overtakelse som nødvendiggjør utbedringer. Normal slitasje og skader som nødvendiggjør utbedring, er innenfor hva kjøper må forvente og vil ikke utgjøre en mangel.
Kjøper og selgers rettigheter og plikter reguleres av avtalen mellom partene, samt informasjonen som har vært tilgjengelig for kjøperen i forbindelse med handelen. Avtalen utfylles av avhendingsloven, og det gjelder ulike avtalevilkår avhengig av om kjøper er forbrukerkjøper eller ikke. Dette er nærmere beskrevet nedenfor.
På grunn av ulike avtalevilkår kan selger vurdere bud fra en som ikke er forbruker, ulikt fra en forbrukers bud. Dersom kjøper ikke er forbruker, er selger sitt mulige mangelsansvar begrenset fordi eiendommen selges "som den er". Selger kan ikke ta «som den er»- forbehold overfor en forbrukerkjøper. Selv et lavere bud fra en som ikke er forbruker kan foretrekkes fordi begrensningen i mulig mangelsansvar kan ha egenverdi for selger. Selger står fritt til å forkaste eller akseptere ethvert bud, og er for eksempel ikke forpliktet til å akseptere høyeste bud.
Budgiver skal i budskjema avgi egenerklæring om budgiver er forbruker eller næringsdrivende/ person som hovedsakelig handler som ledd i næringsvirksomhet. Budgivere får informasjon dersom andre bud er inngitt av en som ikke er forbruker.
Forbrukerkjøp - definisjon
Med forbrukerkjøp menes kjøp av eiendom når kjøperen er en fysisk person som ikke hovedsakelig handler som ledd i næringsvirksomhet.
Forbruker – avtalevilkår
Eiendommen har en mangel dersom den ikke er i samsvar med kravene som følger av avtalen, eller det foreligger brudd på bestemmelsene i avhendingsloven §§ 3-2 til 3-8. Hvis eiendommen ikke er i samsvar med det kjøperen må kunne forvente ut ifra alder, type og synlig tilstand, kan det være grunnlag for mangelskrav. Det samme gjelder hvis det er holdt tilbake eller gitt uriktige opplysninger om eiendommen. Dette gjelder likevel bare dersom man kan gå ut ifra at det virket inn på avtalen at opplysningen ikke ble gitt eller at mangelskravet ikke blir rettet i tide på en tydelig måte.
Boligen kan ha en mangel etter avhendingsloven § 3-3 andre ledd, dersom det er avvik mellom opplyst og faktisk innvendig areal, forutsatt at avviket er på 2% eller mer og minimum 1 kvm.
Ved beregning av et eventuelt prisavslag eller erstatning må kjøper selv dekke tap/kostnader opptil et beløp på kr 10 000 (egenandel).
Ikke-forbruker (næringsdrivende) – definisjon
Hvis kjøper er en juridisk person, eller en fysisk person som hovedsakelig handler som ledd i næringsvirksomhet, vil kjøpet ikke anses som et forbrukerkjøp.
Ikke-forbruker – avtalevilkår
Eiendommen har en mangel dersom den ikke er i samsvar med kravene som følger av avtalen.
Eiendommen selges «som den er», og selgers ansvar utover det konkret avtalte er da begrenset etter avhendingsloven § 3-9, første ledd andre setning.
Avhendingsloven § 3-3 andre ledd fravikes, og hvorvidt boligens arealsvikt utgjør en mangel vurderes etter avhendingsloven § 3-8.
Informasjon om kjøpers undersøkelsesplikt, herunder oppfordringen om å undersøke eiendommen nøye, gjelder også for kjøpere som ikke anses som forbrukere.
Det forutsettes at hjemmel overføres til kjøper. Hvis kjøper ikke ønsker hjemmelsoverføring av eiendommen, må det tas forbehold om dette i budet.
Meglers vederlag
Meglers vederlag betales av selger og er avtalt til:
Vederlag: 0,7% av salgssummen.
Tilrettelegging fra kr 17.000,-
Oppgjør: kr 7.500,-
Markedspakke: kr 28.250,-
Visninger: kr 2 500,- pr. visning
Oppslag eiendomsregister: kr 2.900,-
Megler har i tillegg krav på dekning av følgende utlegg:
Eierskiftegebyr forretningsfører: kr 6.570,-
Innhenting av informasjon forretningsfører: kr 4.400,-
Innhenting av offentlig opplysninger Asker kommune: kr 4.171,-
Tinglysing sikring: 545,-
Boligselgerforsikring: kr 34 255,-
Foto + drone + kveldsfoto: kr 9.290,-
Tilstandsrapport: kr 19.950,-
Opplysninger om oppdraget
Oppdragsnummer 15-0031/25
Eiendomsmegler Krogsveen AS, avd. Asker
Torvveien 1, 1383, ASKER
950 007 613
Oppdragets KR-kode KR15.2531
Dato
Sist oppdatert: 03. mai 2026 kl. 17:04
Dokumenter
Dokumenter
PDF – 374 KB
PDF – 655 KB
PDF – 409 KB
PDF – 10 MB
PDF – 312 KB
PDF – 29 KB
PDF – 127 KB
PDF – 392 KB
Område
Legg til steder som er viktige for deg
Visning
For å delta på visning, ber vi om at du melder deg på. Da sikrer vi at du får nødvendig informasjon og at det er satt av tilstrekkelig med tid. Kontakt megler dersom annet tidspunkt ønskes. Husk å lese salgsoppgaven før visningen, så du stiller forberedt.
Ønsker du kun å bli holdt orientert, kan du fra eiendommens hjemmeside få varsel om solgtpris, eller kontakte megler.
Lurer du på noe?
Unngå doble boligrenter
Vi tilbyr gunstig forsikring.
Vurderer du utleie?
Få et tilbud fra Utleie KrogsveenHva koster lånet?
Sjekk estimert lånekostnadVil du varsles om lignende boliger?
Ved å lagre ditt boligsøk hos oss får du beskjed når vi har en bolig som ligner denne, før den legges ut på markedet!























































