Garverenga 12
4 500 000 kr
226 m²
2 soverom
Komplett salgsoppgave

HAGA
Romslig enebolig med innredet underetasje på stor tomt – nær tog!
Prisantydning
4 500 000 krOmkostninger
133 490 krTotalpris
4 633 490 kr
Pris
Bruksareal
226 m²BRA-I (internt bruksareal)
226 m²TBA (terrasse-balkongareal)
32 m²
Areal
Etasje
2Byggeår
1950Soverom
2 soveromBad
1 badTomteareal
1 367 m² (eiet)Type
Enebolig - FrittliggendeEierform
EietFasiliteter
Balkong/TerrasseEnergimerke
Oransje G
Nøkkelinfo
Unngå doble boligrenter
Vi tilbyr gunstig forsikring.
Vurderer du utleie?
Få et tilbud fra Utleie KrogsveenHva koster lånet?
Sjekk estimert lånekostnadBeskrivelse
Kort om eiendommen
Velkommen til Garverenga 12 – en romslig enebolig med sokkeletasje, med to innganger. Innredning av kjelleretasjen - det er søkt bruksendring av rom i underetasjen. Rommene i dag er ikke godkjent til varig opphold (se punkt under ferdigattest/brukstillatelse).
Eneboligen består i første etasje av inngangsparti, stue, spisestue, kjøkken, to soverom, bad og bod. Underetasjen er innredet med 2 soverom, 2 bad, 2 stue/ kjøkken.
Uteområdet byr på stor boltreplass med både hage og terrasse, omgitt av vakre omgivelser. Eiendommen har også rikelig med biloppstillingsplasser på gruset gårdsplass.
Svært praktisk gangavstand til tog på Haga – kun 43 minutter til Oslo!
Innhold og byggemåte
Innhold og byggemåte
Eiendommen
Garverenga 12, 1929 AULI
Kommunenummer 3228, gårdsnummer 199, bruksnummer 47
Innhold
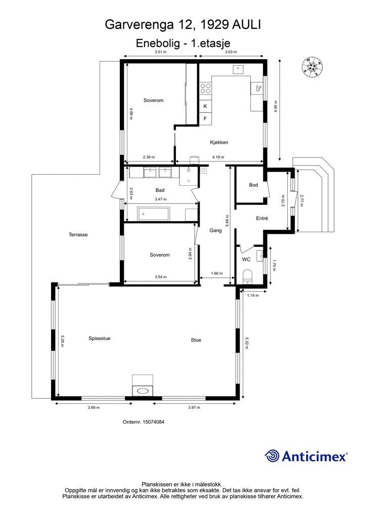
Totalt bruksareal BRA: 226 kvm
BRA-i:
Enebolig :
Kjeller: 104 kvm: Innredet del 1 (søkt bruksendring, vedtak foreligger) med baderom, kjøkken, stue, soverom og bod. Innredet del 2 (søkt bruksendring, vedtak foreligger) med entré, baderom, kjøkken, stue, soverom og bod.
1. etasje 122 kvm: Entré, kjøkken, spisestue, stue, gang, 2 soverom, baderom og bod.
Åpent areal:
Enebolig :
1. etasje 32 kvm: Terrasse.
Vedlagte plantegninger er ikke målbare. De oppgitte arealer er hentet fra rapport med befaringsdato 20.08.2025 utført av Anticimex AS. Arealene er beregnet og rom er definert etter dagens faktiske bruk, uavhengig av hva som er godkjent av bygningsmyndighetene. Se punkt under ferdigattest/ brukstillatelse.
Byggemåte
Selger har fått utarbeidet en tilstandsrapport, dvs. en teknisk gjennomgang av boligen hvor eventuelle avvik, risiko for kjøper og prisoverslag for hva som bør gjøres av oppgradering, er skissert. Se særskilt TGIU (tilstandsgrad ikke undersøkt), samt TG2 og TG3 som viser hva som er boligens normale slitasje, alder og type, hva som er avvik fra dette og hva som bør/må utbedres. Rapporten og selgers egenerklæring er en del av salgsoppgaven og må leses nøye før bud inngis. Kjøper overtar ansvaret for de opplysninger som fremkommer av salgsdokumentasjonen, og kan ikke gjøre gjeldende som mangel noe som burde vært kjent eller som ikke kan anses å ha betydning for avtalen.
Bygningen er iht. tilstandsrapporten oppført i tre. Les forøvrig mer om byggemåte og den tekniske tilstanden i rapporten.
Følgende bygningsdeler har fått TG2 (vesentlig avvik) i tilstandsrapporten:
Våtrom - Baderom Leilghet A:
- Overflater gulv: Det ble observert stedvis "bom" i gulvfliser (tegn til hulrom), spesielt under vegghengt toalett og på venstre side av innredning. Dette kan innebære at fliser har manglende vedheft til underlaget.
- Fallforhold (gulv): Høydeforskjell fra gulv ved senter dør til gulvoverflater utenfor dusjhjørne ble målt til 0 mm. 7 mm til slukrist. Lekkasjevann fra installasjoner utenfor dusjsonen skal ha mulighet til å nå sluk. Det vil ved en eventuell vannlekkasje fra installasjoner utenfor dusjhjørne derfor være fare for vannansamling, før lekkasjevannet kan nå sluk/avløp.
- Slukets plassering i forhold til at vann utenfor dusjsonen kan nå det: Sluket er "isolert" grunnet kant mot dusjhjørne helt nedtil gulvoverflater og vannsøl/lekkasje fra annet sted i rommet utenfor dusjhjørne vil derfor ikke kunne komme til avrenning i sluk/avløp.
- Sanitærutstyr / innredning: Det er ikke anordning (spalte under vegghengt toalett) slik at eventuelt lekkasjevann fra innebygget sisterne kan oppdages tidlig. Kassett eller hulrom må ha overløp inn i rommet slik at lekkasjevann kan synliggjøres. Til informasjon har leverandør teknisk godkjenning for fuktsikring via "poseløsning". Korrekt utførelse må likevel kunne dokumenteres, da monteringsfeil ofte er en utbredt årsak til lekkasjer.
Våtrom - Baderom Leilighet B:
- Overflater vegger: Våtrommets reisverk/underkledning er bygget opp med OSB-plater. Disse platene er de minst egnede platene til å benytte på våtrom, da de har den høyeste følsomheten i forhold til luftfuktighet og levetiden vil derfor være redusert.
- Fallforhold (gulv): Høydeforskjell fra topp slukrist til topp gulvoverflate ved dørterskel er mindre enn 25 mm. Høydeforskjellen ble målt til 1/8 mm fra gulv ved dør til gulv ved sluk. 1 mm til gulv utenfor dusjhjørne og 8 mm til slukrist. Til informasjon har våtrommet også fall fra gulv i senter døråpning og mot entre, slik at det er vurdert til å ikke være tilfredsstillende med hensyn til lekkasjesikkerhet.
- Vannrør: TG 2 gjelder fordelerskap for rør i rør system som er montert innenfor veggliv, uten fuktsikring mot bindingsverk/underkledning. Ved en eventuell lekkasje vil vann kunne ledes bak våtromsplater (gjeldende membransjikt).
- Sanitærutstyr / innredning: Det er ikke anordning (spalte under vegghengt toalett) slik at eventuelt lekkasjevann fra innebygget sisterne kan oppdages tidlig. Kassett eller hulrom må ha overløp inn i rommet slik at lekkasjevann kan synliggjøres. (Synlig spalte er fra fordelerskap). Til informasjon har leverandør teknisk godkjenning for fuktsikring via "poseløsning". Korrekt utførelse må likevel kunne dokumenteres, da monteringsfeil ofte er en utbredt årsak til lekkasjer.
- Annet: Det ble på befaringstidspunkt registrert 1 skjeggkre i sluk.
Kjøkken - Kjøkken Hoveddel:
- Vannrør: Det er ikke montert automatisk lekkasjestopper for å begrense eventuelle lekkasjer fra vanninstallasjoner.
Kjøkken - Kjøkken Leilighet A:
- Overflater gulv: Det registreres lokal svikt i gulvoverflater, ved åpning mot stue (skjøt nærmest høydetrapping). Tiltak er vurdert til å være nødvendige.
- Vannrør: Det er ikke montert automatisk lekkasjestopper for å begrense eventuelle lekkasjer fra vanninstallasjoner.
Kjøkken - Kjøkken Leilighet B:
- Vannrør: Det er ikke montert automatisk lekkasjestopper for å begrense eventuelle lekkasjer fra vanninstallasjoner.
Toalettrom (Ikke våtrom) - W.c Hoveddel:
- Overflater gulv: TG 2 gjelder kun hull i gulvbelegg etter tidligere installasjon.
Øvrige rom:
- Overflater gulv: TG 2 gjelder sprekker i enkelte av gulvflatenes sammenføyninger (skjøter) samt stedvis omfattende knirk i gulvoverflater. Tiltak er vurdert til å være nødvendige.
- Innerdører: Innerdører bærer preg av slitasje. Tiltak kan iverksettes ved behov.
Rom under terreng (kjeller, underetasje, sokkeletasje) :
- Overflater gulv: TG 2 gjelder lokal svikt i enkelte gulv samt lokal knirk i gulvoverflater. Tiltak kan iverksettes ved behov.
- Konstruksjoner (tilfarergulv, himling og vegger).: Vegger i U.etasje er stedvis utlektede fra grunnmuren. Ut fra utførelse vurderes denne løsningen å ha en fuktrisiko selv om synlige skader ikke er observert. Risikoen baseres på materialenes egnethet under terreng (organiske materialer). Til informasjon er det foretatt hulltaking og utført fuktmåling med egnet instrument av typen Protimeter MMS 2, i yttervegg ved gardeobeskap på soverom i leilighet B. Det ble ikke registrert forhøyede verdier eller andre avvik. Målingene viser følgende: RF 53 % (relativ luftfuktighet - mengde vanndamp luften inne i vegg/konstruksjon inneholder, angitt i prosent), temperatur 23,0 grader C (temperatur på luft inne i vegg, for denne målingen) og duggpunkt 13,0 grader C (gitt temperatur hvor vanndamp i luften inne i vegg/konstruksjon vil omdannes til kondens/fritt vann).
Loft - uinnredet / råloft:
- Overflater vegger/undertak: Det ble observert synlige lysglimt utenfra ved vegg mot loft over stue. Vindsperre er derfor stedvis manglende. Utbedrende tiltak må derfor påregnes.
Etasjeskiller - 1.etasje:
- Skjevhetsmåling: Det er målt skjevheter i gang og i spisestue/stue utover 10 millimeter innenfor 2 meter. Det gis derfor TG 2. Forskjellen mellom høyeste og laveste punkt er målt til 11 mm i gang og 27 mm i spisestue/stue. Målingene er foretatt i en eldre bygning og bør ses i den sammenheng. Skjevheter er mer påregnelige i eldre bygninger enn i nye.
Etasjeskiller - U.etasje:
- Skjevhetsmåling: Det er målt skjevheter i etasjens bredderetning i stue i leilighet A utover 10 millimeter innenfor 2 meter. Det gis derfor TG 2. Forskjellen mellom høyeste og laveste punkt er målt til 16 mm. Målingene er foretatt i en eldre bygning og bør ses i den sammenheng. Skjevheter er mer påregnelige i eldre bygninger enn i nye. Forøvrig ingen merknader i den andre retningen av rommet som er målt.
Tekniske anlegg, VVS anlegg (Sjekkpunkter utover det som er inkludert i andre rom):
- Vannrør (Sjekkpunkter utover det som er inkludert i andre rom): TG 2 gjelder fordelerskap for rør i rør system som er montert innenfor veggliv, uten fuktsikring mot bindingsverk/underkledning. Ved en eventuell lekkasje vil vann kunne ledes bak våtromsplater (gjeldende membransjikt).
- Avløpsrør. (Sjekkpunkter utover det som er inkludert i andre rom): TG 2 gis på resterende avløpsrør (under såle) av eldre type som er vurdert til å være passert med mer enn 50% av anbefalt brukstid og av den grunn heftes det usikkerhet til restlevetiden. På bakgrunn av alderen er det grunn til å varsle om risiko for skjulte avvik, svekket funksjon, usikker restlevetid eller lignende forhold som utvikles over tid.
Elektrisk anlegg - El-anlegg:
- Forenklet vurdering av det elektriske anlegget: Det er kun fremlagt samsvarserklæring på deler av utførte arbeider på det elektriske anlegget (tilstandsgrad settes i henhold til NS3600).
Yttervegger inkl. fasader og konstruksjon:
- Fasader ink. kledning: Utvendig kledning bærer stedvis preg av aldring/lokal slitasje. Utbedrende tiltak kan ikke utelukkes.
Dører og vinduer:
- Vinduer: Vinduer er av eldre type og har ikke den tetthet og isolerende funksjon som dagens vinduer har. Gjenværende restlevetid anses derfor å være redusert/usikker. Utskiftning må påregnes. Til informasjon ble det utført stikkprøvekontroll på enkelte vinduer, hvor åpne/lukkefunksjon fungerte som forventet.
- Dører: TG 2 gjelder terrassedører og entredør i hoveddel. Dører er av eldre type og har ikke den tetthet og isolerende funksjon som dagens dører har. Gjenværende restlevetid anses derfor å være redusert/usikker. Utskiftning må påregnes.
Balkonger, terrasser, veranda etc:
- Helhetsvurdering: Terrasse har skjevheter. Rekkverkshøyden er i tillegg under 1,0 meter. Avvik fra dagens gjeldende byggteknisk forskrift. Utbedrende tiltak må påregnes.
Grunnmur, fundamenter:
- Annet: Det opplyses at fundament/såle har enkelte riss/sprekker.
Drenering:
- Helhetsvurdering: Dreneringens tilstand har påvirkning på boligens bruksområder og bygningstekniske tilstand. Drenering er nedgravd og skjult, og av den grunn må estimert tilstand vurderes ut fra bl.a. alderen på drenssystemet. Estimert teknisk levetid på drenssystem har et betydelig sprang, og er mellom 20 - 60 år. Det viser at det ikke er en enkel vurdering og mange forhold kan ha innvirkning. Det avhenger blant annet av byggegrunnens beskaffenhet. Dreneringen i denne bygningen er utbedret ved egeninnsats, uten at det er fremlagt dokumentasjin for utførelsen. Utvendig fuktsikring av grunnmur er også stedvis vurdert til å ikke være tilfredsstillende. Til informasjon er det foretatt hulltaking og utført fuktmåling med egnet instrument av typen Protimeter MMS 2, i yttervegg ved gardeobeskap på soverom i leilighet B. Det ble ikke registrert forhøyede verdier eller andre avvik. Målingene viser følgende: RF 53 % (relativ luftfuktighet - mengde vanndamp luften inne i vegg/konstruksjon inneholder, angitt i prosent), temperatur 23,0 grader C (temperatur på luft inne i vegg, for denne målingen) og duggpunkt 13,0 grader C (gitt temperatur hvor vanndamp i luften inne i vegg/konstruksjon vil omdannes til kondens/fritt vann). Ytterligere undersøkelser anbefales for å vurdere eventuelle tiltak.
Stikkledninger og tanker:
- Vann- og avløpsledninger (ink. stikkledninger): Vann og avløpsledninger i grunnen har en alder som tilsier at mer enn 50% av anbefalt brukstid er passert. Det tilsier at gjenværende restlevetid er usikker. Tilstandsgrad er satt ut fra alder og materialvalg. Oppfølging med jevnlig ettersyn anbefales slik at eventuelle tiltak kan iverksettes ved behov.
Følgende bygningsdeler har fått TG3 (store eller alvorlige avvik) i tilstandsrapporten:
Våtrom - Baderom Hoveddel:
- Helhetsvurdering: TG 3 er valgt på hele våtrommet på grunn av slukets høye alder og generelt høy slitasjegrad både på gulv, vegger og for tekniske installasjoner. På befaringstidpunkt ble i tillegg følgende avvik registrert. Gulvflater har knirk. Gulvbelegg har flere uheldige og utettede gjennomføringer i gulv for vann og avløpsrør. Kostnader for utbedrende tiltak må derfor påregnes innen relativt kort tid. Det er på bakgrunn av registrerte avvik ikke gjennomførte hulltaking/fuktmåling da våtrommet er i behov av total fornying. Tilstanden inne i konstruksjonen er ikke kjent, men det ble utført et overflatesøk med fuktindikasjonsinstrument av typen Protimeter MMS 2. Det ble ikke oppdaget negative avvikende forhold som kan tolkes til fuktskade. Fuktsøk ble utført i våtsone (bak dusjkabinett).
Yttertak - Hovedtak:
- Helhetsvurdering: Taktekkingen bærer preg av høy alder. Slitasjegraden på taktekkingen (inkl. undertak og lekter samt beslag) er slik at det vurderes at tekkingen har passert anbefalt brukstid. Dette begrunnes med taktekkingens alder. Det ble i tillegg observert stedvise mosedekkede felter på taktekking. Takflater bør rengjøres. Restlevetiden er derfor svært usikker.
Se supplerende tekst i tilstandsrapporten. Kjøper overtar ansvar og risiko for dette.
Videre opplyser selger om i egenerklæringsskjemaet:
- Er det utført arbeid på bad, vaskerom eller toalettrom? Ja, nye vann- og avløpsrør. (Utført av Ivent AS, selgers firma)
- Er det utført arbeid på tak? Ja, vask av takshingel. (Utført av Ivent AS, selgers firma)
- Er det utført arbeid på det elektriske anlegget? Ja, Nytt elektrisk anlegg for hele huset, 230V 3-fase IT-system. Nytt sikringsskap inne og ute. Hovedstrømkabelen ligger nå i bakken. (Utført av Elektro Gierszewski).
- Er det eller har det vært nedgravd oljetank på eiendommen? Ja, vi vet at den ligger i bakken, og så vidt vi vet fra forrige eier, var den tom.
- Er det utført arbeid på varmeanlegg eller ventilasjonsanlegg? Ja, nytt ventilasjonssystem i hele huset, nye radiatorer rundt i huset. (Utført av Ivent AS, selgers firma)
- Er det tegn på setningsskader eller sprekker i for eksempel grunnmur eller fliser? Ja, det er 2-3 sprekker i grunnmuren.
- Har du bygd på eller gjort om kjeller, loft eller annet til boligrom? Ja, første leilighet i kjelleren. Renovering av eksisterende enhet. (Utført av Ivent AS, selgers firma)
- New water pipes and new waste pipes. Ivent AS. Utført i 2020.
- Washing of the shingels. Ivent AS. Utført i 2024.
- Removed old drainage system, painting walls with bitumen waterproofing. Put on dimple membrane and XPS insulation boards. Put in 110mm perforated drainage pipe. Pipe covered in fiberduk and fill out with drainage gravel. Ivent AS. Utført i 2019.
- New electric system for the whole house 230V 3fazes IT. New Fuse box in and outside the house. Maine power wire is in the ground now. Elektro Gierszewski. Utført 2024.
- New waste pipes. Ivent AS. Utført 2020.
- Er det eller har det vært nedgravd oljetank på eiendommen? We know it is in the ground and it was empty from what we know from last owner.
- New ventilation system in the whole house, new radiators around the house. Ivent AS. Utført i 2020.
- Er det tegn på setningsskader eller sprekker i for eksempel grunnmur eller fliser? There are 2-3 cracks in the foundation.
- First apartment in the basement. Renovation of the existing unit. Ivent AS. Utført i 2020.
- Har du fått innvilget tillatelse fra kommunen for ombyggingen? Nei, (dette er søknadspliktig) 2 apartment in the basement. Ivent AS
- Er det utført radonmåling? Nei.
- Selger opplyser at gulvene i stue og spisestue i første etasje er utbedret og nå har en flytende gulvkonstruksjon med lydisolerende sjikt og trinnlydsdemping.
Stort vindu i stuen er knust, denne er midlertidig teipet.
Moderniseringer og påkostninger
- Drenering rundt huset (2019)
- Nytt vann- og avløpssystem, inkl. varmtvannsbereder (2022)
- Tak vasket (2024)
- Hele huset malt innvendig og utvendig (2024)
- Nytt elektrisk anlegg, 220V 3-faset IT (2025)
- Kjelleren totalrenovert: nye vegger (10 cm), ny isolasjon i vegger og tak
- Nye utelys rundt huset
- Oppgradert for- og bakgård, innkjørsel og parkeringsområde
- Malt kjøkken (1. etasje)
- Utvidet terrasse
- Selger opplyser at gulvene i stue og spisestue i første etasje er utbedret og nå har en flytende gulvkonstruksjon med lydisolerende sjikt og trinnlydsdemping.
Standard
For den utfyllende tekniske standard for øvrig, henvises det til vedlagte tilstandsrapport.
Løsøre og tilbehør
Vi viser til liste fra Norges Eiendomsmeglerforbund som gjelder fra 01.01.2020 angående løsøre og tilbehør.
Det er kun de hvitevarene som er listet opp som følger med. Disse hvitevarene følger med: Kjøleskap, fryser, oppvaskmaskin og komfyr i første etasje.
Noen møbler kan følge handelen (1.etasje), avtales etter salg.
Det gjøres oppmerksom på at hvitevarene er kjøpt og brukt, kjøper må forvente slitasje som følge alder og normal bruk.
Oppvarming
Boligen varmes opp med en kombinasjon av elektrisitet, varmepumpe og gulvvarme, i tillegg til peis og vedfyrt komfyr. Varmekabler i gulv finnes på 2 bad i underetasjen.
Dersom beboelsesrom ikke har vegg- eller fastmonterte varmekilder ved visning, følger dette heller ikke med.
Ferdigattest/brukstillatelse
Kommunen opplyser at det ikke foreligger ferdigattest eller midlertidig brukstillatelse for eiendommen. Det finnes av den grunn ikke dokumentasjon over eiendommens lovlighet.
Eiendommen har vært brukt til boligformål siden ca 1950 ihht. matrikkelrapport).
Det foreligger ferdigattest på tilbygget av stue, spisestue i første etasje og tilhørende kjeller, samt utvidelse av kjøkken i første etasje datert 22.11.1977. Ifølge disse tegningene var dagens baderom i første etasje opprinnelig et soverom.
Det foreligger tillatelse til tiltak om bruksendring og ombygging av eksisterende enebolig med varsel om tilsyn datert 16.02.2026 (vedtaksdato). Tiltaket gjelder bruksendring av underetasjen og ombygging av eksisterende enebolig. Tiltaket må utføres innen 3 år fra vedtaksdato. Saksbehandlingsgebyr faktureres separat, tiltaket skal avsluttes med ferdigattest.
Hva tillatelsen gjelder:
- Ombygging og bruksendring innenfor én eksisterende boenhet.
- Endringer i 1. etasje (bad/toalett i stedet for soverom/kontor).
- Bruksendring av hele underetasjen. I tillegg må det etableres trapp fra første etasje til underetasjen, samt dør fra innredet kjøkken i underetasjen til innredet stue i underetasjen.
- Innvendige endringer.
- Mindre tilbygg (inngangsparti).
- Utvidelse av terrasse.
- Etablering av gjesteparkering.
Tillatelsen omfatter ikke etablering av flere boenheter eller separate leiligheter, verken i underetasjen eller ellers. Dette krever i så fall ny søknad og egen tillatelse. Det gjøres oppmerksom på at bruksendringen ikke gjelder kjøkken (i flertall) i underetasjen. Kjøper overtar eiendommen slik den fremstår på visning med risiko og ansvaret for eventuelle pålegg fra kommunen og kostnader forbundet med dette. Tiltaket ligger vedlagt salgsoppgaven.
Dagens innredning av underetasjen er ikke godkjent til varig opphold. For å få disse godkjent vises det til tiltak som nevnt over. Kjøper overtar alt ansvar, kostnad og risiko for dette videre.
Det gjøres oppmerksom på at det ikke lenger utstedes ferdigattest på tiltak det er søkt om før 1998 jf. plan- og bygningsloven § 21-10. Kommunen vil ikke kreve ferdigattest for disse tiltakene og vil avvise eventuelle søknader. Bestemmelsen innebærer ikke at tiltak med manglende søknad blir lovlige, men at man ikke trenger å avslutte gamle byggesaker. Normalt sett kreves ferdigattest for alle søknadspliktige tiltak som gjøres etter plan- og bygningsloven.
Det gjøres oppmerksom på at eiendommen ligger i et område avsatt til småhusbebyggelse i kommuneplanen. Innenfor denne arealbruken er det tillatt med enebolig, enebolig med sekundærleilighet eller tomannsbolig, hvilket innebærer maksimalt to boenheter per eiendom. I denne boligen er det etablert 3 separate enheter. For å være i samsvar med dette må del av boligen innlemmes i egen bolig, slik at boligen da er en enebolig med sekundærleilighet.
Tinglyste heftelser og rettigheter
Eiendommen overdras fri for pengeheftelser.
Det er tinglyst følgende servitutter på eiendommen.
Dagboknr 3590, tinglyst 08.12.1953, type heftelse: Bestemmelse om gjerde. Kjøperen har gjerdeplikt mot brnr. 10.
Dagboknr 5740, tinglyst 18.08.1994, type heftelse: Erklæring/Avtale. Servitutten gjelder rett til å legge og ha liggende ledninger over grunneiendom. Gjelder spillvannsledning. Vedlikehold kan følge.
Servituttene vil følge eiendommen. Kjøpers bank vil få prioritet etter ovennevnte heftelser og servitutter.
Eventuell adgang til utleie
Den del av boligens kjelleretasje som er innredet som to utleiedeler er ikke godkjent til varig opphold eller som separat boenhet av kommunen. Tiltak om bruksendring foreligger (se punkt for brukstillatelse/ ferdigattest). Kjøper overtar alt ansvar og risiko for dette videre.
Underetasjen er per i dag utleid. Leieforholdet kan sies opp med 3 måneders varsel fra begge parter. Kontakt megler for nærmere informasjon.
Det gjøres oppmerksom på at det er krav til forsvarlige radonnivåer ved utleie. Det er ikke gjennomført radonmåling på denne boligen.
Beliggenhet og tomteforhold
Beliggenhet og tomteforhold
Beliggenhet
Eiendommen ligger i rolig, trygt og landlig område i Nes kommune. I nærområdet er det barnehager og barneskoler, mens ungdomsskoler ligger på Årnes og Vormsund, samt flere videregående skoler på Sørumsand, Nes og Vormsund. Alti Årnes, Auli senteret og Fokus på Sørumsand ligger godt innen rekkevidde med blant annet dagligvare tjenester, post, frisør, apotek, restaurant og lege.
Dagligvarehandelen kan gjøres på hyggelige og lokale Auli-senteret som tilbyr flere servicetilbud som Kiwi, Coop Extra, post, bank, frisør, kafé m.m. For et bredere utvalg, kan man ta turen til Amfi Årnes, Strømmen Storsenter eller Jessheim Storsenter som ligger innen god rekkevidde.
På Haga er det båtutsetningsplass og noen båtplasser. På Glomma er det flott både å fiske og bade om sommeren. Det er flere småvann i nærområde som og egner seg til bading og fisking. Det er kort vei til lysløype og ellers fine tur og rekreasjonsområder.
Haga idrettsforening har håndball, fotball og allidrett på timeplanen. Haga Stadion ligger ca. 200m unna boligen, og består av stor gressbane, grusbane, friidrettsbane, sandvolleyballbane, håndballbane og noen mindre gressbaner. Her arrangeres det også fotballskole om sommeren. Det er også fiske - og bademuligheter i vakre Glomma!
Ca. 10 km unna finner du Årnes med et variert utvalg forretninger og gode servicetilbud, bank, apotek, vinmonopol, bibliotek, kino, kulturhus, treningssenter, kafeér, restauranter m.m. I tillegg finner du idrettsanlegg, ishall og ny svømmehall som åpnet i 2017.
Avstand med bil:
Årnes: ca. 12 min
Jessheim: ca. 30 min
Gardermoen: ca. 32 min
Oslo s: ca. 45 min
Adkomst
Det vil bli skiltet med Krogsveen visningsskilt ved fellesvisninger.
Barnehager, skoler og fritid
Barnehager:
Korsdalen barnehage - Hagadalen (1-5 år) - 0,7 km
Haga barnehage (0-5 år) - 0,6 km
Auli barnehage (0-5 år) - 2,4 km
Skoler:
Auli skole (1-7 kl.) - 2,8 km
Framtun skole (1-7 kl.) - 3,3 km
Runni ungdomsskole (8-10 kl.) - 11,6 km
Vormsund ungdomsskole (8-10 kl.) - 16,4 km
Nes videregående skole - 11,7 km
Sørumsand videregående skole - 13,2 km
Informasjon om tilhørende skolekretser er hentet fra Prognosesenteret som dataleverandør, og tilhørigheten kan årlig endres av kommunen. Dersom skole- og barnehagetilbud er av betydning for kjøpet, ber vi om at det rettes en særskilt henvendelse til kommunen/bydelsadministrasjonen for oppdatert informasjon.
Beskrivelse av tomt
Eiet tomt på 1.367,1 kvm (beregnet areal iht. matrikkelrapport)
Parkering
Det er godt med biloppstillingsplasser på gruslagt gårdsplass.
Vei, vann og avløp
Eiendommen er tilknyttet privat vei.
Eiendommen er tilknyttet privat vann fra Årnes Vannverk. Vannmåler er montert.
Eiendommen er tilknyttet offentlig avløp.
Regulerings-og arealplaner
Eiendommen ligger i et uregulert område, men er i kommuneplan datert 19.03.2025 er avsatt til: Boligbebyggelse, nåværende.
Utsnitt av plan med tilhørende bestemmelser kan fås ved henvendelse til megler.
Økonomi
Økonomi
Kommunale utgifter
Kommunale avgifter er kr 26 779,- for år 2025. I dette inngår gebyr for eiendomsskatt, avløp, renovasjon og feiing/tilsyn.
Eiendommen er tilknyttet Årnes Vannverk. Vannverket fakturerer etter antall personer i husstanden.
Gebyr pr. person: kr. 1077,- pr. år.
Grunngebyr for alle abonnenter: kr. 2656,- pr. år.
Gebyr pr. m³ renset vann etter måler: kr. 29,70,- pr. m³.
Minstegebyr pr. boenhet: kr. 4812,- pr. år.
Nåværende eier har et strømforbruk som tilsvarer ca. kr 40 000,- pr. år. / 25 000 kwh. pr. år.
Boligen har en årlig forsikringspremie på kr 12 000.
Boligen er tilknyttet fiber som leverandør av kabel-tv/ internett. Tv-tuner/dekoder medfølger ikke.
Boligen er ikke tilknyttet alarmselskap.
Utgiftene er basert på nåværende eiers forbruk og avtaler.
Formuesverdi
Formuesverdi for 2023 var kr 1 113 552,- ifølge skatteetaten. Beløpet forutsetter at eier bor fast i boligen (primærbolig).
Ved eventuell øvrig bruk av eiendommen (f.eks. fritidsbolig, pendlerbolig, utleieobjekt) var formuesverdien for 2023 kr 4 454 209,-.
Formuesverdien justeres normalt årlig. Se skatteetaten.no for mer informasjon om fastsettelse av formuesverdien.
Omkostninger
4 500 000,00 Prisantydning
Omkostninger
112 500,00 Dokumentavgift til staten (2,5% av kjøpesum)
19 900,00 Gjensidige Boligkjøperpakke (valgfri)
545,00 Tinglysing panterettsdokument
545,00 Tinglysing skjøte
--------------------------------------------------------
133 490,00 Omkostninger totalt
--------------------------------------------------------
4 633 490,00 Totalpris inkl. omkostninger
--------------------------------------------------------
Tilbud om lånefinansiering
Megler formidler gjerne kontakt med rådgiver hos vår samarbeidspartner BN Bank. De har konkurransedyktige betingelser samt rask og løsningsorientert behandling av din lånesøknad. Krogsveen mottar et honorar for denne formidlingen.
Betalingsbetingelser
Kjøpesum inkludert omkostninger, samt pantedokument tilknyttet eventuelt lån, skal være disponibelt hos megler 2 virkedager før overtagelsen.
Annen viktig informasjon
Annen viktig informasjon
Eier
Rafal Piotr Walczak og Ilona Rybalko
Overtakelse
Etter nærmere avtale.
Boligselgerforsikring
Selger har i forbindelse med salget tegnet boligselgerforsikring levert av Gjensidige.
Boligselgerforsikringen dekker selgers ansvar etter avhendingsloven begrenset oppad til kr 14 millioner. Dersom kjøper oppdager forhold ved eiendommen som hen mener utgjør en mangel ved eiendommen, vil Gjensidige behandle reklamasjonen på vegne av selger. Forsikringsvilkår kan fås ved henvendelse til megler.
Vedlagt salgsoppgaven følger selgers egenerklæringsskjema og tilstandsrapport. Interessenter må sette seg inn i dokumentene før bud inngis.
Boligkjøperforsikring
Innen kontraktsmøtet må kjøper ta stilling til om det ønskes å bestille Boligkjøperpakken gjennom Gjensidige. I denne gunstige pakken er boligen ferdig forsikret og inkluderer rettshjelpsforsikring, også kalt Boligkjøperforsikring. Rettshjelpsforsikring gir trygghet og tilgang på profesjonell juridisk hjelp dersom det oppdages uventede feil eller mangler det første året etter overtagelse. Forsikringsselskapet behandler i så fall ethvert mangelskrav kjøper måtte ha overfor selger.
Boligkjøperpakken inkluderer bygningsforsikring for hus og hytte, innboforsikring, flytteforsikring og dobbel rentedekning - i situasjoner hvor kjøper ikke får solgt nåværende primærbolig.
Kjøper mottar ingen særskilt faktura for Boligkjøperpakken da kostnaden det første året legges til kjøpesummen for boligen. Det gjøres oppmerksom på Krogsveen mottar et honorar for denne formidlingen.
Produktark for Boligkjøperpakken ligger vedlagt i salgsoppgaven.
Dersom ikke boligkjøperpakke ønskes kan kun rettshjelpsforsikring, også kalt boligkjøperforsikring, tegnes særskilt via megler. Rettshjelpsforsikringen varer i 5 år fra overtagelse og leveres gjennom Gjensidige. Ta kontakt med megler for ytterligere informasjon.
Selskap og privatpersoner som driver med kjøp/salg/utvikling som ledd i egen næringsvirksomhet kan ikke tegne boligkjøperpakke eller rettshjelpsforsikring.
Budgivning
Forbrukerinformasjon om budgivning er vedlagt denne salgsoppgaven og er også på vår hjemmeside www.krogsveen.no. Alle bud og budforhøyelser må inngis skriftlig. I tillegg må legitimasjon være fremlagt sammen med signatur fra budgiver.
Vi oppfordrer til å gi bud elektronisk via GI BUD-knappen på eiendommens hjemmeside på Krogsveen.no. Da vil samtlige vilkår bli oppfylt.
Eventuelle forhøyelser eller endringer av budet kan bekreftes pr SMS eller på e-post. Vi oppfordrer alltid til å kontakte megler pr. telefon i tillegg da forsinkelser i SMS og e-post kan forekomme.
For at budene skal kunne bli behandlet og videreformidlet skriftlig til alle involverte parter, må alle bud ha en tilstrekkelig lang akseptfrist, jf. eiendomsmeglingsforskriften § 6-3.
Selger må også skriftlig akseptere budet før aksept kan formidles til budgiver. Akseptfrist bør derfor være på minimum 30 minutter, og budforhøyelser må derfor skje i god tid før fristens utløp.
Bud i forbrukerforhold kan uansett ikke settes med kortere frist enn kl. 12.00 første virkedag etter siste annonserte visning.
Etter at eiendommen er solgt vil kjøper og selger få tilsendt budjournal. Øvrige budgivere kan få utlevert kopi av budjournalen i anonymisert form.
Hvitvaskingsreglene
I henhold til lov om hvitvasking og terrorfinansiering har megler plikt til å gjennomføre kontrolltiltak overfor kunder, herunder fullmektiger. Dette innebærer bl.a. å bekrefte kunders og reelle rettighetshaveres identitet på bakgrunn av fremvist gyldig legitimasjon eller på annen godkjent måte, samt å innhente opplysninger om kundeforholdets formål og tilsiktede art.
Dersom slike kundetiltak ikke kan gjennomføres, kan megler ikke etablere kundeforholdet eller utføre transaksjonen.
Hvis kjøper ikke bidrar til gjennomføring av kundekontrollen og dette fører til at transaksjonen blir forsinket eller ikke kan gjennomføres, vil dette ansees som mislighold av avtalen og gi selger rettigheter etter avhendingslova kapittel 5. I tilfeller der selger ikke bidrar til gjennomføring av løpende kundekontroll underveis i oppdraget, er det selger som misligholder sine forpliktelser etter avtalen og gi kjøper rettigheter etter avhendingslovens kapittel 4. Partene er selv ansvarlige for eventuelle kostnader og ansvar dette kan medføre. Eiendomsmegleren eller eiendomsmeglingsforetaket kan ikke holdes ansvarlig for de konsekvenser dette vil kunne få for partene eller andre som har interesser i eiendomshandelen.
Kjøper oppfordres til å innbetale kjøpesummen som ikke kommer fra låneinstitusjon i én samlet innbetaling fra egen konto i norsk bank. Megler har plikt til å melde fra til Økokrim om eiendomshandler som fremstår som mistenkelige. Melding sendes Økokrim uten at partene varsles.
Personopplysningsloven
I henhold til personopplysningsloven gjør vi oppmerksom på at interessenter kan bli registrert for videre oppfølging.
Lovanvendelse
Generelle bestemmelser
Salgsoppgaven er basert på de opplysningene selger har gitt til megler, den bygningssakyndiges tilstandsrapport, samt opplysninger innhentet fra kommunen, Kartverket og andre tilgjengelige kilder. Det er viktig at kjøper setter seg grundig inn i alle salgsdokumentene, herunder salgsoppgave, tilstandsrapport og selgers egenerklæring. Kjøper anses kjent med forhold som er tydelig beskrevet i salgsdokumentene, og slike forhold kan ikke påberopes som mangler. Dette gjelder uavhengig av om kjøper har lest dokumentene. Alle interessenter oppfordres til å undersøke eiendommen nøye, gjerne sammen med fagkyndig før bud inngis. Kjøper som velger å kjøpe usett kan ikke gjøre gjeldende som mangel noe han burde blitt kjent med ved undersøkelsen.
Dersom det er behov for avklaringer, anbefaler vi at interessenter rådfører seg med eiendomsmegler eller egne rådgivere før det legges inn bud.
En bolig som har blitt brukt i en viss tid, har vanligvis blitt utsatt for slitasje og skader kan ha oppstått. Slik bruksslitasje må kjøper regne med, og det kan avdekkes enkelte forhold etter overtakelse som nødvendiggjør utbedringer. Normal slitasje og skader som nødvendiggjør utbedring, er innenfor hva kjøper må forvente og vil ikke utgjøre en mangel.
Kjøper og selgers rettigheter og plikter reguleres av avtalen mellom partene, samt informasjonen som har vært tilgjengelig for kjøperen i forbindelse med handelen. Avtalen utfylles av avhendingsloven, og det gjelder ulike avtalevilkår avhengig av om kjøper er forbrukerkjøper eller ikke. Dette er nærmere beskrevet nedenfor.
På grunn av ulike avtalevilkår kan selger vurdere bud fra en som ikke er forbruker, ulikt fra en forbrukers bud. Dersom kjøper ikke er forbruker, er selger sitt mulige mangelsansvar begrenset fordi eiendommen selges "som den er". Selger kan ikke ta «som den er»- forbehold overfor en forbrukerkjøper. Selv et lavere bud fra en som ikke er forbruker kan foretrekkes fordi begrensningen i mulig mangelsansvar kan ha egenverdi for selger. Selger står fritt til å forkaste eller akseptere ethvert bud, og er for eksempel ikke forpliktet til å akseptere høyeste bud.
Budgiver skal i budskjema avgi egenerklæring om budgiver er forbruker eller næringsdrivende/ person som hovedsakelig handler som ledd i næringsvirksomhet. Budgivere får informasjon dersom andre bud er inngitt av en som ikke er forbruker.
Forbrukerkjøp - definisjon
Med forbrukerkjøp menes kjøp av eiendom når kjøperen er en fysisk person som ikke hovedsakelig handler som ledd i næringsvirksomhet.
Forbruker – avtalevilkår
Eiendommen har en mangel dersom den ikke er i samsvar med kravene som følger av avtalen, eller det foreligger brudd på bestemmelsene i avhendingsloven §§ 3-2 til 3-8. Hvis eiendommen ikke er i samsvar med det kjøperen må kunne forvente ut ifra alder, type og synlig tilstand, kan det være grunnlag for mangelskrav. Det samme gjelder hvis det er holdt tilbake eller gitt uriktige opplysninger om eiendommen. Dette gjelder likevel bare dersom man kan gå ut ifra at det virket inn på avtalen at opplysningen ikke ble gitt eller at mangelskravet ikke blir rettet i tide på en tydelig måte.
Boligen kan ha en mangel etter avhendingsloven § 3-3 andre ledd, dersom det er avvik mellom opplyst og faktisk innvendig areal, forutsatt at avviket er på 2% eller mer og minimum 1 kvm.
Ved beregning av et eventuelt prisavslag eller erstatning må kjøper selv dekke tap/kostnader opptil et beløp på kr 10 000 (egenandel).
Ikke-forbruker (næringsdrivende) – definisjon
Hvis kjøper er en juridisk person, eller en fysisk person som hovedsakelig handler som ledd i næringsvirksomhet, vil kjøpet ikke anses som et forbrukerkjøp.
Ikke-forbruker – avtalevilkår
Eiendommen har en mangel dersom den ikke er i samsvar med kravene som følger av avtalen.
Eiendommen selges «som den er», og selgers ansvar utover det konkret avtalte er da begrenset etter avhendingsloven § 3-9, første ledd andre setning.
Avhendingsloven § 3-3 andre ledd fravikes, og hvorvidt boligens arealsvikt utgjør en mangel vurderes etter avhendingsloven § 3-8.
Informasjon om kjøpers undersøkelsesplikt, herunder oppfordringen om å undersøke eiendommen nøye, gjelder også for kjøpere som ikke anses som forbrukere.
Det forutsettes at hjemmel overføres til kjøper. Hvis kjøper ikke ønsker hjemmelsoverføring av eiendommen, må det tas forbehold om dette i budet.
Meglers vederlag
Meglers vederlag betales av selger og er avtalt til:
Fastpris: 47 500,-
Vederlag
Kontroll av hjemmel og heftelser kr 2 900,00
Markedsføringspakke kr 27 400,00
Oppgjør kr 7 500,00
Tilrettelegging kr 17 000,00
Visninger pr stk - Kun avholdte visninger kr 4 000,00
Utlegg
Innhenting av offentlig opplysninger kr 3 969,00
Tinglysing sikring kr 545,00
Andre utgifter
Foto kr 5 000,00
Tilstandsrapport og forsikring kommer i tillegg.
Opplysninger om oppdraget
Oppdragsnummer 24-0073/25
Eiendomsmegler Krogsveen AS, avd. Årnes
Rådhusgata 26, 2150, ÅRNES
950 007 613
Oppdragets KR-kode KR24.2573
Dato
Sist oppdatert: 19. februar 2026 kl. 09:17
Dokumenter
Dokumenter
PDF – 1019 KB
PDF – 177 KB
PDF – 312 KB
PDF – 29 KB
PDF – 127 KB
PDF – 392 KB
Område
Legg til steder som er viktige for deg
Visning
For å delta på visning, ber vi om at du melder deg på. Da sikrer vi at du får nødvendig informasjon og at det er satt av tilstrekkelig med tid. Kontakt megler dersom annet tidspunkt ønskes. Husk å lese salgsoppgaven før visningen, så du stiller forberedt.
Ønsker du kun å bli holdt orientert, kan du fra eiendommens hjemmeside få varsel om solgtpris, eller kontakte megler.
Lurer du på noe?
Unngå doble boligrenter
Vi tilbyr gunstig forsikring.
Vurderer du utleie?
Få et tilbud fra Utleie KrogsveenHva koster lånet?
Sjekk estimert lånekostnadVil du varsles om lignende boliger?
Ved å lagre ditt boligsøk hos oss får du beskjed når vi har en bolig som ligner denne, før den legges ut på markedet!

