Ortustranden 28
2 590 000 kr
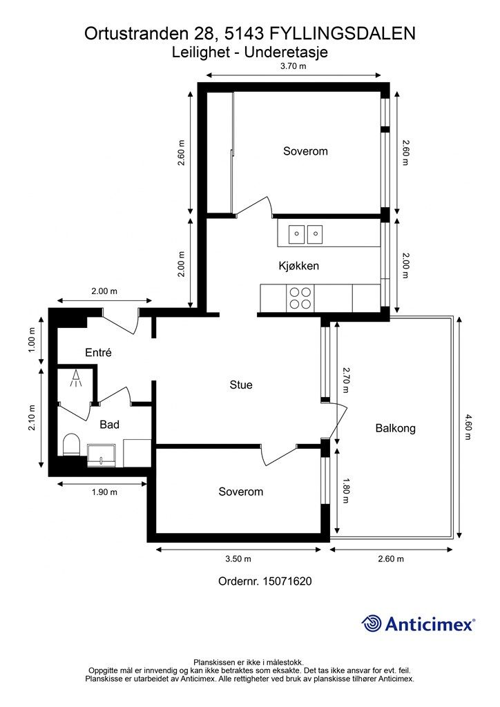
43 m²
2 soverom
Solgt

Presenteres av
Jane Juell Osmo3-roms like ved Ortuvannet. Solrik vestvendt altan. Bad utført av brl 2022. Varmtvann/sentralvarme. inkl. i felleskostn.
Prisantydning
2 590 000 krAndel fellesgjeld
308 940 krOmkostninger
19 252 krTotalpris
2 918 192 kr
Pris
Bruksareal
49 m²BRA-I (internt bruksareal)
43 m²BRA-E (eksternt bruksareal)
6 m²TBA (terrasse-balkongareal)
13 m²
Areal
Etasje
1Byggeår
1969Soverom
2 soveromType
AndelsleilighetEierform
AndelFasiliteter
Balkong/TerrasseFellesutgifter
5 021 krEnergimerke
Grønn F
Nøkkelinfo
Unngå doble boligrenter
Vi tilbyr gunstig forsikring.
Vurderer du utleie?
Få et tilbud fra Utleie KrogsveenHva koster lånet?
Sjekk estimert lånekostnadBeskrivelse
Kort om eiendommen
Velkommen til Orutstranden 28! En 3-roms leilighet med populær beliggenhet i Fyllingsdalen - nært alt man trenger i hverdagen som Oasen og bybanen!
Høydepunkter:
Nytt bad i regi av borettslaget 2022
Flott balkong hvor man kan nyte sol og utsikt over grøntarealer og Ortuvannet
2 soverom
Attraktiv beliggenhet i Fyllingsdalen med umiddelbar nærhet til flotte turområder
Gode bussforbindelser, samt skoler, barnehager, idrettsanlegg og butikker m.m.
Oasen er bare en liten rusletur unna med alle fasiliteter
Område
Legg til steder som er viktige for deg
Megler

Jane Juell Osmo
Eiendomsmegler MNEF
På flyttefot? Tenk kjøp og salg samtidig.
Få din egen rådgiver gjennom hele kjøps- og salgsprosessen. Det starter med en verdivurdering.
Unngå doble boligrenter
Vi tilbyr gunstig forsikring.
Vurderer du utleie?
Få et tilbud fra Utleie KrogsveenHva koster lånet?
Sjekk estimert lånekostnadVil du varsles om lignende boliger?
Ved å lagre ditt boligsøk hos oss får du beskjed når vi har en bolig som ligner denne, før den legges ut på markedet!
På flyttefot? Slik gjør vi det enklere for deg
Skreddersydd flyttepakke
Vi fikser håndverkere, vask, pakking, lagring og transport, og legger ut for utgiftene underveis.
Hjelp med både kjøp og salg
Hos oss har du din egen rådgiver gjennom hele kjøps- og salgsprosessen.
Hjelp til finansiering
Vårt samarbeid med BN Bank sikrer deg rask og løsningsorientert hjelp, til konkurransedyktige betingelser.
