Ravnøveien 18
7 250 000 kr
189 m²
4 soverom
Komplett salgsoppgave

Stokke/Storevar
Stor og innholdsrik familiebolig! 4 soverom - 2 bad - fine uteområder - rikelig med sol og sjøutsikt - dobbel garasje!
Prisantydning
7 250 000 krOmkostninger
202 240 krTotalpris
7 452 240 kr
Pris
Bruksareal
235 m²BRA-I (internt bruksareal)
189 m²BRA-E (eksternt bruksareal)
46 m²TBA (terrasse-balkongareal)
63 m²
Areal
Etasje
2Byggeår
1978Soverom
4 soveromBad
2 badTomteareal
1 628 m² (eiet)Type
Enebolig - FrittliggendeEierform
EietFasiliteter
Garasje/P-plass og Balkong/Terrasse
Nøkkelinfo
Unngå doble boligrenter
Vi tilbyr gunstig forsikring.
Vurderer du utleie?
Få et tilbud fra Utleie KrogsveenHva koster lånet?
Sjekk estimert lånekostnadBeskrivelse
Kort om eiendommen
Velkommen til en innholdsrik og attraktiv enebolig med gjennomtenkt planløsning, perfekt tilpasset barnefamilier. Boligen har fire soverom, to bad (hovedbad oppusset i 2024), romslig stue med åpen kjøkkenløsning mot spisestue, samt innredet kjeller med flere boder som gir rikelig med oppbevaringsplass. Boligen fremstår lys og romslig, med gode soner for både privatliv og sosialt samvær.
Eiendommen har flotte uteplasser med både vest- og østvendte terrasse, hvor man kan nyte gode solforhold og utsikt over fjorden. Boligen ligger høyt og fritt, noe som gir flott utsyn og gode solforhold gjennom dagen. Tomten er stor, frittliggende og pent opparbeidet, med usjenert terrasse og gode uteområder for både avslapning og lek.
*Ingen boplikt på eiendommen*
Velkommen til hyggelig visning!
Innhold og byggemåte
Innhold og byggemåte
Eiendommen
Ravnøveien 18, 3160 STOKKE
Kommunenummer 3907, gårdsnummer 431, bruksnummer 60, ideell andel 1/1
Kommunenummer 3907, gårdsnummer 431, bruksnummer 126, ideell andel 1/1
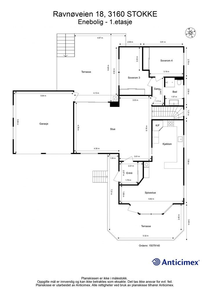
Innhold
Totalt bruksareal BRA: 235 kvm
BRA-i:
Bolig:
Underetasje 77 kvm: Gang, bad, vaskerom, to boder hvor en ligger innenfor vaskerommet med flislagt vegger og gulv og to soverom
1. etasje 112 kvm: Entre, gang, stue, kjøkken, spisestue, bad og to soverom
BRA-e:
Bod:
1. etasje 4 kvm: Oppbevaring
Bolig:
1. etasje 34 kvm: Dobbelgarasje med utvendig adkomst
Grillhytte:
1. etasje 8 kvm: Grillhytte
Åpent areal:
Bolig:
1. etasje 63 kvm: Østvendt (25 m2) Vestvendt (38 m2)
Vedlagte plantegninger er ikke målbare. De oppgitte arealer er hentet fra rapport med befaringsdato 10.02.2026 utført av Anticimex Sandefjord AS. Arealene er beregnet og rom er definert etter dagens faktiske bruk, uavhengig av hva som er godkjent av bygningsmyndighetene.
Se punkt om ferdigattest.
Byggemåte
Selger har innhentet en tilstandsrapport av boligen/eiendommen. Av rapporten fremgår det at flere bygningsdeler har fått tilstandsgrad ikke undersøkt/ikke tilgjengelig for undersøkelse (TG IU), 2 (TG2) og/eller 3 (TG3). Rapporten beskriver også avvik på undersøkte bygningsdeler uten tilstandsgrad. Kjøper overtar ansvaret for de opplysninger som fremkommer av salgsdokumentasjonen, og kan ikke gjøre gjeldende som mangel noe som burde vært kjent eller som ikke kan anses å ha betydning for avtalen.
Bygningen er iht. tilstandsrapporten oppført på støpt betong mot grunn. Grunnmur i lettklinkerblokker. Yttervegger, etasjeskiller og tak i trekonstruksjoner. Fasader med pusset mur og stående trekledning. Saltak tekket med betongtakstein. Vinduer og terrassedører med to- og tre-lags isolerglass. Les for øvrig mer om byggemåte og den tekniske tilstanden i rapporten.
Sammendrag av Eiendommens tilstandsgrad:
TG1 : 57 % | TG2 : 39 % | TG3 : 0 % | TGIU: 4 %
Det gjøres spesielt oppmerksom på:
TG2
- Bad underetasje: Misfarging/svertesopp påvist på flisfuger. Elastiske flisfuger har stedvis manglende vedheft. Gulvet utenfor dusjsone er tilnæ rmet flatt. Lokalfall i dusjsonen er mindre enn hva som ideelt anbefales. Det registreres stedvis motfall rundt sluk. Tettesjiktet har en alder som tilsier at restlevetiden er usikker. Tilluftsspalte er ikke etablert. Drenering fra innebygget sisterne er ikke registrert. (selger opplyser at det er utbedret med nye fuger i dusj sonen samt laget tilluftspalte under dør)
- Vaskerom: TG 2 er valgt som en helhetsvurdering på hele våtrommet på grunn av alder og registrerte avvik. (se tilstandsrapport for fullstendig informasjon)
- Underetasje: Deler av overflatene i bodrom var ikke tilgjengelig for inspeksjon pga. inventar. Det registreres bomlyd bak fliser. Etasjen har vegger under bakkenivå som er utlektet fra grunnmuren og gulv som er opplektet. Konstruksjonen er lukket, og det er ikke kjent hvordan oppbyggingen er utført. Dette sammen med dreneringens alder tilsier risiko for fuktskader i kosntruksjonen. Ved hulltaking er det observert plast i utlektet kjellervegg, noe som ikke lenger er en anbefalt løsning. Det ble registrert "kjellerlukt" i bodrom.
- Loft: Det er observert spor etter aktivitet av gnagere.
- Tekniske anlegg: Avløpsrør og varmtvannsberederen er vurdert til å ha en alder som tilsier at det er grunn til å varsle om risiko for skjulte avvik.
- Radon: Det er ikke foretatt radonmåling i boligen og verdiene er derfor ukjent.
- Kledning: Aldersslitasje er observert på kledningen. Sprekker i endeveden.
- Vinduer og dører: Bærer preg av slitasje og elde. Det må forventes høyere varmetap. Det ble stedvis påvist punkterte glass/vinduer. Eksempelvis på soverom 2, 3 og 4.
- Yttertak: Taket er ikke fysisk inspisert grunnet is og snø. TG 2 er valgt på bakgrunn av at taket har nådd omtrent halvparten av forventet levetid, og kan være utsatt for slitasje. Deler av takkonstruksjonen er en lukket konstruksjon. Inspeksjon ikke mulig.
- Grunnmur: Det registreres pussavskaling og riss/sprekker på grunnmur enkelte steder.
- Drenering: TG 2 er valgt for å belyse at dreneringen har nådd en alder der funksjonssvikt ikke kan utelukkes.
- Vann- og avløpsledninger: Alder og materialvalg tilsier at anbefalt brukstid og restlevetid på vann- og avløpsrør med tilliggende utstyr bør vies spesiell oppmerksomhet.
- Oljetanker: Ingen dokumentasjon som viser materiale, type, alder og om kontroll er foretatt.
- Grill hytte: Det er foretatt en forenklet overordnet vurdering av tilstanden. Det er observert tegn på lekkasje i takkonstruksjonen.
TGIU
- Byggegrunn: Byggegrunnens beskaffenhet er ukjent.
- Terrasser på terreng: Terrasser er dekket av snø og is på befaringsdagen og derfor ikke inspisert.
- Skorstein: Rehabilitering av skorstein er et søknadspliktig tiltak. Ferdigattest for tiltaket er ikke fremlagt. Det kan derfor ikke verifiseres om tiltaket er omsøkt/godkjent, og det er heller ikke tatt stilling til om dette lar seg gjøre.
- Loft: Deler av kaldtloftet ble ikke undersøkt grunnet redusert tilkomstmulighet.
Se supplerende tekst i tilstandsrapporten og selgers egenerklæring om boligen. Kjøper overtar ansvar og risiko for dette.
Tilstandsrapporten er inntatt i salgsoppgaven. Rapporten inneholder informasjon om avvikene og konsekvensen av disse. For avvik som er gitt TG3 har den bygningssakkyndige i tillegg gitt et anslag på hva det vil koste å utbedre disse avvikene. Ettersom kjøper regnes å være kjent med forhold som tydelig fremgår av tilstandsrapporten, oppfordres du til å sette deg grundig inn i rapporten i sin helhet.
Standard
Boligen fremstår som innholdsrik og godt vedlikeholdt, med gjennomgående god standard og praktiske løsninger. Planløsningen er funksjonell og familievennlig, med gode oppholdsrom og fleksibel rominndeling. Overflater består hovedsakelig av fliser og laminat på gulv, med gulvvarme i utvalgte rom, samt malte flater og innslag av trepanel på vegger.
Underetasjen er innredet og inneholder gang, bad, vaskerom, to boder og to soverom. Her er det gulvflater med belegg, laminat og fliser, samt gulvvarme i gang. Veggene har malte flater, fliser, trepanel og MDF-plater. Hovedetasjen består av entré, gang, stue, kjøkken, spisestue, bad og to soverom. Boligen har i tillegg integrert dobbelgarasje med utvendig adkomst.
Boligen har totalt fire soverom, hvor to ligger i underetasjen og to i hovedetasjen. Soverommene fremstår som romslige og funksjonelle, med gode møbleringsmuligheter og god plass til garderobeløsninger.
Bad (underetasje):
Badet i underetasjen er fra 2007 og fremstår praktisk med flislagt gulv med gulvvarme og flislagte vegger. Badet er innredet med baderomsinnredning med profilerte fronter, heldekkende servant, vegghengt toalett og dusjhjørne med glassvegger. Et funksjonelt bad med gode løsninger.
Bad (hovedetasje):
Badet i hovedetasjen ble oppusset i 2024 og fremstår moderne og stilrent. Rommet har flislagt gulv med gulvvarme og flislagte vegger, samt himling med malt, slett flate og innfelte downlights. Badet er utstyrt med innredning med profilerte fronter, laminert benkeplate, vegghengt toalett og dusjhjørne med nedsenket gulv, regnfallsdusj og hånddusj. Dette er et delikat og oppgradert bad med høy standard.
Stue:
Stuen er romslig og innbydende, med gode lysforhold og fine møbleringsmuligheter. Her er det plass til både sofagruppe og øvrig møblement, og rommet fungerer som et naturlig samlingspunkt i boligen.
Kjøkken:
Kjøkken innredningen er fra 2020 og levert av Epoq fra Elkjøp. Det har innredning med slette fronter og laminert benkeplate, og fremstår moderne og funksjonelt. Kjøkkenet er utstyrt med integrert oppvaskmaskin, induksjonstopp, stekeovn, mikrobølgeovn, vinskap samt kjøleskap i høyskap. Gulvet er belagt med laminat, og veggene har malte, slette flater.
Løsøre og tilbehør
Vi viser til liste fra Norges Eiendomsmeglerforbund som gjelder fra 01.01.2020 angående løsøre og tilbehør.
Oppvarming
Det er lagt varmekabler i Yttergang hovedetasje , begge bad og hall i underetasje. Vedovn av merket Dovre i gang, underetasje samt peis med innsats på kjøkken. Varmepumpe plassert i stuen. Ellers varmes boligen opp via elektrisk oppvarming.
Dersom beboelsesrom ikke har vegg- eller fastmonterte varmekilder ved visning, følger dette heller ikke med.
Ferdigattest/brukstillatelse
Det foreligger ferdigattest på eneboligen, datert 20.06.78. Denne kan fås ved henvendelse til megler.
Det foreligger godkjente og byggemeldte tegninger for eneboligen datert 14.06.1978 og tilbygg ut fra kjøkkenet datert 27.06.2000. Det er noe avvik mellom godkjente byggetegninger og dagens planløsning i underetasjen. Tegningene kan fås ved henvendelse til megler.
Følgende er registrert:
- I underetasjen er det opprinnelige hobbyrommet omgjort til kjellerstue/soverom. Endring av et roms bruk fra hobbyrom til soverom er en bruksendring som kan være søknadspliktig. Fasaden der soverom/ kjellerstue er i dag er lik som på de originale tegningene med tre store vinduer.
En bod er innlemmet i vaskerommet og tidligere inngangsparti mot nord er fjernet i underetasje der det ble satt opp bad i 2007. Kjøper overtar ansvar og risiko for dette videre.
Tinglyste heftelser og rettigheter
Eiendommen overdras fri for pengeheftelser
Det er tinglyst følgende servitutter på eiendommen.
Megler har undersøkt og ikke fått innhentet servituttene. Kartverket informerer om at de ikke har disse dokumentene i sitt register.
Dagboknr 9000305, tinglyst 1965, type heftelse: Erklæring/avtale: Kjøpere skal la andre hytteeiere koble seg til ledninger for vann og kloakk.
Dagboknr 9000305, tinglyst 1965, type heftelse: Erklæring/avtale: Rett til å koble seg til vanninntak i boligens kjeller
info fra selger: Hytta er nå solgt/revet, og bygd nytt hus . De koblet seg da på vann i kjeller som lå klart, +kloakk/avløp som også ligger i bakken på vår tomt,og gjennom kum videre ut i felles annlegg. (Ble gjort i febr/mars 2024 ).
Servituttene vil følge eiendommen. Kjøpers bank vil få prioritet etter ovennevnte heftelser og servitutter.
Eiendommen har tinglyst rettighet: Knr:3907 Gnr:431 Bnr:5 Bestemmelse om garasje/parkering Opprinnelig dok nr 504509/1965 fra TØNSBERG TINGRETT - Diverse påtegning Bruksrett til parkeringsplass slettet Opprinnelig dok nr 18604/1986 fra TØNSBERG TINGRETT
Eventuell adgang til utleie
Eiendommen har ikke separat utleieenhet. Det vil normalt være anledning til utleie av hele eiendommen eller enkeltrom, såfremt utleiearealet er bygningsmessig godkjent for varig opphold og har forsvarlige radonnivåer.
Beliggenhet og tomteforhold
Beliggenhet og tomteforhold
Beliggenhet
Eiendommen har en solrik og attraktiv beliggenhet på Storevar i Stokke, i et veletablert og barnevennlig boligområde. Her bor man landlig og fredelig, men samtidig med kort avstand til både Stokke sentrum og byene Sandefjord og Tønsberg.
Området byr på et rikt tilbud av rekreasjonsmuligheter. Det er gangavstand til Storevar badestrand og båthavn, samt kort vei til Melsomvikstranda med badeplasser, brygge, småbåthavn og fine turområder. For den aktive familien finnes fotball- og tennisbaner, lysløype, friområder og fine turstier i nærområdet, i tillegg til kyststien som strekker seg hele veien fra Tønsberg til Sandefjord.
For barnefamilier er det kort vei til barnehager og skoler, samt gode bussforbindelser til Stokke, Tønsberg og Sandefjord. I Stokke sentrum finner man et variert tilbud av butikker, spisesteder, helsetjenester og servicetilbud.
Området har også et rikt kultur- og fritidstilbud. Her finner man blant annet hestesportmiljøer, rideklubber og golfbane, samt badeparadiser og aktivitetsområder for barn og ungdom. Natur- og friluftsinteresserte kan nyte bøkeskog, kulturstier og oppmerkede turveier, som gir gode muligheter for rekreasjon året rundt.
Dette er et område som passer både for barnefamilier og de som ønsker et aktivt og trivelig nærmiljø!
Adkomst
Veibeskrivelse Se Google maps - det er enkelt å finne frem i kartet.
Det vil bli skiltet med Krogsveen visningsskilt ved fellesvisninger.
Barnehager, skoler og fritid
Melsom barneskole og Stokke ungdomsskole. Det er flere barnehager i området.
Dersom skole- og barnehagetilbud er av betydning for kjøpet, ber vi om at det rettes en særskilt henvendelse til kommunen for oppdatert informasjon.
Beskrivelse av tomt
Eiendommen ligger på en romslig og pent opparbeidet tomt på hele 1 628 m², med innkjøring til stor asfaltert gårdsplass som gir god plass til oppstilling av flere biler. Til boligen hører også en integrert dobbelgarasje i 1. etasje, som gir enkel og praktisk adkomst.
Tomten er pent opparbeidet med gressplen, beplantning og variert grøntareal, som gir et trivelig og hyggelig utemiljø. Her er det gode muligheter for uteaktiviteter, lek og sosialt samvær, samtidig som det er lettstelt og oversiktlig.
Parkering
Parkering i dobbel garasje eller på stor asfaltert gårdsplass
Vei, vann og avløp
Eiendommen har adkomst via kommunal vei.
Eiendommen er tilknyttet kommunalt ledningsnett via private stikkledninger. Eier er selv ansvarlig for private stikkledninger til boligen.
Regulerings-og arealplaner
Eiendommen er regulert til bolig formå i henhold til reguleringsplan Storevahr datert 02.01.1978 med tilhørende reguleringsbestemmelser.
I kommuneplanene datert 21.09.2023 er eiendommen beliggende i et område som er avsatt til: Boligbebyggelse og gul sone iht. T-1442.
Utsnitt av plan med tilhørende bestemmelser kan fås ved henvendelse til megler.
Økonomi
Økonomi
Kommunale utgifter
Kommunale avgifter er kr 14 354,- for inneværende år. I dette inngår gebyr for vann, avløp, renovasjon og feiing/tilsyn.
Nåværende eier har et strømforbruk som tilsvarer ca.22 000 kwh. pr. år.
Boligen har en årlig forsikringspremie på kr 11 425,-.
Boligen er tilknyttet Viken fiber som leverandør av fibernett, tv er på parabol. Tv-tuner/dekoder medfølger ikke.
Utgiftene er basert på nåværende eiers forbruk og avtaler.
Selger har avtalt Norgespris på strøm på eiendommen og denne er pt på kr 50 øre inkl mva. Nettleie, avgifter og påslag fra kraftleverandøren kommer i tillegg. Er det fjernvarme vil det også komme kostnader i tillegg.
Denne avtalen vil følge eiendommen i den avtalte perioden.
Les mer om Norgespris her: https://www.regjeringen.no/no/aktuelt/legg-fram-lov-om-norgespris-pa-straum-og-fjernvarme/id3102642/
Formuesverdi
Formuesverdi for 2024 var kr 1 259 136,- ifølge skatteetaten. Beløpet forutsetter at eier bor fast i boligen (primærbolig).
Ved eventuell øvrig bruk av eiendommen (f.eks. fritidsbolig, pendlerbolig, utleieobjekt) var formuesverdien for 2024 kr 5 036 544,-.
Fra 2026 har Stortinget vedtatt en oppdatert modell for beregning av formuesverdi for primærbolig, så avvik kan forekomme.
For mer informasjon se skatteetaten.no
Omkostninger
7 250 000,00 Prisantydning
Omkostninger
181 250,00 Dokumentavgift til staten (2,5% av kjøpesum)
19 900,00 Gjensidige Boligkjøperpakke (valgfri)* (valgfritt)
545,00 Tinglysing panterettsdokument
545,00 Tinglysing skjøte
--------------------------------------------------------
182 340,00 (Omkostninger totalt (uten Gjensidige Boligkjøperpakke (valgfri)))
202 240,00 Omkostninger totalt (med Gjensidige Boligkjøperpakke (valgfri)))
--------------------------------------------------------
7 432 340,00 Totalpris inkl. omkostninger
7 452 240,00 Totalpris inkl. omkostninger (med Gjensidige Boligkjøperpakke (valgfri))
--------------------------------------------------------
Tilbud om lånefinansiering
Megler formidler gjerne kontakt med rådgiver hos vår samarbeidspartner BN Bank. De har konkurransedyktige betingelser samt rask og løsningsorientert behandling av din lånesøknad. Krogsveen mottar et honorar dersom lån opprettes.
Betalingsbetingelser
Kjøpesum inkludert omkostninger, samt pantedokument tilknyttet eventuelt lån, skal være disponibelt hos megler 2 virkedager før overtagelsen.
Annen viktig informasjon
Annen viktig informasjon
Eier
Elin Synnøve Bakkland Grøneng og Kjetil Bakkland Grøneng
Overtakelse
Etter nærmere avtale.
Boligselgerforsikring
Selger har i forbindelse med salget tegnet boligselgerforsikring levert av Gjensidige.
Boligselgerforsikringen dekker selgers ansvar etter avhendingsloven begrenset oppad til kr 14 millioner. Dersom kjøper oppdager forhold ved eiendommen som hen mener utgjør en mangel ved eiendommen, vil Gjensidige behandle reklamasjonen på vegne av selger. Forsikringsvilkår kan fås ved henvendelse til megler.
Vedlagt salgsoppgaven følger selgers egenerklæringsskjema og tilstandsrapport. Interessenter må sette seg inn i dokumentene før bud inngis.
Boligkjøperforsikring
Innen kontraktsmøtet må kjøper ta stilling til om det ønskes å bestille Boligkjøperpakken gjennom Gjensidige. I denne gunstige pakken er boligen ferdig forsikret og inkluderer rettshjelpsforsikring, også kalt Boligkjøperforsikring. Rettshjelpsforsikring gir trygghet og tilgang på profesjonell juridisk hjelp dersom det oppdages uventede feil eller mangler det første året etter overtagelse. Forsikringsselskapet behandler i så fall ethvert mangelskrav kjøper måtte ha overfor selger.
Boligkjøperpakken inkluderer bygningsforsikring for hus og hytte, innboforsikring, flytteforsikring og dobbel rentedekning - i situasjoner hvor kjøper ikke får solgt nåværende primærbolig.
Kjøper mottar ingen særskilt faktura for Boligkjøperpakken da kostnaden det første året legges til kjøpesummen for boligen. Det gjøres oppmerksom på Krogsveen mottar et honorar for denne formidlingen.
Produktark for Boligkjøperpakken ligger vedlagt i salgsoppgaven.
Dersom ikke boligkjøperpakke ønskes kan kun rettshjelpsforsikring, også kalt boligkjøperforsikring, tegnes særskilt via megler. Rettshjelpsforsikringen varer i 5 år fra overtagelse og leveres gjennom Gjensidige. Ta kontakt med megler for ytterligere informasjon.
Selskap og privatpersoner som driver med kjøp/salg/utvikling som ledd i egen næringsvirksomhet kan ikke tegne boligkjøperpakke eller rettshjelpsforsikring.
Budgivning
Forbrukerinformasjon om budgivning er vedlagt denne salgsoppgaven og er også på vår hjemmeside Krogsveen.no. Alle bud og budforhøyelser må inngis skriftlig. I tillegg må legitimasjon være fremlagt sammen med signatur fra budgiver.
Vi oppfordrer til å gi bud elektronisk via GI BUD-knappen på eiendommens hjemmeside på Krogsveen.no. Da vil samtlige vilkår bli oppfylt.
Eventuelle forhøyelser eller endringer av budet kan bekreftes pr SMS eller på e-post. Vi oppfordrer alltid til å kontakte megler pr. telefon i tillegg da forsinkelser i SMS og e-post kan forekomme.
For at budene skal kunne bli behandlet og videreformidlet skriftlig til alle involverte parter, må alle bud ha en tilstrekkelig lang akseptfrist, jf. eiendomsmeglingsforskriften § 6-3.
Selger må også skriftlig akseptere budet før aksept kan formidles til budgiver. Akseptfrist bør derfor være på minimum 30 minutter, og budforhøyelser må derfor skje i god tid før fristens utløp.
Bud i forbrukerforhold kan uansett ikke settes med kortere frist enn kl. 12.00 første virkedag etter siste annonserte visning. I tillegg kan ikke budet ha forbehold om at det skal holdes hemmelig ovenfor øvrige interessenter. Megler har iht lov om eiendomsmegling ikke anledning til å videreformidle disse budene, og de vil dermed heller ikke bli journalført.
Etter at eiendommen er solgt vil kjøper og selger få tilsendt budjournal. Øvrige budgivere kan få utlevert kopi av budjournalen i anonymisert form.
Hvitvaskingsreglene
I henhold til lov om hvitvasking og terrorfinansiering har megler plikt til å gjennomføre kontrolltiltak overfor kunder, herunder fullmektiger. Dette innebærer bl.a. å bekrefte kunders og reelle rettighetshaveres identitet på bakgrunn av fremvist gyldig legitimasjon eller på annen godkjent måte, samt å innhente opplysninger om kundeforholdets formål og tilsiktede art.
Dersom slike kundetiltak ikke kan gjennomføres, kan megler ikke etablere kundeforholdet eller utføre transaksjonen.
Hvis kjøper ikke bidrar til gjennomføring av kundekontrollen og dette fører til at transaksjonen blir forsinket eller ikke kan gjennomføres, vil dette ansees som mislighold av avtalen og gi selger rettigheter etter avhendingslova kapittel 5. I tilfeller der selger ikke bidrar til gjennomføring av løpende kundekontroll underveis i oppdraget, er det selger som misligholder sine forpliktelser etter avtalen og gi kjøper rettigheter etter avhendingslovens kapittel 4. Partene er selv ansvarlige for eventuelle kostnader og ansvar dette kan medføre. Eiendomsmegleren eller eiendomsmeglingsforetaket kan ikke holdes ansvarlig for de konsekvenser dette vil kunne få for partene eller andre som har interesser i eiendomshandelen.
Kjøper oppfordres til å innbetale kjøpesummen som ikke kommer fra låneinstitusjon i én samlet innbetaling fra egen konto i norsk bank. Megler har plikt til å melde fra til Økokrim om eiendomshandler som fremstår som mistenkelige. Melding sendes Økokrim uten at partene varsles.
Personopplysningsloven
I henhold til personopplysningsloven gjør vi oppmerksom på at interessenter kan bli registrert for videre oppfølging.
Lovanvendelse
Generelle bestemmelser
Salgsoppgaven er basert på de opplysningene selger har gitt til megler, den bygningssakyndiges tilstandsrapport, samt opplysninger innhentet fra kommunen, Kartverket og andre tilgjengelige kilder. Det er viktig at kjøper setter seg grundig inn i alle salgsdokumentene, herunder salgsoppgave, tilstandsrapport og selgers egenerklæring. Kjøper anses kjent med forhold som er tydelig beskrevet i salgsdokumentene, og slike forhold kan ikke påberopes som mangler. Dette gjelder uavhengig av om kjøper har lest dokumentene. Alle interessenter oppfordres til å undersøke eiendommen nøye, gjerne sammen med fagkyndig før bud inngis. Kjøper som velger å kjøpe usett kan ikke gjøre gjeldende som mangel noe han burde blitt kjent med ved undersøkelsen.
Dersom det er behov for avklaringer, anbefaler vi at interessenter rådfører seg med eiendomsmegler eller egne rådgivere før det legges inn bud.
En bolig som har blitt brukt i en viss tid, har vanligvis blitt utsatt for slitasje og skader kan ha oppstått. Slik bruksslitasje må kjøper regne med, og det kan avdekkes enkelte forhold etter overtakelse som nødvendiggjør utbedringer. Normal slitasje og skader som nødvendiggjør utbedring, er innenfor hva kjøper må forvente og vil ikke utgjøre en mangel.
Kjøper og selgers rettigheter og plikter reguleres av avtalen mellom partene, samt informasjonen som har vært tilgjengelig for kjøperen i forbindelse med handelen. Avtalen utfylles av avhendingsloven, og det gjelder ulike avtalevilkår avhengig av om kjøper er forbrukerkjøper eller ikke. Dette er nærmere beskrevet nedenfor.
På grunn av ulike avtalevilkår kan selger vurdere bud fra en som ikke er forbruker, ulikt fra en forbrukers bud. Dersom kjøper ikke er forbruker, er selger sitt mulige mangelsansvar begrenset fordi eiendommen selges "som den er". Selger kan ikke ta «som den er»- forbehold overfor en forbrukerkjøper. Selv et lavere bud fra en som ikke er forbruker kan foretrekkes fordi begrensningen i mulig mangelsansvar kan ha egenverdi for selger. Selger står fritt til å forkaste eller akseptere ethvert bud, og er for eksempel ikke forpliktet til å akseptere høyeste bud.
Budgiver skal i budskjema avgi egenerklæring om budgiver er forbruker eller næringsdrivende/ person som hovedsakelig handler som ledd i næringsvirksomhet. Budgivere får informasjon dersom andre bud er inngitt av en som ikke er forbruker.
Forbrukerkjøp - definisjon
Med forbrukerkjøp menes kjøp av eiendom når kjøperen er en fysisk person som ikke hovedsakelig handler som ledd i næringsvirksomhet.
Forbruker – avtalevilkår
Eiendommen har en mangel dersom den ikke er i samsvar med kravene som følger av avtalen, eller det foreligger brudd på bestemmelsene i avhendingsloven §§ 3-2 til 3-8. Hvis eiendommen ikke er i samsvar med det kjøperen må kunne forvente ut ifra alder, type og synlig tilstand, kan det være grunnlag for mangelskrav. Det samme gjelder hvis det er holdt tilbake eller gitt uriktige opplysninger om eiendommen. Dette gjelder likevel bare dersom man kan gå ut ifra at det virket inn på avtalen at opplysningen ikke ble gitt eller at mangelskravet ikke blir rettet i tide på en tydelig måte.
Boligen kan ha en mangel etter avhendingsloven § 3-3 andre ledd, dersom det er avvik mellom opplyst og faktisk innvendig areal, forutsatt at avviket er på 2% eller mer og minimum 1 kvm.
Ved beregning av et eventuelt prisavslag eller erstatning må kjøper selv dekke tap/kostnader opptil et beløp på kr 10 000 (egenandel).
Ikke-forbruker (næringsdrivende) – definisjon
Hvis kjøper er en juridisk person, eller en fysisk person som hovedsakelig handler som ledd i næringsvirksomhet, vil kjøpet ikke anses som et forbrukerkjøp.
Ikke-forbruker – avtalevilkår
Eiendommen har en mangel dersom den ikke er i samsvar med kravene som følger av avtalen.
Eiendommen selges «som den er», og selgers ansvar utover det konkret avtalte er da begrenset etter avhendingsloven § 3-9, første ledd andre setning.
Avhendingsloven § 3-3 andre ledd fravikes, og hvorvidt boligens arealsvikt utgjør en mangel vurderes etter avhendingsloven § 3-8.
Informasjon om kjøpers undersøkelsesplikt, herunder oppfordringen om å undersøke eiendommen nøye, gjelder også for kjøpere som ikke anses som forbrukere.
Det forutsettes at hjemmel overføres til kjøper. Hvis kjøper ikke ønsker hjemmelsoverføring av eiendommen, må det tas forbehold om dette i budet.
Meglers vederlag
Meglers vederlag betales av selger og er avtalt til:
Vederlag: 60.000,00
Fotopakke ink drone og kveldsfoto kr 7 500,00
Kontroll av hjemmel og heftelser kr 3 900,00
Markedsføringspakke kr 29 900,00
Oppgjør kr 7 500,00
Tilrettelegging kr 17 000,00
Visninger pr stk kr 1 875,00
Utlegg:
Innhenting av offentlig opplysninger Sandefjord - Norkart kr 3 504,00
Tinglysing sikring kr 545,00
Andre utgifter:
AX tilstandsrapport enebolig kr 20 625,00
Boligselgerforsikring Gjensidige Eiet - regnes av prisantydning kr 38 542,00
Opplysninger om oppdraget
Oppdragsnummer 22-0029/26
Eiendomsmegler Krogsveen AS, avd. Sandefjord
Jernbanealléen 13, 3210, SANDEFJORD
950 007 613
Oppdragets KR-kode KR22.2629
Dato
Sist oppdatert: 24. april 2026 kl. 15:49
Dokumenter
Dokumenter
PDF – 1021 KB
PDF – 755 KB
PDF – 168 KB
PDF – 312 KB
PDF – 29 KB
PDF – 127 KB
PDF – 392 KB
Område
Legg til steder som er viktige for deg
Visning
For å delta på visning, ber vi om at du melder deg på. Da sikrer vi at du får nødvendig informasjon og at det er satt av tilstrekkelig med tid. Kontakt megler dersom annet tidspunkt ønskes. Husk å lese salgsoppgaven før visningen, så du stiller forberedt. NB. Visning utgår dersom det ikke er noen påmeldte.
Ønsker du kun å bli holdt orientert, kan du fra eiendommens hjemmeside få varsel om solgtpris, eller kontakte megler.
Lurer du på noe?
Unngå doble boligrenter
Vi tilbyr gunstig forsikring.
Vurderer du utleie?
Få et tilbud fra Utleie KrogsveenHva koster lånet?
Sjekk estimert lånekostnadVil du varsles om lignende boliger?
Ved å lagre ditt boligsøk hos oss får du beskjed når vi har en bolig som ligner denne, før den legges ut på markedet!

