Gullveien 10C
2 490 000 kr
67 m²
2 soverom
Solgt

Tinnheia – Pen og romslig 3-roms andelsleil. m/stor innglasset balkong og parkeringsplass i felles garasje m/el-billader
Prisantydning
2 490 000 krAndel fellesgjeld
487 320 krOmkostninger
19 252 krTotalpris
2 996 572 kr
Pris
Bruksareal
97 m²BRA-I (internt bruksareal)
67 m²BRA-E (eksternt bruksareal)
10 m²
Areal
Etasje
1Byggeår
1967Soverom
2 soveromBad
1 badType
AndelsleilighetEierform
AndelFasiliteter
Garasje/P-plassFellesutgifter
7 488 krEnergimerke
Gul D
Nøkkelinfo
Unngå doble boligrenter
Vi tilbyr gunstig forsikring.
Vurderer du utleie?
Få et tilbud fra Utleie KrogsveenHva koster lånet?
Sjekk estimert lånekostnadBeskrivelse
Kort om eiendommen
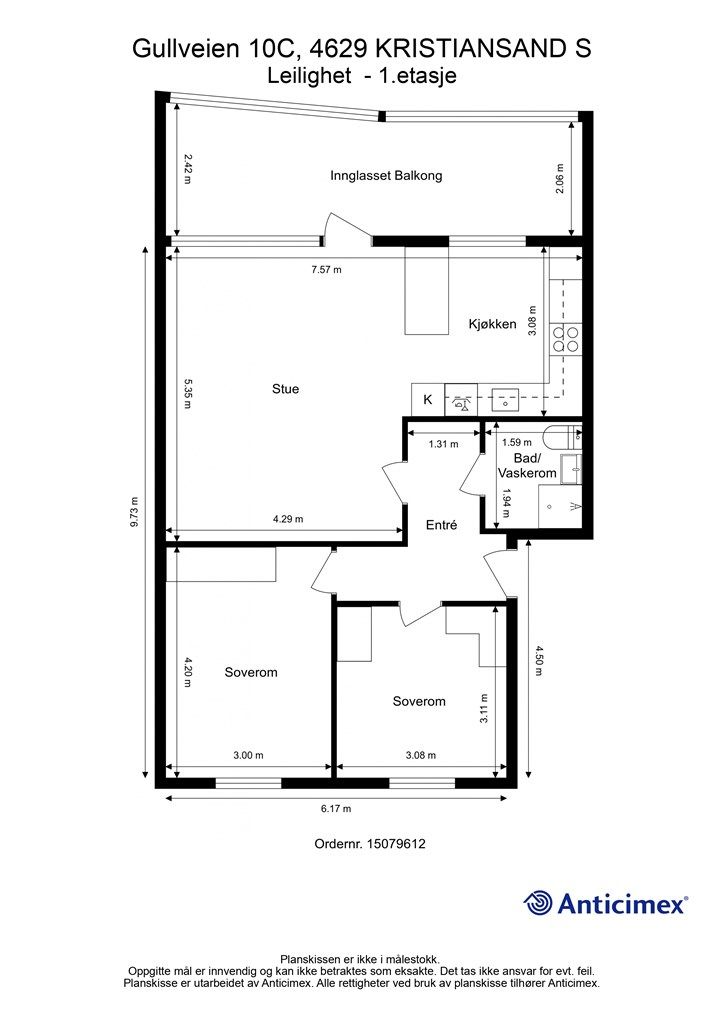
Pen og praktisk 3-roms andelsleilighet i 1. etasje med gjennomgående planløsning og innglasset balkong mot rolige omgivelser. Leiligheten inneholder entré, romslig åpen kjøkken/stue med utgang til innglasset balkong, to soverom og ett bad med opplegg for vaskemaskin.
Boligen ligger lettvint til i et etablert borettslag på Tinnheia, med kort vei til buss, dagligvare og fine turområder.
Garasje med parkeringsplass hører til, El-bil lader på parkeringsplass.
Leiligheten har blitt pusset opp/oppgradert de seneste årene. Blant annet gang, soverom, elektrisk og kjøkken. Leiligheten ligger også i umiddelbar nærhet til daglivarbutikk, treningssenter, restaurant/take-away og turområder. I tillegg er det ikke lange veien til sentrum.
Område
Legg til steder som er viktige for deg
På flyttefot? Tenk kjøp og salg samtidig.
Få din egen rådgiver gjennom hele kjøps- og salgsprosessen. Det starter med en verdivurdering.
Unngå doble boligrenter
Vi tilbyr gunstig forsikring.
Vurderer du utleie?
Få et tilbud fra Utleie KrogsveenHva koster lånet?
Sjekk estimert lånekostnadVil du varsles om lignende boliger?
Ved å lagre ditt boligsøk hos oss får du beskjed når vi har en bolig som ligner denne, før den legges ut på markedet!




















