Teglverksveien 21
9 490 000 kr
176 m²
5 soverom
Komplett salgsoppgave

Bertes/Lund – Innholdsrik del av to-mannsbolig m/2 leiligheter, nydelig utsikt til Bertes og flotte uteområder
Prisantydning
9 490 000 krOmkostninger
258 240 krTotalpris
9 748 240 kr
Pris
Bruksareal
196 m²BRA-I (internt bruksareal)
176 m²BRA-E (eksternt bruksareal)
20 m²TBA (terrasse-balkongareal)
26 m²
Areal
Etasje
3Byggeår
1954Soverom
5 soveromBad
3 badType
Halvpart horisontaldelt boligEierform
EierseksjonFasiliteter
Garasje/P-plass og Balkong/TerrasseEnergimerke
F
Nøkkelinfo
Unngå doble boligrenter
Vi tilbyr gunstig forsikring.
Vurderer du utleie?
Få et tilbud fra Utleie KrogsveenHva koster lånet?
Sjekk estimert lånekostnadBeskrivelse
Kort om eiendommen
Velkommen til en flott del av en romslig tomannsbolig beliggende i Teglverksveien 21 på Lund
Her får du en upåklagelig beliggenhet kun noen steinkast fra populære Bertes, samt sol fra tidlig morgen til sene kvelden.
Boligen går over flere plan og har en praktisk planløsning .
Eiendommen har fungert som generasjonsbolig og inndelt i 2 leiligheter.
Boligen inneholder blant annet flere stuer, kjøkken, 5 soverom og bad, noe som gir fleksible bruksmuligheter. Det er utgang til balkonger fra flere rom. Fra 1 etasje har du også utgang til lun og solrik hage.
Eiendommen er opparbeidet med blant annet gårdsplass, hagearealer og garasje.
Innhold og byggemåte
Innhold og byggemåte
Eiendommen
Teglverksveien 21, 4632 KRISTIANSAND S
Kommunenummer 4204, gårdsnummer 152, bruksnummer 1438, seksjonsnummer 2
Innhold
Totalt bruksareal BRA: 196 kvm
BRA-i:
Tomannsbolig:
Kjeller etasje. etasje 12 kvm: Entré og garderobe
1. etasje 125 kvm: Gang, fire soverom, kjøkken, bad og stue
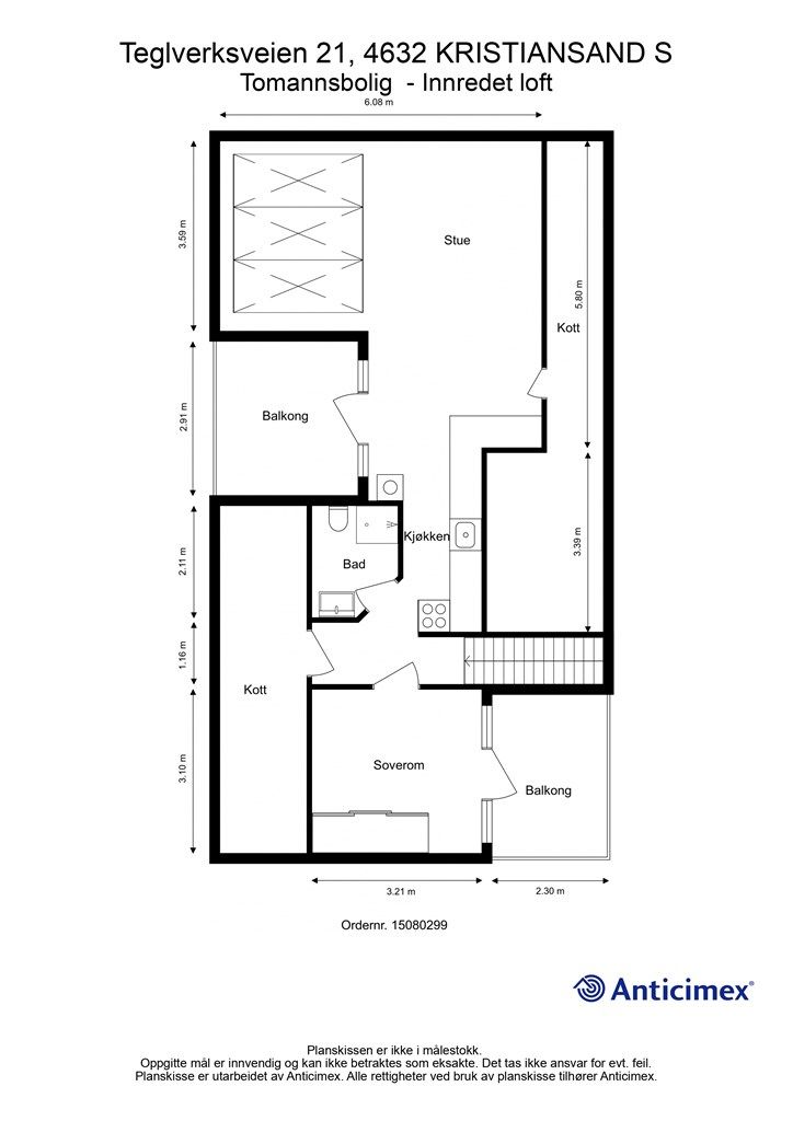
Loft (3) etasje 39 kvm: Gang, soverom, bad og kjøkken/stue
BRA-e:
Åpent areal
1. etasje 12 kvm: Balkong
Loft (3) etasje 14 kvm: Balkong 7+7kvm
BRA-e:
1. etasje 5 kvm: Utvendig bod
BRA-e:
Garasje:
1. etasje 15 kvm: Garasje
I tillegg er det en felles sykkelbod i underetasjen.
Loftetasjen (3) etasjen har et totalt gulvareal (GUA) på 57 kvm, men grunnet skråtak / lav takhøyde er kun 39 kvm av arealet måleverdig som bruksareal. De delene av arealene som har lav himlingshøyde (ALH) utgjør 18 kvm.
Vedlagte plantegninger er ikke målbare. De oppgitte arealer er hentet fra rapport med befaringsdato 24.04.2025 utført av Tom Henning Moen . Arealene er beregnet og rom er definert etter dagens faktiske bruk, uavhengig av hva som er godkjent av bygningsmyndighetene.
Se punkt ferdigattest.
-Ang seksjonering
Det er tidligere prøvd en reseksjonering av bygget,
Det søkes om reseksjonering ved at fellesareal i 1.etasje overføres til seksjon 1. Nye tegninger viser at trapperommet skilles ut som eget rom:
Svaret fra Bygningsmyndighetene var som følger
Bygningsmyndigheten er av den oppfatning at dette er en søknadspliktig endring, og at det i søknad må inn et firma som erklærer ansvar for brannprosjekteringen. (TEK17, § 11-8 Brannceller)
På bakgrunn av dette svaret har eierne av sek 1 og 2 latt dette ligge i bero og beholdt dagens løsning uten å reseksjonere.
Dersom ny eier i samråd med eier av sek 1 ønsker dette utført, bærer nye kjøper kostnadene og risikoen for dette sammen med sek 1.
Byggemåte
Selger har innhentet en tilstandsrapport av boligen/eiendommen. Av rapporten fremgår det at flere bygningsdeler har fått tilstandsgrad ikke undersøkt/ikke tilgjengelig for undersøkelse (TG IU), 2 (TG2) og/eller 3 (TG3). I denne rapporten er det ingen TG 3.
Rapporten beskriver også avvik på undersøkte bygningsdeler uten tilstandsgrad. Kjøper overtar ansvaret for de opplysninger som fremkommer av salgsdokumentasjonen, og kan ikke gjøre gjeldende som mangel noe som burde vært kjent eller som ikke kan anses å ha betydning for avtalen.
Bygningen er iht. tilstandsrapporten oppført i tre. Bolig oppført i 1954. Grunnmur av betong. Bygget er oppført med støpt gulv mot grunn. Yttervegger av trekonstruksjoner. Utvendige fasader er kledd med liggende trekledning. Etasjeskillere av trekonstruksjoner. Saltak i trekonstruksjoner. Yttertak er belagt med takstein. Entrédør med glassfelter. Vinduer i forskjellig materialer fra forskjellige årstall. Boligen ventileres hovedsakelig med naturlig ventilasjon gjennom vinduer og ventiler.
Oppsummering av tilstandsrapporten:
TG 1 Mindre eller moderate avvik (funksjonssvikt ikke oppdaget)- 83 %
TG 2 Vesentlige avvik (alder, slitasje, skader mv.) - 17 %
TG IU Ikke undersøkt - 1 %
Oppsummering av Selgers egenerklæringsskjema:
1. Har det væ rt feil på bad, vaskerom eller toalettrom?
- Sensor på varmekabler bad 3.etg byttet i 2025
2 Er det utført arbeid på bad, vaskerom eller toalettrom?
- 2017, Faglært, Begge bad i 2.etg ble totalrenovert, var tidligere et stort bad. Rørleggermester Tom Tvedt AS, Har dokumentasjon
- 2019, Faglært, Byttet velux vindu på bad 3.etg rundt 2019, Husker ikke firma, Har dokumentasjon
- 2025, Faglært, Ny varmtvannsbereder med trykktank, Rørleggermester Tom Tvedt AS, Har dokumentasjon,
3 Har det lekket vann utenfra og inn, eller er det sett andre tegn til fukt?
- Ja, Lekkasje i et beslag på verandaen i 3.etg Ble utbedret i forsikringssak. Førte til at det kom vann på kryploftet i 3.etg og tak 2.etg stue. Fukt i felles sykkelbod.
4 Er det utført arbeid på tak, yttervegg, vindu eller annen fasade?
- 2018, Ufaglært, Tettet igjen en verandadør og vindu på soverom 2.etg mot verandaen. Ikke søkt om.
- 2017, Faglært, Forsikringssak i forbindelse med vannlekkasje. Husker ikke firma, Har dokumentasjon
- 2023, Faglært, Sprekk i Velux vindu i stue 3.etg ble byttet med nytt glass i 2026. Rasch AS Glassmester Har dokumentasjon.
- 2023, Ufaglært. 2023, Av ufaglært, Verandadør 3.etg byttet.
- 2017, Ufaglært, Flere nye vinduer i 2.etg, blant annet på soverom og kjøkken.
5 Har sameiet eller borettslaget hatt problemer med fukt, vann eller oversvømmelse i kjeller eller underetasje?
- Ja, Vannlekkasje fra varmtvannstank 2025, ble byttet med ny tank.
7 Er det observert vann eller fukt i kjeller, krypkjeller eller underetasje?
- Ja, Vannlekkasje fra varmtvannstank 2025, ble byttet med ny tank.
10 Er det utført arbeid på det elektriske anlegget?
- 2025, Faglært, Nye ledlys stue 3.etg og gang 2.etg og bytte av sensor bad 3. etg, Lund Elektro, Har dokumentasjon.
- 2025, Faglært, Kontroll av el-anlegg 3.etg, alt ok, Kommunen/Strømselskap. Har dokumentasjon
- 2017, Faglært, Oppgradert elektrisk annlegg i forbindelse med oppussing. Lund elektro, Har dokumentasjon.
13 Er det utført arbeid på utvendige eller innvendige avløpsrør eller vannrør?
- 2017, Faglært, Begge bad 2.etg totalrenovert i 2017. Rørleggermester Tom Tvedt AS, Har dokumentasjon.
- 2025, Faglært, Byttet kjøkkenkran på kjøkken 3.etg, Rørleggermester Tom Tvedt AS, Har dokumentasjon.
14 Er det eller har det væ rt nedgravd oljetank på eiendommen?
- Ja, Har hørt at det skal finnes både en oljetank og gammel septiktank på tomten.
18 Har det væ rt feil eller gjort endringer på ildsted eller pipe?
- Slammet peis i forbindelse med oppussing 2.etg 2017.
21 Har det væ rt mugg, sopp eller råte i boligen eller andre bygninger på eiendommen?
- Antar det er mugg i felles sykkelbod, men ikke bekreftet.
23 Mangler boligen eller andre bygninger brukstillatelse eller ferdigattest for søknadspliktige tiltak?
- Ja, Tettet igjen en verandadør og vindu på soverom 2.etg mot verandaen i 2018. Ikke søkt om.
24 Har du bygd på eller gjort om kjeller, loft eller annet til boligrom?
- 2000, Faglært, Se tinglyste tegninger fra 2000 der loft ble til leilighet. Byggmester Kristiansen AS, Har dokumentasjon, Innvilget tillatelse,
28 Er det andre forhold av betydning eller sjenanse for eiendommen eller næ rområdet?
- Nabo over veien skal lage ny garasje. Ellers har det vært større utbyggninger i naboområdet de siste årene.
31 Har ufaglæ rte utført arbeid som normalt bør utføres av faglæ rte? Du trenger ikke gjenta noe du allerede har nevnt.
- Ja, Tettet verandadør+vindu 2.etg og ny verandadør 3.etg.
32 Har du andre opplysninger om boligen eller eiendommen utover det du har svart?
- Ja, Installert vannmåler for seksjon 1 og 2 i 2025, via Rørleggermester Tom Tvedt AS.
Selger opplyser om følgende: det mangler en liten garderobedør på soverom 4, i dag henger det et speil over hullet.
Løsøre og tilbehør
Vi viser til liste fra Norges Eiendomsmeglerforbund som gjelder fra 01.01.2020 angående løsøre og tilbehør.
Knagger soverom, medfølger ikke.
Oppvarming
Oppvarming av boligen skjer i en kombinasjon mellom bruk av panelovner (elektrisk oppvarming), gulvvarme/varmekabler i enkelte rom og ildsted plassert i
stue 1.etasje.
Selger har avtalt Norgespris på strøm på eiendommen for perioden 2026, og denne er pt på 50 øre inkl mva. Nettleie, avgifter og påslag fra kraftleverandøren kommer i tillegg. Er det fjernvarme vil det også komme kostnader i tillegg.
Denne avtalen vil følge eiendommen i den avtalte perioden.
Les mer om Norgespris her: https://www.regjeringen.no/no/aktuelt/legg-fram-lov-om-norgespris-pa-straum-og-fjernvarme/id3102642/
Ferdigattest/brukstillatelse
Det foreligger ferdigattest på eiendommen datert 09.07.1954 Denne kan fås ved henvendelse til megler.
Ferdigattesten omfatter ikke:
Det foreligger godkjenning for følgende dater 06.06.2000 - 2 Nye balkonger, 6 nye takvinduer (Velux), Ominnredning av loftsetasjen.
Det gjøres oppmerksom på følgende: Kjøkkenet er utvidet og er innlemmet i tidligere bad, bad er flyttet rett over gang. Ikke byggemeldt.
Følgende er bygget på boligen:
Tilbygg til nåv. våningshus datert 02.juni 1964 ca 35 kvm
Det foreligger godkjenning for innbygging av veranda, tak over inngang, 13.09.1991
Garasje godkjent 14.09.1981
Det er gjort større endringer i planløsning.
Det er etablert soverom der spisestuen lå originalt, kjøkken er også omgjort til soverom. Det er etablert nytt bad mellom opprinnelig kjøkken og spisestue ( Ikke byggemeldt ).
Kjøkken er flyttet ut der vaskerom og forstue lå tidligere.
Toalett rom er implementert i hovedbadet som er på tegningene.
Kjøper overtar alt ansvar, kostnad og risiko for dette videre.
Det gjøres oppmerksom på at det ikke lenger utstedes ferdigattest på tiltak det er søkt om før 1998 jf. plan- og bygningsloven § 21-10. Kommunen vil ikke kreve ferdigattest for disse tiltakene og vil avvise eventuelle søknader. Bestemmelsen innebærer ikke at tiltak med manglende søknad blir lovlige, men at man ikke trenger å avslutte gamle byggesaker. Normalt sett kreves ferdigattest for alle søknadspliktige tiltak som gjøres etter plan- og bygningsloven.
Kjøper overtar alt ansvar, kostnad og risiko for dette videre.
Bygget er seksjonert og denne seksjonen har kun rett på gangarealet i underetg og ikke vaskerom som ligger i den opprinnelige seksjoneringen. Avtalen ligger vedlagt.
Tinglyste heftelser og rettigheter
Eiendommen overdras fri for pengeheftelser med unntak av:
Dagboknr 1954/814/93 erklæring ang vedlikehold og reparasjon av felles vann og kloakkledning
Kommunen har rett til å kunne vedlikeholde ledningsnettet sitt datert 1955-827/93
Seksjonering - inndeling av leiligheten i bygget datert 2002 -6496-93
-
Dagbok 1956/50/93. Det ble tidligere gitt tillatelse for innredning av loftsværelse ( senere ombygd) Værelse skal ikke leies ut til særskilt leilighet for Familie
Eventuell adgang til utleie
Eiendommen har ikke separat utleieenhet. Det vil normalt være anledning til utleie av hele eiendommen eller enkeltrom, såfremt utleiearealet er bygningsmessig godkjent for varig opphold og har forsvarlige radonnivåer.
Diverse
Tilbud av produkter og tjenester fra våre samarbeidspartnere
Vi er opptatt av verdiskapning, og har knyttet til oss samarbeidspartnere som skal sikre våre kunder de beste produkter og tjenester;
• Gjensidige leverer boligselgerforsikring og tilbyr bygningsforsikring
• Boligkjøperforsikring leveres av Hiscox og med Sedgwick som skadebehandler, og er formidlet gjennom Gjensidige.
• BN bank tilbyr finansieringsløsninger
• Vår avdeling Krogsveen Pluss tilbyr flyttetjenester som utvask, visningsvask, lager, tømming og transport av flyttelass, i tillegg til å formidle kontakt med Flip for overflateoppussing.
• I forbindelse med overtagelse av eiendommen tilbyr Overo avtale om strøm, alarm og bredbånd.
• Krogsveen er, sammen med øvrige bransjeaktører, medeier i den digitale annonseringsplattformen Hjem som eies av Bomega AS.
Beliggenhet og tomteforhold
Beliggenhet og tomteforhold
Beliggenhet
Boligen har en sentral og flott beliggenhet på Lund i Kristiansand. Området er veletablert og oppleves rolig, samtidig som det er kort vei til alt av fasiliteter.
Her ligger du rett ved Bertesbukta som er hele Lunds badeplass med både bryggeanlegg, stupetårn, sandstrand og svaberg er det et yndet sted for badeglade Lundskråger. I Bertes ligger også en stor kommunal båthavn
Fra boligen er det gang- og sykkelavstand til dagligvarebutikker, skoler, barnehager og UiA. Det er også gode kollektivforbindelser i området, noe som gir enkel tilgang til øvrige deler av byen.
I nærområdet finnes fine tur- og rekreasjonsmuligheter, blant annet langs Otra og i omkringliggende grøntområder. Området passer godt for både studenter, unge voksne og familier som ønsker en enkel hverdag med det meste innen rekkevidde.
Adkomst
Det vil bli skiltet med Krogsveen visningsskilt ved fellesvisninger.
Barnehager, skoler og fritid
Barnehager:
Roligheden Gård barnehage - 0.3 km
Kuholmen barnehage -0.5 km
Bamsebo barnehage - 0.9 km
Skoler:
Wilds Minne skole (1-7 kl.) - 0.3 km
Kristiansand Internasjonale skole (1-10 kl.) - 1.4 km
Steinerskolen i Kristiansand (1-10 kl.) - 1.7 km
Lovisenlund skole (1-7 kl.) - 1.9 km
Oddemarka skole (8-10 kl.) - 1.6 km
Videregående Skoler:
Akademiet vgs Kristiansand - 1.8 km
Kvadraturen Skolesenter - 1.9 km
Tangen Videregående Skole - 2.0 km
Varer/Tjenester:
Sandens Kjøpesenter 5 min m/ bil
Torvkvartalet 5 min m/ bil
Vitusapotek Lund 5 min gange
Apotek 1 Lund 8 min gange
Lillemarkens Vinmonopol 6 min m/ bil
Beskrivelse av tomt
Tomt er opparbeidet med blant annet asfalt, steinheller, steintrapper, biloppstillingsplass, plenarealer og andre forskjellige beplantninger.
På baksiden av boligen har du flott og solrik uteplass, plenareal. Her ligger du ofte i le for vinden. Denne delen har eksklusiv bruksrett på dette.
Eiendommen er seksjonert og sek 1( under etg har eksklusiv bruksrett på hagedel mot veien utenfor selve leiligheten.
Se vedlegg.
Parkering
Garasjen tilhører denne seksjonen, samt en biloppstillingsplass.
Vei, vann og avløp
Eiendommen har adkomst via kommunal vei.
Eiendommen er tilknyttet kommunalt ledningsnett via private stikkledninger. Eier er selv ansvarlig for private stikkledninger til boligen.
Regulerings-og arealplaner
Eiendommen er regulert til boligbebyggelse med tilhørende anlegg i henhold til detaljregulering for Teglverksveien 15–21 og Teglstien 1, 3, 5, plan nr. 1500, datert 06.08.2020, revidert 25.10.2021, med tilhørende reguleringsbestemmelser.
Planen legger til rette for boligbebyggelse med tilhørende uteoppholdsarealer, parkering og teknisk infrastruktur
Utsnitt av plan med tilhørende bestemmelser kan fås ved henvendelse til megler.
Økonomi
Økonomi
Kommunale utgifter
Kommunale avgifter er kr 21 066,- for inneværende år. I dette inngår gebyr for vann, avløp, eiendomsskatt og feiing/tilsyn. Det tas forbehold om at kommunen kan justere gebyrene i løpet av året.
Nåværende eier har et strømforbruk som tilsvarer ca. kr 16 000,- pr. år. / 15000 kwh. pr. år.
Boligen har en årlig forsikringspremie på kr 16921. ( Seksjon 2 betaler 9/15 deler av kostnaden)
Boligen er tilknyttet Telenor ( Kun 3.etg ) som leverandør av fiber. Tv-tuner/dekoder medfølger ikke.
Utgiftene er basert på nåværende eiers forbruk og avtaler.
Formuesverdi
Formuesverdi for 2024 var kr 1 418 646,- ifølge selgers skattemelding/Skatteetaten. Beløpet forutsetter at eier bor fast i boligen (primærbolig).
Ved eventuell øvrig bruk av eiendommen (f.eks. fritidsbolig, pendlerbolig, utleieobjekt) var formuesverdien for 2024 kr 5 673 854,-/5 674 584,-.
Fra 2026 har Stortinget vedtatt en oppdatert modell for beregning av formuesverdi for primærbolig, så avvik kan forekomme.
For mer informasjon se skatteetaten.no
Eiendomsskatt
Eiendomsskatten utgjør kr. 7 688kr pr år.
Omkostninger
9 490 000,00 Prisantydning
Omkostninger
237 250,00 Dokumentavgift til staten (2,5% av kjøpesum)
19 900,00 Gjensidige Boligkjøperpakke* (valgfritt)
545,00 Tinglysing panterettsdokument
545,00 Tinglysing skjøte
--------------------------------------------------------
238 340,00 Omkostninger totalt (uten Gjensidige Boligkjøperpakke)
258 240,00 Omkostninger totalt (med Gjensidige Boligkjøperpakke)
--------------------------------------------------------
9 728 340,00 Totalpris inkl. omkostninger
9 748 240,00 Totalpris inkl. omkostninger (med Gjensidige Boligkjøperpakke)
--------------------------------------------------------
Betalingsbetingelser
Kjøpesum inkludert omkostninger, samt pantedokument tilknyttet eventuelt lån, skal være disponibelt hos megler 2 virkedager før overtagelsen.
Annen viktig informasjon
Annen viktig informasjon
Eier
Karin Elisabeth Olsen og Annelise Balke
Overtakelse
Etter nærmere avtale.
Boligselgerforsikring
Selger har i forbindelse med salget tegnet boligselgerforsikring levert av Gjensidige.
Boligselgerforsikringen dekker selgers ansvar etter avhendingsloven begrenset oppad til kr 14 millioner. Dersom kjøper oppdager forhold ved eiendommen som hen mener utgjør en mangel ved eiendommen, vil Gjensidige behandle reklamasjonen på vegne av selger. Forsikringsvilkår kan fås ved henvendelse til megler.
Vedlagt salgsoppgaven følger selgers egenerklæringsskjema og tilstandsrapport. Interessenter må sette seg inn i dokumentene før bud inngis.
Boligkjøperforsikring
Innen kontraktsmøtet må kjøper ta stilling til om det ønskes å bestille Boligkjøperpakken gjennom Gjensidige. I denne gunstige pakken er boligen ferdig forsikret og inkluderer rettshjelpsforsikring, også kalt Boligkjøperforsikring. Rettshjelpsforsikring gir trygghet og tilgang på profesjonell juridisk hjelp dersom det oppdages uventede feil eller mangler det første året etter overtagelse. Forsikringsselskapet behandler i så fall ethvert mangelskrav kjøper måtte ha overfor selger.
Boligkjøperpakken inkluderer bygningsforsikring for hus og hytte, innboforsikring, flytteforsikring og dobbel rentedekning - i situasjoner hvor kjøper ikke får solgt nåværende primærbolig.
Kjøper mottar ingen særskilt faktura for Boligkjøperpakken da kostnaden det første året legges til kjøpesummen for boligen. Det gjøres oppmerksom på Krogsveen mottar et honorar for denne formidlingen.
Produktark for Boligkjøperpakken ligger vedlagt i salgsoppgaven.
Dersom ikke boligkjøperpakke ønskes kan kun rettshjelpsforsikring, også kalt boligkjøperforsikring, tegnes særskilt via megler. Rettshjelpsforsikringen varer i 5 år fra overtagelse og leveres gjennom Gjensidige. Ta kontakt med megler for ytterligere informasjon.
Selskap og privatpersoner som driver med kjøp/salg/utvikling som ledd i egen næringsvirksomhet kan ikke tegne boligkjøperpakke eller rettshjelpsforsikring.
Budgivning
Forbrukerinformasjon om budgivning er vedlagt denne salgsoppgaven og er også på vår hjemmeside Krogsveen.no. Alle bud og budforhøyelser må inngis skriftlig. I tillegg må legitimasjon være fremlagt sammen med signatur fra budgiver.
Vi oppfordrer til å gi bud elektronisk via GI BUD-knappen på eiendommens hjemmeside på Krogsveen.no. Da vil samtlige vilkår bli oppfylt.
Eventuelle forhøyelser eller endringer av budet kan bekreftes pr SMS eller på e-post. Vi oppfordrer alltid til å kontakte megler pr. telefon i tillegg da forsinkelser i SMS og e-post kan forekomme.
For at budene skal kunne bli behandlet og videreformidlet skriftlig til alle involverte parter, må alle bud ha en tilstrekkelig lang akseptfrist, jf. eiendomsmeglingsforskriften § 6-3.
Selger må også skriftlig akseptere budet før aksept kan formidles til budgiver. Akseptfrist bør derfor være på minimum 30 minutter, og budforhøyelser må derfor skje i god tid før fristens utløp.
Bud i forbrukerforhold kan uansett ikke settes med kortere frist enn kl. 12.00 første virkedag etter siste annonserte visning. I tillegg kan ikke budet ha forbehold om at det skal holdes hemmelig ovenfor øvrige interessenter. Megler har iht lov om eiendomsmegling ikke anledning til å videreformidle disse budene, og de vil dermed heller ikke bli journalført.
Etter at eiendommen er solgt vil kjøper og selger få tilsendt budjournal. Øvrige budgivere kan få utlevert kopi av budjournalen i anonymisert form.
Hvitvaskingsreglene
I henhold til lov om hvitvasking og terrorfinansiering har megler plikt til å gjennomføre kontrolltiltak overfor kunder, herunder fullmektiger. Dette innebærer bl.a. å bekrefte kunders og reelle rettighetshaveres identitet på bakgrunn av fremvist gyldig legitimasjon eller på annen godkjent måte, samt å innhente opplysninger om kundeforholdets formål og tilsiktede art.
Dersom slike kundetiltak ikke kan gjennomføres, kan megler ikke etablere kundeforholdet eller utføre transaksjonen.
Hvis kjøper ikke bidrar til gjennomføring av kundekontrollen og dette fører til at transaksjonen blir forsinket eller ikke kan gjennomføres, vil dette ansees som mislighold av avtalen og gi selger rettigheter etter avhendingslova kapittel 5. I tilfeller der selger ikke bidrar til gjennomføring av løpende kundekontroll underveis i oppdraget, er det selger som misligholder sine forpliktelser etter avtalen og gi kjøper rettigheter etter avhendingslovens kapittel 4. Partene er selv ansvarlige for eventuelle kostnader og ansvar dette kan medføre. Eiendomsmegleren eller eiendomsmeglingsforetaket kan ikke holdes ansvarlig for de konsekvenser dette vil kunne få for partene eller andre som har interesser i eiendomshandelen.
Kjøper oppfordres til å innbetale kjøpesummen som ikke kommer fra låneinstitusjon i én samlet innbetaling fra egen konto i norsk bank. Megler har plikt til å melde fra til Økokrim om eiendomshandler som fremstår som mistenkelige. Melding sendes Økokrim uten at partene varsles.
Personopplysningsloven
I henhold til personopplysningsloven gjør vi oppmerksom på at interessenter kan bli registrert for videre oppfølging.
Lovanvendelse
Generelle bestemmelser
Salgsoppgaven er basert på de opplysningene selger har gitt til megler, den bygningssakyndiges tilstandsrapport, samt opplysninger innhentet fra kommunen, Kartverket og andre tilgjengelige kilder. Det er viktig at kjøper setter seg grundig inn i alle salgsdokumentene, herunder salgsoppgave, tilstandsrapport og selgers egenerklæring. Kjøper anses kjent med forhold som er tydelig beskrevet i salgsdokumentene, og slike forhold kan ikke påberopes som mangler. Dette gjelder uavhengig av om kjøper har lest dokumentene. Alle interessenter oppfordres til å undersøke eiendommen nøye, gjerne sammen med fagkyndig før bud inngis. Kjøper som velger å kjøpe usett kan ikke gjøre gjeldende som mangel noe han burde blitt kjent med ved undersøkelsen.
Dersom det er behov for avklaringer, anbefaler vi at interessenter rådfører seg med eiendomsmegler eller egne rådgivere før det legges inn bud.
En bolig som har blitt brukt i en viss tid, har vanligvis blitt utsatt for slitasje og skader kan ha oppstått. Slik bruksslitasje må kjøper regne med, og det kan avdekkes enkelte forhold etter overtakelse som nødvendiggjør utbedringer. Normal slitasje og skader som nødvendiggjør utbedring, er innenfor hva kjøper må forvente og vil ikke utgjøre en mangel.
Kjøper og selgers rettigheter og plikter reguleres av avtalen mellom partene, samt informasjonen som har vært tilgjengelig for kjøperen i forbindelse med handelen. Avtalen utfylles av avhendingsloven, og det gjelder ulike avtalevilkår avhengig av om kjøper er forbrukerkjøper eller ikke. Dette er nærmere beskrevet nedenfor.
På grunn av ulike avtalevilkår kan selger vurdere bud fra en som ikke er forbruker, ulikt fra en forbrukers bud. Dersom kjøper ikke er forbruker, er selger sitt mulige mangelsansvar begrenset fordi eiendommen selges "som den er". Selger kan ikke ta «som den er»- forbehold overfor en forbrukerkjøper. Selv et lavere bud fra en som ikke er forbruker kan foretrekkes fordi begrensningen i mulig mangelsansvar kan ha egenverdi for selger. Selger står fritt til å forkaste eller akseptere ethvert bud, og er for eksempel ikke forpliktet til å akseptere høyeste bud.
Budgiver skal i budskjema avgi egenerklæring om budgiver er forbruker eller næringsdrivende/ person som hovedsakelig handler som ledd i næringsvirksomhet. Budgivere får informasjon dersom andre bud er inngitt av en som ikke er forbruker.
Forbrukerkjøp - definisjon
Med forbrukerkjøp menes kjøp av eiendom når kjøperen er en fysisk person som ikke hovedsakelig handler som ledd i næringsvirksomhet.
Forbruker – avtalevilkår
Eiendommen har en mangel dersom den ikke er i samsvar med kravene som følger av avtalen, eller det foreligger brudd på bestemmelsene i avhendingsloven §§ 3-2 til 3-8. Hvis eiendommen ikke er i samsvar med det kjøperen må kunne forvente ut ifra alder, type og synlig tilstand, kan det være grunnlag for mangelskrav. Det samme gjelder hvis det er holdt tilbake eller gitt uriktige opplysninger om eiendommen. Dette gjelder likevel bare dersom man kan gå ut ifra at det virket inn på avtalen at opplysningen ikke ble gitt eller at mangelskravet ikke blir rettet i tide på en tydelig måte.
Boligen kan ha en mangel etter avhendingsloven § 3-3 andre ledd, dersom det er avvik mellom opplyst og faktisk innvendig areal, forutsatt at avviket er på 2% eller mer og minimum 1 kvm.
Ved beregning av et eventuelt prisavslag eller erstatning må kjøper selv dekke tap/kostnader opptil et beløp på kr 10 000 (egenandel).
Ikke-forbruker (næringsdrivende) – definisjon
Hvis kjøper er en juridisk person, eller en fysisk person som hovedsakelig handler som ledd i næringsvirksomhet, vil kjøpet ikke anses som et forbrukerkjøp.
Ikke-forbruker – avtalevilkår
Eiendommen har en mangel dersom den ikke er i samsvar med kravene som følger av avtalen.
Eiendommen selges «som den er», og selgers ansvar utover det konkret avtalte er da begrenset etter avhendingsloven § 3-9, første ledd andre setning.
Avhendingsloven § 3-3 andre ledd fravikes, og hvorvidt boligens arealsvikt utgjør en mangel vurderes etter avhendingsloven § 3-8.
Informasjon om kjøpers undersøkelsesplikt, herunder oppfordringen om å undersøke eiendommen nøye, gjelder også for kjøpere som ikke anses som forbrukere.
Det forutsettes at hjemmel overføres til kjøper. Hvis kjøper ikke ønsker hjemmelsoverføring av eiendommen, må det tas forbehold om dette i budet.
Meglers vederlag
Meglers vederlag betales av selger og er avtalt til:
Vederlag: 1,25 % av salgssummen inkl. eventuell fellesgjeld. Minimumsprovisjon er kr 0,00
Vederlag:
Kontroll av hjemmel og heftelser kr 3 900,00
Markedsføringspakke kr 28 900,00
Oppgjør kr 8 900,00
Tilrettelegging kr 16 900,00
Visninger alle inkludert kr 2 500,00
Utlegg:
Innhenting av offentlig opplysninger kr 3 739,00
Tinglysing sikring kr 545,00
Andre utgifter:
AX tilstandsrapport rekkehus/tomannsbolig kr 17 500,00
Boligselgerforsikring Gjensidige Snr - regnes av prisantydning kr 40 304,00
Foto inkl Drone kr 3 500,00
Opplysninger om oppdraget
Oppdragsnummer 31-0030/26
Eiendomsmegler Krogsveen AS, avd. Kristiansand
Østre Strandgate 12, 4610, KRISTIANSAND S
950 007 613
Oppdragets KR-kode KR31.2630
Dato
Sist oppdatert: 13. mai 2026 kl. 14:23
Dokumenter
Dokumenter
PDF – 981 KB
PDF – 169 KB
PDF – 308 KB
PDF – 312 KB
PDF – 29 KB
PDF – 127 KB
PDF – 392 KB
Område
Legg til steder som er viktige for deg
Visning
Det er ingen planlagte visninger. Meld deg på for å avtale en tid som passer.
Lurer du på noe?
Unngå doble boligrenter
Vi tilbyr gunstig forsikring.
Vurderer du utleie?
Få et tilbud fra Utleie KrogsveenHva koster lånet?
Sjekk estimert lånekostnadVil du varsles om lignende boliger?
Ved å lagre ditt boligsøk hos oss får du beskjed når vi har en bolig som ligner denne, før den legges ut på markedet!

