Lutvannsveien 1
4 900 000 kr
83 m²
3 soverom
Komplett salgsoppgave

Lutvann
Gjennomgående 4-roms selveier med flott utsikt | Innglasset balkong (9 m²) | Varmtvann, internett, fyring & kabel-TV ink
Prisantydning
4 900 000 krAndel fellesgjeld
259 650,75 krOmkostninger
140 010 krTotalpris
5 299 660,75 kr
Pris
Bruksareal
97 m²BRA-I (internt bruksareal)
83 m²BRA-E (eksternt bruksareal)
5 m²
Areal
Etasje
3Byggeår
1974Soverom
3 soveromBad
1 badType
EierleilighetEierform
EierseksjonFasiliteter
Garasje/P-plass og Balkong/TerrasseFellesutgifter
6 680 kr
Nøkkelinfo
Unngå doble boligrenter
Vi tilbyr gunstig forsikring.
Vurderer du utleie?
Få et tilbud fra Utleie KrogsveenHva koster lånet?
Sjekk estimert lånekostnadBeskrivelse
Kort om eiendommen
Innhold og byggemåte
Innhold og byggemåte
Eiendommen
Lutvannsveien 1, 0676 OSLO
Kommunenummer 301, gårdsnummer 142, bruksnummer 41, seksjonsnummer 17, ideell andel 1/1
Innhold
Totalt bruksareal BRA: 97 kvm
BRA-i:
Selveierleilighet:
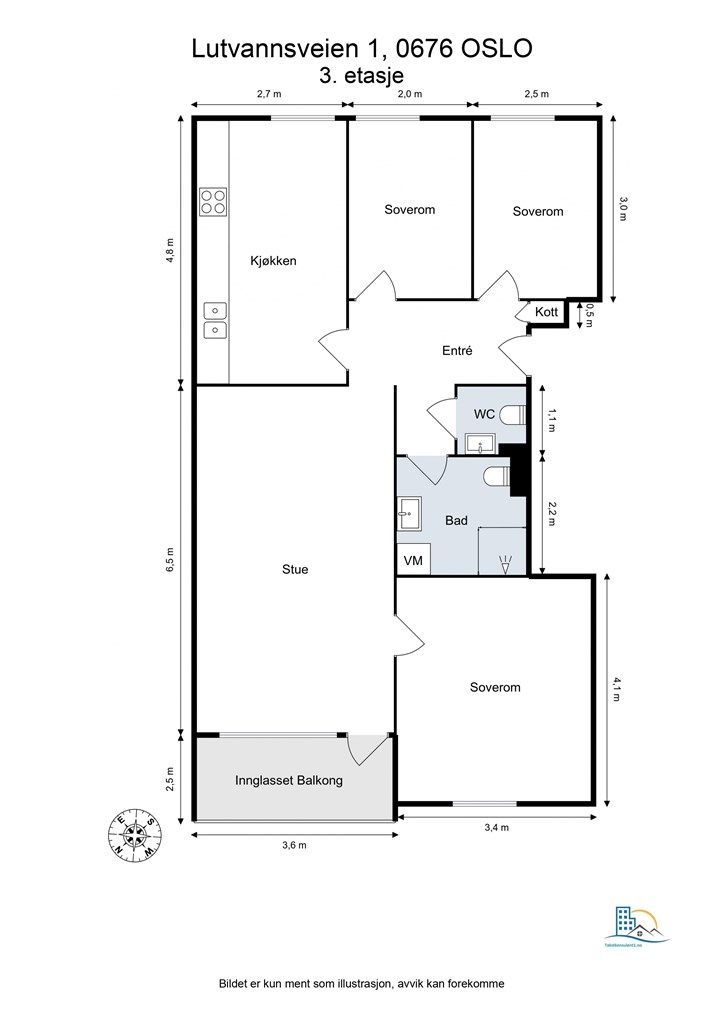
3. etasje 83 kvm: Entré, 3 soverom, kjøkken, toalettrom, bad, og stue.
BRA-e:
Kjeller 5 kvm: Kjellerbod.
BRA-b:
3. etasje 9 kvm: Innglasset balkong.
Eiendommen har bruksrett til en kjellerbod på 5 kvm. Det gjøres oppmerksom på at boligens eksterne boder tilhører sameiets fellesareal, og at boden således ikke eies av den enkelte sameier. Dette medfører at sameiet i fellesskap beslutter bruken, og at man ikke selv har eierrett og rettsvern for boden. Sameiet kan ved vedtak beslutte annet bruk av fellesarealet og disponering av bodarealet kan dermed opphøre.
Vedlagte plantegninger er ikke målbare. De oppgitte arealer er hentet fra rapport med befaringsdato 26.03.2026 utført av Takstkonsulent1 AS v/Marcus Pettersen.
Byggemåte
Selger har innhentet en tilstandsrapport av boligen/eiendommen. Dersom det er registrert avvik, er disse klassifisert med tilstandsgrader (TGIU, TG2 og/eller TG3). Kjøper overtar ansvaret for de opplysninger som fremkommer av salgsdokumentasjonen, og kan ikke gjøre gjeldende som mangel noe som burde vært kjent eller som ikke kan anses å ha betydning for avtalen.
Bygningen er iht. tilstandsrapport en selveierleilighet i en boligblokk oppført i 1974. Bygningen antas fundamentert med betong til stedlige masser, med grunnmur av betong. Etasjeskillere er av betong og yttervegger er oppført med betong/murverk, utvendig forblendet med teglstein. Taket er en flat takkonstruksjon, antatt tekket med asfalttakbelegg/folie. Leiligheten har vinduer med 2-lags isolerglass og en balkongdør med 2-lags isolerglass. Entrédøren er lyd- og brannklassifisert med kikkhull. Innvendig har boligen glatte innerdører, en formpresset innerdør med speil og en innerdør med glassfelt fra entré til kjøkken. Til leiligheten hører en nordvestvendt innglasset balkong på ca. 9 m² i betongkonstruksjon med rekkverk av aluminium og glasskyvedører.
Sikringsskap med automatsikringer er plassert i felles gang. Det elektriske anlegget er ikke faglig vurdert av takstmannen, og det anbefales en utvidet el-kontroll da det er ukjent hva som er gjort av tidligere eiere og det ikke foreligger dokumentasjon.
Følgende bygningsdeler er gitt Tilstandsgrad 2:
Utvendig
- Vinduer og balkongdør: Bygningsdelene er av eldre dato og har oppnådd minste forventede brukstid.
Innvendig
- Overflater - gulv: Det registreres bom (hulrom) under fliser i entré.
- Innvendig dør - bad og kjøkken: Det registreres at innvendig dør til bad har svelleskader på nedre del, samt påvist monteringsavvik, dør som tar i karm, skjevheter e.l.påvist på dør fra entré til kjøkken.
3. etasje Bad
- Overflater vegger og himling: Overflatene ser visuelt bra ut, tilstandsgraden settes av hensyn til alder.
- Overflater Gulv: Det registreres noe misfarging i sementfuger mellom elvestein i dusjsonen. Det anbefales på generelt grunnlag alltid å sette inn dusjkabinett i eldre bad.
- Sluk, membran og tettesjikt: Mer enn halvparten av forventet brukstid er passert på membranløsningen.
3. etasje Toalettrom
- Det er ikke påvist tilfredsstillende løsning for å synliggjøre lekkasje fra innebygget sisterne.
Følgende bygningsdeler er ikke undersøkt (TGIU):
- Tilliggende konstruksjoner våtrom: Hulltaking er ikke foretatt da det ikke er fysisk mulig pga tilliggende konstruksjoner.
Tilstandsrapporten er inntatt i salgsoppgaven. Rapporten inneholder informasjon om eventuelle avvik og konsekvensen av disse. Dersom det er registrert avvik med TG3, har den bygningssakkyndige i tillegg gitt et anslag på hva det vil koste å utbedre disse. Ettersom kjøper regnes å være kjent med forhold som tydelig fremgår av tilstandsrapporten, oppfordres du til å sette deg grundig inn i rapporten i sin helhet.
Moderniseringer og påkostninger
Følgende moderniseringer er foretatt de senere år:
2014:
- Oppgradert bad med gulvvarme, sveisemembran, nytt sluk og rør-i-rør-system (Sanipex) med fordelerskap og veggbokser.
Vedlikeholdshistorikk fellesskapet:
2010:
- Utvidelse og innglassing av veranda i regi av sameiet. Info fra forrige takst når jeg kjøpte leiligheten. Rehabiliterte eksisterende balkonger og foretatt utvidelse og innglassing av disse med Balco AS om entreprenør.
Standard
Dette er en 4-roms leilighet i 3. etasje med en arealeffektiv og familievennlig planløsning. Boligen har et romslig kjøkken og et bad som ble oppgradert i 2014. Den innglassede balkongen på ca. 9 m² fungerer som et ekstra oppholdsrom store deler av året, og varmtvann og oppvarming via radiatorer er inkludert i felleskostnadene. Leiligheten har gjennomgående downlights i himling. Her får du en herlig kombinasjon av moderne standard, fantastisk utsikt og en svært god beliggenhet rett ved marka.
Entré:
Leiligheten har en romslig entré med flislagt gulv, som gir god plass til garderobeløsninger for yttertøy og sko. Fra entreen er det direkte tilgang til de fleste av boligens rom.
Stue:
Stuen er et lyst og åpent rom med plass til både en større sofagruppe og en egen spiseplass. Rommet er et sosialt og naturlig samlingspunkt i boligen. Store vindusflater og utgang til balkongen gir rommet en god atmosfære og slipper inn rikelig med dagslys. Utsikten over dalen blir en naturlig del av rommet.
Innglasset balkong:
Fra stuen er det utgang til en nordvestvendt, innglasset balkong på ca. 9 m². Innglassingen gjør uteplassen anvendelig fra tidlig vår til sen høst, og herfra er det en flott utsikt over nærområdet og Groruddalen.
Kjøkken:
Kjøkkenet er et eget rom med en funksjonell innredning med glatte fronter og godt med skap- og benkeplass. Rommet er utstyrt med integrert platetopp, stekeovn, mikrobølgeovn og kjøleskap, i tillegg til opplegg for oppvaskmaskin. En praktisk barløsning gir en hyggelig spiseplass.
Soverom:
Leiligheten har tre soverom. Hovedsoverommet har god plass til dobbeltseng og er utstyrt med en garderobeløsning. De to andre rommene egner seg godt som barnerom, gjesterom eller kontor, og ett av dem har også garderobeskap.
Bad:
Badet ble oppgradert i 2014 og er helfliset med elektrisk gulvvarme. Det er innredet med et dusjhjørne med svingbare glassdører, servant med underskap, speilskap og vegghengt toalett. Rommet har også opplegg for vaskemaskin.
Toalettrom:
I tillegg til badet har leiligheten et separat toalettrom. Rommet er flislagt og utstyrt med vegghengt toalett, servant og speilskap. Praktisk som gjestetoalett når man har besøk.
Overflater:
Gulv: Fliser i entré, bad og toalettrom. Laminat i øvrige rom.
Vegger: Malte plater og malt betong.
Himling: Malte plater med innfelte downlights.
Lagring:
Leiligheten disponerer en kjellerbod på ca. 5 m². I tillegg er det garderobeskap i entréen og på to av soverommene.
For fullstendig teknisk informasjon om boligen, se punktet Byggemåte i salgsoppgaven.
Løsøre og tilbehør
Vi viser til liste fra Norges Eiendomsmeglerforbund som gjelder fra 01.01.2020 angående løsøre og tilbehør.
Oppvarming
Boligen varmes opp med elektrisk oppvarming. Vannbåren varme er tilknyttet radiatorer. Det er elektrisk gulvvarme på badet.
Sameiet fikk nytt varmeanlegg ved utgangen av 2025 som sørger for lavere kostnader. Kostnadene faktureres via felleskostnadene.
Dersom beboelsesrom ikke har vegg- eller fastmonterte varmekilder ved visning, følger dette heller ikke med.
Ferdigattest/brukstillatelse
Eiendommen har vært brukt til boligformål siden 1974.
Kommunen opplyser at det ikke foreligger ferdigattest eller midlertidig brukstillatelse for eiendommen. Det finnes av den grunn ikke dokumentasjon over eiendommens lovlighet. Det foreligger en tilsynsrapport med henvisning til brukstillatelse datert 1976. Dokumentet kan ikke anses som en ferdigattest, men er en indikasjon på at bygget er lovlig oppført. Kjøper overtar eiendommen slik den fremstår på visning med risiko og ansvaret for eventuelle pålegg fra kommunen og kostnader forbundet med dette.
Videre foreligger det ferdigattest vedrørende ventilasjonsanlegg datert 13.02.1978, ferdigattest vedrørende balkonger datert 20.08.1991 og ferdigattest vedrørende innglassing datert 24.09.2010. Disse kan fås ved henvendelse til megler.
Det gjøres oppmerksom på at det ikke lenger utstedes ferdigattest på tiltak det er søkt om før 1998 jf. plan- og bygningsloven § 21-10. Kommunen vil ikke kreve ferdigattest for disse tiltakene og vil avvise eventuelle søknader. Bestemmelsen innebærer ikke at tiltak med manglende søknad blir lovlige, men at man ikke trenger å avslutte gamle byggesaker. Normalt sett kreves ferdigattest for alle søknadspliktige tiltak som gjøres etter plan- og bygningsloven.
Tinglyste heftelser og rettigheter
Eiendommen overdras fri for pengeheftelser med unntak av uomsettelig obligasjon med prioritet etter 90% av lånetaksten til en hver tid for sameiet på kr. 40 000,-. Tinglyst 13.04.1984 med dagboknummer 1984/18126-1/105.
Sameiet har legalpant for krav mot sameieren som følger av sameieforholdet iht. eierseksjonsloven § 31. Pantet er begrenset oppad til 2G (G = folketrygdens grunnbeløp).
Det er tinglyst 1 servitutt på sameiets eiendom. Denne omhandler seksjonering.
Servituttene vil følge eiendommen. Kjøpers bank vil få prioritet etter ovennevnte heftelser og servitutter.
Eventuell adgang til utleie
Leiligheten kan leies ut såfremt leiligheten har forsvarlige radonverdier. Leietaker må følge sameiets vedtekter og ordensregler på lik linje som eier.
I henhold til sameiets vedtekter er salg og utleie til andre enn fysiske personer ikke tillatt, jf. vedtektenes § 3.
Diverse
Leiligheten har under selgers eierperiode vært utleid. Selger har ikke bebodd eiendommen og kjennskapen til eiendommens tilstand kan være mangelfull. Kjøper må derfor kunne påregne at det kan være flere feil og mangler som normalt oppdages ved bruk av boligen, men som selger av utleieobjekt ikke har mulighet å vite.
Beliggenhet og tomteforhold
Beliggenhet og tomteforhold
Beliggenhet
Lutvann er for mange en skjult perle på grensen til Østmarka.
Med Østmarka som nærmeste nabo kan du nyte alt det naturen har å by på året rundt. Lutvann er en vakker innsjø som ligger kun 10 minutters gange fra boligen, og her finner du både sandstrand og svaberg med deilige badetemperaturer. Her er det også populært å fiske. Om du følger lysløypene og turstiene litt lenger finner du raskt veien til flere vann, blant annet Ulsrudvann og Nøklevann. Ulsrudvann har Oslos varmeste naturlige badevann, og på Nøklevann kan du leie kano og kajakk. Andre populære destinasjoner er Mariholtet og Rustadsaga, her er det også serveringsmuligheter. Om du trives best litt utenfor stien er det gode muligheter for å sanke både sopp og bær i marka. Om vinteren kjøres det opp flotte skispor, flittig brukt av alt fra barnefamilier til toppidrettsutøvere. Østmarka har noe for enhver smak!
Nærmeste dagligvare er Rema 1000, og ellers finner du det du trenger på Haugerud senter, og ved Trosterud t-bane. Ellers ligger Tveita senter kun få minutter unna, og du bruker heller ikke lang tid til Alna Senter. IKEA ligger også kun noen få minutter unna. Med bil kjører du også fort til Lørenskog hvor du finner både Metro og Triaden, og Strømmen storsenter like bortenfor. I andre retningen kjører du også raskt ned til sentrum. Lutvann ligger øst for Oslo sentrum, med svært enkel adkomst til E6.
Det er flere skoler og barnehager i nærområdet. Nærmeste skole er Lutvann barneskole, som ligger like nedenfor boligfeltet. Det er også flere barnehager med avkjørsel fra Dr. Dedichens vei.
Adkomst
Det vil bli skiltet med Krogsveen visningsskilt ved fellesvisninger.
Barnehager, skoler og fritid
Eiendommen sogner til Lutvann skole.
Informasjon om tilhørende skolekretser er hentet fra Prognosesenteret som dataleverandør, og tilhørigheten kan årlig endres av kommunen. Dersom skole- og barnehagetilbud er av betydning for kjøpet, ber vi om at det rettes en særskilt henvendelse til kommunen/bydelsadministrasjonen for oppdatert informasjon.
Beskrivelse av tomt
Eiertomt på 19 800 kvm som tilhører sameiet. Tomten er fellesareal.
Parkering
Mulighet for å leie garasjeplass med elbil lader i felles garasjeanlegg. Plassene følger ikke leiligheten ved salg.
Styreleder informerer per 10.04.2026 om at det ikke er noen venteliste på parkeringsplasser med og uten el-lader.
Kostnadene for parkeringsleie er mellom 500 og 600 kr per måned.
Videre gjelder parkering etter områdets bestemmelser.
Vei, vann og avløp
Eiendommen har adkomst via kommunal vei med private stikkveier med felles vedlikeholdsansvar for sameiet.
Eiendommen er tilknyttet kommunalt ledningsnett via private stikkledninger. Sameiet er ansvarlig for private stikkledninger til bygningen.
Regulerings-og arealplaner
Eiendommen er regulert til boligformål med tilhørende anlegg i henhold til reguleringsplan 3373 datert 10.01.1973 med tilhørende reguleringsbestemmelser.
Utdrag av planer i nærheten av eiendommen:
Saksnummer 2026/02991 - Byggesak. Dr. Dedichens vei 32-134 - fasadeendring på stort frittliggende bygg på 5 etasjer eller mer. Søknad om tillatelse i ett trinn ble sendt 12.03.2026. Saken er under behandling.
Saksnummer 202217318 - Reguleringssak. Lutvannsveien 60 - utarbeidelse av planforslag. Bakgrunnen for planinitiativet er endrede behov hos Forsvaret. Gjeldende plan for området, vedtatt i 2016, tar ikke fullt ut høyde for den veksten som nå planlegges for Forsvaret. Det er av den grunn ønskelig å se på mulighetene for å justere byggegrenser og %BRA, inkl. parkering, for at leiren skal kunne møte fremtidens behov. Det er ikke planlagt endring av plangrense, byggehøyder eller formål. Planområdet er vurdert til å være egnet for ytterligere fortetting. Planinitiativet vil ikke påvirke det lokale området eller Oslo by i vesentlig grad når det gjelder byutvikling.
Saksnummer 202211309 - Reguleringssak. Dr. Dedichens vei 20 med flere - utarbeidelse av planforslag. Hensikten med reguleringsplanarbeidet er å legge til rette for boligbebyggelse i felt C, utvidelse av Stubberudlia barnehage samt formell regulering av delområder til parsellhage og park. I tillegg til det skal bygninger til Trosterud gård, Trosterudvilla og annekset med tilgrensende utearealer reguleres på en måte som kan bli fulgt opp med økonomisk realistisk og dermed gjennomførbar arealbruk samt å gjøre det enklere å plassere eier- og forvaltningsansvar for kommunale etater. Videre reguleres det gjenstående VPOR-tiltakene. I tillegg til Trosterudparken omfatter dette del av Gårdsveien og koblinger til omgivelsene.
Saksnummer 201901193 - Reguleringssak. Tvetenveien 183 - Dialogfase - Oppføring av skole, flerbrukshall, kulturstasjon og idrettsanlegg - Trosterud - Haugerud. Skolene Haugerud og Trosterud samt Haugerudhallen er i dårlig bygningsmessig stand. I tillegg er det behov for økt kapasitet på barneskolen med en halv parallell. Området inneholder i dag flere idrettsanlegg, som skal videreføres og utvides.
Saksnummer 202015413 - Reguleringssak. Strømsveien 303 mfl. -Utarbeiding av planforslag. Vest på området ligger Furuset idrettspark med gress- og kunstgressbaner for fotball og cricket, samt Furuset tennissenter med innendørs hall og utendørs tennisbane. I sørvest ligger Stubberudmyra, som er et lite skogsområde regulert til naturvern. Sentrert på planområdet ligger IKEAs varehus med tilhørende parkering mot Strømsveien. Deler av parkeringen har sambruk med idrettsparken. Grensende til IKEA ligger Kaggen gård med gårdsbygninger og tun. Det er ikke gårdsdrift her i dag, og det er ikke tilrettelagt for allmenn tilgjengelighet. Åpen grønn slette øst på Kaggen-tomta er regulert til hagesenter, men planen er ikke realisert. Grunneier har ytret ønske om å benytte denne delen av tomta til pallelager i korrespondanse med PBE.
Utsnitt av plan med tilhørende bestemmelser kan fås ved henvendelse til megler.
Økonomi
Økonomi
Boligens kostnader
Felleskostnadene er kr 6 680,- pr. mnd. og inkluderer: Oppvarming og varmtvann, internett via telenor, kabel-tv, kommunale avgifter, felles bygningsforsikring, forretningsførsel, drift og vedlikehold av sameiet, og vaktmestertjeneste.
Felleskostnadene justeres normalt en til to ganger årlig i forhold til sameiets faktiske utgifter. Styret informerer per 10.04 om at det ikke er planlagt noen økninger eller påkostninger utover normalt vedlikehold i tiden fremover.
Felleskostnadene er fordelt slik:
- Balkong: kr 1 239,-
- Trappevask: kr 122,-
- Felleskostnader: kr 2 790,-
- Oppvarming og v.vann: kr 2 057,-
- Kabel-tv: kr 472,-
Det er innført eiendomsskatt i Oslo Kommune som p.t. ikke påfaller eiendommen.
Selger har ikke bebodd eiendommen og har således ikke kjennskap til øvrige løpende utgifter for eiendommen.
Boligen er tilknyttet Telenor som leverandør og kostnadene er inkludert i felleskostnadene.
Selger har avtalt Norgespris på strøm på eiendommen for perioden 17.10.2025-31.12.2026, og denne er pt på 50 øre inkl mva. Nettleie, avgifter og påslag fra kraftleverandøren kommer i tillegg. Er det fjernvarme vil det også komme kostnader i tillegg.
Denne avtalen vil følge eiendommen i den avtalte perioden.
Utgiftene er basert på nåværende eiers forbruk. Kjøper må selv tegne innboforsikring.
Formuesverdi
Ved hjelp av skatteetatens boligkalkulator er boligens formuesverdi beregnet til kr. 1.425.429,- for fjoråret når boligen benyttes som primærbolig.
Formuesverdien er en gitt prosent av den beregnede markedsverdien. Beregnet markedsverdi er basert på Statistisk sentralbyrå (SSB) sine opplysninger om omsatte boliger. I beregningen tas det hensyn til boligens beliggenhet, areal, byggeår og boligtype.
Det er eier av boligen som fastsetter formuesverdien, jf. skatteforvaltningsloven § 9-1 første ledd, men skattemyndighetene kan kontrollere at verdien er satt riktig.
Formuesverdi skal ikke overstige:
Primærbolig: 25 % av beregnet eller dokumentert markedsverdi opp til kr. 10 000 000, og deretter 70 % av den overskytende markedsverdi.
Sekundærbolig: 100 % av beregnet eller dokumentert markedsverdi.
Formuesverdier som overstiger disse grensene, kan kreves nedjustert av eier.
Fra 2026 har Stortinget vedtatt en oppdatert modell for beregning av formuesverdi for primærbolig, så avvik kan forekomme.
For mer informasjon se skatteetaten.no
Opplysninger om fellesgjeld
Andel formue er kr 16 275,- pr. 2025.
Andel fellesgjeld er kr 259 650,75 pr. 08.04.2026.
Total fellesgjeld for sameiet er kr 42 740 697,- pr. 08.04.2026 og lånevilkårene er:
Bank: OBOS-banken AS
Lånenummer: 98207364223
Type: Annuitetslån, 12 terminer per år
Restsaldo pr. 08.04.2026: kr 19 019 689,00
Andel av saldo: kr 111 875,51
Innfrielsesdato: 30.07.2039
Type Rente: Flytende rente
Rente: 6,39%
Bank: OBOS-banken AS
Lånenummer: 98208500449
Type: Annuitetslån, 12 terminer per år
Restsaldo pr. 08.04.2026: kr 23 721 008,00
Andel av saldo: kr 147 775,24
Innfrielsesdato: 30.04.2055
Type Rente: Flytende rente
Rente: 6,29%
Mulighet for individuell nedbetaling på hele eller deler av fellesgjeld (IN-lån): Nei.
Omkostninger
4 900 000,00 Prisantydning
259 650,75 Andel av fellesgjeld
--------------------------------------------------------
5 159 650,75 Pris inkl. fellesgjeld
Omkostninger
128 970,00 Dokumentavgift til staten (2,5% av kjøpesum)
9 950,00 Gjensidige Boligkjøperpakke (valgfri)* (valgfritt)
545,00 Tinglysing panterettsdokument
545,00 Tinglysing skjøte
--------------------------------------------------------
130 060,00 (Omkostninger totalt (uten Gjensidige Boligkjøperpakke (valgfri)))
140 010,00 Omkostninger totalt (med Gjensidige Boligkjøperpakke (valgfri)))
--------------------------------------------------------
5 289 710,75 Totalpris inkl. omkostninger
5 299 660,75 Totalpris inkl. omkostninger (med Gjensidige Boligkjøperpakke (valgfri))
--------------------------------------------------------
Dersom sameiet har fellesgjeld, vil leilighetens andel av fellesgjelden komme i tillegg til kjøpesummen. Denne gjelden skal ikke innbetales i oppgjøret, men følger leiligheten.
Totalpris inkl. omkostninger forutsetter kjøp til prisantydning.
Det tas forbehold om endringer i avgifter og gebyrer.
Tilbud om lånefinansiering
Megler formidler gjerne kontakt med rådgiver hos vår samarbeidspartner BN Bank. De har konkurransedyktige betingelser samt rask og løsningsorientert behandling av din lånesøknad. Krogsveen mottar et honorar dersom lån opprettes.
Betalingsbetingelser
Kjøpesum inkludert omkostninger, samt pantedokument tilknyttet eventuelt lån, skal være disponibelt hos megler 2 virkedager før overtagelsen.
Annen viktig informasjon
Annen viktig informasjon
Eier
Kristoffer Gradz
Informasjon om sameiet
Eiendommen er seksjonert, og leiligheten er tilknyttet Boligsameiet Haukåsen IV.
- Sameiet består av 170 seksjoner.
- Forretningsfører er OBOS Eiendomsforvaltning AS.
- Sameiet er forsikret i If Skadeforsikring Nuf med polisenummer 565716.
Trappevask er inkludert i felleskostnadene.
Regler for dyrehold er regulert i sameiets husordensregler.
Salg og utleie til andre enn fysiske personer er ikke tillatt, jf. vedtektenes § 3.
Foretatt påkostninger de senere år:
- Balkongprosjekt er fullført. Kostnaden nedbetales via felleskostnadene.
- Ved utgangen av 2025 fikk sameiet nytt varmeanlegg, som skal redusere kostnadene. Det ble gjort et låneopptak som betjenes av den enkelte sameier.
Styreleder informerer per 10.04.2026 om at det ikke er planlagt noen påkostninger eller økninger i kostnader utover normalt vedlikehold i tiden fremover.
Megler har kopi av budsjett og årsregnskap for 2025. Disse kan fås ved henvendelse til megler.
Vi gjør videre oppmerksom på at det iht. eierseksjonsloven ikke er anledning å erverve mer enn 2 seksjoner i sameiet, her teller også eierskap via. firma, nærstående og familie. Kjøper har risikoen for at overskjøting på denne bakgrunn kan nektes av Statens Kartverk. I så fall vil kjøper uansett være forpliktet til å gjennomføre handelen, og oppgjør til selger vil finne sted tross manglende overskjøting. Konferer med megler for mer informasjon.
Dokumenter for sameiet og kopi av seksjonsbegjæringen kan fås ved henvendelse til megler.
Overtakelse
Etter nærmere avtale.
Boligselgerforsikring
Selger har i forbindelse med salget tegnet boligselgerforsikring levert av Gjensidige.
Boligselgerforsikringen dekker selgers ansvar etter avhendingsloven begrenset oppad til kr 14 millioner. Dersom kjøper oppdager forhold ved eiendommen som hen mener utgjør en mangel ved eiendommen, vil Gjensidige behandle reklamasjonen på vegne av selger. Forsikringsvilkår kan fås ved henvendelse til megler.
Vedlagt salgsoppgaven følger selgers egenerklæringsskjema og tilstandsrapport. Interessenter må sette seg inn i dokumentene før bud inngis.
Boligkjøperforsikring
Innen kontraktsmøtet må kjøper ta stilling til om det ønskes å bestille Boligkjøperpakken gjennom Gjensidige. I denne gunstige pakken er boligen ferdig forsikret og inkluderer rettshjelpsforsikring, også kalt Boligkjøperforsikring. Rettshjelpsforsikring gir trygghet og tilgang på profesjonell juridisk hjelp dersom det oppdages uventede feil eller mangler det første året etter overtagelse. Forsikringsselskapet behandler i så fall ethvert mangelskrav kjøper måtte ha overfor selger.
Boligkjøperpakken inkluderer bygningsforsikring for hus og hytte, innboforsikring, flytteforsikring og dobbel rentedekning - i situasjoner hvor kjøper ikke får solgt nåværende primærbolig.
Kjøper mottar ingen særskilt faktura for Boligkjøperpakken da kostnaden det første året legges til kjøpesummen for boligen. Det gjøres oppmerksom på Krogsveen mottar et honorar for denne formidlingen.
Produktark for Boligkjøperpakken ligger vedlagt i salgsoppgaven.
Dersom ikke boligkjøperpakke ønskes kan kun rettshjelpsforsikring, også kalt boligkjøperforsikring, tegnes særskilt via megler. Rettshjelpsforsikringen varer i 5 år fra overtagelse og leveres gjennom Gjensidige. Ta kontakt med megler for ytterligere informasjon.
Selskap og privatpersoner som driver med kjøp/salg/utvikling som ledd i egen næringsvirksomhet kan ikke tegne boligkjøperpakke eller rettshjelpsforsikring.
Budgivning
Forbrukerinformasjon om budgivning er vedlagt denne salgsoppgaven og er også på vår hjemmeside Krogsveen.no. Alle bud og budforhøyelser må inngis skriftlig. I tillegg må legitimasjon være fremlagt sammen med signatur fra budgiver.
Vi oppfordrer til å gi bud elektronisk via GI BUD-knappen på eiendommens hjemmeside på Krogsveen.no. Da vil samtlige vilkår bli oppfylt.
Eventuelle forhøyelser eller endringer av budet kan bekreftes pr SMS eller på e-post. Vi oppfordrer alltid til å kontakte megler pr. telefon i tillegg da forsinkelser i SMS og e-post kan forekomme.
For at budene skal kunne bli behandlet og videreformidlet skriftlig til alle involverte parter, må alle bud ha en tilstrekkelig lang akseptfrist, jf. eiendomsmeglingsforskriften § 6-3.
Selger må også skriftlig akseptere budet før aksept kan formidles til budgiver. Akseptfrist bør derfor være på minimum 30 minutter, og budforhøyelser må derfor skje i god tid før fristens utløp.
Bud i forbrukerforhold kan uansett ikke settes med kortere frist enn kl. 12.00 første virkedag etter siste annonserte visning. I tillegg kan ikke budet ha forbehold om at det skal holdes hemmelig ovenfor øvrige interessenter. Megler har iht lov om eiendomsmegling ikke anledning til å videreformidle disse budene, og de vil dermed heller ikke bli journalført.
Etter at eiendommen er solgt vil kjøper og selger få tilsendt budjournal. Øvrige budgivere kan få utlevert kopi av budjournalen i anonymisert form.
Hvitvaskingsreglene
I henhold til lov om hvitvasking og terrorfinansiering har megler plikt til å gjennomføre kontrolltiltak overfor kunder, herunder fullmektiger. Dette innebærer bl.a. å bekrefte kunders og reelle rettighetshaveres identitet på bakgrunn av fremvist gyldig legitimasjon eller på annen godkjent måte, samt å innhente opplysninger om kundeforholdets formål og tilsiktede art.
Dersom slike kundetiltak ikke kan gjennomføres, kan megler ikke etablere kundeforholdet eller utføre transaksjonen.
Hvis kjøper ikke bidrar til gjennomføring av kundekontrollen og dette fører til at transaksjonen blir forsinket eller ikke kan gjennomføres, vil dette ansees som mislighold av avtalen og gi selger rettigheter etter avhendingslova kapittel 5. I tilfeller der selger ikke bidrar til gjennomføring av løpende kundekontroll underveis i oppdraget, er det selger som misligholder sine forpliktelser etter avtalen og gi kjøper rettigheter etter avhendingslovens kapittel 4. Partene er selv ansvarlige for eventuelle kostnader og ansvar dette kan medføre. Eiendomsmegleren eller eiendomsmeglingsforetaket kan ikke holdes ansvarlig for de konsekvenser dette vil kunne få for partene eller andre som har interesser i eiendomshandelen.
Kjøper oppfordres til å innbetale kjøpesummen som ikke kommer fra låneinstitusjon i én samlet innbetaling fra egen konto i norsk bank. Megler har plikt til å melde fra til Økokrim om eiendomshandler som fremstår som mistenkelige. Melding sendes Økokrim uten at partene varsles.
Personopplysningsloven
I henhold til personopplysningsloven gjør vi oppmerksom på at interessenter kan bli registrert for videre oppfølging.
Lovanvendelse
Generelle bestemmelser
Salgsoppgaven er basert på de opplysningene selger har gitt til megler, den bygningssakyndiges tilstandsrapport, samt opplysninger innhentet fra kommunen, Kartverket og andre tilgjengelige kilder. Det er viktig at kjøper setter seg grundig inn i alle salgsdokumentene, herunder salgsoppgave, tilstandsrapport og selgers egenerklæring. Kjøper anses kjent med forhold som er tydelig beskrevet i salgsdokumentene, og slike forhold kan ikke påberopes som mangler. Dette gjelder uavhengig av om kjøper har lest dokumentene. Alle interessenter oppfordres til å undersøke eiendommen nøye, gjerne sammen med fagkyndig før bud inngis. Kjøper som velger å kjøpe usett kan ikke gjøre gjeldende som mangel noe han burde blitt kjent med ved undersøkelsen.
Dersom det er behov for avklaringer, anbefaler vi at interessenter rådfører seg med eiendomsmegler eller egne rådgivere før det legges inn bud.
En bolig som har blitt brukt i en viss tid, har vanligvis blitt utsatt for slitasje og skader kan ha oppstått. Slik bruksslitasje må kjøper regne med, og det kan avdekkes enkelte forhold etter overtakelse som nødvendiggjør utbedringer. Normal slitasje og skader som nødvendiggjør utbedring, er innenfor hva kjøper må forvente og vil ikke utgjøre en mangel.
Kjøper og selgers rettigheter og plikter reguleres av avtalen mellom partene, samt informasjonen som har vært tilgjengelig for kjøperen i forbindelse med handelen. Avtalen utfylles av avhendingsloven, og det gjelder ulike avtalevilkår avhengig av om kjøper er forbrukerkjøper eller ikke. Dette er nærmere beskrevet nedenfor.
På grunn av ulike avtalevilkår kan selger vurdere bud fra en som ikke er forbruker, ulikt fra en forbrukers bud. Dersom kjøper ikke er forbruker, er selger sitt mulige mangelsansvar begrenset fordi eiendommen selges "som den er". Selger kan ikke ta «som den er»- forbehold overfor en forbrukerkjøper. Selv et lavere bud fra en som ikke er forbruker kan foretrekkes fordi begrensningen i mulig mangelsansvar kan ha egenverdi for selger. Selger står fritt til å forkaste eller akseptere ethvert bud, og er for eksempel ikke forpliktet til å akseptere høyeste bud.
Budgiver skal i budskjema avgi egenerklæring om budgiver er forbruker eller næringsdrivende/ person som hovedsakelig handler som ledd i næringsvirksomhet. Budgivere får informasjon dersom andre bud er inngitt av en som ikke er forbruker.
Forbrukerkjøp - definisjon
Med forbrukerkjøp menes kjøp av eiendom når kjøperen er en fysisk person som ikke hovedsakelig handler som ledd i næringsvirksomhet.
Forbruker – avtalevilkår
Eiendommen har en mangel dersom den ikke er i samsvar med kravene som følger av avtalen, eller det foreligger brudd på bestemmelsene i avhendingsloven §§ 3-2 til 3-8. Hvis eiendommen ikke er i samsvar med det kjøperen må kunne forvente ut ifra alder, type og synlig tilstand, kan det være grunnlag for mangelskrav. Det samme gjelder hvis det er holdt tilbake eller gitt uriktige opplysninger om eiendommen. Dette gjelder likevel bare dersom man kan gå ut ifra at det virket inn på avtalen at opplysningen ikke ble gitt eller at mangelskravet ikke blir rettet i tide på en tydelig måte.
Boligen kan ha en mangel etter avhendingsloven § 3-3 andre ledd, dersom det er avvik mellom opplyst og faktisk innvendig areal, forutsatt at avviket er på 2% eller mer og minimum 1 kvm.
Ved beregning av et eventuelt prisavslag eller erstatning må kjøper selv dekke tap/kostnader opptil et beløp på kr 10 000 (egenandel).
Ikke-forbruker (næringsdrivende) – definisjon
Hvis kjøper er en juridisk person, eller en fysisk person som hovedsakelig handler som ledd i næringsvirksomhet, vil kjøpet ikke anses som et forbrukerkjøp.
Ikke-forbruker – avtalevilkår
Eiendommen har en mangel dersom den ikke er i samsvar med kravene som følger av avtalen.
Eiendommen selges «som den er», og selgers ansvar utover det konkret avtalte er da begrenset etter avhendingsloven § 3-9, første ledd andre setning.
Avhendingsloven § 3-3 andre ledd fravikes, og hvorvidt boligens arealsvikt utgjør en mangel vurderes etter avhendingsloven § 3-8.
Informasjon om kjøpers undersøkelsesplikt, herunder oppfordringen om å undersøke eiendommen nøye, gjelder også for kjøpere som ikke anses som forbrukere.
Det forutsettes at hjemmel overføres til kjøper. Hvis kjøper ikke ønsker hjemmelsoverføring av eiendommen, må det tas forbehold om dette i budet.
Meglers vederlag
Meglers vederlag betales av selger og er avtalt til:
Fastpris: 25 000,-
Vederlag:
Kontroll av hjemmel og heftelser kr 3 900,00
Kunderabatt kr -3 000,00
Markedsføringspakke Liten u/smartannonsering kr 23 700,00
Oppgjør kr 8 900,00
Tilrettelegging kr 19 900,00
Visninger pr stk kr. 3000,- (2 stk inkludert og alle privatvisninger kostnadsfrie)
Utlegg:
Eierskiftegebyr forretningsfører - OBOS kr 6 725,00
Innhenting av informasjon forretningsfører kr 3 000,00
Tinglysing sikring kr 545,00
Andre utgifter:
Foto kr 4 500,00
Tilstandsrapport fra bygningssakkyndig kr 9 000,00
Vi er opptatt av verdiskapning, og har knyttet til oss samarbeidspartnere som skal sikre våre kunder de beste produkter og tjenester;
• I forbindelse med forberedelse av salget, innhenter vi informasjon om eiendommen hovedsakelig fra vår samarbeidspartner Amibita.
• Gjensidige leverer boligselgerforsikring og tilbyr bygningsforsikring
• Boligkjøperforsikring leveres av Hiscox og med Sedgwick som skadebehandler, og er formidlet gjennom Gjensidige.
• BN bank tilbyr finansieringsløsninger
• Vår avdeling Krogsveen Pluss tilbyr flyttetjenester som utvask, visningsvask, lager, tømming og transport av flyttelass, i tillegg til å formidle kontakt med Flip for overflateoppussing.
• I forbindelse med overtagelse av eiendommen tilbyr Overo avtale om strøm, alarm og bredbånd.
• Krogsveen er, sammen med øvrige bransjeaktører, medeier i Bomega AS som tilbyr den digitale annonseringsplattformen Hjem.
Opplysninger om oppdraget
Oppdragsnummer 37-0119/26
Eiendomsmegler Krogsveen AS, avd. Hasle
Valle View, Innspurten 11D, 0663, OSLO
950007613
Oppdragets KR-kode KR37.26119
Dato
Sist oppdatert: 14. april 2026 kl. 10:37
Dokumenter
Dokumenter
PDF – 912 KB
PDF – 312 KB
PDF – 29 KB
PDF – 127 KB
PDF – 392 KB
Område
Legg til steder som er viktige for deg
Visning
Unngå doble boligrenter
Vi tilbyr gunstig forsikring.
Vurderer du utleie?
Få et tilbud fra Utleie KrogsveenHva koster lånet?
Sjekk estimert lånekostnadVil du varsles om lignende boliger?
Ved å lagre ditt boligsøk hos oss får du beskjed når vi har en bolig som ligner denne, før den legges ut på markedet!

