Christian Krohgs gate 30
4 150 000 kr
48 m²
1 soverom
Solgt

Presenteres av
Emilie LieGrünerløkka
Unik og lys fabrikkleilighet med hems! Balkong på 8 kvm. Fyring/vv/strøm og internett inkl. Takterrasse m/panoramautsikt
Prisantydning
4 150 000 krAndel fellesgjeld
41 436 krOmkostninger
11 040 krTotalpris
4 202 476 kr
Pris
Bruksareal
51 m²BRA-I (internt bruksareal)
48 m²BRA-E (eksternt bruksareal)
3 m²TBA (terrasse-balkongareal)
8 m²
Areal
Etasje
1Byggeår
1903Soverom
1 soveromBad
1 badType
AndelsleilighetEierform
AndelFasiliteter
Heis og Balkong/TerrasseFellesutgifter
4 035 krEnergimerke
Grønn G
Nøkkelinfo
Unngå doble boligrenter
Vi tilbyr gunstig forsikring.
Vurderer du utleie?
Få et tilbud fra Utleie KrogsveenHva koster lånet?
Sjekk estimert lånekostnadDette liker selger best ved boligen
Jeg syns nærhet til sentrum er noe av det beste med leiligheten. Det gir meg muligheten til å komme meg rundt i Oslo på kort tid og kan spasere opp til for eksempel Vulkan for noe godt å spise når som helst. Inne i leiligheten så liker jeg best den høye takhøyden. Den gir en veldig fin følelse av mye plass. Hemsen er også veldig fin. Den har blitt brukt mye som både lagring, lese krok og til og med bilbane. Den gir leiligheten masse ekstra plass man kan bruke som man vil. Takterrassen til borettslaget er byggets beste del, som gir oss en fin privat plass å nyte solen på sommeren.
Beskrivelse
Kort om eiendommen
Velkommen til Christian Krohgs gate 30!
Leiligheten ligger i et tidligere fabrikkbygg som ble gjort om til boliger i 2006.
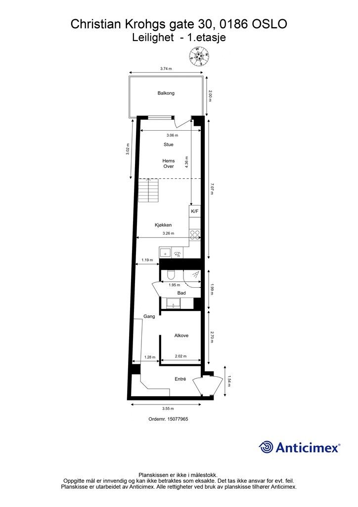
Planløsningen består av åpen stue- og kjøkkenløsning, entré, sovealkove, hems, samt et romslig bad. Stuen har store vinduer som gir godt med naturlig lys. Fra stuen er det utgang til en nordvestvendt balkong på 8 kvm.
Borettslaget har også en av Oslos flotteste takterrasser med panoramautsikt over Oslo.
Noen høydepunkter:
Internett, strøm og fyring/vv inkludert
Balkong på 8 kvm
Supersentralt
Rett ved Akerselva
Praktisk hems på 9 kvm
Sovealkove
Fantastisk felles takterrasse
Felles sykkelrom, samt hjemmekontor
Ingen forkjøpsrett
Bod og heis
Svært god skapplass
Velkommen til hyggelig visning!
Område
Legg til steder som er viktige for deg
På flyttefot? Tenk kjøp og salg samtidig.
Få din egen rådgiver gjennom hele kjøps- og salgsprosessen. Det starter med en verdivurdering.
Unngå doble boligrenter
Vi tilbyr gunstig forsikring.
Vurderer du utleie?
Få et tilbud fra Utleie KrogsveenHva koster lånet?
Sjekk estimert lånekostnadVil du varsles om lignende boliger?
Ved å lagre ditt boligsøk hos oss får du beskjed når vi har en bolig som ligner denne, før den legges ut på markedet!
På flyttefot? Slik gjør vi det enklere for deg
Skreddersydd flyttepakke
Vi fikser håndverkere, vask, pakking, lagring og transport, og legger ut for utgiftene underveis.
Hjelp med både kjøp og salg
Hos oss har du din egen rådgiver gjennom hele kjøps- og salgsprosessen.
Hjelp til finansiering
Vårt samarbeid med BN Bank sikrer deg rask og løsningsorientert hjelp, til konkurransedyktige betingelser.

