Stavangergata 29
6 100 000 kr
62 m²
1 soverom
Komplett salgsoppgave

Bjølsen
Lys og romslig 2(3)-roms med klassisk særegenhet og nytt bad og WC - God takhøyde - Tregulv - Peis - Hyggelig bakgård
Prisantydning
6 100 000 krAndel fellesgjeld
190 654 krOmkostninger
11 040 krTotalpris
6 301 694 kr
Pris
Bruksareal
69 m²BRA-I (internt bruksareal)
62 m²BRA-E (eksternt bruksareal)
7 m²
Areal
Etasje
2Byggeår
1951Soverom
1 soveromBad
1 badType
AndelsleilighetEierform
AndelFellesutgifter
4 465 kr
Nøkkelinfo
Unngå doble boligrenter
Vi tilbyr gunstig forsikring.
Vurderer du utleie?
Få et tilbud fra Utleie KrogsveenHva koster lånet?
Sjekk estimert lånekostnadBeskrivelse
Kort om eiendommen
Svært innbydende og romslig 2-roms beliggende i et meget hyggelig område. Leiligheten har god takhøyde, vakre tregulv, nyere vinduer og en veltilpasset innredning. Leiligheten er stilren med en særegen atmosfære og innbyr til sosialt felleskap. Fargevalgene er harmoniske og står godt i stil til leilighetens klassiske uttrykk.
- Separat kjøkken med spiseplass
- Nyoppusset baderom og separat toalett i 2023
- Stor hjørnestue med peis
- Mulighet for omgjøring til 3-roms
- Nymalte overflater i flere rom
- Originale tregulv
- Nytt elektrisk i 2021
- Dekorative vindusflater
- Tre idylliske bakgårder tilrettelagt for sosialt felleskap
- Hyggelig naboskap, samt trygt og rolig bomiljø
- To boder
- Grønne lunger og fine turområder rett i nærheten
- Buss 37 og 54 rett i nærheten - T-bane i Nydalen
Innhold og byggemåte
Innhold og byggemåte
Eiendommen
Stavangergata 29, 0467 OSLO
Kommunenummer 301, gårdsnummer 222, bruksnummer 172, ideell andel 1/1
Andelsnummer 47, Bjølsen Borettslag , organisasjonsnummer 954 489 434
Innhold
Totalt bruksareal BRA: 69 kvm
BRA-i:
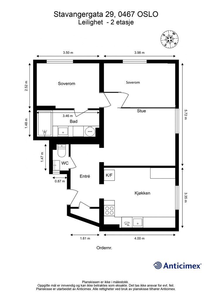
2. etasje 62 kvm: Entrè, separat kjøkken, wc med servant, stue med peis, lekkert bad, romslig soverom.
BRA-e:
Kjeller: 5 kvm: Kjellerbod
Loft: 2 kvm: Loftsbod
Boligen disponerer 2 boder, en i kjeller og en på loft. Det gjøres oppmerksom på at boligens eksterne boder tilhører lagets fellesareal, og at boden således ikke eies av den enkelte sameier. Dette medfører at borettslaget i fellesskap beslutter bruken og disponering av bodarealet kan dermed opphøre.
Vedlagte plantegninger er ikke målbare. De oppgitte arealer er hentet fra rapport med befaringsdato 20.03.2026 utført av Anticimex AS. Arealene er beregnet og rom er definert etter dagens faktiske bruk, uavhengig av hva som er godkjent av bygningsmyndighetene.
Byggemåte
Andelsleilighet beliggende i bydel Sagene, Oslo kommune. Felles tomt opparbeidet med blant annet asfalterte veier, plenarealer og andre forskjellige beplantninger. Leilighetsbygg oppført i 1926. Grunnmur av teglstein. Bygget er oppført med kjeller. Yttervegger i hovedsak av tegl-/murverk. Utvendige fasader av murpuss. Etasjeskillere av trekonstruksjoner. Valmtak i trekonstruksjoner. Yttertak er belagt med takstein. Entrédør med sikkerhetslås, dørkikkert og glassfelt. Vinduer med karmer av tre fra 2018. Les for øvrig mer om byggemåte og den tekniske tilstanden i rapporten.
Selger har innhentet en tilstandsrapport av boligen/eiendommen. Av rapporten fremgår det at flere bygningsdeler har fått tilstandsgrad ikke undersøkt/ikke tilgjengelig for undersøkelse (TG IU), og 2 (TG2). Rapporten beskriver også avvik på undersøkte bygningsdeler uten tilstandsgrad. Kjøper overtar ansvaret for de opplysninger som fremkommer av salgsdokumentasjonen, og kan ikke gjøre gjeldende som mangel noe som burde vært kjent eller som ikke kan anses å ha betydning for avtalen.
Det gjøres spesielt oppmerksom på:
Tilstandsgrad 2 (TG2):
Våtrom:
- Ventilasjon: Avtrekksvifte er tilkoblet en felles avtrekkskanal eller sjakt som deles med flere boenheter. Tilkobling av mekaniske vifter i slike kanaler er normalt ikke tillatt.
Kjøkken:
- Overflate gulv: Synlige deler av gulvets overflatemateriale bæ rer preg av slitasje med enkelte riper og hakk. Forholdet vurderes i hovedsak til å være av estetisk betydning, men riper og hakk av en viss dybde kan gjøre at fuktighet som for eksempel fra rengjøring forårsaker misfarging eller lignende konsekvenser.
- Vannrør og Avløpsrør: Vannrør av kobber og avløpsrør av støpejern (og tilhørende komponenter) har en alder som tilsier at fremtidig funksjon er usikker.
- Ventilasjon: Ventilasjonen vurderes som utilstrekkelig grunnet mangel på mekanisk avtrekk.
Toalettrom:
- Ventilasjon: Ventilasjonen vurderes som utilstrekkelig.
Andre rom:
- Overflate gulv: Synlige deler av gulvets overflatemateriale bæ rer preg av slitasje med enkelte riper og hakk.
- Innerdører: Dørvrider/lås på dør mot soverom er defekt.
Tilstandsgrad ikke undersøkt (TGIU):
Våtrom:
- Fallforhold rundt sluk: Det er ikke mulig å vurdere fallforholdene i sluksonen på en tilfredsstillende måte på grunn av plasseringen av badekaret.
Tekniske anlegg:
- Innvendig stakeluke: Innvendig stakeluke er ikke påvist inne i boenheten. Det vurderes at boenheten likevel har tilgjengelige stakepunkter gjennom sluk og øvrige komponenter tilknyttet avløpssystemet, men hvordan disse vil fungere i en faktisk brukssituasjon er ikke kjent.
Tilstandsrapporten er inntatt i salgsoppgaven. Rapporten inneholder informasjon om avvikene og konsekvensen av disse. Ettersom kjøper regnes å være kjent med forhold som tydelig fremgår av tilstandsrapporten, oppfordres du til å sette deg grundig inn i rapporten i sin helhet.
Sammendrag av selgers egenerklæring:
Er det utført arbeid på bad, vaskerom eller toalettrom? - "Ja, totalrenovering av bad og separat toalett i 2023. Utført av Siljan bygg AS."
Har du dokumentasjon på arbeidet? - "Ja."
Er det utført arbeid på tak, yttervegg, vindu eller annen fasade? - "Ja, vinduer ble skiftet i regi av borettslaget til 3-lags vinduer i 2018. Utført av Malercompagniet.
Har du dokumentasjon på arbeidet? - "Ja."
Er det utført arbeid på tak, yttervegg, vindu eller annen fasade? - "Ja, fasaden ble pusset opp i 2019. Utført av Malercompagniet.
Har du dokumentasjon på arbeidet? - "Nei."
Er det utført arbeid på det elektriske anlegget? - "Ja, det elektriske anlegget ble byttet i 2021. Utført av Hako elektro."
Har du dokumentasjon på arbeidet? - "Ja."
Er det utført arbeid på utvendige eller innvendige avløpsrør eller vannrør? - "Ja, Badet og toalettet ble renovert i 2023. Utført av Siljan bygg AS."
Har du dokumentasjon på arbeidet? - "Ja."
Standard
Vi har gleden av å presentere en svært innbydende og klassisk 2-roms andelsleilighet beliggende i 2. etasje i et attraktivt og veletablert boligområde på Bjølsen. Leiligheten fremstår som stilren og gjennomført, med en god planløsning og en hyggelig atmosfære. Boligen har klassiske kvaliteter som god takhøyde på ca. 2,8 meter, originale tregulv og store vindusflater som gir rikelig med naturlig lys. Leiligheten er nymalt og har harmoniske, tidsriktige fargevalg. Bad og separat toalett ble totalrenovert i 2023 av faglærte håndverkere. Det elektriske anlegget ble oppgradert i 2021.
Leiligheten består av entré, romslig stue, separat kjøkken, soverom, bad og separat toalett. Planløsningen er både funksjonell og arealeffektiv.
Boligen er en del av et veldrevet borettslag oppført i 1951, med gode fellesarealer og et trivelig bomiljø. Borettslaget har gjennomført flere viktige oppgraderinger de senere årene, blant annet nye vinduer i 2018 og fasaderehabilitering i 2019. Bjølsen borettslag består av 102 leiligheter og én utleiebolig, fordelt på fem lavblokker. Borettslaget har flotte fellesområder med beplantning, grillplass og sitteplasser, som danner et hyggelig og sosialt bomiljø. Borettslaget er godt organisert og har egen hjemmeside (bbor.no) samt en aktiv Facebook-gruppe for beboerne. Her deles informasjon, tjenester og praktiske beskjeder. Det legges til rette for et sosialt fellesskap med ulike arrangementer gjennom året, som sommerfest, høstfest, julegrantenning og 17. mai-feiring. I tillegg arrangeres det fellesaktiviteter som yoga, fotball og andre sosiale tiltak for beboerne.
Leiligheten har en sentral og attraktiv beliggenhet på Bjølsen, med kort vei til kollektivtransport, servicetilbud og grønne rekreasjonsområder.
S t u e :
Lys og luftig hjørnestue med god takhøyde, store vindusflater og rikelig med naturlig dagslys. Rommet har originale tregulv og harmoniske fargevalg som gir en rolig og innbydende atmosfære. Stuen er romslig og gir gode møbleringsmuligheter for både sofagruppe og spiseplass, og fremstår som en naturlig sosial sone i boligen. Ny peisovn bidrar til en lun og hyggelig stemning. Det er også gode muligheter for å dele av rommet og etablere et ekstra soverom ved behov. Potensielt kan også kjøkkenet flyttes ut i stuen for å etablere soverom der kjøkkenet er i dag.
S o v e r o m :
Lunt og romslig soverom med gode lysforhold og god plass til møblering. Rommet har plass til seng, nattbord og garderobeløsning. Det er etablert garderobeskap med gode oppbevaringsmuligheter. Soverommet har direkte adkomst til baderommet.
K j ø k k e n:
Romslig og funksjonelt kjøkken med innredning i glatte og profilerte fronter samt benkeplate i tre. Kjøkkenet har nedfelt oppvaskkum med armatur og godt med både skap- og skuffeplass, samt gode arbeidsflater. Integrerte hvitevarer består av komfyr, oppvaskmaskin og kjøleskap med fryser, samt vegghengt ventilator med kullfilter. Det er plass til spisebord, og kjøkkenet fungerer som en sosial og naturlig samlingsplass i boligen. Store vindusflater gir godt med dagslys og en luftig romfølelse.
B a d :
Baderom fra 2023 som fremstår lyst, moderne og innbydende. Rommet er flislagt med behagelig gulvvarme og har en stilren innredning med servant med underskap, speil med belysning og badekar med dusjløsning. Det er også opplegg for vaskemaskin. Badet har et harmonisk og rolig uttrykk som gir en behagelig atmosfære i hverdagen.
S e p a r a t W c :
Toalettrommet har praktisk adkomst fra gangen og ble totalrenovert i 2023. Gulvet er flislagt med behagelig gulvvarme, og veggene er malt med fliser bak toalettet. Rommet er innredet med toalett og vegghengt servant med underskap. Himlingen har downlights.
G u l v : Originale tregulv. Fliser og gulvvarme på bad og wc.
V e g g e r : Malte veggflater i dempet fargepalett. Flislagte vegger i badesone.
H i m l i n g : Malte flater i himling. Nedsenket himling med downlights på wc.
T a k h ø y d e : Ca. 2,81 meter i alle rom. Bad ca. 2,45 meter.
D i v e r s e : Vinduer fra 2018.
Løsøre og tilbehør
Vi viser til liste fra Norges Eiendomsmeglerforbund som gjelder fra 01.01.2020 angående løsøre og tilbehør.
Bokhyllen i stuen kan medfølge om ønskelig.
Oppvarming
Oppvarming av boligen skjer i en kombinasjon mellom bruk av panelovner (elektrisk oppvarming), og gulvvarme/varmekabler i baderom og wc.
Dersom beboelsesrom ikke har vegg- eller fastmonterte varmekilder ved visning, følger dette heller ikke med.
Selger har avtalt Norgespris på strøm på eiendommen for perioden høsten 2025 - 31.12.2026, og denne er pt på 50 øre inkl mva. Nettleie, avgifter og påslag fra kraftleverandøren kommer i tillegg. Er det fjernvarme vil det også komme kostnader i tillegg.
Denne avtalen vil følge eiendommen i den avtalte perioden.
Les mer om Norgespris her: https://www.regjeringen.no/no/aktuelt/legg-fram-lov-om-norgespris-pa-straum-og-fjernvarme/id3102642/
Ferdigattest/brukstillatelse
Eiendommen har vært brukt til boligformål i en årrekke. Det foreligger uattestert ekspedisjonsdokument fra 15.08.1923.
Kommunen opplyser at det ikke foreligger ferdigattest eller midlertidig brukstillatelse for eiendommen. Det finnes av den grunn ikke dokumentasjon over eiendommens lovlighet. Det foreligger trolig ikke ferdigattest eller midlertidig brukstillatelse på eiendommen. Kjøper overtar alt ansvar, kostnad og risiko for dette videre.
Det gjøres oppmerksom på at det ikke lenger utstedes ferdigattest på tiltak det er søkt om før 1998 jf. plan- og bygningsloven § 21-10. Kommunen vil ikke kreve ferdigattest for disse tiltakene og vil avvise eventuelle søknader. Bestemmelsen innebærer ikke at tiltak med manglende søknad blir lovlige, men at man ikke trenger å avslutte gamle byggesaker. Normalt sett kreves ferdigattest for alle søknadspliktige tiltak som gjøres etter plan- og bygningsloven. Kjøper overtar eiendommen slik den framstår på visning.
Sammenlignet med dagens planløsning og originale byggetegninger er det funnet følgende endringer:
- Det er innredet bad i deler av soveværelset.
Tinglyste heftelser og rettigheter
Utover andel fellesgjeld overdras leiligheten fri for pengeheftelser.
Borettslaget har legalpant for forfalte felleskostnader og andre krav som følger av borettslagsforholdet iht. burettslagsloven § 5-20. Pantet er begrenset oppad til 2G (G = folketrygdens grunnbeløp).
Eventuell adgang til utleie
Andelseier kan ikke uten samtykke fra styret i borettslaget overlate bruken av boligen til andre. Med samtykke kan andelseier overlate boligen til andre i inntil tre år hvis andelseier har bodd i boligen i minst ett av de to siste år. Utleie i andre tilfeller kan godtas ved særlige grunner, jf. burettslagslova § 5-6. Utleie forutsetter at leiligheten har forsvarlige radonverdier. Se også borettslagets vedtekter og konferer megler ved spørsmål.
Beliggenhet og tomteforhold
Beliggenhet og tomteforhold
Beliggenhet
Stavangergata 29 har en attraktiv beliggenhet på populære Bjølsen – et rolig og veletablert boligområde som kombinerer grønne omgivelser med nærhet til byens puls. Her bor du skjermet til i hyggelige omgivelser, samtidig som du har kort vei til et bredt utvalg av servicetilbud, kaféer, restauranter og kollektivtransport.
Fra leiligheten er det kort gangavstand til noen av Oslos mest attraktive friområder, som Akerselva, Bjølsenparken og Voldsløkka. Her ligger alt til rette for rekreasjon året rundt, enten du ønsker rolige spaserturer langs elven, trening i grønne omgivelser eller avslappende dager i parken. Området gir også enkel tilgang til Nydalen med BI Norwegian Business School, butikker og servicetilbud, samt Sagene og Grünerløkka med sitt spennende utvalg av kultur, spisesteder og byliv. I Nydalen er det også etablert flere fine badesteder, bare 7 minutters sykkeltur unna!
Kollektivtilbudet i området er svært godt, med flere busslinjer i umiddelbar nærhet, blant annet linje 20, 34, 37 og 54, som gir hyppige avganger til store deler av Oslo. Busslinje 37 og 54 går også hele døgnet, noe som gjør hverdagen ekstra fleksibel.
Dagligvarehandel og øvrige servicetilbud er lett tilgjengelig med både KIWI Bjølsen og Rema 1000 Bjølsen i få minutters gange fra leiligheten. I Bjølsenhallen finner du blant annet MENY Bjølsen, Vitusapotek Bjølsen og flere andre butikker. I tillegg er både Joker Bjølsen og Joker Maridalsveien rett i nærheten.
Nærområdet byr dessuten på et variert utvalg av hyggelige kaféer og spisesteder. Her finner du populære steder som Nord, MatMer, Kaffebrenneriet Sagene, Kaffe Gram og Sagene Lunsjbar – perfekte møteplasser for både en rask kaffe i hverdagen og hyggelige måltider i helgene.
Dette er en beliggenhet som passer perfekt for deg som ønsker å bo sentralt, men samtidig fredelig, med nærhet til både natur, byliv og alle hverdagens nødvendigheter.
Adkomst
Det vil bli skiltet med Krogsveen visningsskilt ved fellesvisninger.
Barnehager, skoler og fritid
Informasjon om tilhørende skolekretser er hentet fra Prognosesenteret som dataleverandør, og tilhørigheten kan årlig endres av kommunen. Dersom skole- og barnehagetilbud er av betydning for kjøpet, ber vi om at det rettes en særskilt henvendelse til kommunen/bydelsadministrasjonen for oppdatert informasjon.
Beskrivelse av tomt
Festet tomt på 498 kvm felles for borettslaget. Borettslaget inkluderer tre store bakgårder som er flott opparbeidet med plen og beplantning. Her kan man nyte sommerens vakre soldager til det fulle, og det er ypperlig å ta med seg lunsjen hit på varme dager. Solforholdene er gode, og man kan hygge seg i idylliske og skjermede omgivelser.
Om sommeren blomstrer de flotte hagene opp, og man kan glede seg over vakker beplantning, inkludert flotte tulipaner og en rekke syrintrær. Både hagen og paviljongen er svært godt tilrettelagte møteplasser, hvor det kan arrangeres fester og bursdager. Grillen brukes flittig av beboerne, både sommer og vinter. På varme sommerdager kan lunsjen nytes under syrinene, og på kveldstid kan man ta et glass vin sammen med naboene. Det finnes også en bålpanne som kan brukes i den kalde årstiden. Tomten er fellesareal.
Tomten til borettslaget er festet og bortfester er Oslo kommune. Årlig festeavgift er 137 796,- og ble sist regulert 1. november 2021 da festekontrakten utløp 30. oktober 2021. Neste regulering vil gjelder fra 1. november 2031, indeksert etter konsumprisindeksen. Ifølge lov om tomtefeste er festekontrakten forlenget på samme kontraktsavilkår fra 1. november 2021 og til fester eventuelt skulle velge å si opp festet eller innløse tomten. Oslo kommune praktiserer ikke forkjøpsrett eller behov for å godkjenne overdragelse av andeler.
Parkering
Det er innført beboerparkering i dette området (indre by). Dette betyr at du kan parkere fritt døgnet rundt på parkeringsplassene regulert til beboerparkering i området rundt din bolig for kun kr. 3.850- pr. år for fossile biler, dieselbil, hybridbil, ladbar hybrid.
Har du el-bil så betaler du kr. 1.300,- pr år, hydrogenbil og el-varebil er gratis.
Motorsykkel og moped kr 1.925,- pr år.
El-motorsykkel og el-moped kr 650,- pr år.
Se Oslo kommune sine nettsider for mer informasjon og priser for ytre by.
Vei, vann og avløp
Eiendommen har adkomst via kommunal vei.
Eiendommen er tilknyttet kommunalt ledningsnett via private stikkledninger.
Borettslaget er ansvarlig for private stikkledninger til bygningen.
Regulerings-og arealplaner
Eiendommen er regulert til bolig i henhold til reguleringsplan S-2255 datert 28.07.1977 med tilhørende reguleringsbestemmelser.
Planen er helt eller delvis opphevet som følge av bystyrets vedtak 23.09.2015 sak 262 gjennom ny "Kommuneplan 2015 - Oslo mot 2030 - Smart, trygg og grønn." Området blir berørt av endringer i reguleringsplan for Oslo Sentrum og indre sone i Oslo kommune som følge av dette. Denne nye planen får betydning for en rekke vedtatte reguleringsplaner i Oslo. Henviser til kommunens nettsider for ytterligere informasjon: https://www.oslo.kommune.no/politikk-og-administrasjon/politikk/kommuneplan/. Utsnitt av plan med tilhørende bestemmelser kan fås ved henvendelse til megler.
Eiendommen er verneverdig da den står oppført på Byantikvarens Gule Liste. Dette kan medføre at større endringer av bygningen må godkjennes av kommunen eller fylket før igangsetting.
Pågående byggesaker:
- Stavangergata 35 - 37 - Sammenslåing av to boenheter og åpning i bærevegg mellom H0201 i Stavangergata 35 og H0202 i Stavangergata 37. Saksnummer: 202515618 for mer informasjon.
- Bergensgata 20 - fasadeendring og bruksendring fra tilleggsdel til hoveddel. Saksnummer: 202515717 for mer informasjon.
Pågående plansaker:
Saken gjelder Stavangergata. Sakstype detaljregulering. Endring av trafikkmønster. Saksnummer: 201719253 for mer informasjon.
Det kan påregnes støy, ulemper og/eller endringer i omgivelsene ved ovennevnte plan- og byggesaker.
Opplistingen er ikke uttømmende og interessenter oppfordres til å sette seg inn i reguleringsplaner for området. For flere byggesaker og informasjon i området, gå inn på Oslo kommune, plan og bygg sine nettsider: https://od2.pbe.oslo.kommune.no/kart/.
Økonomi
Økonomi
Boligens kostnader
Felleskostnadene er kr 4 465,- pr. mnd. og inkluderer: Trappevask, kabel-TV og bredbånd, dugnadsbidrag, vedlikehold, betjening av andel fellesgjeld, kommunale avgifter, festeavgift og felles bygningsforsikring.
Felleskostnadene justeres normalt årlig i forhold til borettslagets faktiske utgifter.
Felleskostnadene fordeles slik:
Felleskostnader: kr. 2 387,-
Kabel-TV-avgift og bredbånd: kr. 435,-
Trappevask: kr. 139,-
Renter og avdrag: kr. 732,-
Renter og avdrag: kr. 389,-
Renter og avdrag: kr. 208,-
Dugnadsbidrag: kr. 129,-
Vedlikeholdstillegg: kr. 46,-
Boligen er tilknyttet Telia som leverandør av kabel-tv og internett. Tv-tuner/dekoder kan medfølge hvis ønskelig.
Utgiftene er basert på nåværende eiers forbruk. Kjøper må selv tegne innboforsikring.
Formuesverdi
Formuesverdi for 2024 var kr 1 514 954,- ifølge selgers skattemelding/Skatteetaten. Beløpet forutsetter at eier bor fast i boligen (primærbolig).
Ved eventuell øvrig bruk av eiendommen (f.eks. fritidsbolig, pendlerbolig, utleieobjekt) var formuesverdien for 2024 kr 6 059 816,-/6 059 816,-.
Fra 2026 har Stortinget vedtatt en oppdatert modell for beregning av formuesverdi for primærbolig, så avvik kan forekomme.
For mer informasjon se skatteetaten.no
Opplysninger om fellesgjeld
Andel formue er kr 60 732,- pr. 31.12.2025
Andel fellesgjeld er kr 190 654,- pr. 15.04.2026
Total fellesgjeld for boligselskapet er kr 22 087 848,- pr. 17.03.2026 og lånevilkårene er:
Lånenummer: 94927018688, Svenska Handelsbanken AB NUF
Annuitetslån, 12 terminer per år.
Rentesats per 17.03.2026: 5.35% pa.
Antall terminer til innfrielse: 86
Saldo per 17.03.2026: 1 716 301
Andel av saldo: 14 853
Første termin/første avdrag: 30.12.2025 ( siste termin 30.04.2033 )
Lånenummer: 94927029701, Svenska Handelsbanken AB NUF
Annuitetslån, 12 terminer per år.
Rentesats per 17.03.2026: 5.35% pa.
Antall terminer til innfrielse: 272
Saldo per 17.03.2026: 13 419 786
Andel av saldo: 116 137
Første termin/første avdrag: 30.12.2025 ( siste termin 30.10.2048 )
Lånenummer: 94927046142, Svenska Handelsbanken AB NUF
Annuitetslån, 12 terminer per år.
Rentesats per 17.03.2026: 5.35% pa.
Antall terminer til innfrielse: 259
Saldo per 17.03.2026: 6 951 761
Andel av saldo: 60 162
Første termin/første avdrag: 30.12.2025 ( siste termin 30.09.2047 )
Omkostninger
6 100 000,00 Prisantydning
190 654,00 Andel av fellesgjeld
--------------------------------------------------------
6 290 654,00 Pris inkl. fellesgjeld
Omkostninger
9 950,00 Gjensidige Boligkjøperpakke* (valgfritt)
545,00 Tinglysing hjemmel
545,00 Tinglysing panterettsdokument
--------------------------------------------------------
1 090,00 (Omkostninger totalt (uten Gjensidige Boligkjøperpakke))
11 040,00 Omkostninger totalt (med Gjensidige Boligkjøperpakke))
--------------------------------------------------------
6 291 744,00 Totalpris inkl. omkostninger
6 301 694,00 Totalpris inkl. omkostninger (med Gjensidige Boligkjøperpakke)
--------------------------------------------------------
Dersom kjøper ikke er medlem av boligbyggelaget, må det påregnes en innmeldingsavgift og årlig medlemsgebyr pr. ny andelseier. Dette faktureres direkte fra boligbyggelaget.
Dersom borettslaget har fellesgjeld, vil leilighetens andel av fellesgjelden komme i tillegg til kjøpesummen. Denne gjelden skal ikke innbetales i oppgjøret, men følger leiligheten.
Det tas forbehold om endringer i avgifter og gebyrer.
Tilbud om lånefinansiering
Megler formidler gjerne kontakt med rådgiver hos vår samarbeidspartner BN Bank. De har konkurransedyktige betingelser samt rask og løsningsorientert behandling av din lånesøknad. Krogsveen mottar et honorar dersom lån opprettes.
Betalingsbetingelser
Kjøpesum inkludert omkostninger, samt pantedokument tilknyttet eventuelt lån, skal være disponibelt hos megler 2 virkedager før overtagelsen.
Annen viktig informasjon
Annen viktig informasjon
Eier
Paal Uvaag og Maren Simonsen
Informasjon om borettslaget
Leiligheten er tilknyttet Bjølsen Borettslag.
Borettslaget består av 102 leiligheter.
Forretningsfører er Oslo og Omegn Boligforvaltning AS, tlf. 22 12 23 40.
Borettslaget har egen hjemmeside: http://www.bbor.no
Styret kan kontaktes på e-post: kontakt@bbor.no
Eiendommen er forsikret i GJENSIDIGE FORSIKRING ASA med polisenummer: 88266742
Borettslaget benytter Vaktmester Andersen til vaktmestertjenester.
Nøkler til inngangsdør bestilles skriftlig pr. epost til: kontakt@bbor.no.
Dugnad må påregnes. Det gjennomføres 3 dugnader i året. Ved deltakelse på min. 2 av dugnadene vil "dugnadsbidrag" tilbakebetales.
Dyrehold må søkes om til styret.
Borettslaget har eget fellesvaskeri som er lokalisert i Stavangergata 37.
REHABILITERING OG STØRRE VEDLIKEHOLD
2024: Bytte av varmekabler i takrenner
2023: Bytte av batterier i alle røykvarslere 2022-2023 Rørfornying av soil og bunnledninger 2022-2023 Installasjon av radonvifter i flere kjellere 2021 Nye håndslukkere i alle andeler
2021: Flere lyspunkter på loft
2021: Branntetting i kjellere
2021: Oppgradering av kabeltv-anlegget til Docsis 3.1
2020 Utbedring av takrenner
2020 Bytte av batterier i brannvarslingsanlegget
2020 Brannkontroll
2020 EL-anlegg oppgradert i uteområde
2019 Ny oppmurt grill i Paviljonggården
2019 Tilstandsanalyse drenering og fukt kjellere
2019 Tilstandsanalyse EL-anlegg felles
2019 Nye sykkelskur i klokkegården og paviljonggården
2018-2019 Rehabilitering av fasade og utskifting av vinduer
2018 Nytt sykkelskur i barnehagegården
2016 Rens av ventilasjonsanlegg
2016 Kamerainspeksjon og spyling av soilrør og bunnledninger
2012 Nedgravde søppelcontainere
2012 Oppgradering av vaskekjeller (2 nye vaskemaskiner, bet.system)
2012 Montering av snøfangere på utsiden av klokkegården
2012 Ferdigstillelse av piperehabilitering
2012 Barnevognskinner i samtlige kjelleroppganger
2011 Piperehabilitering utført av PEWI
2011 Nye hovedstrøminntak fra 130 Amp til 260 Amp
2011 Nye kummer i bakgårdene
2011 Ny tørketrommel i vaskerommet
2010 Utskifting av lamper i oppganger til sparepærer
2010 Utskifting av postkasseanlegg
2010 Oppussing av portner-/ vaktmesterboligen for utleie
2010 Montert varmekabler i takrenner (HMS arbeider)
2010 Montering av nytt callinganlegg
2010 Utskifting av dører til hovedinngang
2009 Installasjon av seriekoblet brannvarslingsanlegg (HMS arbeider)
Planlagte påkostninger:
Styreleder opplyser om at på mellomlang sikt ser borettslaget behov for å se på vedlikehold av taket som anses som et litt større prosjekt. Det vil bli tatt en vurdering i senere tid.
Vi oppfordrer alle til å sette seg inn i vedtekter, husordensregler, regnskap, budsjett og årsberetning. Dokumentene vil være tilgjengelig hos meglerforetaket. Det gjøres oppmerksom på at fellesgjeld og felleskostnader kan variere over tid som følge av beslutninger foretatt i borettslagets styre og/eller generalforsamling.
I henhold til borettslagets vedtekter må kjøper godkjennes av styret som ny andelseier. Det er kjøpers ansvar at styregodkjenning blir gitt, men styret kan ikke nekte godkjenning uten saklig grunn. Iht. burettslagslova kan man bare eie en andel i borettslaget. Kun fysiske personer kan være andelseiere.
Det praktiseres ikke forkjøpsrett i borettslaget.
Borettslag har anledning til å være tilknyttet et sikringsfond som dekker eventuelt manglende innbetaling av felleskostnader. Dette borettslaget er ikke tilknyttet et slikt fond, noe som vil kunne medføre en risiko for økte felleskostnader dersom andre andelseiere ikke betaler sine felleskostnader. Borettslaget har imidlertid legalpant i andelen, og manglende betaling av felleskostnader kan dermed tvangsinndrives av borettslaget.
Dokumenter for borettslaget kan fås ved henvendelse til megler.
Overtakelse
Etter nærmere avtale. Overtakelse kan tidligst skje etter at styrets godkjennelse er avklart. Det praktiseres ikke forkjøpsrett i borettslaget.
Boligselgerforsikring
Selger har i forbindelse med salget tegnet boligselgerforsikring levert av Gjensidige.
Boligselgerforsikringen dekker selgers ansvar etter avhendingsloven begrenset oppad til kr 14 millioner. Dersom kjøper oppdager forhold ved eiendommen som hen mener utgjør en mangel ved eiendommen, vil Gjensidige behandle reklamasjonen på vegne av selger. Forsikringsvilkår kan fås ved henvendelse til megler.
Vedlagt salgsoppgaven følger selgers egenerklæringsskjema og tilstandsrapport. Interessenter må sette seg inn i dokumentene før bud inngis.
Boligkjøperforsikring
Innen kontraktsmøtet må kjøper ta stilling til om det ønskes å bestille Boligkjøperpakken gjennom Gjensidige. I denne gunstige pakken er boligen ferdig forsikret og inkluderer rettshjelpsforsikring, også kalt Boligkjøperforsikring. Rettshjelpsforsikring gir trygghet og tilgang på profesjonell juridisk hjelp dersom det oppdages uventede feil eller mangler det første året etter overtagelse. Forsikringsselskapet behandler i så fall ethvert mangelskrav kjøper måtte ha overfor selger.
Boligkjøperpakken inkluderer bygningsforsikring for hus og hytte, innboforsikring, flytteforsikring og dobbel rentedekning - i situasjoner hvor kjøper ikke får solgt nåværende primærbolig.
Kjøper mottar ingen særskilt faktura for Boligkjøperpakken da kostnaden det første året legges til kjøpesummen for boligen. Det gjøres oppmerksom på Krogsveen mottar et honorar for denne formidlingen.
Produktark for Boligkjøperpakken ligger vedlagt i salgsoppgaven.
Dersom ikke boligkjøperpakke ønskes kan kun rettshjelpsforsikring, også kalt boligkjøperforsikring, tegnes særskilt via megler. Rettshjelpsforsikringen varer i 5 år fra overtagelse og leveres gjennom Gjensidige. Ta kontakt med megler for ytterligere informasjon.
Selskap og privatpersoner som driver med kjøp/salg/utvikling som ledd i egen næringsvirksomhet kan ikke tegne boligkjøperpakke eller rettshjelpsforsikring.
Budgivning
Forbrukerinformasjon om budgivning er vedlagt denne salgsoppgaven og er også på vår hjemmeside Krogsveen.no. Alle bud og budforhøyelser må inngis skriftlig. I tillegg må legitimasjon være fremlagt sammen med signatur fra budgiver.
Vi oppfordrer til å gi bud elektronisk via GI BUD-knappen på eiendommens hjemmeside på Krogsveen.no. Da vil samtlige vilkår bli oppfylt.
Eventuelle forhøyelser eller endringer av budet kan bekreftes pr SMS eller på e-post. Vi oppfordrer alltid til å kontakte megler pr. telefon i tillegg da forsinkelser i SMS og e-post kan forekomme.
For at budene skal kunne bli behandlet og videreformidlet skriftlig til alle involverte parter, må alle bud ha en tilstrekkelig lang akseptfrist, jf. eiendomsmeglingsforskriften § 6-3.
Selger må også skriftlig akseptere budet før aksept kan formidles til budgiver. Akseptfrist bør derfor være på minimum 30 minutter, og budforhøyelser må derfor skje i god tid før fristens utløp.
Bud i forbrukerforhold kan uansett ikke settes med kortere frist enn kl. 12.00 første virkedag etter siste annonserte visning. I tillegg kan ikke budet ha forbehold om at det skal holdes hemmelig ovenfor øvrige interessenter. Megler har iht lov om eiendomsmegling ikke anledning til å videreformidle disse budene, og de vil dermed heller ikke bli journalført.
Etter at eiendommen er solgt vil kjøper og selger få tilsendt budjournal. Øvrige budgivere kan få utlevert kopi av budjournalen i anonymisert form.
Hvitvaskingsreglene
I henhold til lov om hvitvasking og terrorfinansiering har megler plikt til å gjennomføre kontrolltiltak overfor kunder, herunder fullmektiger. Dette innebærer bl.a. å bekrefte kunders og reelle rettighetshaveres identitet på bakgrunn av fremvist gyldig legitimasjon eller på annen godkjent måte, samt å innhente opplysninger om kundeforholdets formål og tilsiktede art.
Dersom slike kundetiltak ikke kan gjennomføres, kan megler ikke etablere kundeforholdet eller utføre transaksjonen.
Hvis kjøper ikke bidrar til gjennomføring av kundekontrollen og dette fører til at transaksjonen blir forsinket eller ikke kan gjennomføres, vil dette ansees som mislighold av avtalen og gi selger rettigheter etter avhendingslova kapittel 5. I tilfeller der selger ikke bidrar til gjennomføring av løpende kundekontroll underveis i oppdraget, er det selger som misligholder sine forpliktelser etter avtalen og gi kjøper rettigheter etter avhendingslovens kapittel 4. Partene er selv ansvarlige for eventuelle kostnader og ansvar dette kan medføre. Eiendomsmegleren eller eiendomsmeglingsforetaket kan ikke holdes ansvarlig for de konsekvenser dette vil kunne få for partene eller andre som har interesser i eiendomshandelen.
Kjøper oppfordres til å innbetale kjøpesummen som ikke kommer fra låneinstitusjon i én samlet innbetaling fra egen konto i norsk bank. Megler har plikt til å melde fra til Økokrim om eiendomshandler som fremstår som mistenkelige. Melding sendes Økokrim uten at partene varsles.
Personopplysningsloven
I henhold til personopplysningsloven gjør vi oppmerksom på at interessenter kan bli registrert for videre oppfølging.
Lovanvendelse
Generelle bestemmelser
Salgsoppgaven er basert på de opplysningene selger har gitt til megler, den bygningssakyndiges tilstandsrapport, samt opplysninger innhentet fra kommunen, Kartverket og andre tilgjengelige kilder. Det er viktig at kjøper setter seg grundig inn i alle salgsdokumentene, herunder salgsoppgave, tilstandsrapport og selgers egenerklæring. Kjøper anses kjent med forhold som er tydelig beskrevet i salgsdokumentene, og slike forhold kan ikke påberopes som mangler. Dette gjelder uavhengig av om kjøper har lest dokumentene. Alle interessenter oppfordres til å undersøke eiendommen nøye, gjerne sammen med fagkyndig før bud inngis. Kjøper som velger å kjøpe usett kan ikke gjøre gjeldende som mangel noe han burde blitt kjent med ved undersøkelsen.
Dersom det er behov for avklaringer, anbefaler vi at interessenter rådfører seg med eiendomsmegler eller egne rådgivere før det legges inn bud.
En bolig som har blitt brukt i en viss tid, har vanligvis blitt utsatt for slitasje og skader kan ha oppstått. Slik bruksslitasje må kjøper regne med, og det kan avdekkes enkelte forhold etter overtakelse som nødvendiggjør utbedringer. Normal slitasje og skader som nødvendiggjør utbedring, er innenfor hva kjøper må forvente og vil ikke utgjøre en mangel.
Kjøper og selgers rettigheter og plikter reguleres av avtalen mellom partene, samt informasjonen som har vært tilgjengelig for kjøperen i forbindelse med handelen. Avtalen utfylles av avhendingsloven, og det gjelder ulike avtalevilkår avhengig av om kjøper er forbrukerkjøper eller ikke. Dette er nærmere beskrevet nedenfor.
På grunn av ulike avtalevilkår kan selger vurdere bud fra en som ikke er forbruker, ulikt fra en forbrukers bud. Dersom kjøper ikke er forbruker, er selger sitt mulige mangelsansvar begrenset fordi eiendommen selges "som den er". Selger kan ikke ta «som den er»- forbehold overfor en forbrukerkjøper. Selv et lavere bud fra en som ikke er forbruker kan foretrekkes fordi begrensningen i mulig mangelsansvar kan ha egenverdi for selger. Selger står fritt til å forkaste eller akseptere ethvert bud, og er for eksempel ikke forpliktet til å akseptere høyeste bud.
Budgiver skal i budskjema avgi egenerklæring om budgiver er forbruker eller næringsdrivende/ person som hovedsakelig handler som ledd i næringsvirksomhet. Budgivere får informasjon dersom andre bud er inngitt av en som ikke er forbruker.
Forbrukerkjøp - definisjon
Med forbrukerkjøp menes kjøp av eiendom når kjøperen er en fysisk person som ikke hovedsakelig handler som ledd i næringsvirksomhet.
Forbruker – avtalevilkår
Eiendommen har en mangel dersom den ikke er i samsvar med kravene som følger av avtalen, eller det foreligger brudd på bestemmelsene i avhendingsloven §§ 3-2 til 3-8. Hvis eiendommen ikke er i samsvar med det kjøperen må kunne forvente ut ifra alder, type og synlig tilstand, kan det være grunnlag for mangelskrav. Det samme gjelder hvis det er holdt tilbake eller gitt uriktige opplysninger om eiendommen. Dette gjelder likevel bare dersom man kan gå ut ifra at det virket inn på avtalen at opplysningen ikke ble gitt eller at mangelskravet ikke blir rettet i tide på en tydelig måte.
Boligen kan ha en mangel etter avhendingsloven § 3-3 andre ledd, dersom det er avvik mellom opplyst og faktisk innvendig areal, forutsatt at avviket er på 2% eller mer og minimum 1 kvm.
Ved beregning av et eventuelt prisavslag eller erstatning må kjøper selv dekke tap/kostnader opptil et beløp på kr 10 000 (egenandel).
Ikke-forbruker (næringsdrivende) – definisjon
Hvis kjøper er en juridisk person, eller en fysisk person som hovedsakelig handler som ledd i næringsvirksomhet, vil kjøpet ikke anses som et forbrukerkjøp.
Ikke-forbruker – avtalevilkår
Eiendommen har en mangel dersom den ikke er i samsvar med kravene som følger av avtalen.
Eiendommen selges «som den er», og selgers ansvar utover det konkret avtalte er da begrenset etter avhendingsloven § 3-9, første ledd andre setning.
Avhendingsloven § 3-3 andre ledd fravikes, og hvorvidt boligens arealsvikt utgjør en mangel vurderes etter avhendingsloven § 3-8.
Informasjon om kjøpers undersøkelsesplikt, herunder oppfordringen om å undersøke eiendommen nøye, gjelder også for kjøpere som ikke anses som forbrukere.
Det forutsettes at hjemmel overføres til kjøper. Hvis kjøper ikke ønsker hjemmelsoverføring av eiendommen, må det tas forbehold om dette i budet.
Meglers vederlag
Meglers vederlag betales av selger og er avtalt til:
Vederlag: 0,90 % av salgssummen inkl. eventuell fellesgjeld.
Vederlag:
Kontroll av hjemmel og heftelser kr 3 900,-
Markedsføringspakke finn, hjem, krogsveen, sosiale medier, nettaviser, boligsøkere mm kr 30 900,-
Oppgjør kr 8 900,-
Salgsoppgave kr 5 500,-
Tilrettelegging kr 19 900,-
Visninger pr stk / Overtagelse kr 3 500,-
Utlegg:
Eierskiftegebyr forretningsfører - OBF kr 6 725,-
Innhenting av informasjon forretningsfører - OBF kr 4 382,-
Tinglysing sikring kr 545,-
Andre utgifter:
AX tilstandsrapport leilighet inkl målsatt plantegning kr 9 700,-
Foto stor pakke kr 4 500,-
Vi er opptatt av verdiskapning, og har knyttet til oss samarbeidspartnere som skal sikre våre kunder de beste produkter og tjenester;
• I forbindelse med forberedelse av salget, innhenter vi informasjon om eiendommen hovedsakelig fra vår samarbeidspartner Amibita.
• Gjensidige leverer boligselgerforsikring og tilbyr bygningsforsikring
• Boligkjøperforsikring leveres av Hiscox og med Sedgwick som skadebehandler, og er formidlet gjennom Gjensidige.
• BN bank tilbyr finansieringsløsninger
• Vår avdeling Krogsveen Pluss tilbyr flyttetjenester som utvask, visningsvask, lager, tømming og transport av flyttelass, i tillegg til å formidle kontakt med Flip for overflateoppussing.
• I forbindelse med overtagelse av eiendommen tilbyr Overo avtale om strøm, alarm og bredbånd.
• Krogsveen er, sammen med øvrige bransjeaktører, medeier i Bomega AS som tilbyr den digitale annonseringsplattformen Hjem.
Opplysninger om oppdraget
Oppdragsnummer 40-0056/26
Eiendomsmegler Krogsveen AS, avd. Majorstuen og Oslo Vest
Hegdehaugsveien 31, 0352, OSLO
950 007 613
Oppdragets KR-kode KR40.2656
Dato
Sist oppdatert: 17. april 2026 kl. 18:14
Dokumenter
Dokumenter
PDF – 116 KB
PDF – 964 KB
PDF – 165 KB
PDF – 312 KB
PDF – 29 KB
PDF – 127 KB
PDF – 392 KB
Område
Legg til steder som er viktige for deg
Visning
For å delta på visning, ber vi om at du melder deg på. Da sikrer vi at du får nødvendig informasjon og at det er satt av tilstrekkelig med tid. Kontakt megler dersom annet tidspunkt ønskes. Husk å lese salgsoppgaven før visningen, så du stiller forberedt.
Ønsker du kun å bli holdt orientert, kan du fra eiendommens hjemmeside få varsel om solgtpris, eller kontakte megler.
Lurer du på noe?
Unngå doble boligrenter
Vi tilbyr gunstig forsikring.
Vurderer du utleie?
Få et tilbud fra Utleie KrogsveenHva koster lånet?
Sjekk estimert lånekostnadVil du varsles om lignende boliger?
Ved å lagre ditt boligsøk hos oss får du beskjed når vi har en bolig som ligner denne, før den legges ut på markedet!
































