Harald Hårfagres gate 12C
6 950 000 kr
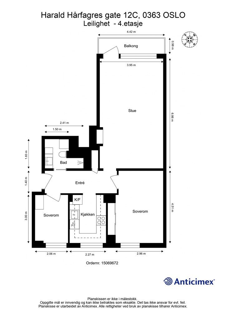
68 m²
2 soverom
Solgt

Majorstua
Lys og stilren 3 -roms selveier med solrik balkong - Fibernett, fyring og v.v ink. - Heis - Peis - IN-ordning - Bad 2019
Prisantydning
6 950 000 krAndel fellesgjeld
225 866 krOmkostninger
190 410 krTotalpris
7 366 276 kr
Pris
Bruksareal
71 m²BRA-I (internt bruksareal)
68 m²BRA-E (eksternt bruksareal)
3 m²TBA (terrasse-balkongareal)
4 m²
Areal
Etasje
4Byggeår
1940Soverom
2 soveromBad
1 badType
EierleilighetEierform
EierseksjonFasiliteter
Heis og Balkong/TerrasseFellesutgifter
5 393 krEnergimerke
Grønn F
Nøkkelinfo
Unngå doble boligrenter
Vi tilbyr gunstig forsikring.
Vurderer du utleie?
Få et tilbud fra Utleie KrogsveenHva koster lånet?
Sjekk estimert lånekostnadBeskrivelse
Kort om eiendommen
Velkommen til Harald Hårfagres gate 12C, en lys og innbydende 3-roms med balkong og gode solforhold. Leiligheten er i nyere tid overflateoppusset med slipt eikegulv samt malt vegg- og himlingsflater i 2022. Vinduene og balkongdøren ble skiftet ut i regi av sameiet i 2024. Videre ble bad pusset opp i regi av sameiet i 2019. Leiligheten er beligget på ettertraktede Majorstuen med nærhet til alt du måtte trenge i hverdagen av både service- og kollektivtilbud. Leiligheten har en god internbeliggenhet i byggets 4. etasje, med enkel heisadkomst til leilighetsplan.
Kort fortalt:
- Peis
- Sydvestvendt balkong med flotte solforhold
- Fibernett, fyring/v.v inkl.
- Rolig og etablert nabolag, samtidig meget sentralt
- IN-ordning på fellesgjeld
- Veldrevet og engasjert sameie
Område
Legg til steder som er viktige for deg
På flyttefot? Tenk kjøp og salg samtidig.
Få din egen rådgiver gjennom hele kjøps- og salgsprosessen. Det starter med en verdivurdering.
Unngå doble boligrenter
Vi tilbyr gunstig forsikring.
Vurderer du utleie?
Få et tilbud fra Utleie KrogsveenHva koster lånet?
Sjekk estimert lånekostnadVil du varsles om lignende boliger?
Ved å lagre ditt boligsøk hos oss får du beskjed når vi har en bolig som ligner denne, før den legges ut på markedet!

