Fjeldheimvegen 34
6 990 000 kr
178 m²
4 soverom
Solgt

Jessheim
Stilfull familiebolig med gjennomført kvalitet, oppgradert uteområde og solrike terrasser-4 s.rom-2 bad-2 stuer-Garasje
Prisantydning
6 990 000 krOmkostninger
195 740 krTotalpris
7 185 740 kr
Pris
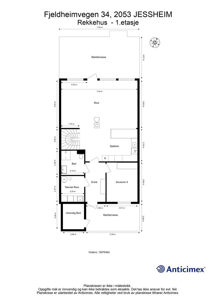
Bruksareal
214 m²BRA-I (internt bruksareal)
178 m²BRA-E (eksternt bruksareal)
36 m²TBA (terrasse-balkongareal)
46 m²
Areal
Etasje
2Byggeår
2017Soverom
4 soveromBad
2 badType
RekkehusEierform
EierseksjonFellesutgifter
2 300 krEnergimerke
Oransje B
Nøkkelinfo
Unngå doble boligrenter
Vi tilbyr gunstig forsikring.
Vurderer du utleie?
Få et tilbud fra Utleie KrogsveenHva koster lånet?
Sjekk estimert lånekostnadBeskrivelse
Kort om eiendommen
Velkommen til Fjeldheimvegen 34 – en sjelden mulighet til å sikre deg en av Jessheims mest tiltalende rekkehusboliger. Her får du arkitektonisk eleganse, moderne løsninger og et uteområde som imponerer – alt satt sammen for å gi deg den ultimate familiehverdagen. Boligen byr på 4 soverom, 2 bad, 2 stuer og et nydelig oppgradert uteområde som inviterer til både ro og sosiale sammenkomster. Store vindusflater, høy himling og en luftig planløsning gir en følelse av rom og lys du må oppleve for å forstå. Dette er en bolig for deg som ikke vil gå på kompromiss med kvalitet, stil eller beliggenhet. I tillegg til garasje og en biloppstillingsplass, er det ytterligere parkeringsmuligheter utenfor bod på enden av tomten. Eiendommen ligger sentralt plassert, men samtidig rolig og barnevennlig.
Område
Legg til steder som er viktige for deg
På flyttefot? Tenk kjøp og salg samtidig.
Få din egen rådgiver gjennom hele kjøps- og salgsprosessen. Det starter med en verdivurdering.
Unngå doble boligrenter
Vi tilbyr gunstig forsikring.
Vurderer du utleie?
Få et tilbud fra Utleie KrogsveenHva koster lånet?
Sjekk estimert lånekostnadVil du varsles om lignende boliger?
Ved å lagre ditt boligsøk hos oss får du beskjed når vi har en bolig som ligner denne, før den legges ut på markedet!

