Keiser Wilhelms gate 39
2 300 000 kr
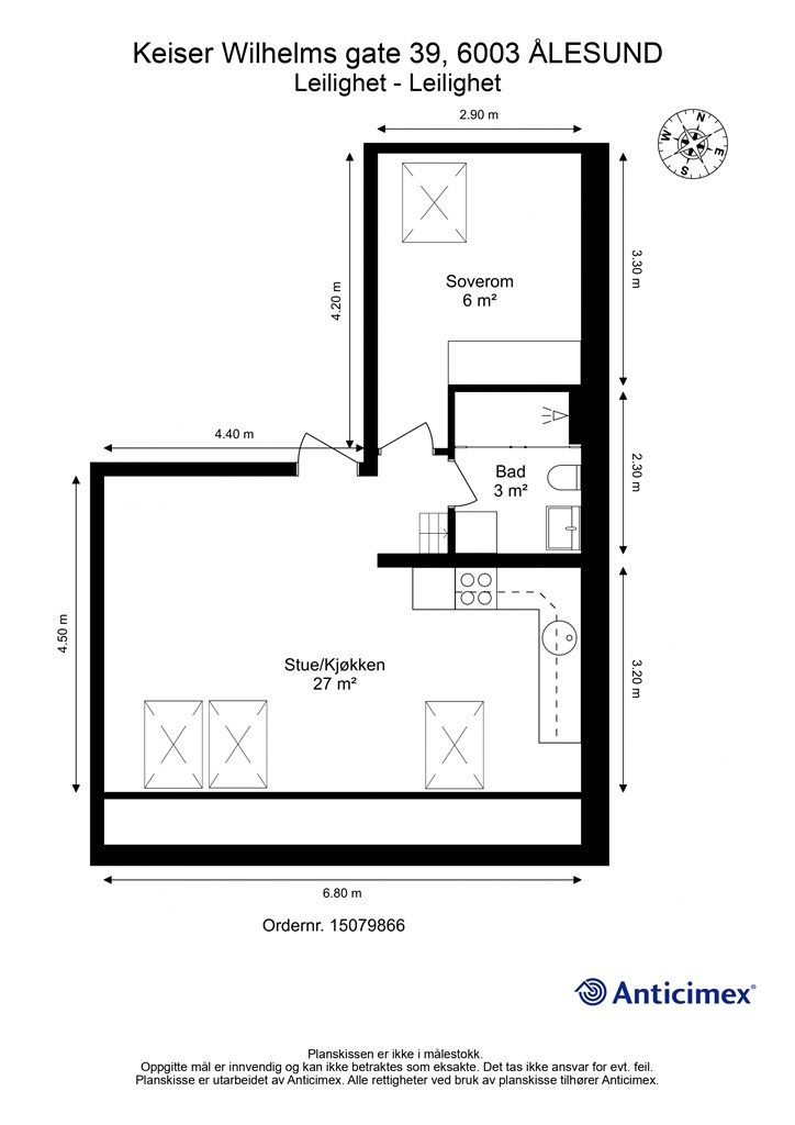
33 m²
1 soverom
Solgt

SENTRUM
BUD MOTTATT!Tiltalende toppleilighet midt i bysentrum med skråtak | Hems | Gode oppbevaringsmuligheter
Prisantydning
2 300 000 krOmkostninger
68 540 krTotalpris
2 368 540 kr
Pris
Bruksareal
37 m²BRA-I (internt bruksareal)
33 m²BRA-E (eksternt bruksareal)
4 m²
Areal
Etasje
4Byggeår
1906Soverom
1 soveromBad
1 badType
EierleilighetEierform
EierseksjonFellesutgifter
1 548 krEnergimerke
G
Nøkkelinfo
Unngå doble boligrenter
Vi tilbyr gunstig forsikring.
Vurderer du utleie?
Få et tilbud fra Utleie KrogsveenHva koster lånet?
Sjekk estimert lånekostnadBeskrivelse
Kort om eiendommen
Midt i Ålesunds bysentrum ligger denne moderne og tiltalende toppleiligheten - med kort vei til å tilfredsstille alle hverdagslige behov.
Fra leiligheten er det behagelig gangavstand til alt fra populære spise- og serveringssteder, dagligvarebutikk, treningssenter, kulturelle opplevelser, turmuligheter og mye mer!
Leiligheten ligger i byggets 4. etg og ble ombygd i 2015. Innvendig består den av et stue-kjøkkenrom med åpent skråtak og synlige takbjelker, soverom, bad og hems over bad. Samt loftsrom over entré som gir ekstra lagringsplass. I tillegg medfølger det utvendig bod i felles bodanlegg.
Det totale gulvarealet i leiligheten er oppmålt til 42m², men grunnet skråtak er det målbare arealet på 33m².
Velkommen til visning!
Område
Legg til steder som er viktige for deg
På flyttefot? Tenk kjøp og salg samtidig.
Få din egen rådgiver gjennom hele kjøps- og salgsprosessen. Det starter med en verdivurdering.
Unngå doble boligrenter
Vi tilbyr gunstig forsikring.
Vurderer du utleie?
Få et tilbud fra Utleie KrogsveenHva koster lånet?
Sjekk estimert lånekostnadVil du varsles om lignende boliger?
Ved å lagre ditt boligsøk hos oss får du beskjed når vi har en bolig som ligner denne, før den legges ut på markedet!
































