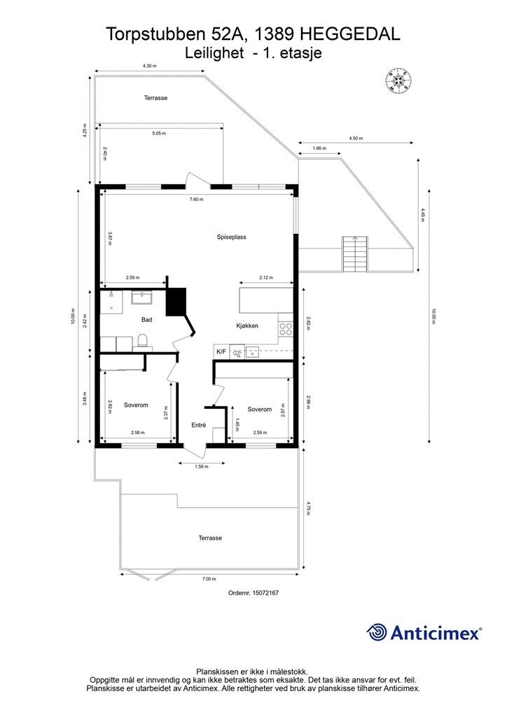
Torpstubben 52A
4 130 000 kr
76 m²
2 soverom
Solgt

Presenteres av
Terje TveitTORP / HØYMYR
Flott, gjennomgående leilighet med 2 uteplasser og gode solforhold. 2 soverom, åpen stue- og kjøkkenløsning. Garasje.
Prisantydning
4 130 000 krOmkostninger
114 290 krTotalpris
4 244 290 kr
Pris
Bruksareal
96 m²BRA-I (internt bruksareal)
76 m²BRA-E (eksternt bruksareal)
20 m²
Areal
Etasje
1Byggeår
1992Soverom
2 soveromBad
1 badType
EierleilighetEierform
EierseksjonFasiliteter
Garasje/P-plass og Balkong/TerrasseFellesutgifter
460 krEnergimerke
Rød F
Nøkkelinfo
Unngå doble boligrenter
Vi tilbyr gunstig forsikring.
Vurderer du utleie?
Få et tilbud fra Utleie KrogsveenHva koster lånet?
Sjekk estimert lånekostnadBeskrivelse
Kort om eiendommen
Velkommen til Torpstubben 52A, presentert av Terje Tveit i Krogsveen.
Her får du en gjennomgående pen eierleilighet med 2 soverom, åpen stue- og kjøkkenløsning, bad og garasje. To store terrasser med gode solforhold og hyggelig utsyn.
Kort fortalt:
Nærhet til fine turmuligheter både sommer og vinter
Gode solforhold
Nydelig opparbeidet hage
Gjennomgående på bakkeplan
Lys og pen leilighet
Kjøkkeninnredning fra 2018
Bad/vaskerom oppgradert i 2018
Gulvvarme i entré, bad og stue
Smarthusløsning med styring av lys og varme
Garasje med el-lader
Barnevennlig område
Det er ingen TG3
Velkommen til visning!
Område
Legg til steder som er viktige for deg
På flyttefot? Tenk kjøp og salg samtidig.
Få din egen rådgiver gjennom hele kjøps- og salgsprosessen. Det starter med en verdivurdering.
Unngå doble boligrenter
Vi tilbyr gunstig forsikring.
Vurderer du utleie?
Få et tilbud fra Utleie KrogsveenHva koster lånet?
Sjekk estimert lånekostnadVil du varsles om lignende boliger?
Ved å lagre ditt boligsøk hos oss får du beskjed når vi har en bolig som ligner denne, før den legges ut på markedet!
På flyttefot? Slik gjør vi det enklere for deg
Skreddersydd flyttepakke
Vi fikser håndverkere, vask, pakking, lagring og transport, og legger ut for utgiftene underveis.
Hjelp med både kjøp og salg
Hos oss har du din egen rådgiver gjennom hele kjøps- og salgsprosessen.
Hjelp til finansiering
Vårt samarbeid med BN Bank sikrer deg rask og løsningsorientert hjelp, til konkurransedyktige betingelser.

