Linneavegen 6
10 900 000 kr
196 m²
5 soverom
Solgt

Fladbyseter - Jessheim
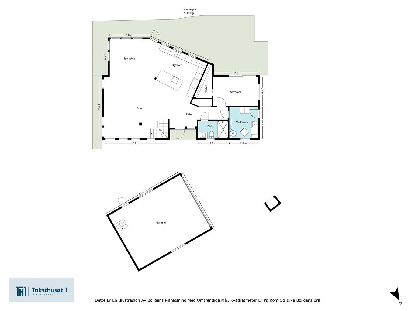
Meget pen murvilla i svært attraktiv gate. 5 soverom og vannbåren gulvvarme. Flott tomt og stor garasje m/innredet hems.
Prisantydning
10 900 000 krOmkostninger
293 490 krTotalpris
11 193 490 kr
Pris
Bruksareal
263 m²BRA-I (internt bruksareal)
196 m²BRA-E (eksternt bruksareal)
67 m²TBA (terrasse-balkongareal)
60 m²
Areal
Byggeår
2009Soverom
5 soveromBad
2 badTomteareal
849 m² (eiet)Type
Enebolig - FrittliggendeEierform
EietEnergimerke
Gul B
Nøkkelinfo
Unngå doble boligrenter
Vi tilbyr gunstig forsikring.
Vurderer du utleie?
Få et tilbud fra Utleie KrogsveenHva koster lånet?
Sjekk estimert lånekostnadBeskrivelse
Kort om eiendommen
Velkommen til Linneavegen 6, en stilren og meget tiltalende murvilla over to plan. Med to bad, to stuer og fem soverom egner boligen seg godt for familier, og oppført i 2009 holder boligen en god standard med vannbåren gulvvarme. Villaen ligger i en svært attraktiv gate på Fladbyseter, i kort avstand til skole, matbutikk, barnehage og helårs turområder. En flott tomt omkranser huset; flat og romslig med herlig terrasse, store plenarealer og fin innramming. Stuen er luftig med store vinduer, åpen kjøkkenløsning og upåklagelig romfølelse. Kjøkkenet har stor øy, god skapplass og dels integrerte hvitevarer. Badene er plassert i hver sin etasje, og boligen har et eget vaskerom og en loftstue med takterrasse. Parkeringen er god, i et steinlagt gårdsrom og i en stor dobbelgarasje m/innredet he
Område
Legg til steder som er viktige for deg
På flyttefot? Tenk kjøp og salg samtidig.
Få din egen rådgiver gjennom hele kjøps- og salgsprosessen. Det starter med en verdivurdering.
Unngå doble boligrenter
Vi tilbyr gunstig forsikring.
Vurderer du utleie?
Få et tilbud fra Utleie KrogsveenHva koster lånet?
Sjekk estimert lånekostnadVil du varsles om lignende boliger?
Ved å lagre ditt boligsøk hos oss får du beskjed når vi har en bolig som ligner denne, før den legges ut på markedet!

