Nannestadvegen 448
4 250 000 kr
162 m²
2 soverom
Komplett salgsoppgave

Maura
Enebolig med sentral beliggenhet i Maura | Parkering i dbl.garasje | Oppussingsbehov
Prisantydning
4 250 000 krOmkostninger
127 240 krTotalpris
4 377 240 kr
Pris
Bruksareal
222 m²BRA-I (internt bruksareal)
162 m²BRA-E (eksternt bruksareal)
33 m²TBA (terrasse-balkongareal)
19 m²
Areal
Etasje
2Byggeår
1968Soverom
2 soveromBad
2 badTomteareal
1 051 m² (eiet)Type
Enebolig - FrittliggendeEierform
EietFasiliteter
Garasje/P-plass og Balkong/TerrasseEnergimerke
Oransje E
Nøkkelinfo
Unngå doble boligrenter
Vi tilbyr gunstig forsikring.
Vurderer du utleie?
Få et tilbud fra Utleie KrogsveenHva koster lånet?
Sjekk estimert lånekostnadBeskrivelse
Kort om eiendommen
Nannestadvegen 448 er en flott eiendom med sentral beliggenhet i Maura. Boligen har alt du trenger i 1. etasje, og i tillegg innredet kjeller med blant annet kjellerstue, vaskerom, bad og soverom. Kjelleren er ikke godkjent til varig opphold.
I 1. etasje finner du to soverom, omkledningsrom, bad, et romslig kjøkken og stor stue med god plass til både sofagruppe og spisestue. Utgang til innglasset veranda med gode solforhold.
Kort avstand til Maura sentrum med forretninger, barnehage og barneskole. Ca. 5 km til Nannestad Torg med senter, post, bank, kommuneadministrasjon, ungdoms- og videregående skole. Bussholdeplass et steinkast fra eiendommen. Kort avstand til fine tur- og friluftsmuligheter med blant annet alpinanlegg i nærområdet samt utsøkte skiløyper i Nordåsen.
Innhold og byggemåte
Innhold og byggemåte
Eiendommen
Nannestadvegen 448, 2032 MAURA
Kommunenummer 3238, gårdsnummer 148, bruksnummer 31, ideell andel 1/1
Innhold
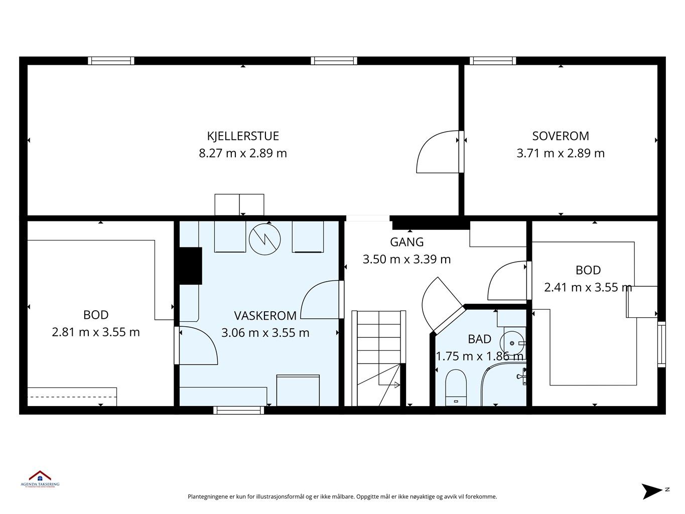
Totalt bruksareal BRA: 222 kvm
BRA-i:
Kjeller: 77 kvm: Gang, bad, to boder, kjellerstue, soverom, vaskerom.
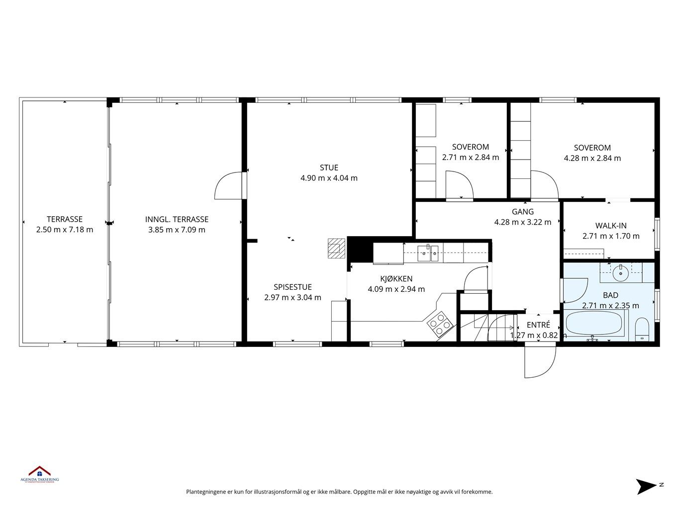
1. etasje 85 kvm: Entré, gang, bad, soverom, omkledningsrom, soverom 2, kjøkken, stue.
BRA-e:
1. etasje 33 kvm: Garasje.
BRA-b:
1. etasje 27 kvm: Innglasset terrasse.
Åpent areal:
1. etasje 19 kvm: Terrasse.
Vedlagte plantegninger er ikke målbare. De oppgitte arealer er hentet fra rapport med befaringsdato 15.01.2026 utført av Agenda Taksering AS. Arealene er beregnet og rom er definert etter dagens faktiske bruk, uavhengig av hva som er godkjent av bygningsmyndighetene.
Det finnes ikke byggetegninger for boligen. Det er derfor usikkert om kjelleren er godkjent til varig opphold.. Se pkt. om ferdigattest for ytterligere informasjon.
Byggemåte
Selger har fått utarbeidet en tilstandsrapport, dvs. en teknisk gjennomgang av boligen hvor eventuelle avvik, risiko for kjøper og prisoverslag for hva som bør gjøres av oppgradering, er skissert. Se særskilt TGIU (tilstandsgrad ikke undersøkt), samt TG2 og TG3 som viser hva som er boligens normale slitasje, alder og type, hva som er avvik fra dette og hva som bør/må utbedres. Rapporten og selgers egenerklæring er en del av salgsoppgaven og må leses nøye før bud inngis. Kjøper overtar ansvaret for de opplysninger som fremkommer av salgsdokumentasjonen, og kan ikke gjøre gjeldende som mangel noe som burde vært kjent eller som ikke kan anses å ha betydning for avtalen.
Bygningen er iht. tilstandsrapporten oppført i tre på grunnmur av betong. Taktekkingen er av stål/aluminiumsplater iflg. eier. Takkonstruksjonen har sperrekonstruksjon. Veggene har bindingsverkskonstruksjon fra byggeår. Fasade/kledning har stående bordkledning. Etasjeskillere av trebjelkelag. Les for øvrig mer om byggemåte og den tekniske tilstanden i rapporten.
Det gjøres spesielt oppmerksom på TG3:
Vaskerom - Kjeller:
- TG3 er gitt på grunn av rommets alder. Våtrommet må totalrenoveres for å tåle normal bruk etter dagens krav. Konsekvensen av å ikke utbedre forholdene er økt risiko for fuktskader og lekkasjer, som kan føre til omfattende skader på bygningskonstruksjonen og redusert brukssikkerhet.
Kostnadsestimat: kr 200 000 - 500 000,-
Utvendig:
- Nedløp og beslag. Det mangler snøfangere på hele eller deler av taket. Mer enn halvparten av forventet brukstid er passert på renner/nedløp/beslag. Snøfangere bør monteres. Tilstand på renner/nedløp/beslag bør overvåkes jevnlig for å unngå lekkasjer.
Kostnadsestimat: kr 20 000 - 100 000,-
Følgende har fått TG2:
Det er gitt gjennomgående TG2, for det meste pga alder og forventet levetid, og noen avvik og mindre feil. Dette gjelder takkonstruksjon, bad i begge etasjer, pipe, ventilasjon, fuktsikring og drenering, overflater, vannledninger og avløpsrør m.m.
Se supplerende tekst i tilstandsrapporten. Kjøper overtar ansvar og risiko for dette.
Selger opplyser videre i egenerklæringsskjema:
- Etablert nytt bad i underetasje. Fliser og membran er utført som egeninnsats. El-arbeider og rørarbeider utført av faglærte. Selger husker ikke hvem som utførte arbeidene.
- Lagt opp nytt elektrisk i kjellerstue og til bad i underetasje. Selger husker ikke hvem som utførte arbeidene.
- Montert ny peisovn i 2010.
- Deler av kjeller gjort om til kjellerstue, bad m.m. Satt opp lettvegger. Selger husker ikke hvem som utførte arbeidene.
Standard
Boligen holder en gjennomgående god standard, byggeår tatt i betraktning. Gulvflatene består av parkett, tepper og belegg. Veggene har trepanel, malte plater og betong.
Overbygd inngangsparti som tar deg inn til entreen. Entré/gang med plass til garderobeskap og oppbevaring.
Kjøkken fra 2006 med profilerte fronter i kirsebærtre. Kjøkkenet er av god størrelse og har rikelig med skap- og benkeplass.
Det er kun de hvitevarene som er listet opp som følger med. Disse hvitevarene følger med: Kjøl/frys, komfyr, platetopp, mikrobølgeovn og oppvaskmaskin. Det gjøres oppmerksom på at hvitevarene er kjøpt for noen år tilbake, og kjøper må forvente slitasje som følge alder og normal bruk.
Stua er av god størrelse, og har plass til både spisestue og sofagruppe. Peisovn fra 2010 som gir en rask og effektiv oppvarming av etasjen. Varmepumpe av eldre årgang som p.d.d. ikke er i bruk. Fra stua er det utgang til innglasset terrasse på ca. 27 kvm, og videre til åpen terrasse på ca. 19 kvm.
Boligen har to bad, et i 1. etasje og et i underetasjen. Badet i 1. etasje er fra 1999, flislagt på gulv og vegger, samt flislagt innebygd badekar. Varmekabler i gulv.
Badet i underetasjen er fra 2010 ifølge eier. Flislagt bad med beige gulvfliser og hvite veggfliser, og varmekabler i gulv. Dusjhjørne med sokkelkant og skyvedører.
To soverom i 1. etasje, hvorav det ene har eget omkledningsrom.
For oppbevaring har boligen to romslige boder i underetasjen, samt lagringsmulighet i garasje.
Løsøre og tilbehør
Vi viser til liste fra Norges Eiendomsmeglerforbund som gjelder fra 01.01.2020 angående løsøre og tilbehør.
Oppvarming
Boligen varmes opp elektrisk, gulvvarme på begge badene og vedfyring.
Dersom beboelsesrom ikke har vegg- eller fastmonterte varmekilder ved visning, følger dette heller ikke med.
Ferdigattest/brukstillatelse
Eiendommen har vært brukt til boligformål siden 1968.
Kommunen opplyser at det ikke var krav til ferdigattest eller midlertidig brukstillatelse på den tiden eiendommen ble oppført. Det finnes derfor ikke ferdigattest/midlertidig brukstillatelse eller byggetegninger for boligen.
Det foreligger godkjent byggemelding for oppføring av garasje datert 28.02.2002.
Det foreligger godkjent byggemelding for terrasse med takoverbygg datert 08.06.2006.
Det finnes ikke byggetegninger for boligen. Det er derfor usikkert om kjelleren er godkjent til varig opphold. Innredning av rommene til bruk for varig opphold er ikke bruksendret/omsøkt og er heller ikke godkjent av kommunen. Konsekvensen ved søknad kan være at rommet ikke godkjennes som varig opphold og at rommet da må brukes som bod/midlertidig oppbevaring. Kjøper overtar alt ansvar, kostnad og risiko for dette videre.
Det er bygd vinterhage på terrassen. Denne er ikke søkt om eller godkjent hos kommunen. Konsekvens ved søknad kan være at vinterhagen ikke godkjennes og må tilbakeføres til hva som er godkjent hos kommunen.
Kjøper overtar alt ansvar, kostnad og risiko for dette videre.
Det gjøres oppmerksom på at det ikke lenger utstedes ferdigattest på tiltak det er søkt om før 1998 jf. plan- og bygningsloven § 21-10. Kommunen vil ikke kreve ferdigattest for disse tiltakene og vil avvise eventuelle søknader. Bestemmelsen innebærer ikke at tiltak med manglende søknad blir lovlige, men at man ikke trenger å avslutte gamle byggesaker. Normalt sett kreves ferdigattest for alle søknadspliktige tiltak som gjøres etter plan- og bygningsloven.
Tinglyste heftelser og rettigheter
Eiendommen overdras fri for pengeheftelser.
Det er tinglyst følgende servitutter på eiendommen.
Dagboknr. 4036, tinglyst 0109.1966, type heftelse: Bestemmelse om gjerde.
Servitutten handler om gjerdeplikt.
Alle servituttene vil følge eiendommen. Kjøpers bank vil få pant etter ovennevnte heftelser og servitutter.
Eventuell adgang til utleie
Eiendommen har ikke separat utleieenhet. Det vil normalt være anledning til utleie av hele eiendommen eller enkeltrom, såfremt utleiearealet er bygningsmessig godkjent for varig opphold og har forsvarlige radonnivåer.
Beliggenhet og tomteforhold
Beliggenhet og tomteforhold
Beliggenhet
Boligen har en sentral og barnevennlig beliggenhet i Nannestad kommune. Gangavstand til sentrum og kort vei til mye. Kort vei til til Maura barneskole og barnehager. Videregående skole i Nannestad.
Gangavstand til nærbutikkene med både Coop Extra/Kiwi og Rema 1000 i nærheten. Kort kjøretur til Nannestad torg med dagligvare, blomsterbutikk, frisør, apotek, vinmonopol og pizzeria. Videre er det også bibliotek, legekontor, treningssenter, idrettshall, svømmehall, kunstgressbane mm. i sentrum av Nannestad. Ellers har Bjerke Stadion flere fotballbaner og et bredt løypenett. Skulle man ha behov for ytterligere servicetilbud er det kun ca. 20 minutter til Jessheim by med alt av bymessige fasiliteter.
Gode rekreasjonsmuligheter både sommer og vinter med store friluftsområder rett utenfor døren. Kort vei til Nordåsen med flotte skiløyper for både store og små.
Fra boligen er det kort vei til Romeriksåsen med et av Romerikes mest varierte friluftsområder; som byr på alt fra tur- og sykkelstier, badeplasser, fiskemuligheter og skianlegg. Romeriksåsen ligger langs hele vestsiden av Nannestad kommune. Her finnes et rolig skoglandskap med bølgende åser og mange innsjøer med gode fiskevann. Nordåsen skistadion i Maura tilbyr lysløype og godt løypenett, og Nannestad Skisenter/Åslia ligger kun en liten kjøretur unna.
Gangavstand til bussholdeplass med god offentlig kommunikasjon mot Oslo Lufthavn, Jessheim, Nannestad og omegn. Videre er det gode togforbindelser fra Oslo Lufthavn til Oslo.
Avstander med bil:
Nannestad ca. 6 min.
Gardermoen ca. 10 min.
Jessheim ca. 20 min.
Oslo ca. 45 min.
Adkomst
Det vil bli skiltet med Krogsveen visningsskilt ved fellesvisninger.
Barnehager, skoler og fritid
Dersom skole- og barnehagetilbud er av betydning for kjøpet, ber vi om at det rettes en særskilt henvendelse til kommunen for oppdatert informasjon.
Beskrivelse av tomt
Eiertomt på 1 051 kvm. Tomten er opparbeidet med asfaltert gårdsplass, plen og beplantning.
Parkering
Parkering i dobbeltgarasje og på egen gårdsplass.
Vei, vann og avløp
Eiendommen har adkomst via privat vei med felles vedlikeholdsansvar.
Eiendommen er tilknyttet kommunalt ledningsnett via private stikkledninger. Eier er selv ansvarlig for private stikkledninger til boligen.
Regulerings-og arealplaner
Eiendommen ligger i et uregulert område, men er i kommuneplan datert 14.05.2019 er avsatt til: Boligbebyggelse og LNRF areal for nødvendige tiltak for landbruk og reindrift og gårdstilknyttet næringsvirksomhet
basert på gårdens ressursgrunnlag.
Utsnitt av plan med tilhørende bestemmelser kan fås ved henvendelse til megler.
Økonomi
Økonomi
Kommunale utgifter
Kommunale avgifter er kr 17 899,- for 2025. I dette inngår gebyr for vann, avløp, renovasjon og feiing/tilsyn.
Det er p.t ikke vedtatt eiendomsskatt for eiendommer i kommunen.
Nåværende eier har et strømforbruk som tilsvarer ca. 30 000 kwh. pr. år.
Boligen har en årlig forsikringspremie på kr 8 000,-.
Boligen er tilknyttet Telenor som leverandør av kabel-tv. Tv-tuner/dekoder medfølger.
Selger har avtalt Norgespris på strøm på eiendommen for perioden november 2025 - november 2026, og denne er pt på kr 50 øre inkl mva. Nettleie, avgifter og påslag fra kraftleverandøren kommer i tillegg. Er det fjernvarme vil det også komme kostnader i tillegg.
Denne avtalen vil følge eiendommen i den avtalte perioden.
Les mer om Norgespris her: https://www.regjeringen.no/no/aktuelt/legg-fram-lov-om-norgespris-pa-straum-og-fjernvarme/id3102642/
Utgiftene er basert på nåværende eiers forbruk og avtaler.
Formuesverdi
Formuesverdi for 2024 var kr 1 060 957,- ifølge Skatteetaten. Beløpet forutsetter at eier bor fast i boligen (primærbolig).
Ved eventuell øvrig bruk av eiendommen (f.eks. fritidsbolig, pendlerbolig, utleieobjekt) var formuesverdien for 2023 kr 4 243 828,-.
Formuesverdien justeres normalt årlig. Se skatteetaten.no for mer informasjon om fastsettelse av formuesverdien.
Omkostninger
4 250 000,00 Prisantydning
Omkostninger
106 250,00 Dokumentavgift til staten (2,5% av kjøpesum)
19 900,00 Gjensidige Boligkjøperpakke (valgfri)
545,00 Tinglysing panterettsdokument
545,00 Tinglysing skjøte
--------------------------------------------------------
127 240,00 Omkostninger totalt
--------------------------------------------------------
4 377 240,00 Totalpris inkl. omkostninger
--------------------------------------------------------
Totalpris inkl. omkostninger forutsetter kjøp til prisantydning.
Det tas forbehold om endringer i avgifter og gebyrer.
Tilbud om lånefinansiering
Megler formidler gjerne kontakt med rådgiver hos vår samarbeidspartner BN Bank. De har konkurransedyktige betingelser samt rask og løsningsorientert behandling av din lånesøknad. Krogsveen mottar et honorar dersom lån opprettes.
Betalingsbetingelser
Kjøpesum inkludert omkostninger, samt pantedokument tilknyttet eventuelt lån, skal være disponibelt hos megler 2 virkedager før overtagelsen.
Annen viktig informasjon
Annen viktig informasjon
Eier
Jan Vie og Grete Vie
Overtakelse
Etter nærmere avtale.
Boligselgerforsikring
Selger har i forbindelse med salget tegnet boligselgerforsikring levert av Gjensidige.
Boligselgerforsikringen dekker selgers ansvar etter avhendingsloven begrenset oppad til kr 14 millioner. Dersom kjøper oppdager forhold ved eiendommen som hen mener utgjør en mangel ved eiendommen, vil Gjensidige behandle reklamasjonen på vegne av selger. Forsikringsvilkår kan fås ved henvendelse til megler.
Vedlagt salgsoppgaven følger selgers egenerklæringsskjema og tilstandsrapport. Interessenter må sette seg inn i dokumentene før bud inngis.
Boligkjøperforsikring
Innen kontraktsmøtet må kjøper ta stilling til om det ønskes å bestille Boligkjøperpakken gjennom Gjensidige. I denne gunstige pakken er boligen ferdig forsikret og inkluderer rettshjelpsforsikring, også kalt Boligkjøperforsikring. Rettshjelpsforsikring gir trygghet og tilgang på profesjonell juridisk hjelp dersom det oppdages uventede feil eller mangler det første året etter overtagelse. Forsikringsselskapet behandler i så fall ethvert mangelskrav kjøper måtte ha overfor selger.
Boligkjøperpakken inkluderer bygningsforsikring for hus og hytte, innboforsikring, flytteforsikring og dobbel rentedekning - i situasjoner hvor kjøper ikke får solgt nåværende primærbolig.
Kjøper mottar ingen særskilt faktura for Boligkjøperpakken da kostnaden det første året legges til kjøpesummen for boligen. Det gjøres oppmerksom på Krogsveen mottar et honorar for denne formidlingen.
Produktark for Boligkjøperpakken ligger vedlagt i salgsoppgaven.
Dersom ikke boligkjøperpakke ønskes kan kun rettshjelpsforsikring, også kalt boligkjøperforsikring, tegnes særskilt via megler. Rettshjelpsforsikringen varer i 5 år fra overtagelse og leveres gjennom Gjensidige. Ta kontakt med megler for ytterligere informasjon.
Selskap og privatpersoner som driver med kjøp/salg/utvikling som ledd i egen næringsvirksomhet kan ikke tegne boligkjøperpakke eller rettshjelpsforsikring.
Budgivning
Forbrukerinformasjon om budgivning er vedlagt denne salgsoppgaven og er også på vår hjemmeside Krogsveen.no. Alle bud og budforhøyelser må inngis skriftlig. I tillegg må legitimasjon være fremlagt sammen med signatur fra budgiver.
Vi oppfordrer til å gi bud elektronisk via GI BUD-knappen på eiendommens hjemmeside på Krogsveen.no. Da vil samtlige vilkår bli oppfylt.
Eventuelle forhøyelser eller endringer av budet kan bekreftes pr SMS eller på e-post. Vi oppfordrer alltid til å kontakte megler pr. telefon i tillegg da forsinkelser i SMS og e-post kan forekomme.
For at budene skal kunne bli behandlet og videreformidlet skriftlig til alle involverte parter, må alle bud ha en tilstrekkelig lang akseptfrist, jf. eiendomsmeglingsforskriften § 6-3.
Selger må også skriftlig akseptere budet før aksept kan formidles til budgiver. Akseptfrist bør derfor være på minimum 30 minutter, og budforhøyelser må derfor skje i god tid før fristens utløp.
Bud i forbrukerforhold kan uansett ikke settes med kortere frist enn kl. 12.00 første virkedag etter siste annonserte visning. I tillegg kan ikke budet ha forbehold om at det skal holdes hemmelig ovenfor øvrige interessenter. Megler har iht lov om eiendomsmegling ikke anledning til å videreformidle disse budene, og de vil dermed heller ikke bli journalført.
Etter at eiendommen er solgt vil kjøper og selger få tilsendt budjournal. Øvrige budgivere kan få utlevert kopi av budjournalen i anonymisert form.
Hvitvaskingsreglene
I henhold til lov om hvitvasking og terrorfinansiering har megler plikt til å gjennomføre kontrolltiltak overfor kunder, herunder fullmektiger. Dette innebærer bl.a. å bekrefte kunders og reelle rettighetshaveres identitet på bakgrunn av fremvist gyldig legitimasjon eller på annen godkjent måte, samt å innhente opplysninger om kundeforholdets formål og tilsiktede art.
Dersom slike kundetiltak ikke kan gjennomføres, kan megler ikke etablere kundeforholdet eller utføre transaksjonen.
Hvis kjøper ikke bidrar til gjennomføring av kundekontrollen og dette fører til at transaksjonen blir forsinket eller ikke kan gjennomføres, vil dette ansees som mislighold av avtalen og gi selger rettigheter etter avhendingslova kapittel 5. I tilfeller der selger ikke bidrar til gjennomføring av løpende kundekontroll underveis i oppdraget, er det selger som misligholder sine forpliktelser etter avtalen og gi kjøper rettigheter etter avhendingslovens kapittel 4. Partene er selv ansvarlige for eventuelle kostnader og ansvar dette kan medføre. Eiendomsmegleren eller eiendomsmeglingsforetaket kan ikke holdes ansvarlig for de konsekvenser dette vil kunne få for partene eller andre som har interesser i eiendomshandelen.
Kjøper oppfordres til å innbetale kjøpesummen som ikke kommer fra låneinstitusjon i én samlet innbetaling fra egen konto i norsk bank. Megler har plikt til å melde fra til Økokrim om eiendomshandler som fremstår som mistenkelige. Melding sendes Økokrim uten at partene varsles.
Personopplysningsloven
I henhold til personopplysningsloven gjør vi oppmerksom på at interessenter kan bli registrert for videre oppfølging.
Lovanvendelse
Generelle bestemmelser
Salgsoppgaven er basert på de opplysningene selger har gitt til megler, den bygningssakyndiges tilstandsrapport, samt opplysninger innhentet fra kommunen, Kartverket og andre tilgjengelige kilder. Det er viktig at kjøper setter seg grundig inn i alle salgsdokumentene, herunder salgsoppgave, tilstandsrapport og selgers egenerklæring. Kjøper anses kjent med forhold som er tydelig beskrevet i salgsdokumentene, og slike forhold kan ikke påberopes som mangler. Dette gjelder uavhengig av om kjøper har lest dokumentene. Alle interessenter oppfordres til å undersøke eiendommen nøye, gjerne sammen med fagkyndig før bud inngis. Kjøper som velger å kjøpe usett kan ikke gjøre gjeldende som mangel noe han burde blitt kjent med ved undersøkelsen.
Dersom det er behov for avklaringer, anbefaler vi at interessenter rådfører seg med eiendomsmegler eller egne rådgivere før det legges inn bud.
En bolig som har blitt brukt i en viss tid, har vanligvis blitt utsatt for slitasje og skader kan ha oppstått. Slik bruksslitasje må kjøper regne med, og det kan avdekkes enkelte forhold etter overtakelse som nødvendiggjør utbedringer. Normal slitasje og skader som nødvendiggjør utbedring, er innenfor hva kjøper må forvente og vil ikke utgjøre en mangel.
Kjøper og selgers rettigheter og plikter reguleres av avtalen mellom partene, samt informasjonen som har vært tilgjengelig for kjøperen i forbindelse med handelen. Avtalen utfylles av avhendingsloven, og det gjelder ulike avtalevilkår avhengig av om kjøper er forbrukerkjøper eller ikke. Dette er nærmere beskrevet nedenfor.
På grunn av ulike avtalevilkår kan selger vurdere bud fra en som ikke er forbruker, ulikt fra en forbrukers bud. Dersom kjøper ikke er forbruker, er selger sitt mulige mangelsansvar begrenset fordi eiendommen selges "som den er". Selger kan ikke ta «som den er»- forbehold overfor en forbrukerkjøper. Selv et lavere bud fra en som ikke er forbruker kan foretrekkes fordi begrensningen i mulig mangelsansvar kan ha egenverdi for selger. Selger står fritt til å forkaste eller akseptere ethvert bud, og er for eksempel ikke forpliktet til å akseptere høyeste bud.
Budgiver skal i budskjema avgi egenerklæring om budgiver er forbruker eller næringsdrivende/ person som hovedsakelig handler som ledd i næringsvirksomhet. Budgivere får informasjon dersom andre bud er inngitt av en som ikke er forbruker.
Forbrukerkjøp - definisjon
Med forbrukerkjøp menes kjøp av eiendom når kjøperen er en fysisk person som ikke hovedsakelig handler som ledd i næringsvirksomhet.
Forbruker – avtalevilkår
Eiendommen har en mangel dersom den ikke er i samsvar med kravene som følger av avtalen, eller det foreligger brudd på bestemmelsene i avhendingsloven §§ 3-2 til 3-8. Hvis eiendommen ikke er i samsvar med det kjøperen må kunne forvente ut ifra alder, type og synlig tilstand, kan det være grunnlag for mangelskrav. Det samme gjelder hvis det er holdt tilbake eller gitt uriktige opplysninger om eiendommen. Dette gjelder likevel bare dersom man kan gå ut ifra at det virket inn på avtalen at opplysningen ikke ble gitt eller at mangelskravet ikke blir rettet i tide på en tydelig måte.
Boligen kan ha en mangel etter avhendingsloven § 3-3 andre ledd, dersom det er avvik mellom opplyst og faktisk innvendig areal, forutsatt at avviket er på 2% eller mer og minimum 1 kvm.
Ved beregning av et eventuelt prisavslag eller erstatning må kjøper selv dekke tap/kostnader opptil et beløp på kr 10 000 (egenandel).
Ikke-forbruker (næringsdrivende) – definisjon
Hvis kjøper er en juridisk person, eller en fysisk person som hovedsakelig handler som ledd i næringsvirksomhet, vil kjøpet ikke anses som et forbrukerkjøp.
Ikke-forbruker – avtalevilkår
Eiendommen har en mangel dersom den ikke er i samsvar med kravene som følger av avtalen.
Eiendommen selges «som den er», og selgers ansvar utover det konkret avtalte er da begrenset etter avhendingsloven § 3-9, første ledd andre setning.
Avhendingsloven § 3-3 andre ledd fravikes, og hvorvidt boligens arealsvikt utgjør en mangel vurderes etter avhendingsloven § 3-8.
Informasjon om kjøpers undersøkelsesplikt, herunder oppfordringen om å undersøke eiendommen nøye, gjelder også for kjøpere som ikke anses som forbrukere.
Det forutsettes at hjemmel overføres til kjøper. Hvis kjøper ikke ønsker hjemmelsoverføring av eiendommen, må det tas forbehold om dette i budet.
Meglers vederlag
Meglers vederlag betales av selger og er avtalt til:
Fastpris: 32 500,-
Vederlag:
Kontroll av hjemmel og heftelser kr 2 900,00
Markedsføringspakke kr 29 900,00
Oppgjør kr 7 500,00
Tilrettelegging kr 17 000,00
Visninger kr 2.500,- pr stk kr 2 500,00
Utlegg:
Innhenting av offentlig opplysninger kr 4 751,00
Tinglysing sikring kr 545,00
Andre utgifter:
AX tilstandsrapport enebolig kr 20 625,00
Boligselgerforsikring 5,71 promille - regnes av prisantydning (ca. 24000,-) kr 24 000,00
Foto kr 5 000,00
Vi er opptatt av verdiskapning, og har knyttet til oss samarbeidspartnere som skal sikre våre kunder de beste produkter og tjenester;
• I forbindelse med forberedelse av salget, innhenter vi informasjon om eiendommen hovedsakelig fra vår samarbeidspartner Amibita.
• Gjensidige leverer boligselgerforsikring og tilbyr bygningsforsikring
• Boligkjøperforsikring leveres av Hiscox og med Sedgwick som skadebehandler, og er formidlet gjennom Gjensidige.
• BN bank tilbyr finansieringsløsninger
• Vår avdeling Krogsveen Pluss tilbyr flyttetjenester som utvask, visningsvask, lager, tømming og transport av flyttelass, i tillegg til å formidle kontakt med Flip for overflateoppussing.
• I forbindelse med overtagelse av eiendommen tilbyr Overo avtale om strøm, alarm og bredbånd.
• Krogsveen er, sammen med øvrige bransjeaktører, medeier i Bomega AS som tilbyr den digitale annonseringsplattformen Hjem.
Opplysninger om oppdraget
Oppdragsnummer 63-0286/25
Eiendomsmegler Krogsveen AS, avd. Jessheim
Skovly Promenade 10, 2066, JESSHEIM
950 007 613
Oppdragets KR-kode KR63.25286
Dato
Sist oppdatert: 21. januar 2026 kl. 13:52
Dokumenter
Dokumenter
PDF – 139 KB
PDF – 1010 KB
PDF – 312 KB
PDF – 29 KB
PDF – 127 KB
PDF – 392 KB
Område
Legg til steder som er viktige for deg
Visning
For å delta på visning, ber vi om at du melder deg på. Da sikrer vi at du får nødvendig informasjon og at det er satt av tilstrekkelig med tid. Kontakt megler dersom annet tidspunkt ønskes. Husk å lese salgsoppgaven før visningen, så du stiller forberedt. NB. Visning utgår dersom det ikke er noen påmeldte.
Ønsker du kun å bli holdt orientert, kan du fra eiendommens hjemmeside få varsel om solgtpris, eller kontakte megler.
Lurer du på noe?
Unngå doble boligrenter
Vi tilbyr gunstig forsikring.
Vurderer du utleie?
Få et tilbud fra Utleie KrogsveenHva koster lånet?
Sjekk estimert lånekostnadVil du varsles om lignende boliger?
Ved å lagre ditt boligsøk hos oss får du beskjed når vi har en bolig som ligner denne, før den legges ut på markedet!

