Fanavegen 83
3 600 000 kr
42 m²
1 soverom
Komplett salgsoppgave

LAGUNETOPPEN
Nyere 2-roms i 3. etasje med heis og stor vestvendt balkong like ved Lagunen og bybane
Prisantydning
3 600 000 krOmkostninger
101 040 krTotalpris
3 701 040 kr
Pris
Bruksareal
49 m²BRA-I (internt bruksareal)
42 m²BRA-E (eksternt bruksareal)
7 m²TBA (terrasse-balkongareal)
13 m²
Areal
Etasje
3Byggeår
2020Soverom
1 soveromBad
1 badType
EierleilighetEierform
EierseksjonFasiliteter
Heis og Balkong/TerrasseFellesutgifter
1 994 krEnergimerke
Grønn C
Nøkkelinfo
Unngå doble boligrenter
Vi tilbyr gunstig forsikring.
Vurderer du utleie?
Få et tilbud fra Utleie KrogsveenHva koster lånet?
Sjekk estimert lånekostnadBeskrivelse
Kort om eiendommen
Leiligheten har en god planløsning, og er innredet i lyse og tidsriktige farger med lyse slette vegger. Enstavs parkett på alle gulv med vannbåren varme i gulvene. Romslig bad med tidsriktige fliser på gulv og vegger. Lys stue med store vinduer og utgang til stor balkong vendt mot vest.
Her får du nydelige fra midt på dagen og utover kvelden.
Her bor du med en enkel og praktisk hverdag, med Rema 1000 i byggets underetasje og både Lagunen og Bybanen like ved.
- Heis
- Porttelefon
- Balkong
- Nyere leilighet fra 2020 med TEK17-standard
- Vannbåren gulvvarme og balansert ventilasjon
- Tv og Internett inkl. i fellesutgifter
- Ekstern bod
Innhold og byggemåte
Innhold og byggemåte
Eiendommen
Fanavegen 83, 5239 RÅDAL
Kommunenummer 4601, gårdsnummer 119, bruksnummer 1006, seksjonsnummer 155, ideell andel 1/1
Kommunenummer 4601, gårdsnummer 119, bruksnummer 37, ideell andel 1/242
Innhold
Totalt bruksareal BRA: 49 kvm
BRA-i:
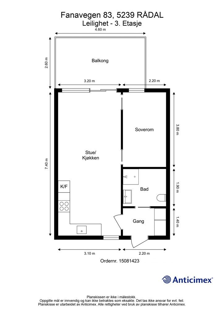
3. etasje 42 kvm: Stue/kjøkken, soverom, gang og bad
BRA-e:
1. etasje 7 kvm: Bod
Åpent areal:
3. etasje 13 kvm: Balkong
Boligen disponerer 1 bod i 1. etasje som er tinglyst som en tilleggsdel til seksjonen.
Vedlagte plantegninger er ikke målbare. De oppgitte arealer er hentet fra rapport med befaringsdato 20.04.2026 utført av Atle Simon Kallestad.
Byggemåte
Selger har innhentet en tilstandsrapport av boligen/eiendommen. Av rapporten fremgår det at flere bygningsdeler har fått tilstandsgrad ikke undersøkt/ikke tilgjengelig for undersøkelse (TG IU), 2 (TG2) og/eller 3 (TG3). Rapporten beskriver også avvik på undersøkte bygningsdeler uten tilstandsgrad. Kjøper overtar ansvaret for de opplysninger som fremkommer av salgsdokumentasjonen, og kan ikke gjøre gjeldende som mangel noe som burde vært kjent eller som ikke kan anses å ha betydning for avtalen.
Leilighetsbygg oppført i 2020 med grunnmur og bærende konstruksjoner i hovedsak av betong. Bygget er oppført med parkeringsanlegg i nederste etasje. Yttervegger i en kombinasjon av tre- og betongkonstruksjoner og utvendige fasader er kledd med fasadeplater. Etasjeskillere er av betong og det er flatt tak. Vinduer med karmer av tre. Balkongdør med karmer av tre. Boligen ventileres hovedsakelig gjennom et mekanisk balansert ventilasjonssystem.
Leiligheten har fått TG1 på alle punkter i tilstandsrapporten.
Det mangler samsvarserklæring på det elektriske anlegget og av den grunn har takstmann bemerket at det er behov for en utvidet kontroll av det elektriske anlegget.
Tilstandsrapporten er inntatt i salgsoppgaven. Ettersom kjøper regnes å være kjent med forhold som tydelig fremgår av tilstandsrapporten, oppfordres du til å sette deg grundig inn i rapporten i sin helhet.
Standard
Bad:
Helfliset bad fra byggeår som er innredet med baderomsmøbler, dusjhjørne med dører og vegghengt wc.
Kjøkken:
Åpen kjøkkenløsning med innredning fra byggeår med glatte fronter og benkeplate med laminat overflate. Integrert stekeovn, platetopp med komfyrvakt, oppvaskmaskin og kjøleskap med fryser. Ventilator i overskap.
Med unntak av bad er alle gulvflater belagt med parkett, og det er malte veggflater og himling.
Tekniske anlegg:
- Vannrør med rør-i-rør system
- Vanninntaksrør i plast
- Leilighetens stoppekran er plassert i fordelerskap
- Synlige avløpsrør i plast
- Automatisk vannstopper med fuktsensor i fordelerskap
- Automatisk vannstopper med fuktsensor på kjøkken
- Fordelerskap for rør-i-rør system er plassert på bad
- Leiligheten er tilknyttet felles varmtvann
- Vannbåren gulvvarme i stue, gang og bad
- Balansert ventilasjon med ventilasjonsaggregat plassert i himling i gang
Løsøre og tilbehør
Vi viser til liste fra Norges Eiendomsmeglerforbund som gjelder fra 01.01.2020 angående løsøre og tilbehør.
Det er kun de hvitevarene som er listet opp som følger med. Alle integrerte hvitevarer medfølger som; kombiskap, oppvaskmaskin, komfyr og steketopp.
Det gjøres oppmerksom på at hvitevarene er kjøpt for noen år tilbake, og kjøper må forvente slitasje som følge alder og normal bruk.
Oppvarming
Oppvarming av boligen skjer i hovedsak ved bruk av vannbåren gulvvarme.
Varmtvann/fjernvarme: Det gjøres en avregning hvert kvartal. Kostnaden blir sendt på en egen faktura fra BOB. Det kreves ikke inn Akontobeløp for dette.
Selger har avtalt Norgespris på strøm på eiendommen og denne er pt på 50 øre inkl mva. Nettleie, avgifter og påslag fra kraftleverandøren kommer i tillegg. Er det fjernvarme vil det også komme kostnader i tillegg.
Denne avtalen vil følge eiendommen i den avtalte perioden.
Les mer om Norgespris her: https://www.regjeringen.no/no/aktuelt/legg-fram-lov-om-norgespris-pa-straum-og-fjernvarme/id3102642/
Ferdigattest/brukstillatelse
Det foreligger ikke ferdigattest på eiendommen, men midlertidig brukstillatelse ble gitt 20.11.2025.
Formann i sameiet opplyser pr. 14.04.26 at det vil bli gitt ferdigattest innen kort tid da alle punktene vedr. gjenstående arbeid nå skal være utført/løst. Den planlagte gangbroen over E39 er bestemt at ikke blir noe av.
Tinglyste heftelser og rettigheter
Eiendommen overdras fri for pengeheftelser.
På eiendommen er det tinglyst 9 heftelser og 1 rettigheter som følger eiendommens matrikkel ved overskjøting til ny hjemmelshaver.
Disse er tinglyst før seksjoneringen i perioden 1926 til 2018 og anses å ikke ha betydning for eiendommen som selges.
Rettighet:
19.03.2021 - Dokumentnr: 337704 - Erklæring/avtale
Rettighet hefter i: Knr:4601 Gnr:119 Bnr:1010
Meglers forklaring: Denne servitutten omhandler at rettigheter til parkeringsplasser og boder i eiendommen kan bare overføres mellom eierne og ikke kan fjernes uten samtykke fra rettighetshaveren. Rettighetshaver til parkeringsplass kan ikke pålegges å benytte en annen plass enn den som er tildelt, unntatt i tilfeller som nevnt i eierseksjonsloven § 26.
Sameiet har legalpant for krav mot sameieren som følger av sameieforholdet iht. eierseksjonsloven § 31. Pantet er begrenset oppad til 2G, (G = folketrygdens grunnbeløp).
Eventuell adgang til utleie
Leiligheten kan leies ut såfremt leiligheten har forsvarlige radonverdier. Leietaker må følge sameiets vedtekter og ordensregler på lik linje som eier.
Korttidsutleie er tillatt inntil 90 dager pr. år. Informasjon om bruker og varigheten på alle leieforhold skal meldes til styret på forhånd.
Diverse
Det er viktig at selger gir ny eier tilgang til product.viscenario.com, for at de skal kunne reklamere innenfor 5 års-garantien - Her ligger også leilighetens FDVer.
Beliggenhet og tomteforhold
Beliggenhet og tomteforhold
Beliggenhet
Leiligheten ligger svært sentralt til ved Lagunen sør for Bergen. Sameiet Lagunetoppen ble ferdigstilt i 2021 og fremstår med fine opparbeidede fellesareal, sittegrupper og gangveier. Her ligger alt tilrette for en enkel hverdag, hvor alt du trenger til det daglige, ligger like utenfor ytterdøren. I "underetasjen" er det både dagligvarebutikk og apotek, og en kort spasertur tar deg til bybanestopp og Lagunen storsenter som er et av Norges største kjøpesenter. Her har du et rikholdig utvalg av butikker, vinmonopol og et mangfold av spisesteder. I tillegg byr senteret på gode opplevelser som feks. kino, bowling, shuffleboard og sportsbar med storskjerm - perfekt for sosiale kvelder uten å måtte reise til Bergen sentrum.
Nærområdet gir deg mulighet mange fine turopplevelser med terreng som passer for alle, som Smøråsfjellet, Hordnesskogen, Stendafjellet og Siljustølen. Det kan også nevnes at det er mange idrettsmuligheter i nærområdet med både Fana stadion og Fana golfklubb kun en kort kjøretid unna.
Det finnes både barne-, ungdoms- og videregående skole innen komfortabel rekkevidde, noe som gjør leiligheten og området godt egnet for ulike livsfaser.
Her bor du med en sømløs tilgang til resten av Bergen, enten du skal til jobb, studier eller flyplassen.
Adkomst
Veibeskrivelse Se Google maps - det er enkelt å finne frem i kartet.
Det vil bli skiltet med Krogsveen visningsskilt ved fellesvisninger.
Barnehager, skoler og fritid
Barnehager:
- Espira Rå barnehage - 6 min å gå / 0.4 km
- Råtun barnehage - 11 min å gå / 0.9 km
- Skjoldlia barnehage - 15 min å gå / 1.3 km
Skoler:
- Skjold skole (1-7 kl.) 12 min å gå / 1 km
- Søråshøgda skole (1-7 kl.) 18 min å gå / 1.3 km
- Zinken Hopp skole (6-7 kl.) 17 min å gå
- Rå skole (8-10 kl.) 6 min å gå / 0.4 km
- Rådalslien skole (8-10 kl.) 13 min å gå / 1 km
- Nordahl Grieg videregående skole 7 min å gå / 0.5 km
- Stend vidaregåande skule 5 min med bil / 2.9 km
Informasjon om tilhørende skolekretser er hentet fra Prognosesenteret som dataleverandør, og tilhørigheten kan årlig endres av kommunen. Dersom skole- og barnehagetilbud er av betydning for kjøpet, ber vi om at det rettes en særskilt henvendelse til kommunen/bydelsadministrasjonen for oppdatert informasjon.
Beskrivelse av tomt
Eiertomt på 2 773 kvm som tilhører sameiet. Tomten er fellesareal og er opparbeidet med blant annet asfalterte veier, diverse støttemurer, lekeplass, plenarealer og andre forskjellige beplantninger.
Parkering
Det er opprettet et eget sameie "Lagunetoppen felles garasjeanlegg" og garasjeplassene er organisert som andel av realsameiet, og er tinglyst som ideell andel i gnr 119 bnr 1010 med leilighetens matrikkel som hjemmelshaver.
Opprinnelig medfulgte det bruksrett til garasjeplass for denne leiligheten, men forrige eier solgte denne videre til en annen i sameiet.
I følge formann i sameiet blir dessverre ikke salg av bruksrett til garasjeplassene tinglyst i grunnboken. Det innebærer at det i grunnboken til denne leiligheten står at den har ideell andel 1/222 i gnr 119 bnr 110 uten at dette stemmer.
Det er ikke tillatt å parkere på andre steder enn på egen tilvist plass for beboere. Gjester skal bruke gjesteparkeringen i samme etasje som Rema 1000 eller tilvist plass for beboerne de besøker.
Vei, vann og avløp
Eiendommen har adkomst via privat vei med felles vedlikeholdsansvar for sameiet.
Eiendommen er tilknyttet kommunalt ledningsnett via private stikkledninger. Sameiet er ansvarlig for private stikkledninger til bygningen.
Regulerings-og arealplaner
Eiendommen er regulert til kombinert bebyggelse og anleggsformål i henhold til reguleringsplan Fana/Ytrebygda gnr 119 bnr 120, Rådal sentrum/Lagunen med tilhørende reguleringsbestemmelser datert 26.08.2015.
Eiendommen berøres av følgende hensynssoner i kommuneplanen:
Støy:
- Fana skytterlag - gul sone med dekningsgrad 49,1%
- Vei støy - gul sone med dekningsgrad 21,8%
- Vei støy - rød sone med dekningsgrad 78,2%
Eiendommen er berørt av Eviny Termo AS sitt konsesjonsomra°de for fjernvarmeanlegg.
Utsnitt av plan med tilhørende bestemmelser kan fås ved henvendelse til megler.
Økonomi
Økonomi
Boligens kostnader
Kommunale avgifter er kr 7 535,- for inneværende år. I dette inngår gebyr for vann, avløp og renovasjon.
Fellesutgiftene er kr 1 994,- pr. mnd. og fordeler seg slik:
Andel teknisk rom: kr. 30,-
Utomhusareal: kr. 565,-
Tv og Internett: kr. 429,-
Felleskostnader bolig: kr. 970,-
Fellesutgiftene justeres normalt en til to ganger årlig i forhold til sameiets faktiske utgifter.
Nåværende eier leiet ut leiligheten og har av den grunn ikke oversikt over strømforbruket.
Boligen er tilknyttet Telenor som leverandør av kabel-tv og har avgift på kr 429 pr. mnd. som er inkl. i fellesutgiftene. Tv-tuner/dekoder medfølger ikke.
Kommunale utgifter
Kommunale avgifter er kr 7.535,- for inneværende år. I dette inngår gebyr for vann, avløp og renovasjon.
Formuesverdi
Formuesverdi for 2024 var kr 784 848,- ifølge selgers skattemelding. Beløpet forutsetter at eier bor fast i boligen (primærbolig).
Ved eventuell øvrig bruk av eiendommen (f.eks. fritidsbolig, pendlerbolig, utleieobjekt) var formuesverdien for 2024 kr 3 139 393,-.
Fra 2026 har Stortinget vedtatt en oppdatert modell for beregning av formuesverdi for primærbolig, så avvik kan forekomme.
For mer informasjon se skatteetaten.no
Eiendomsskatt
Eiendomsskatten utgjør kr. 3.763,- pr år.
Omkostninger
3 600 000,00 Prisantydning
Omkostninger
90 000,00 Dokumentavgift til staten (2,5% av kjøpesum)
9 950,00 Gjensidige Boligkjøperpakke (valgfri)
545,00 Tinglysing panterettsdokument
545,00 Tinglysing skjøte
--------------------------------------------------------
101 040,00 Omkostninger totalt
--------------------------------------------------------
3 701 040,00 Totalpris inkl. omkostninger
--------------------------------------------------------
Dersom sameiet har fellesgjeld, vil leilighetens andel av fellesgjelden komme i tillegg til kjøpesummen. Denne gjelden skal ikke innbetales i oppgjøret, men følger leiligheten.
Totalpris inkl. omkostninger forutsetter kjøp til prisantydning.
Det tas forbehold om endringer i avgifter og gebyrer.
Tilbud om lånefinansiering
Megler formidler gjerne kontakt med rådgiver hos vår samarbeidspartner BN Bank. De har konkurransedyktige betingelser samt rask og løsningsorientert behandling av din lånesøknad. Krogsveen mottar et honorar dersom lån opprettes.
Betalingsbetingelser
Kjøpesum inkludert omkostninger, samt pantedokument tilknyttet eventuelt lån, skal være disponibelt hos megler 2 virkedager før overtagelsen.
Annen viktig informasjon
Annen viktig informasjon
Eier
Saeed Fallah Bolandtaba og Nima Mani
Informasjon om sameiet
Eiendommen er seksjonert, og leiligheten er tilknyttet Lagunetoppen Boligsameie 1, med sameiebrøk 410/106120.
Sameiet ble opprettet i januar 2021, og består av 176 boligseksjoner med adresse Fanavegen 81A, 81B, 83, 85, 87, 89A og 89B.
Forretningsfører er Bergen Og Omegn Boligbyggelag, tlf. 55 54 74 00.
Sameiet har avtale med BOB vaktmestertjeneste.
Dugnad samt trappevask må påregnes.
Det er tillatt med dyr i sameiet.
Sameiet har inngått avtale om forskutterte felleskostnader med Klare Finans AS.
Regnskapet for 2025 viser et positivt årsresultat på kr 62 311,-.
Disponible midler, d.v.s. likviditet til disposisjon utgjorde pr 31.12.2025 kr 3 383 552,-.
Vi gjør videre oppmerksom på at det iht. eierseksjonsloven ikke er anledning å erverve mer enn 2 seksjoner i sameiet, her teller også eierskap via. firma, nærstående og familie. Kjøper har risikoen for at overskjøting på denne bakgrunn kan nektes av Statens Kartverk. I så fall vil kjøper uansett være forpliktet til å gjennomføre handelen, og oppgjør til selger vil finne sted tross manglende overskjøting.
Konferer med megler for mer informasjon.
Dokumenter for sameiet og kopi av seksjonsbegjæringen kan fås ved henvendelse til megler.
Overtakelse
Etter nærmere avtale.
Boligselgerforsikring
Selger har i forbindelse med salget tegnet boligselgerforsikring levert av Gjensidige.
Boligselgerforsikringen dekker selgers ansvar etter avhendingsloven begrenset oppad til kr 14 millioner. Dersom kjøper oppdager forhold ved eiendommen som hen mener utgjør en mangel ved eiendommen, vil Gjensidige behandle reklamasjonen på vegne av selger. Forsikringsvilkår kan fås ved henvendelse til megler.
Vedlagt salgsoppgaven følger selgers egenerklæringsskjema og tilstandsrapport. Interessenter må sette seg inn i dokumentene før bud inngis.
Boligkjøperforsikring
Innen kontraktsmøtet må kjøper ta stilling til om det ønskes å bestille Boligkjøperpakken gjennom Gjensidige. I denne gunstige pakken er boligen ferdig forsikret og inkluderer rettshjelpsforsikring, også kalt Boligkjøperforsikring. Rettshjelpsforsikring gir trygghet og tilgang på profesjonell juridisk hjelp dersom det oppdages uventede feil eller mangler det første året etter overtagelse. Forsikringsselskapet behandler i så fall ethvert mangelskrav kjøper måtte ha overfor selger.
Boligkjøperpakken inkluderer bygningsforsikring for hus og hytte, innboforsikring, flytteforsikring og dobbel rentedekning - i situasjoner hvor kjøper ikke får solgt nåværende primærbolig.
Kjøper mottar ingen særskilt faktura for Boligkjøperpakken da kostnaden det første året legges til kjøpesummen for boligen. Det gjøres oppmerksom på Krogsveen mottar et honorar for denne formidlingen.
Produktark for Boligkjøperpakken ligger vedlagt i salgsoppgaven.
Dersom ikke boligkjøperpakke ønskes kan kun rettshjelpsforsikring, også kalt boligkjøperforsikring, tegnes særskilt via megler. Rettshjelpsforsikringen varer i 5 år fra overtagelse og leveres gjennom Gjensidige. Ta kontakt med megler for ytterligere informasjon.
Selskap og privatpersoner som driver med kjøp/salg/utvikling som ledd i egen næringsvirksomhet kan ikke tegne boligkjøperpakke eller rettshjelpsforsikring.
Budgivning
Forbrukerinformasjon om budgivning er vedlagt denne salgsoppgaven og er også på vår hjemmeside Krogsveen.no. Alle bud og budforhøyelser må inngis skriftlig. I tillegg må legitimasjon være fremlagt sammen med signatur fra budgiver.
Vi oppfordrer til å gi bud elektronisk via GI BUD-knappen på eiendommens hjemmeside på Krogsveen.no. Da vil samtlige vilkår bli oppfylt.
Eventuelle forhøyelser eller endringer av budet kan bekreftes pr SMS eller på e-post. Vi oppfordrer alltid til å kontakte megler pr. telefon i tillegg da forsinkelser i SMS og e-post kan forekomme.
For at budene skal kunne bli behandlet og videreformidlet skriftlig til alle involverte parter, må alle bud ha en tilstrekkelig lang akseptfrist, jf. eiendomsmeglingsforskriften § 6-3.
Selger må også skriftlig akseptere budet før aksept kan formidles til budgiver. Akseptfrist bør derfor være på minimum 30 minutter, og budforhøyelser må derfor skje i god tid før fristens utløp.
Bud i forbrukerforhold kan uansett ikke settes med kortere frist enn kl. 12.00 første virkedag etter siste annonserte visning. I tillegg kan ikke budet ha forbehold om at det skal holdes hemmelig ovenfor øvrige interessenter. Megler har iht lov om eiendomsmegling ikke anledning til å videreformidle disse budene, og de vil dermed heller ikke bli journalført.
Etter at eiendommen er solgt vil kjøper og selger få tilsendt budjournal. Øvrige budgivere kan få utlevert kopi av budjournalen i anonymisert form.
Hvitvaskingsreglene
I henhold til lov om hvitvasking og terrorfinansiering har megler plikt til å gjennomføre kontrolltiltak overfor kunder, herunder fullmektiger. Dette innebærer bl.a. å bekrefte kunders og reelle rettighetshaveres identitet på bakgrunn av fremvist gyldig legitimasjon eller på annen godkjent måte, samt å innhente opplysninger om kundeforholdets formål og tilsiktede art.
Dersom slike kundetiltak ikke kan gjennomføres, kan megler ikke etablere kundeforholdet eller utføre transaksjonen.
Hvis kjøper ikke bidrar til gjennomføring av kundekontrollen og dette fører til at transaksjonen blir forsinket eller ikke kan gjennomføres, vil dette ansees som mislighold av avtalen og gi selger rettigheter etter avhendingslova kapittel 5. I tilfeller der selger ikke bidrar til gjennomføring av løpende kundekontroll underveis i oppdraget, er det selger som misligholder sine forpliktelser etter avtalen og gi kjøper rettigheter etter avhendingslovens kapittel 4. Partene er selv ansvarlige for eventuelle kostnader og ansvar dette kan medføre. Eiendomsmegleren eller eiendomsmeglingsforetaket kan ikke holdes ansvarlig for de konsekvenser dette vil kunne få for partene eller andre som har interesser i eiendomshandelen.
Kjøper oppfordres til å innbetale kjøpesummen som ikke kommer fra låneinstitusjon i én samlet innbetaling fra egen konto i norsk bank. Megler har plikt til å melde fra til Økokrim om eiendomshandler som fremstår som mistenkelige. Melding sendes Økokrim uten at partene varsles.
Personopplysningsloven
I henhold til personopplysningsloven gjør vi oppmerksom på at interessenter kan bli registrert for videre oppfølging.
Lovanvendelse
Generelle bestemmelser
Salgsoppgaven er basert på de opplysningene selger har gitt til megler, den bygningssakyndiges tilstandsrapport, samt opplysninger innhentet fra kommunen, Kartverket og andre tilgjengelige kilder. Det er viktig at kjøper setter seg grundig inn i alle salgsdokumentene, herunder salgsoppgave, tilstandsrapport og selgers egenerklæring. Kjøper anses kjent med forhold som er tydelig beskrevet i salgsdokumentene, og slike forhold kan ikke påberopes som mangler. Dette gjelder uavhengig av om kjøper har lest dokumentene. Alle interessenter oppfordres til å undersøke eiendommen nøye, gjerne sammen med fagkyndig før bud inngis. Kjøper som velger å kjøpe usett kan ikke gjøre gjeldende som mangel noe han burde blitt kjent med ved undersøkelsen.
Dersom det er behov for avklaringer, anbefaler vi at interessenter rådfører seg med eiendomsmegler eller egne rådgivere før det legges inn bud.
En bolig som har blitt brukt i en viss tid, har vanligvis blitt utsatt for slitasje og skader kan ha oppstått. Slik bruksslitasje må kjøper regne med, og det kan avdekkes enkelte forhold etter overtakelse som nødvendiggjør utbedringer. Normal slitasje og skader som nødvendiggjør utbedring, er innenfor hva kjøper må forvente og vil ikke utgjøre en mangel.
Kjøper og selgers rettigheter og plikter reguleres av avtalen mellom partene, samt informasjonen som har vært tilgjengelig for kjøperen i forbindelse med handelen. Avtalen utfylles av avhendingsloven, og det gjelder ulike avtalevilkår avhengig av om kjøper er forbrukerkjøper eller ikke. Dette er nærmere beskrevet nedenfor.
På grunn av ulike avtalevilkår kan selger vurdere bud fra en som ikke er forbruker, ulikt fra en forbrukers bud. Dersom kjøper ikke er forbruker, er selger sitt mulige mangelsansvar begrenset fordi eiendommen selges "som den er". Selger kan ikke ta «som den er»- forbehold overfor en forbrukerkjøper. Selv et lavere bud fra en som ikke er forbruker kan foretrekkes fordi begrensningen i mulig mangelsansvar kan ha egenverdi for selger. Selger står fritt til å forkaste eller akseptere ethvert bud, og er for eksempel ikke forpliktet til å akseptere høyeste bud.
Budgiver skal i budskjema avgi egenerklæring om budgiver er forbruker eller næringsdrivende/ person som hovedsakelig handler som ledd i næringsvirksomhet. Budgivere får informasjon dersom andre bud er inngitt av en som ikke er forbruker.
Forbrukerkjøp - definisjon
Med forbrukerkjøp menes kjøp av eiendom når kjøperen er en fysisk person som ikke hovedsakelig handler som ledd i næringsvirksomhet.
Forbruker – avtalevilkår
Eiendommen har en mangel dersom den ikke er i samsvar med kravene som følger av avtalen, eller det foreligger brudd på bestemmelsene i avhendingsloven §§ 3-2 til 3-8. Hvis eiendommen ikke er i samsvar med det kjøperen må kunne forvente ut ifra alder, type og synlig tilstand, kan det være grunnlag for mangelskrav. Det samme gjelder hvis det er holdt tilbake eller gitt uriktige opplysninger om eiendommen. Dette gjelder likevel bare dersom man kan gå ut ifra at det virket inn på avtalen at opplysningen ikke ble gitt eller at mangelskravet ikke blir rettet i tide på en tydelig måte.
Boligen kan ha en mangel etter avhendingsloven § 3-3 andre ledd, dersom det er avvik mellom opplyst og faktisk innvendig areal, forutsatt at avviket er på 2% eller mer og minimum 1 kvm.
Ved beregning av et eventuelt prisavslag eller erstatning må kjøper selv dekke tap/kostnader opptil et beløp på kr 10 000 (egenandel).
Ikke-forbruker (næringsdrivende) – definisjon
Hvis kjøper er en juridisk person, eller en fysisk person som hovedsakelig handler som ledd i næringsvirksomhet, vil kjøpet ikke anses som et forbrukerkjøp.
Ikke-forbruker – avtalevilkår
Eiendommen har en mangel dersom den ikke er i samsvar med kravene som følger av avtalen.
Eiendommen selges «som den er», og selgers ansvar utover det konkret avtalte er da begrenset etter avhendingsloven § 3-9, første ledd andre setning.
Avhendingsloven § 3-3 andre ledd fravikes, og hvorvidt boligens arealsvikt utgjør en mangel vurderes etter avhendingsloven § 3-8.
Informasjon om kjøpers undersøkelsesplikt, herunder oppfordringen om å undersøke eiendommen nøye, gjelder også for kjøpere som ikke anses som forbrukere.
Det forutsettes at hjemmel overføres til kjøper. Hvis kjøper ikke ønsker hjemmelsoverføring av eiendommen, må det tas forbehold om dette i budet.
Meglers vederlag
Meglers vederlag betales av selger og er avtalt til:
Fastpris: kr 40 000,00
Vederlag:
Fotopakke 30 bilder, inkl. rådgivning stylist: kr 5 000,00
Kontroll av hjemmel og heftelser: kr 2 900,00
Markedsføringspakke inkl stor SOME: kr 22 400,00
Oppgjør: kr 7 500,00
Tilrettelegging: kr 12 000,00
Visninger pr stk / Overtagelse: kr 0,00
Utlegg:
Eierskiftegebyr BOB: kr 6 570,00
Innhenting av informasjon BOB: kr 3 700,00
Innhenting av offentlig opplysninger: kr 3 600,00
Tinglysing sikring: kr 545,00
Andre utgifter:
Tilstandsrapport: kr
Boligselgerforsikring: kr.
Vi er opptatt av verdiskapning, og har knyttet til oss samarbeidspartnere som skal sikre våre kunder de beste produkter og tjenester;
• I forbindelse med forberedelse av salget, innhenter vi informasjon om eiendommen hovedsakelig fra vår samarbeidspartner Amibita.
• Gjensidige leverer boligselgerforsikring og tilbyr bygningsforsikring
• Boligkjøperforsikring leveres av Hiscox og med Sedgwick som skadebehandler, og er formidlet gjennom Gjensidige.
• BN bank tilbyr finansieringsløsninger
• Vår avdeling Krogsveen Pluss tilbyr flyttetjenester som utvask, visningsvask, lager, tømming og transport av flyttelass, i tillegg til å formidle kontakt med Flip for overflateoppussing.
• I forbindelse med overtagelse av eiendommen tilbyr Overo avtale om strøm, alarm og bredbånd.
• Krogsveen er, sammen med øvrige bransjeaktører, medeier i Bomega AS som tilbyr den digitale annonseringsplattformen Hjem.
Opplysninger om oppdraget
Oppdragsnummer 79-0020/26
Eiendomsmegler Krogsveen AS, avd. Bergen Sentrum
Nøstetorget 5, 5011, BERGEN
950 007 613
Oppdragets KR-kode KR79.2620
Dato
Sist oppdatert: 23. april 2026 kl. 13:38
Dokumenter
Dokumenter
PDF – 676 KB
PDF – 915 KB
PDF – 272 KB
PDF – 158 KB
PDF – 1 MB
PDF – 1 MB
PDF – 1 MB
PDF – 2 MB
PDF – 312 KB
PDF – 29 KB
PDF – 127 KB
PDF – 392 KB
Område
Legg til steder som er viktige for deg
Visning
Unngå doble boligrenter
Vi tilbyr gunstig forsikring.
Vurderer du utleie?
Få et tilbud fra Utleie KrogsveenHva koster lånet?
Sjekk estimert lånekostnadVil du varsles om lignende boliger?
Ved å lagre ditt boligsøk hos oss får du beskjed når vi har en bolig som ligner denne, før den legges ut på markedet!



























