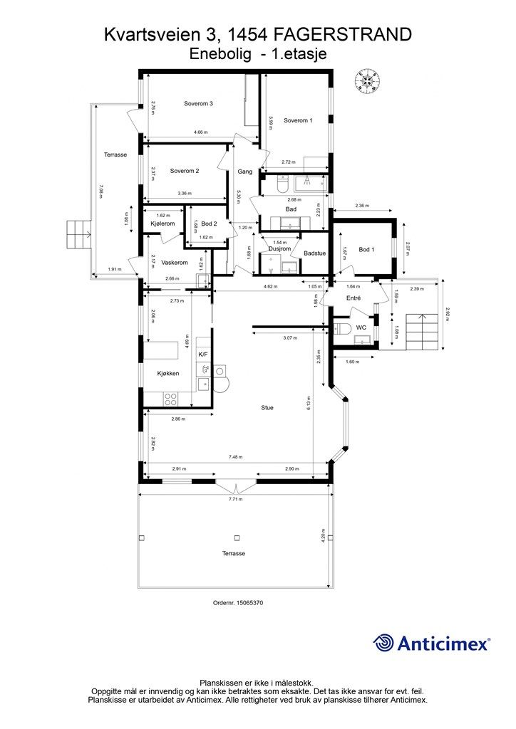
Kvartsveien 3
5 600 000 kr
135 m²
3 soverom
Solgt

Fagerstrand
Enebolig på én flate – idyllisk, solrik hage, vestvendt terrasse og dobbel garasje - Beliggende i attraktivt område!
Prisantydning
5 600 000 krOmkostninger
160 990 krTotalpris
5 760 990 kr
Pris
Bruksareal
208 m²BRA-I (internt bruksareal)
135 m²BRA-E (eksternt bruksareal)
73 m²TBA (terrasse-balkongareal)
46 m²
Areal
Byggeår
1989Soverom
3 soveromBad
1 badTomteareal
890 m² (eiet)Type
Enebolig - FrittliggendeEierform
EietFasiliteter
Garasje/P-plass og Balkong/TerrasseEnergimerke
Rød F
Nøkkelinfo
Unngå doble boligrenter
Vi tilbyr gunstig forsikring.
Vurderer du utleie?
Få et tilbud fra Utleie KrogsveenHva koster lånet?
Sjekk estimert lånekostnadDette liker selger best ved boligen
Boligen er romslig og passer for familier med barn, eller bare livsnytere og de som er glade i "slow living". Uteområdet er romslig og er skjermet med høy tuja hekk. Hagen har to epletrær som gir saftige norske epler om høsten, og et plommetre som gir rikelig med plommer. Syrintrær på baksiden av huset sprer sin aroma i hagen om sommeren. Elektrisk gressklipper tar seg av plenen slik at man kan nyte lange sommerdager ute på terrassen eller ta seg en gåtur til stranda. Det er en båtplass til salgs dersom interessant. Boligen ligger sentralt på Fagerstrand med treningssenter rett over hovedveien, to matbutikker i gåavstand, bussholdeplass 1-2 minutter unna og gåavstand til barnehager og skole.
Beskrivelse
Kort om eiendommen
Eiendommen, ca 890 m², er idyllisk, frodig, solrik og usjenert. Pent opparbeidet med hekk, beplantning, frukttrær, bærbusker og store terrasseflater.
Sentralt beliggende i et veletablert, særdeles barnevennlig boområde med nærhet til Fagerstrand sentrum med dagligvarebutikk, barne- og ungdomsskole, barnehager, treningssenter samt populær badestrand og båtmarina.
Område
Legg til steder som er viktige for deg
På flyttefot? Tenk kjøp og salg samtidig.
Få din egen rådgiver gjennom hele kjøps- og salgsprosessen. Det starter med en verdivurdering.
Unngå doble boligrenter
Vi tilbyr gunstig forsikring.
Vurderer du utleie?
Få et tilbud fra Utleie KrogsveenHva koster lånet?
Sjekk estimert lånekostnadVil du varsles om lignende boliger?
Ved å lagre ditt boligsøk hos oss får du beskjed når vi har en bolig som ligner denne, før den legges ut på markedet!

