Fjellfaret 11B
14 950 000 kr
340 m²
7 soverom
Solgt
Øvre Billingstad
Nydelig enebolig med 3-roms utleiedel| Spektakulær utsikt mye sol| Terrasse og hage| Integrert garasje| Vannbåren varme
Prisantydning
14 950 000 krOmkostninger
394 740 krTotalpris
15 344 740 kr
Pris
Bruksareal
340 m²BRA-I (internt bruksareal)
340 m²TBA (terrasse-balkongareal)
62 m²
Areal
Etasje
3Byggeår
1999Soverom
7 soveromBad
4 badTomteareal
728 m² (eiet)Type
Enebolig med utleiedelEierform
EietFasiliteter
Garasje/P-plass og Balkong/TerrasseEnergimerke
Rød E
Nøkkelinfo
Unngå doble boligrenter
Vi tilbyr gunstig forsikring.
Vurderer du utleie?
Få et tilbud fra Utleie KrogsveenHva koster lånet?
Sjekk estimert lånekostnadBeskrivelse
Kort om eiendommen
Attraktiv og stor enebolig med utleiedel beliggende i et rolig boligområde på et høydedrag på øvre Billingstad i Asker. Området er meget populært med kort vei til naturen, fjorden, idrettstilbud, servicetilbud, barnehager, skole, nærbutikk, tog og buss
Boligen inneholder
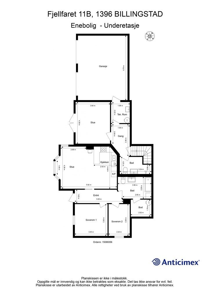
Underetasje 147 kvm: Hoveddel: Gang, bad, stue, teknisk rom og garasje. Hybel/utleie: Entré, stue, kjøkken, bad, bod og to soverom
1. etasje 113 kvm: Entré, vaskerom, toalettrom, kjøkken, stue, bad, soverom og bod
2. etasje 80 kvm: Gang, stue, kontor, bad og tre soverom
Høydepunkter:
Stor familiebolig over 3 plan med utleiedel/sokkelleilighet
Innholdsrik og god planløsning
Vannbåren gulvvarme
Nydelige uteplasser med strålende solforhold og flott utsikt
Flere ildsteder
Integrert garasje
Område
Legg til steder som er viktige for deg
På flyttefot? Tenk kjøp og salg samtidig.
Få din egen rådgiver gjennom hele kjøps- og salgsprosessen. Det starter med en verdivurdering.
Unngå doble boligrenter
Vi tilbyr gunstig forsikring.
Vurderer du utleie?
Få et tilbud fra Utleie KrogsveenHva koster lånet?
Sjekk estimert lånekostnadVil du varsles om lignende boliger?
Ved å lagre ditt boligsøk hos oss får du beskjed når vi har en bolig som ligner denne, før den legges ut på markedet!
På flyttefot? Slik gjør vi det enklere for deg
Skreddersydd flyttepakke
Vi fikser håndverkere, vask, pakking, lagring og transport, og legger ut for utgiftene underveis.
Hjelp med både kjøp og salg
Hos oss har du din egen rådgiver gjennom hele kjøps- og salgsprosessen.
Hjelp til finansiering
Vårt samarbeid med BN Bank sikrer deg rask og løsningsorientert hjelp, til konkurransedyktige betingelser.




