Kjelsåsveien 8A
3 980 000 kr
40 m²
Komplett salgsoppgave
Grefsen - Nordre Åsen
Toppleilighet med stor, solrik balkong! God planløsning med spisekjøkken, stue med flere soner. Svært sentralt!
Prisantydning
3 980 000 krAndel fellesgjeld
62 895 krOmkostninger
19 252 krTotalpris
4 062 147 kr
Pris
Bruksareal
48 m²BRA-I (internt bruksareal)
40 m²BRA-E (eksternt bruksareal)
8 m²TBA (terrasse-balkongareal)
6 m²
Areal
Etasje
3Byggeår
1950Bad
1 badType
AndelsleilighetEierform
AndelFasiliteter
Balkong/TerrasseFellesutgifter
3 290 krEnergimerke
Rød D
Nøkkelinfo
Unngå doble boligrenter
Vi tilbyr gunstig forsikring.
Vurderer du utleie?
Få et tilbud fra Utleie KrogsveenHva koster lånet?
Sjekk estimert lånekostnadBeskrivelse
Kort om eiendommen
Velkommen til Kjelsåsveien 8A!
Gjennomgående 1-roms toppleilighet med meget god planløsning med flere soner. Leiligheten fremstår lys og luftig med god løsninger som bl.a. sovealkove tilknyttet stuen med oppbevaringsplass i skyvedørsgarderobe og overskap. Alkoven har også en halvvegg mot stuen som gir naturlig lys til rommet. Separat kjøkken med plass til spisebord og sittebenk foran vinduet. Flislagt baderom med opplegg til vaskemaskin, og fra stuen er det utgang til en herlig vestvendt balkong.
Rolig boligområde med nærhet til servicetilbud, kollektivtransport og rekreasjonsområder. Det er gåavstand til buss, flybuss, trikk og T-banestasjon ved Storo, og til Grefsen togstasjon som tar deg til Jernbanetorget på 8 min. Buss 56, like utenfor leiligheten, tar deg til Grefsenkollen.
Innhold og byggemåte
Innhold og byggemåte
Eiendommen
Kjelsåsveien 8A, 0488 OSLO
Kommunenummer 301, gårdsnummer 79, bruksnummer 31
Andelsnummer 285, Nordre Åsen Borettslag, organisasjonsnummer 948225425
Innhold
Totalt bruksareal BRA: 48 kvm
BRA-i:
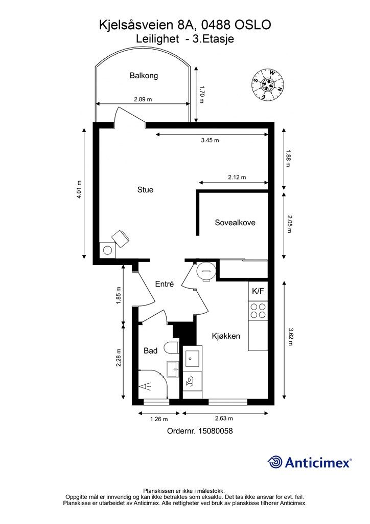
3. etasje 40 kvm: Entré, stue, sovealkove, bad og kjøkken.
BRA-e:
Kjelleretasje 5 kvm: To boder.
Loftsetasje 3 kvm: Bod.
Terrasse- og balkongareal (TBA):
3. etasje 6 kvm: Balkong.
Boligen disponerer 3 boder. To kjellerboder på hhv. 1 kvm og 4 kvm, samt en loftsbod på ca. 3 kvm. Loftsboden har et gulvareal på ca. 8 kvm, men grunnet lav takhøyde er det kun 3 kvm som er måleverdig. I tillegg er det fellesbod for sykler i kjelleren.
Det gjøres oppmerksom på at boligens eksterne boder tilhører borettslagets fellesareal, og at boden således ikke eies av den enkelte andelseier. Dette medfører at borettslaget i fellesskap beslutter bruken, og at man ikke selv har eierrett og rettsvern for boden. Borettslaget kan ved vedtak beslutte annet bruk av fellesarealet og disponering av bodarealet kan dermed opphøre.
Vedlagte plantegninger er ikke målbare. De oppgitte arealer er hentet fra rapport med befaringsdato 25.02.2026 utført av Anticimex v/Stian Christensen.
Byggemåte
Selger har innhentet en tilstandsrapport av boligen/eiendommen. Av rapporten fremgår det at flere bygningsdeler har fått tilstandsgrad ikke undersøkt/ikke tilgjengelig for undersøkelse (TG IU), 2 (TG2) og/eller 3 (TG3). Rapporten beskriver også avvik på undersøkte bygningsdeler uten tilstandsgrad. Kjøper overtar ansvaret for de opplysninger som fremkommer av salgsdokumentasjonen, og kan ikke gjøre gjeldende som mangel noe som burde vært kjent eller som ikke kan anses å ha betydning for avtalen.
Leilighetsbygg over 3 boligetasjer, samt kjeller og loft, oppført i 1950. Bygningen er iht. tilstandsrapporten oppført med grunnmur, bærende konstruksjoner og etasjeskillere av betong. Yttervegger er i hovedsak i tegl/murverk med utvendige fasader i synlig murverk. Saltak i trekonstruksjoner, yttertak belagt med takstein. Leiligheten har entrédør med brannklasse B30 og lydklasse dB35. Balkongdør og vinduer med trekarmer fra 2022. Hovedsaklig naturlig ventilasjon gjennom vinduer og ventiler. Les for øvrig mer om byggemåte og den tekniske tilstanden i rapporten.
Det gjøres spesielt oppmerksom på at badet har fått TG3 på bakgrunn av en helhetsvurdering av rommet. Følgende hovedmomenter er lagt til grunn:
- Vindu er plassert i våtsonen, dette anses som en uheldig plassering. Det er montert forheng foran vindu. Utførelsen vurderes til å ivareta tilstrekkelig fuktbeskyttelse, til tross for uheldig plassering av vinduet.
- Det er registrert hullyd i enkelte gulvfliser.
- Vanntett sjikt/membran har en alder som tilsier at fremtidig funksjon er usikker.
- Overgang mellom sluk og vanntett sjikt er uoversiktlig.
- Vannrør av kobber og støpejern av støpejern har en alder som tilsier at fremtidig funksjon er usikker.
- Sluket er plassert utenfor våtsonen.
- Innredningen har enkelte mindre skader.
- Grunnet vegger i betong er det ikke mulig å gjennomføre hulltaking, men det har blitt gjennomført et overflatesøk med fuktindikator som ikke viste indikasjoner på fuktskader.
Det opplyses om hullyd i enkelte gulvfliser ellers i boligen, uten tegn til riss og sprekker.
Det er gitt TGIU (tilstandsgrad ikke undersøkt) på at innvendig stakeluke ikke er påvist inne i boligen.
Se supplerende tekst i tilstandsrapporten om disse forholdene. Kjøper overtar ansvar og risiko for dette.
Tilstandsrapporten er inntatt i salgsoppgaven. Rapporten inneholder informasjon om avvikene og konsekvensen av disse. For avvik som er gitt TG3 har den bygningssakkyndige i tillegg gitt et anslag på hva det vil koste å utbedre disse avvikene. Ettersom kjøper regnes å være kjent med forhold som tydelig fremgår av tilstandsrapporten, oppfordres du til å sette deg grundig inn i rapporten i sin helhet.
Standard
Lys og gjennomgående 1-roms toppleilighet i Nordre Åsen borettslag. Leiligheten har meget god planløsning med flere soner og gode lagringsmuligheter i tre eksterne boder. Leilighetens veggflater er malt i lyse og tidsriktige fargetoner som i kombinasjon med naturlig lys via vindusflatene gir en harmonisk atmosfære til rommene.
Leiligheten inneholder:
Entré
Lys og innbydende entré med slette malt flater på vegger og flislagt gulv. Det er vegghengte knagger til å henge fra seg yttertøy, samt plass til å sette fra seg sko i skohylle. Entréen ligger fint til med adkomst til boligens rom. Det er installert porttelefon ved inngangsdøren.
Stue & alkove
Arealsmart stue med god plass til både sofahjørne med tilhørende mediemøblement og et spisebord. I det ene hjørnet er det plassert en peisovn som gir god varme til leiligheten. Det er også etablert en sovealkove i stuen med en halvvegg som gir et fint naturlig lys til rommet. Det er også montert rullegardin i alkoven for å gjøre soveplassen mørkere om ønskelig. I alkoven er det plass til klesoppbevaring i skyvedørsgarderobe i tillegg til ekstra lagring i vegghengt overskap. Stuen og alkoven har vegger malt i delikate grønntoner og lekker enstavs parkett på gulv. Vinduene har persienner.
Balkong
Fra stuen er det adkomst til en herlig vestvendt balkong på 6 kvm med nydelig utsikt og meget gode solforhold. Balkongen oppleves skjermet og har god plass til både en liten sittegruppe og gassgrill. Markise er montert over balkongen.
Kjøkken
Separat kjøkken med plass til et spisebord med sittebenk foran vinduet. Fra spiseplassen har du flott utsyn fra vinduet opp mot Grefsenåsen. Kjøkkeninnredningen er fra ukjent årstall med slette fronter som står i god stil til fargetonene på veggene. Benkeplate i tre. Frittstående hvitevarer som komfyr, kjøl/fryseskap og oppvaskmaskin medfølger. Malte lyse vegger og flislagt gulv.
Baderom
Flislagt baderom med gulvvarme. Badet er av eldre dato og har fått TG3 i sin helhet iht. tilstandsrapporten. Baderommet er innredet med gulvstående toalett, servant med underliggende skap, vegghengt speil med overbelysning, dusjhjørne og har opplegg til vaskemaskin. Dusjdørene ble skiftet i 2026. Smal toppmatet vaskemaskin (god modell) medfølger, og den er under ett år gammel.
Bod
Leiligheten har god plass til oppbevaring i hele tre eksterne boder. To kjellerboder på hhv. 1 kvm og 4 kvm i tillegg til en loftsbod på ca. 3 kvm måleverdig areal( gulvareal på 8 kvm).
Løsøre og tilbehør
Vi viser til liste fra Norges Eiendomsmeglerforbund som gjelder fra 01.01.2020 angående løsøre og tilbehør.
Taklampe i stue og speil i gangen samt blomsterkasse på balkongen vil ikke medfølge leiligheten ved salg.
Komfyr, kjøl/frys, oppvaskmaskin og vaskemaskin medfølger leiligheten ved salg.
Oppvarming
Elektrisk oppvarming med panelovner i kombinasjon med peisovn i stue. Panelovnen i stuen er er ny i 2026.
Dersom beboelsesrom ikke har vegg- eller fastmonterte varmekilder ved visning, følger dette heller ikke med.
Ferdigattest/brukstillatelse
Det foreligger ferdigattest på våningshus datert 01.10.1948 og på rehabilitering av boligblokk datert 14.12.1994. Disse kan fås ved henvendelse til megler.
Tinglyste heftelser og rettigheter
Utover andel fellesgjeld overdras leiligheten fri for pengeheftelser.
Borettslaget har legalpant for forfalte felleskostnader og andre krav som følger av borettslagsforholdet iht. burettslagsloven § 5-20. Pantet er begrenset oppad til 2G (G = folketrygdens grunnbeløp).
Det er tinglyst 1 servitutt på borettslagets eiendom. Dagboknr. 80620, tinglyst: 09.12.1986: Erklæring/avtale: Servitutten er en kjøpekontrakt og et skjøte fra borettslagets kjøp av tomten fra Oslo kommune. Kontrakten inneholder bestemmelser som gir kommunen rett til å legge og ha liggende ledninger i eller over ubebygde deler av tomten og har rett til adkomst for anlegg og vedlikehold samt å sette opp nettstasjon (transformator). Borettslaget er pliktig til å avstå grunn til veiutvidelser eller som adkomstvei til nabotomter. Tomten kan ikke inngjerdes og allmennheten må ha tilgang til ubebygde deler av tomten. Kommunen har forkjøpsrett dersom borettslaget skal selge tomt. Dersom kommunen ønsker kjøpe ubebygget tomt til nye boliger, er borettslaget forpliktet til å inngå avtale om salg til kommunen på rimelige vilkår.
Servitutten vil følge eiendommen. Kjøpers bank vil få pant etter ovennevnte servitutt.
Eventuell adgang til utleie
Andelseier kan ikke uten samtykke fra styret i borettslaget overlate bruken av boligen til andre. Med samtykke kan andelseier overlate boligen til andre i inntil tre år hvis andelseier har bodd i boligen i minst ett av de to siste år. Utleie i andre tilfeller kan godtas ved særlige grunner, jf. burettslagslova § 5-6. Utleie forutsetter at leiligheten har forsvarlige radonverdier. Se også borettslagets vedtekter og konferer megler ved spørsmål.
Beliggenhet og tomteforhold
Beliggenhet og tomteforhold
Beliggenhet
Leiligheten ligger sentralt i et meget populært boligområde på Grefsen/Disen. Borettslagets tomt er pent og parkmessig opparbeidet med store grøntarealer, sittebenker og lekeplasser med lekeapparater.
Det er kort vei til det meste du trenger i hverdagen, enten det er marka, kjøpesenter eller offentlig kommunikasjon. Det går milevis med turløyper i Lillomarka, enten du vil sykle, gå på bena eller på ski. På Linderudkollen er det kunstsnøanlegg på vinterstid, hvis været ikke er helt på din side. Er du mer glad i nedoverski, ligger Oslo Skisenter et par minutters kjøretur unna.
Fra Akebakkeskogen går det turvei til Grefsenkollen, med kanskje Oslos råeste utsikt! Her arrangeres også OverOslo, som har blitt en av Oslos mest populære festivaler.
Borettslaget har Muselunden som nærmeste nabo. Her er det frisbeegolf-bane, kunstgressbane og store grønne områder. I tillegg er Skeidbanen noen få meter unna, med skøytebane om vinteren og fotball om sommeren.
Langs Akerselva er det flere flotte badeplasser, blant annet ved badekulpen i Nydalen eller på Frysja.
Holdeplass for offentlig kommunikasjon er innen gangavstand. Trikk og tog fra Grefsen stasjon, t-bane fra Storo, buss fra Kjelsåsveien og fra Grefsenveien, samt flybuss fra Ringveien.
Området har meget gode parkeringsmuligheter både med gratis gateparkering i nærområdet og inne på borettslagets område, for eksempel i Åsensvingen hvor det er 8 kommunale ladestasjoner for el-bil. Plassene på utsiden av blokken har også mulighet for privat lading.
Kort gangavstand til nærbutikker (REMA1000 ligger rett ved), Storo Storsenter, SATS, restauranter, kafeer, Torshov, Nydalen og BI.
Adkomst
Det vil bli skiltet med Krogsveen visningsskilt ved fellesvisninger.
Barnehager, skoler og fritid
Det ligger flere private og offentlige barnehager i området. Det er ca 100 meter til nærmeste barnehage (Nordre Åsen Kanvas barnehage). Eiendommen sokner til Disen barneskole (1.-7. klasse) og Morellbakken Ungdomsskole (8.-10. klasse).
Informasjon om tilhørende skolekretser er hentet fra kommunens hjemmesider og tilhørigheten kan årlig endres av kommunen. Dersom skole- og barnehagetilbud er av betydning for kjøpet, ber vi om at det rettes en særskilt henvendelse til kommunen/bydelsadministrasjonen for oppdatert informasjon.
Beskrivelse av tomt
Borettslagets tomt er på 55 064 kvm og er en eiet tomt. Det er store opparbeidede fellesarealer med gressplener, prydbusker, trær, lekeplass, sittegrupper og asfalterte gangveier. Det er utnevnt et eget "grøntplanutvalg" som sørger for oppgraderinger av uteområdene og borettslaget er flinke til å holde områdene ryddige og pene. Borettslagets tomt grenser mot Muselunden som er et fantastisk grøntområde med gressletter, akebakker om vinteren, kunstgressbaner og frisbeegolfbane.
Parkering
Det er mulighet for leie av biloppstillingsplass eller garasjeplass etter venteliste.
Det er 167 biloppstillingsplasser rundt omkring i borettslaget. Leie koster p.t. kr 200,- pr. mnd. Det er lademulighet på mange av plassene.
Nordre Åsen Garasjelag består av 91 garasjer fordelt på 5 felt rundt om i borettslaget. Ved tildeling av garasje betales et depositum på kr 16 000.- samt et eierskifte gebyr på kr. 500.- Depositum tilbakebetales ved oppsigelse. Leie betales forskuddsvis direkte til Garasjelaget og er pr. 2025 kr 2 200,- per år. Ved tildeling av garasje mister en eventuell biloppstillingsplass. Garasjelaget har både bil- og mopedgarasjer. Det er plass til maks 10 moped/motorsykler.
Garasjelaget har egen nettside for beboere i borettslaget: https://vibbo.no/nordre-asen/tema/garasje
Det er 8 kommunale ladeplasser beliggende ca. 300 m fra leiligheten mellom Åsensvingen 7 og 9.
Ønske om å leie/si opp parkeringsplass i borettslaget gjøres skriftlig til styret. Garasjeplasser kan leies etter ventelister i garasjelag tilknyttet borettslaget. Parkeringsplassen må sies opp separat til styret ved salg av boligen. Parkeringsleie/administrasjonskostnader belastes etter gjeldende satser.
Vei, vann og avløp
Eiendommen har adkomst via kommunal vei og private internveier med felles vedlikeholdsansvar for borettslaget.
Eiendommen er tilknyttet kommunalt ledningsnett via private stikkledninger.
Borettslaget er ansvarlig for private stikkledninger til bygningen.
Regulerings-og arealplaner
Eiendommen er regulert til byggeområde for bolig i henhold til reguleringsplan S-374 datert 07.06.1949 med tilhørende reguleringsbestemmelser.
Eiendommen inngår i S-5142: Detaljregulering med konsekvensutredning og med reguleringsbestemmelser for ny vannforsyning Oslo - stamnett. Oslo kommune bygger en reservevannforsyning stor nok til å gi hele Oslo tilgang på rent drikkevann. Den nye vannforsyningen skal være klar i 2028. Se: https://www.oslo.kommune.no/slik-bygger-vi-oslo/ny-vannforsyning-oslo/.
Det er gitt tillatelse til tiltak for innsettelse av ventilasjonsrister i fasade i Kjelsåsveien 1-10 og Åsensvingen 1-9, datert 20.03.2024. Arbeidene er i gang i borettslagets regi og det skal settes inn ventilasjonsrister i hele borettslaget. Se saksnummer 2025/10828 på Plan- og bygningsetatens hjemmesider for mer informasjon.
I krysset Lettvintveien/Kjelsåsveien/Lofthusveien er det gitt tillatelse til tiltak om innstramming av veikryss, datert 25.02.2026. Tiltaket skal øke trafikksikkerheten og samtidig utvide andelen grøntareal rundt krysset, da dagens situasjon kan virke uoversiktlig. Tiltaket skal bidra til å senke farten på biltrafikken i kryssområdet, korte lengden på gangfelt og med det gi en mer trafikksikker situasjon for gående og syklende samtidig som X-krysset opprettholdes. Se saksnummer 2025/22343 på Plan- og bygningsetatens hjemmesider for mer informasjon.
Økonomi
Økonomi
Boligens kostnader
Felleskostnadene er kr 3 290,- pr. mnd. og inkluderer: TV/internett, renter og avdrag på fellesgjeld, kommunale avgifter, forretningsførsel, drift og vedlikehold av borettslaget m.m.
Felleskostnadene justeres normalt en til to ganger årlig i forhold til borettslagets faktiske utgifter, fellesutgiftene ble endret 01.01.2026 med en økning på 7%, hvor 4 % er knyttet opp mot pågående prosjekt (ventilasjon og maling av balkonger) og 3 % er den indeksregulerte økningen.
Felleskostnadene fordeles slik:
TV/internett: kr 441,-
Felleskostnader: kr 2849,-
Nåværende eier har et strømforbruk som tilsvarer ca. 8.596,- pr. år. / 7.574 kWh. pr. år. Det er tegnet Norgespris på boligen, dette er låst frem til desember 2026.
Boligen er tilknyttet Telia som leverandør av kabel-tv og har avgift på kr 430,- pr. måned som er inkludert i felleskostnadene.
Tv-tuner/dekoder medfølger ikke, ny eier må selv ta kontakt med Telia for å få dette. Borettslaget har nylig reforhandlet avtalen med Telia. Det gis mulighet til å justere internetthastighet/tv-kanaler og strømmetjenester innenfor en gitt poeng-pott hver leilighet har.
Utgiftene er basert på nåværende eiers forbruk. Kjøper må selv tegne innboforsikring.
Formuesverdi
Ved hjelp av skatteetatens boligkalkulator er boligens formuesverdi beregnet til kr 1 190 925,- for fjoråret når boligen benyttes som primærbolig.
Formuesverdien er en gitt prosent av den beregnede markedsverdien. Beregnet markedsverdi er basert på Statistisk sentralbyrå (SSB) sine opplysninger om omsatte boliger. I beregningen tas det hensyn til boligens beliggenhet, areal, byggeår og boligtype.
Det er eier av boligen som fastsetter formuesverdien, jf. skatteforvaltningsloven § 9-1 første ledd, men skattemyndighetene kan kontrollere at verdien er satt riktig.
Formuesverdi skal ikke overstige:
Primærbolig: 25 % av beregnet eller dokumentert markedsverdi opp til kr. 10 000 000, og deretter 70 % av den overskytende markedsverdi.
Sekundærbolig: 100 % av beregnet eller dokumentert markedsverdi.
Formuesverdier som overstiger disse grensene, kan kreves nedjustert av eier.
Fra 2026 har Stortinget vedtatt en oppdatert modell for beregning av formuesverdi for primærbolig, så avvik kan forekomme.
For mer informasjon se skatteetaten.no
Eiendomsskatt
Det er vedtatt eiendomsskatt i Oslo kommune, men denne leiligheten er p.t ikke lignet for eiendomsskatt.
Opplysninger om fellesgjeld
Andel formue er kr 21 573,- pr. 31.12.2025
Andel fellesgjeld er kr 62 895,- pr. 18.03.2026
Total fellesgjeld for boligselskapet er kr 28 647 439,- pr. 18.03.2026 og lånevilkårene er:
Bank: OBOS Boligkreditt AS
Lånenr.: 98207670014
Lånetype: Annuitetslån
Rentesats: 5,19%
Restsaldo 9 971 440,00
Innfrielsesdato: 29.02.2048
Type rente: Flytende rente
Terminer i året: 12
IN-avtale: Nei
Bank: OBOS-banken AS
Lånenr.: 98208070045
Lånetype: Annuitetslån
Rentesats: 5,09%
Restsaldo 18 675 999,00
Innfrielsesdato: 30.12.2047
Type rente: Flytende rente
Terminer i året: 12
IN-avtale: Nei
Det er besluttet å ta opp et lån på kr 8 000 000,- for utbedring av ventilasjon, samt maling av balkonger. Lånet er ikke utbetalt enda, dette vil medføre en økning i fellesgjeld.
Omkostninger
3 980 000,00 Prisantydning
62 895,00 Andel av fellesgjeld
--------------------------------------------------------
4 042 895,00 Pris inkl. fellesgjeld
Omkostninger
8 212,00 Gebyr forkjøpsrett - OBOS
9 950,00 Gjensidige Boligkjøperpakke (valgfri)* (valgfritt)
545,00 Tinglysing hjemmel
545,00 Tinglysing panterettsdokument
--------------------------------------------------------
9 302,00 (Omkostninger totalt (uten Gjensidige Boligkjøperpakke (valgfri)))
19 252,00 Omkostninger totalt (med Gjensidige Boligkjøperpakke (valgfri)))
--------------------------------------------------------
4 052 197,00 Totalpris inkl. omkostninger
4 062 147,00 Totalpris inkl. omkostninger (med Gjensidige Boligkjøperpakke (valgfri))
--------------------------------------------------------
Betalingsbetingelser
Kjøpesum inkludert omkostninger, samt pantedokument tilknyttet eventuelt lån, skal være disponibelt hos megler 2 virkedager før overtagelsen.
Annen viktig informasjon
Annen viktig informasjon
Eier
Simen Klomsæt
Informasjon om borettslaget
Leiligheten er tilknyttet Nordre Åsen Borettslag.
Borettslaget består av 313 leiligheter og en tjenesteleilighet.
Forretningsfører er OBOS, tlf. 22 86 55 00
Dugnad må påregnes.
Husdyrhold er kun tillatt når gode grunner taler for det, og dyreholdet ikke er til ulempe for andre beboere. Borettslaget opprettholder krav om at det skal søkes om tillatelse for dyrehold, for i praksis å kunne avklare "gode grunner" og "ulempe".
Foretatt påkostninger de senere år:
2025: Takrehabilitering av vaskeribygget. Bytte av gamle inngangsdører.
2023: Ladeanlegg Aneo ferdigstilt.
2022/2023: Bytte av oppgangsdører. Total vindusrehabilitering i borettslaget.
2021: Deler av lekeplassen ved vaskeriet er fornyet, samt hele lekeplassen ved Kjelsåsveien 2. Utbedring av asfalt i enkelte stikkveier foran blokkene.
2018: Piperehabiliteringen og nye ståldører
2015: Utskiftning av lysarmaturer, drenering av blokkene, malt oppganger, pusset opp kjøkkenet i vaskeriet og utført rens av ventilasjonsanlegget.
2014: Startet drenering av blokkene og skifte av armaturer som skal tas over flere år. Vasking av balkonger utvendig.
2013: Utbedret piper i Kjelsåsvn. 1 og vedlikeholdsspyling av soil og bisoil.
2011: Ny støtsand på lekeplass.
2010: Nytt låssystem.
Planlagte påkostninger:
Styret jobber med å få kartlagt hvilke vedlikeholdsoppgaver som borettslaget står foran og ikke minst i hvilken rekkefølge de skal utføres etter. En slik oversikt kan ikke følges til punkt og prikke omprioriteres da det kan forekomme akutt vedlikeholdsbehov samt at disse oppgavene må harmonere med borettslagets økonomi og nivå på felleskostnader og fellesgjeld.
Styreleder opplyser i mail den 08.12.2025: Det er for tiden et pågående prosjekt i borettslaget hvor det etableres nye ventiler i alle rom mot yttervegg som ikke har dette i dag (eks kjøkken). Samtidig er det vedtatt at fasadens malbare flater og balkonger skal males. Sistnevnte skjer ikke før til våren. Disse to tiltakene har et budsjett på kr 12 000 000,- hvor kr 8 000 000,- lånefinansieres. Det er gjennomført en øking av felleskostnadene på 4 % fra og med 01.01.26 for å møte de økte finanskostnadene. Låneopptaket vil medføre en økning i fellesgjeld for andelene i borettslaget. Entreprenør har konkludert med at det er enkelte av oppgangene som ikke har behov for nye ventiler, deriblant i Kjelsåsveien 8. Det vil derfor ikke bli utført dette i leiligheten, men leiligheten er allikevel en del av borettslagets prosjekt og kostnadesfordeling.
I henhold til borettslagets vedtekter må kjøper godkjennes av styret som ny andelseier. Det er kjøpers ansvar at styregodkjenning blir gitt, men styret kan ikke nekte godkjenning uten saklig grunn. Iht. burettslagslova kan man bare eie en andel i borettslaget. Kun fysiske personer kan være andelseiere.
Øvrige andelseiere i borettslaget og eventuelt medlemmer av boligbyggelaget har forkjøpsrett. Dersom boligen tas på forkjøpsrett løses kjøper fra avtalen.
For å dekke eventuell manglende innbetaling av fellesutgifter fra øvrige andelseiere, er borettslaget tilknyttet et sikringsfond gjennom OBOS. Dette innebærer at OBOS innbetaler samtlige felleskostnader til borettslaget hver måned og dermed overtar ansvar og risiko for eventuell inndrivelse av utestående fellesutgifter. Avtalen om sikringsfond gjennom OBOS er gyldig til den sies opp av en av partene. Oppsigelsesfrist er 12 måneder.
Dokumenter for borettslaget kan fås ved henvendelse til megler.
Overtakelse
Etter nærmere avtale. Overtakelse kan tidligst skje etter at forkjøpsretten for øvrige andelseiere i borettslaget og eventuelt medlemmer av boligbyggelaget er avklart, samt at styrets godkjennelse er avklart.
Boligselgerforsikring
Selger har i forbindelse med salget tegnet boligselgerforsikring levert av Gjensidige.
Boligselgerforsikringen dekker selgers ansvar etter avhendingsloven begrenset oppad til kr 14 millioner. Dersom kjøper oppdager forhold ved eiendommen som hen mener utgjør en mangel ved eiendommen, vil Gjensidige behandle reklamasjonen på vegne av selger. Forsikringsvilkår kan fås ved henvendelse til megler.
Vedlagt salgsoppgaven følger selgers egenerklæringsskjema og tilstandsrapport. Interessenter må sette seg inn i dokumentene før bud inngis.
Boligkjøperforsikring
Innen kontraktsmøtet må kjøper ta stilling til om det ønskes å bestille Boligkjøperpakken gjennom Gjensidige. I denne gunstige pakken er boligen ferdig forsikret og inkluderer rettshjelpsforsikring, også kalt Boligkjøperforsikring. Rettshjelpsforsikring gir trygghet og tilgang på profesjonell juridisk hjelp dersom det oppdages uventede feil eller mangler det første året etter overtagelse. Forsikringsselskapet behandler i så fall ethvert mangelskrav kjøper måtte ha overfor selger.
Boligkjøperpakken inkluderer bygningsforsikring for hus og hytte, innboforsikring, flytteforsikring og dobbel rentedekning - i situasjoner hvor kjøper ikke får solgt nåværende primærbolig.
Kjøper mottar ingen særskilt faktura for Boligkjøperpakken da kostnaden det første året legges til kjøpesummen for boligen. Det gjøres oppmerksom på Krogsveen mottar et honorar for denne formidlingen.
Produktark for Boligkjøperpakken ligger vedlagt i salgsoppgaven.
Dersom ikke boligkjøperpakke ønskes kan kun rettshjelpsforsikring, også kalt boligkjøperforsikring, tegnes særskilt via megler. Rettshjelpsforsikringen varer i 5 år fra overtagelse og leveres gjennom Gjensidige. Ta kontakt med megler for ytterligere informasjon.
Selskap og privatpersoner som driver med kjøp/salg/utvikling som ledd i egen næringsvirksomhet kan ikke tegne boligkjøperpakke eller rettshjelpsforsikring.
Budgivning
Forbrukerinformasjon om budgivning er vedlagt denne salgsoppgaven og er også på vår hjemmeside Krogsveen.no. Alle bud og budforhøyelser må inngis skriftlig. I tillegg må legitimasjon være fremlagt sammen med signatur fra budgiver.
Vi oppfordrer til å gi bud elektronisk via GI BUD-knappen på eiendommens hjemmeside på Krogsveen.no. Da vil samtlige vilkår bli oppfylt.
Eventuelle forhøyelser eller endringer av budet kan bekreftes pr SMS eller på e-post. Vi oppfordrer alltid til å kontakte megler pr. telefon i tillegg da forsinkelser i SMS og e-post kan forekomme.
For at budene skal kunne bli behandlet og videreformidlet skriftlig til alle involverte parter, må alle bud ha en tilstrekkelig lang akseptfrist, jf. eiendomsmeglingsforskriften § 6-3.
Selger må også skriftlig akseptere budet før aksept kan formidles til budgiver. Akseptfrist bør derfor være på minimum 30 minutter, og budforhøyelser må derfor skje i god tid før fristens utløp.
Bud i forbrukerforhold kan uansett ikke settes med kortere frist enn kl. 12.00 første virkedag etter siste annonserte visning. I tillegg kan ikke budet ha forbehold om at det skal holdes hemmelig ovenfor øvrige interessenter. Megler har iht lov om eiendomsmegling ikke anledning til å videreformidle disse budene, og de vil dermed heller ikke bli journalført.
Etter at eiendommen er solgt vil kjøper og selger få tilsendt budjournal. Øvrige budgivere kan få utlevert kopi av budjournalen i anonymisert form.
Hvitvaskingsreglene
I henhold til lov om hvitvasking og terrorfinansiering har megler plikt til å gjennomføre kontrolltiltak overfor kunder, herunder fullmektiger. Dette innebærer bl.a. å bekrefte kunders og reelle rettighetshaveres identitet på bakgrunn av fremvist gyldig legitimasjon eller på annen godkjent måte, samt å innhente opplysninger om kundeforholdets formål og tilsiktede art.
Dersom slike kundetiltak ikke kan gjennomføres, kan megler ikke etablere kundeforholdet eller utføre transaksjonen.
Hvis kjøper ikke bidrar til gjennomføring av kundekontrollen og dette fører til at transaksjonen blir forsinket eller ikke kan gjennomføres, vil dette ansees som mislighold av avtalen og gi selger rettigheter etter avhendingslova kapittel 5. I tilfeller der selger ikke bidrar til gjennomføring av løpende kundekontroll underveis i oppdraget, er det selger som misligholder sine forpliktelser etter avtalen og gi kjøper rettigheter etter avhendingslovens kapittel 4. Partene er selv ansvarlige for eventuelle kostnader og ansvar dette kan medføre. Eiendomsmegleren eller eiendomsmeglingsforetaket kan ikke holdes ansvarlig for de konsekvenser dette vil kunne få for partene eller andre som har interesser i eiendomshandelen.
Kjøper oppfordres til å innbetale kjøpesummen som ikke kommer fra låneinstitusjon i én samlet innbetaling fra egen konto i norsk bank. Megler har plikt til å melde fra til Økokrim om eiendomshandler som fremstår som mistenkelige. Melding sendes Økokrim uten at partene varsles.
Personopplysningsloven
I henhold til personopplysningsloven gjør vi oppmerksom på at interessenter kan bli registrert for videre oppfølging.
Lovanvendelse
Generelle bestemmelser
Salgsoppgaven er basert på de opplysningene selger har gitt til megler, den bygningssakyndiges tilstandsrapport, samt opplysninger innhentet fra kommunen, Kartverket og andre tilgjengelige kilder. Det er viktig at kjøper setter seg grundig inn i alle salgsdokumentene, herunder salgsoppgave, tilstandsrapport og selgers egenerklæring. Kjøper anses kjent med forhold som er tydelig beskrevet i salgsdokumentene, og slike forhold kan ikke påberopes som mangler. Dette gjelder uavhengig av om kjøper har lest dokumentene. Alle interessenter oppfordres til å undersøke eiendommen nøye, gjerne sammen med fagkyndig før bud inngis. Kjøper som velger å kjøpe usett kan ikke gjøre gjeldende som mangel noe han burde blitt kjent med ved undersøkelsen.
Dersom det er behov for avklaringer, anbefaler vi at interessenter rådfører seg med eiendomsmegler eller egne rådgivere før det legges inn bud.
En bolig som har blitt brukt i en viss tid, har vanligvis blitt utsatt for slitasje og skader kan ha oppstått. Slik bruksslitasje må kjøper regne med, og det kan avdekkes enkelte forhold etter overtakelse som nødvendiggjør utbedringer. Normal slitasje og skader som nødvendiggjør utbedring, er innenfor hva kjøper må forvente og vil ikke utgjøre en mangel.
Kjøper og selgers rettigheter og plikter reguleres av avtalen mellom partene, samt informasjonen som har vært tilgjengelig for kjøperen i forbindelse med handelen. Avtalen utfylles av avhendingsloven, og det gjelder ulike avtalevilkår avhengig av om kjøper er forbrukerkjøper eller ikke. Dette er nærmere beskrevet nedenfor.
På grunn av ulike avtalevilkår kan selger vurdere bud fra en som ikke er forbruker, ulikt fra en forbrukers bud. Dersom kjøper ikke er forbruker, er selger sitt mulige mangelsansvar begrenset fordi eiendommen selges "som den er". Selger kan ikke ta «som den er»- forbehold overfor en forbrukerkjøper. Selv et lavere bud fra en som ikke er forbruker kan foretrekkes fordi begrensningen i mulig mangelsansvar kan ha egenverdi for selger. Selger står fritt til å forkaste eller akseptere ethvert bud, og er for eksempel ikke forpliktet til å akseptere høyeste bud.
Budgiver skal i budskjema avgi egenerklæring om budgiver er forbruker eller næringsdrivende/ person som hovedsakelig handler som ledd i næringsvirksomhet. Budgivere får informasjon dersom andre bud er inngitt av en som ikke er forbruker.
Forbrukerkjøp - definisjon
Med forbrukerkjøp menes kjøp av eiendom når kjøperen er en fysisk person som ikke hovedsakelig handler som ledd i næringsvirksomhet.
Forbruker – avtalevilkår
Eiendommen har en mangel dersom den ikke er i samsvar med kravene som følger av avtalen, eller det foreligger brudd på bestemmelsene i avhendingsloven §§ 3-2 til 3-8. Hvis eiendommen ikke er i samsvar med det kjøperen må kunne forvente ut ifra alder, type og synlig tilstand, kan det være grunnlag for mangelskrav. Det samme gjelder hvis det er holdt tilbake eller gitt uriktige opplysninger om eiendommen. Dette gjelder likevel bare dersom man kan gå ut ifra at det virket inn på avtalen at opplysningen ikke ble gitt eller at mangelskravet ikke blir rettet i tide på en tydelig måte.
Boligen kan ha en mangel etter avhendingsloven § 3-3 andre ledd, dersom det er avvik mellom opplyst og faktisk innvendig areal, forutsatt at avviket er på 2% eller mer og minimum 1 kvm.
Ved beregning av et eventuelt prisavslag eller erstatning må kjøper selv dekke tap/kostnader opptil et beløp på kr 10 000 (egenandel).
Ikke-forbruker (næringsdrivende) – definisjon
Hvis kjøper er en juridisk person, eller en fysisk person som hovedsakelig handler som ledd i næringsvirksomhet, vil kjøpet ikke anses som et forbrukerkjøp.
Ikke-forbruker – avtalevilkår
Eiendommen har en mangel dersom den ikke er i samsvar med kravene som følger av avtalen.
Eiendommen selges «som den er», og selgers ansvar utover det konkret avtalte er da begrenset etter avhendingsloven § 3-9, første ledd andre setning.
Avhendingsloven § 3-3 andre ledd fravikes, og hvorvidt boligens arealsvikt utgjør en mangel vurderes etter avhendingsloven § 3-8.
Informasjon om kjøpers undersøkelsesplikt, herunder oppfordringen om å undersøke eiendommen nøye, gjelder også for kjøpere som ikke anses som forbrukere.
Det forutsettes at hjemmel overføres til kjøper. Hvis kjøper ikke ønsker hjemmelsoverføring av eiendommen, må det tas forbehold om dette i budet.
Meglers vederlag
Meglers vederlag betales av selger og er avtalt til:
Fastpris: 65 000,-
Vederlag:
Kontroll av hjemmel og heftelser kr 3 900,-
Markedsføringspakke kr 30 900,-
Oppgjør kr 8 900,-
Tilrettelegging kr 19 900,-
Visninger pr stk / Overtagelse kr 4 000,-
Utlegg:
Eierskiftegebyr forretningsfører - OBOS kr 6 725,-
Innhenting av informasjon forretningsfører kr 4 950,-
Innhenting av offentlig opplysninger, reguleringsbestemmelser kr 968,-
Tinglysing sikring kr 545,-
Andre utgifter:
AX tilstandsrapport leilighet kr 7 950,-
Boligselgerforsikring Gjensidige Andel/Aksje regnes av prisant. kr 10 760,-
Foto kr 5 000,-
Vi er opptatt av verdiskapning, og har knyttet til oss samarbeidspartnere som skal sikre våre kunder de beste produkter og tjenester;
• I forbindelse med forberedelse av salget, innhenter vi informasjon om eiendommen hovedsakelig fra vår samarbeidspartner Ambita.
• Gjensidige leverer boligselgerforsikring og tilbyr bygningsforsikring
• Boligkjøperforsikring leveres av Hiscox og med Sedgwick som skadebehandler, og er formidlet gjennom Gjensidige.
• BN bank tilbyr finansieringsløsninger
• Vår avdeling Krogsveen Pluss tilbyr flyttetjenester som utvask, visningsvask, lager, tømming og transport av flyttelass, i tillegg til å formidle kontakt med Flip for overflateoppussing.
• I forbindelse med overtagelse av eiendommen tilbyr Overo avtale om strøm, alarm og bredbånd.
• Krogsveen er, sammen med øvrige bransjeaktører, medeier i Bomega AS som tilbyr den digitale annonseringsplattformen Hjem.
Opplysninger om oppdraget
Oppdragsnummer 41-0030/26
Eiendomsmegler Krogsveen AS, avd. Grefsen
Grefsenveien 105, 0492, OSLO
950 007 613
Oppdragets KR-kode KR41.2630
Dato
Sist oppdatert: 17. april 2026 kl. 10:30
Dokumenter
Dokumenter
PDF – 30 MB
PDF – 922 KB
PDF – 312 KB
PDF – 29 KB
PDF – 127 KB
PDF – 392 KB
Område
Legg til steder som er viktige for deg
Visning
Unngå doble boligrenter
Vi tilbyr gunstig forsikring.
Vurderer du utleie?
Få et tilbud fra Utleie KrogsveenHva koster lånet?
Sjekk estimert lånekostnadVil du varsles om lignende boliger?
Ved å lagre ditt boligsøk hos oss får du beskjed når vi har en bolig som ligner denne, før den legges ut på markedet!






























