Sleiverudlia 7
3 250 000 kr
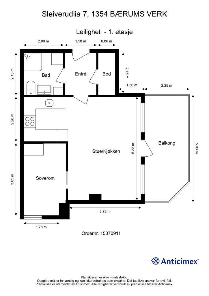
44 m²
1 soverom
Solgt

Bærums Verk
Lys og innbydende 2-roms leilighet i attraktivt og rolig boområde med stor sydvendt balkong|Garasje|Trappefri adkomst
Prisantydning
3 250 000 krAndel fellesgjeld
104 568 krOmkostninger
94 890 krTotalpris
3 449 458 kr
Pris
Bruksareal
47 m²BRA-I (internt bruksareal)
44 m²BRA-E (eksternt bruksareal)
3 m²TBA (terrasse-balkongareal)
11 m²
Areal
Etasje
1Byggeår
1988Soverom
1 soveromBad
1 badType
EierleilighetEierform
EierseksjonFasiliteter
Garasje/P-plass og Balkong/TerrasseFellesutgifter
4 029 krEnergimerke
Rød E
Nøkkelinfo
Unngå doble boligrenter
Vi tilbyr gunstig forsikring.
Vurderer du utleie?
Få et tilbud fra Utleie KrogsveenHva koster lånet?
Sjekk estimert lånekostnadBeskrivelse
Kort om eiendommen
Velkommen til Sleiverudlia 7!
En lys og trivelig 2-roms beliggende i rolige omgivelser på populære Bærums Verk. Her bor du sentralt, men skjermet – med alt du trenger i hverdagen rett i nærheten. Leiligheten har en god og arealeffektiv planløsning
Høydepunkter:
• Trappefri adkomst rett innenfor døren
• Nymalte overflater
• Stor, sydvestvendt balkong – perfekt for morgenkaffen
• Parkeringsplass
• God lagringsplass i innvendig og utvendig bod
• Rolig og hyggelig boområde
• Kort gangavstand til buss og handelssenter
• Nærhet til både skole og barnehager
• Veldrevet borettslag med godt naboskap
Et innbydende hjem med lettstelt planløsning og en beliggenhet det er lett å trives i!
Område
Legg til steder som er viktige for deg
På flyttefot? Tenk kjøp og salg samtidig.
Få din egen rådgiver gjennom hele kjøps- og salgsprosessen. Det starter med en verdivurdering.
Unngå doble boligrenter
Vi tilbyr gunstig forsikring.
Vurderer du utleie?
Få et tilbud fra Utleie KrogsveenHva koster lånet?
Sjekk estimert lånekostnadVil du varsles om lignende boliger?
Ved å lagre ditt boligsøk hos oss får du beskjed når vi har en bolig som ligner denne, før den legges ut på markedet!

