Trondheimsveien 69
5 100 000 kr
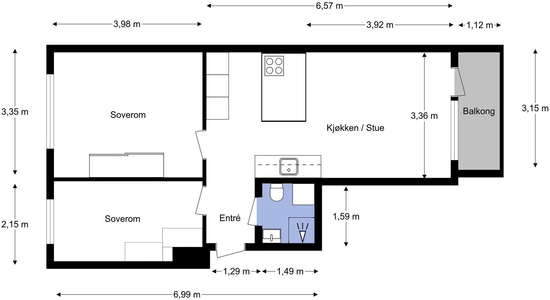
50 m²
2 soverom
Solgt

Presenteres av
Audun Thorp BjørnstadSofienberg/Carl Berner
Stilren og innbydende 3-roms med balkong | Gjennomgående og arealeffektiv planløsning | Sentralt | Fyring og V.v. inkl.
Prisantydning
5 100 000 krAndel fellesgjeld
131 412 krOmkostninger
20 246 krTotalpris
5 251 658 kr
Pris
Bruksareal
57 m²BRA-I (internt bruksareal)
50 m²BRA-E (eksternt bruksareal)
7 m²TBA (terrasse-balkongareal)
4 m²
Areal
Etasje
1Byggeår
1940Soverom
2 soveromBad
1 badType
AndelsleilighetEierform
AndelFasiliteter
Balkong/TerrasseFellesutgifter
4 132 krEnergimerke
Grønn G
Nøkkelinfo
Unngå doble boligrenter
Vi tilbyr gunstig forsikring.
Vurderer du utleie?
Få et tilbud fra Utleie KrogsveenHva koster lånet?
Sjekk estimert lånekostnadBeskrivelse
Kort om eiendommen
Audun Thorp Bjørnstad v/ Krogsveen har gleden av å presentere Trondheimsveien 69! Dette er en stilren og arealeffektiv 3-roms andelsleilighet med en svært sentral beliggenhet på Carl Berner / Rodeløkka. Her bor du med umiddelbar nærhet til «alt» Oslo har å by på. Området byr på et yrende byliv med restauranter og butikker, samt flotte turområder. Denne vil du ikke gå glipp av!
Kvaliteter:
Romslig og arealeffektiv med gjennomgående planløsning
To romslige soverom
Nordvestvendt balkong på ca. 4 kvm
God lagringsplass i to boder
Oppvarming, varmtvann og tv/internett inkludert
Hyggelig borettslag med flotte fellesområder
Sentral og ettertraktet beliggenhet
Område
Legg til steder som er viktige for deg
På flyttefot? Tenk kjøp og salg samtidig.
Få din egen rådgiver gjennom hele kjøps- og salgsprosessen. Det starter med en verdivurdering.
Unngå doble boligrenter
Vi tilbyr gunstig forsikring.
Vurderer du utleie?
Få et tilbud fra Utleie KrogsveenHva koster lånet?
Sjekk estimert lånekostnadVil du varsles om lignende boliger?
Ved å lagre ditt boligsøk hos oss får du beskjed når vi har en bolig som ligner denne, før den legges ut på markedet!
På flyttefot? Slik gjør vi det enklere for deg
Skreddersydd flyttepakke
Vi fikser håndverkere, vask, pakking, lagring og transport, og legger ut for utgiftene underveis.
Hjelp med både kjøp og salg
Hos oss har du din egen rådgiver gjennom hele kjøps- og salgsprosessen.
Hjelp til finansiering
Vårt samarbeid med BN Bank sikrer deg rask og løsningsorientert hjelp, til konkurransedyktige betingelser.































