Oserødveien 121
5 250 000 kr
171 m²
4 soverom
Solgt

Nøtterøy/Torød
BUD INNKOMMET! Pen og velholdt enebolig beliggende i landlige og naturskjønne omgivelser på Torød. Sol hele dagen!
Prisantydning
5 250 000 krOmkostninger
152 240 krTotalpris
5 402 240 kr
Pris
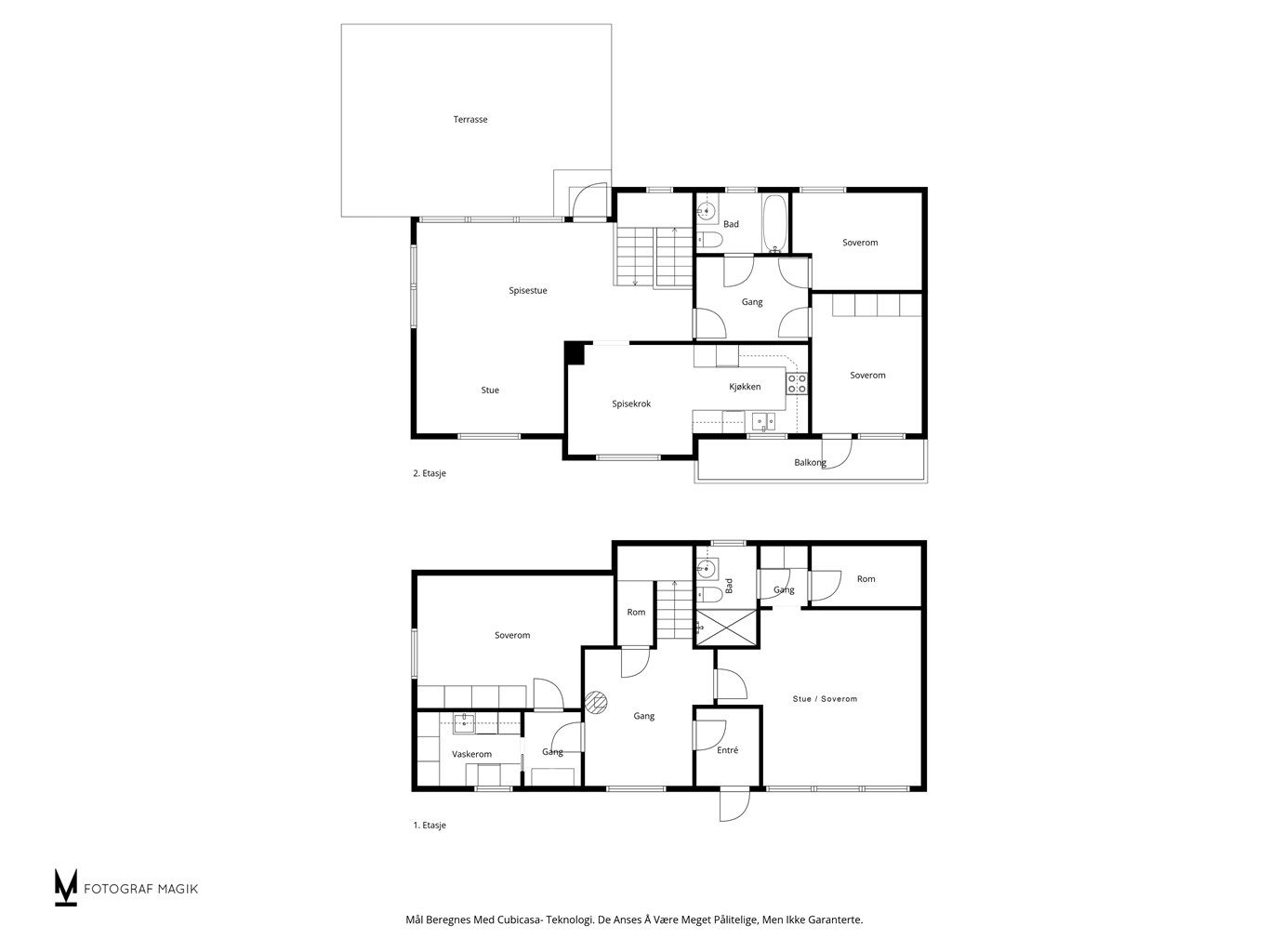
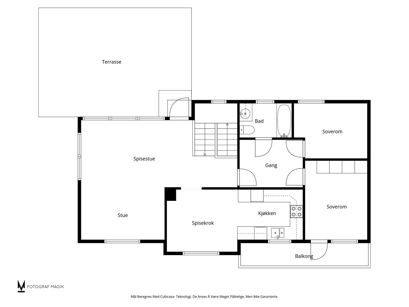
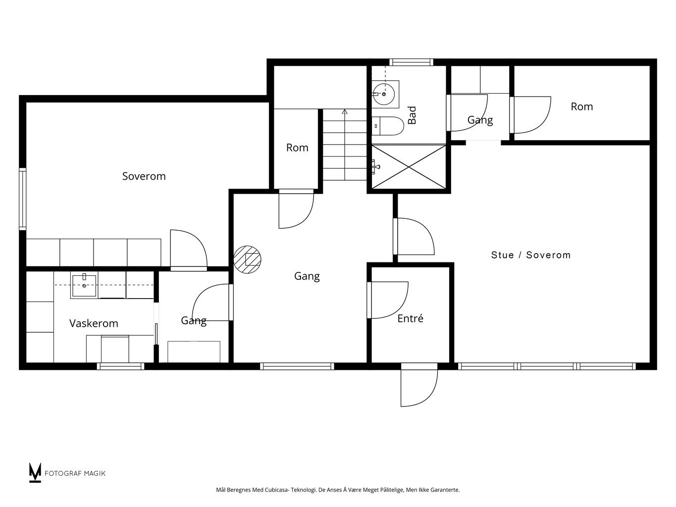
Bruksareal
205 m²BRA-I (internt bruksareal)
171 m²BRA-E (eksternt bruksareal)
34 m²TBA (terrasse-balkongareal)
43 m²
Areal
Byggeår
1976Soverom
4 soveromBad
2 badTomteareal
1 528 m² (eiet)Type
Enebolig - FrittliggendeEierform
EietFasiliteter
Garasje/P-plass og Balkong/TerrasseEnergimerke
Oransje G
Nøkkelinfo
Unngå doble boligrenter
Vi tilbyr gunstig forsikring.
Vurderer du utleie?
Få et tilbud fra Utleie KrogsveenHva koster lånet?
Sjekk estimert lånekostnadBeskrivelse
Kort om eiendommen
Velkommen til en romslig og innbydende enebolig over to etasjer med dobbel garasje. Eiendommen ligger fint og solrikt til på Torød – på en stor, pent opparbeidet tomt med god plass til både lek og hageglede. Boligen fremstår som solid og godt vedlikeholdt, med en rekke oppgraderinger utført siden eier kjøpte i 2005. Boligen er svært innholdsrik, går over to plan og inneholder entré/hall, tv-stue/soverom, vaskerom, tre soverom, to bad, stue, kjøkken samt flere boder.
En flott familiebolig med mange gode kvaliteter!
Område
Legg til steder som er viktige for deg
På flyttefot? Tenk kjøp og salg samtidig.
Få din egen rådgiver gjennom hele kjøps- og salgsprosessen. Det starter med en verdivurdering.
Unngå doble boligrenter
Vi tilbyr gunstig forsikring.
Vurderer du utleie?
Få et tilbud fra Utleie KrogsveenHva koster lånet?
Sjekk estimert lånekostnadVil du varsles om lignende boliger?
Ved å lagre ditt boligsøk hos oss får du beskjed når vi har en bolig som ligner denne, før den legges ut på markedet!

