Mosserødveien 34
6 990 000 kr
191 m²
4 soverom
Solgt

Mosserød
BUD INNKOMMET! Rålekker enebolig i et meget barnevennlig område - 2 Delikate bad - Kjellerstue - Stor solrik hage - Solcelletak
Prisantydning
6 990 000 krOmkostninger
195 740 krTotalpris
7 185 740 kr
Pris
Bruksareal
235 m²BRA-I (internt bruksareal)
191 m²BRA-E (eksternt bruksareal)
44 m²TBA (terrasse-balkongareal)
46 m²
Areal
Etasje
3Byggeår
1955Soverom
4 soveromBad
2 badTomteareal
830 m² (eiet)Type
Enebolig - FrittliggendeEierform
EietFasiliteter
Garasje/P-plass og Balkong/TerrasseEnergimerke
Gul F
Nøkkelinfo
Unngå doble boligrenter
Vi tilbyr gunstig forsikring.
Vurderer du utleie?
Få et tilbud fra Utleie KrogsveenHva koster lånet?
Sjekk estimert lånekostnadBeskrivelse
Kort om eiendommen
Velkommen til Mosserødveien 34 – en moderne og innholdsrik enebolig i et barnevennlig og populært boligområde.
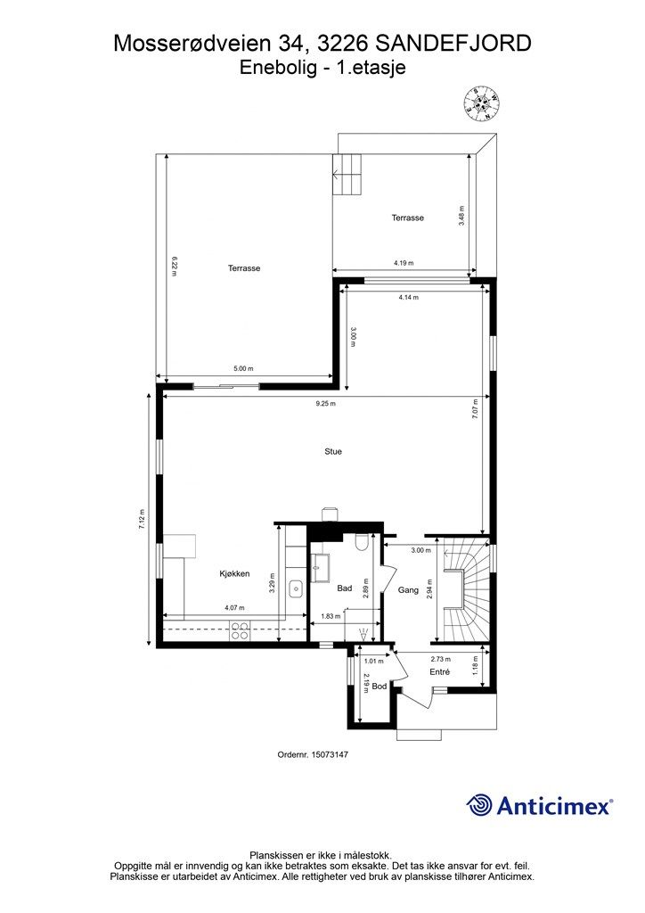
Boligen har en romslig stue med delvis åpen kjøkkenløsning, stilrent kjøkken med steinbenkeplate og integrerte hvitevarer. Fra stuen er det utgang til en stor, solrik terrasse med pergola, utekjøkken og trapp ned til en skjermet hage som passer perfekt for lek og avslapning. Boligen har 4 soverom, 2 lekre flislagte bad, separat toalett, vaskerom og en romslig kjellerstue – ideell som TV-rom eller ungdomsavdeling. God lagringsplass og praktiske løsninger.
Kort vei til skole, barnehage, turområder og dagligvare. Solcellepaneler, smarthusfunksjoner og ventilasjonsanlegg sørger for lavere strømforbruk og moderne komfort.
Område
Legg til steder som er viktige for deg
På flyttefot? Tenk kjøp og salg samtidig.
Få din egen rådgiver gjennom hele kjøps- og salgsprosessen. Det starter med en verdivurdering.
Unngå doble boligrenter
Vi tilbyr gunstig forsikring.
Vurderer du utleie?
Få et tilbud fra Utleie KrogsveenHva koster lånet?
Sjekk estimert lånekostnadVil du varsles om lignende boliger?
Ved å lagre ditt boligsøk hos oss får du beskjed når vi har en bolig som ligner denne, før den legges ut på markedet!

