Bertha Skjolds vei 16B
4 050 000 kr
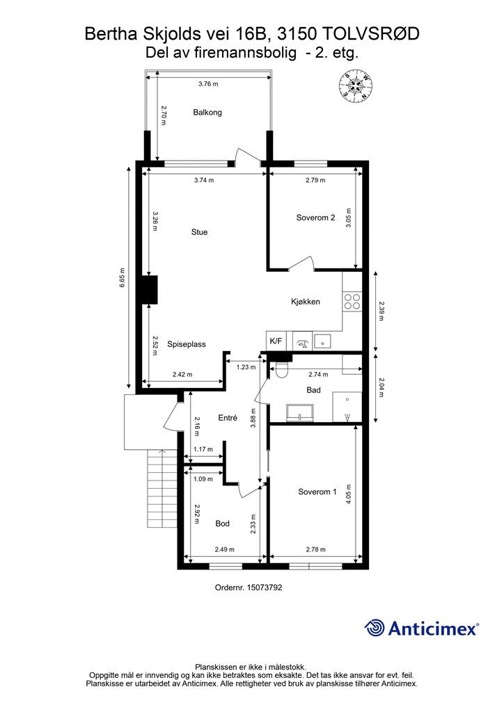
73 m²
2 soverom
Solgt

Sandeåsen
Lekker eierleilighet med god standard i populært boligområde! Romslig solfylt balkong mot vest - 2 soverom - parkering
Prisantydning
4 050 000 krOmkostninger
112 290 krTotalpris
4 162 290 kr
Pris
Bruksareal
78 m²BRA-I (internt bruksareal)
73 m²BRA-E (eksternt bruksareal)
5 m²TBA (terrasse-balkongareal)
10 m²
Areal
Etasje
2Byggeår
2021Soverom
2 soveromBad
1 badType
EierleilighetEierform
EierseksjonFasiliteter
Balkong/TerrasseFellesutgifter
2 110 krEnergimerke
Rød B
Nøkkelinfo
Unngå doble boligrenter
Vi tilbyr gunstig forsikring.
Vurderer du utleie?
Få et tilbud fra Utleie KrogsveenHva koster lånet?
Sjekk estimert lånekostnadBeskrivelse
Kort om eiendommen
Krogsveen v/Eirik Varmo presenterer en lun og attraktiv leilighet med god takhøyde, gode lysforhold og en romslig planløsning. Denne leiligheten byr på godt med ettermiddags/kveldssol, som kan nytes fra en romslig balkong med plass til flere sittegrupper og utsikt til omkringliggende og rolige omgivelser.
Leiligheten har to gode soverom med mulighet for et tredje soverom, en romslig åpen stue/kjøkkenløsning med moderne kjøkkeninnredning fra Huseby, et pent flislagt bad, samt en gang med god plass for å henge av seg yttertøyet. Egen parkeringsplass utenfor døren som også har klargjort til montering av el-bil lader.
Leiligheten er oppmalt i en lun og moderne farge og har gode møbleringsmuligheter med plass til både spisestue og sittegruppe.
Velkommen til hyggelig visning!
Område
Legg til steder som er viktige for deg
På flyttefot? Tenk kjøp og salg samtidig.
Få din egen rådgiver gjennom hele kjøps- og salgsprosessen. Det starter med en verdivurdering.
Unngå doble boligrenter
Vi tilbyr gunstig forsikring.
Vurderer du utleie?
Få et tilbud fra Utleie KrogsveenHva koster lånet?
Sjekk estimert lånekostnadVil du varsles om lignende boliger?
Ved å lagre ditt boligsøk hos oss får du beskjed når vi har en bolig som ligner denne, før den legges ut på markedet!

