Skåreråsen 16
2 500 000 kr
73 m²
2 soverom
Solgt

Lørenskog / Skåreråsen
Luftig 3-r oppussingsobjekt i 10. etasje | 14 m² vestvendt innglasset balkong | Garasje | Bad 2018 | V.v/fyring inkl
Prisantydning
2 500 000 krAndel fellesgjeld
429 032 krOmkostninger
19 252 krTotalpris
2 948 284 kr
Pris
Bruksareal
92 m²BRA-I (internt bruksareal)
73 m²BRA-E (eksternt bruksareal)
5 m²
Areal
Etasje
10Byggeår
1972Soverom
2 soveromBad
1 badType
AndelsleilighetEierform
AndelFasiliteter
Garasje/P-plass, Heis og Balkong/TerrasseFellesutgifter
8 476 krEnergimerke
Grønn E
Nøkkelinfo
Unngå doble boligrenter
Vi tilbyr gunstig forsikring.
Vurderer du utleie?
Få et tilbud fra Utleie KrogsveenHva koster lånet?
Sjekk estimert lånekostnadBeskrivelse
Kort om eiendommen
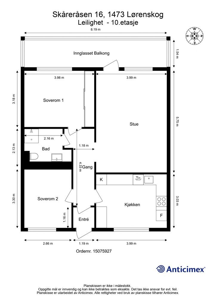
Skåreråsen 16 er en 3-roms leilighet beliggende fritt og luftig i 10. etasje. Her har du enkel adkomst via heis til leilighetsplan og en praktisk planløsning som består av entré/gang, baderom rehabilitert i regi av borettslaget i 2018, to soverom, separat kjøkken og en romslig stue med store vindusflater. Fra stuen er det utgang til en vestvendt innglasset balkong på ca. 14 m², med bred og langstrakt utsikt.
Leiligheten holder en eldre standard, men med et nyere bad. Her får du en flott mulighet til å modernisere etter egen smak og skape ditt drømmehjem!
- To boder.
- Garasjeplass med mulighet for el.bil lader.
- Oppvarming, varmtvann, TV og internett inkl.
Beliggenheten er både rolig og tilbaketrukket, samtidig som du bor med kort avstand til alt du trenger i hverdagen.
Område
Legg til steder som er viktige for deg
På flyttefot? Tenk kjøp og salg samtidig.
Få din egen rådgiver gjennom hele kjøps- og salgsprosessen. Det starter med en verdivurdering.
Unngå doble boligrenter
Vi tilbyr gunstig forsikring.
Vurderer du utleie?
Få et tilbud fra Utleie KrogsveenHva koster lånet?
Sjekk estimert lånekostnadVil du varsles om lignende boliger?
Ved å lagre ditt boligsøk hos oss får du beskjed når vi har en bolig som ligner denne, før den legges ut på markedet!

