Grinderstubben 7A
3 450 000 kr
118 m²
3 soverom
Komplett salgsoppgave

Innholdsrik og barnevennlig 1/2-part tomannsbolig | 3 soverom, 2 stuer, 2 bad | Solrike uteplasser og stor usjenert tomt
Prisantydning
3 450 000 krOmkostninger
107 240 krTotalpris
3 557 240 kr
Pris
Bruksareal
122 m²BRA-I (internt bruksareal)
118 m²BRA-E (eksternt bruksareal)
4 m²TBA (terrasse-balkongareal)
52 m²
Areal
Etasje
2Byggeår
2011Soverom
3 soveromBad
2 badType
Halvpart vertikaldelt boligEierform
EierseksjonFasiliteter
Balkong/TerrasseEnergimerke
Lysegrønn C
Nøkkelinfo
Unngå doble boligrenter
Vi tilbyr gunstig forsikring.
Vurderer du utleie?
Få et tilbud fra Utleie KrogsveenHva koster lånet?
Sjekk estimert lånekostnadBeskrivelse
Kort om eiendommen
Griderstubben 7A - En lys og tiltalende halvpart tomannsbolig, over to etasjer. Første etasje byr på en flislagt entré med gulvvarme, en hyggelig stue med vedovn, et praktisk kjøkken med hvitevarer, helfliset bad og hovedsoverom. Fra stuen er det utgang til en romslig terrasse på 34 m² med direkte tilgang til hagen som innbyr til lek og moro for store og små.
I andre etasje finner du en ekstra stue med utgang til balkong, et baderom og to soverom. Boligen har god lagringsplass i sportsbod ved inngangspartiet, samt godt med parkering på egen gårdsplass.
Eiendommen ligger i et koselig og idyllisk område på Fenstad, med umiddelbar nærhet til barnehage og kort vei til barneskole, Joker Fenstad og Fenstad stadion. Det er også bussholdeplass i hovedveien med forbindelse mot Eidsvoll og Årnes.
Innhold og byggemåte
Innhold og byggemåte
Eiendommen
Grinderstubben 7A, 2170 FENSTAD
Kommunenummer 3228, gårdsnummer 14, bruksnummer 193, seksjonsnummer 2, ideell andel 1/1
Innhold
Totalt bruksareal BRA: 122 kvm
BRA-i:
Tomannsbolig :
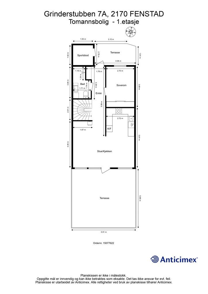
1. etasje 59 kvm: Entré, soverom, bad, stue/kjøkken.
2. etasje 59 kvm: Gang, stue, to soverom, bad.
BRA-e:
Tomannsbolig :
1. etasje 4 kvm: Sportsbod.
Åpent areal:
Tomannsbolig :
1. etasje 45 kvm: Terrasser.
2. etasje 7 kvm: Balkong.
Vedlagte plantegninger er ikke målbare. De oppgitte arealer er hentet fra rapport med befaringsdato 16.01.2026 utført av Anticimex AS. Arealene er beregnet og rom er definert etter dagens faktiske bruk, uavhengig av hva som er godkjent av bygningsmyndighetene.
Det gjøres oppmerksom på at en bod i 2.etasje er blitt innlemmet i bad. Se pkt. ferdigattest for ytterligere informasjon.
Byggemåte
Selger har fått utarbeidet en tilstandsrapport, dvs. en teknisk gjennomgang av boligen hvor eventuelle avvik, risiko for kjøper og prisoverslag for hva som bør gjøres av oppgradering, er skissert. Se særskilt TGIU (tilstandsgrad ikke undersøkt), samt TG2 og TG3 som viser hva som er boligens normale slitasje, alder og type, hva som er avvik fra dette og hva som bør/må utbedres. Rapporten og selgers egenerklæring er en del av salgsoppgaven og må leses nøye før bud inngis. Kjøper overtar ansvaret for de opplysninger som fremkommer av salgsdokumentasjonen, og kan ikke gjøre gjeldende som mangel noe som burde vært kjent eller som ikke kan anses å ha betydning for avtalen.
Bygningen er iht. tilstandsrapporten oppført med støpt plate på mark med ringmur og bærende konstruksjoner av betongkonstruksjoner. Yttervegger av bindingsverk utvendig kledd med liggende trepanel. Etasjeskillere av trekonstruksjoner og betong. Takkonstruksjonen av saltaksform utvendig tekket med takstein. Les for øvrig mer om byggemåte og den tekniske tilstanden i rapporten.
Det gjøres spesielt oppmerksom på:
Øvrige rom: Det registreres stedvise riper/hakk/merker i gulvets overflatemateriale. Det registreres moderate tegn til bomlyd (tegn til hulrom) under enkelte gulvfliser.
Frittstående byggverk - Frittstående bod.: Mindre frittstående byggverk på tomten har ikke vært gjenstand for detaljerte undersøkelser. Overordnet forenklet vurdering av tilstanden er at det er relativt høy slitasjegrad som gjør at det anbefales utbedrende tiltak.
Selger informerer videre:
- Lysarmaturet i ventilatoren over komfyren har slitt plast og festet har løsnet noe. Armaturet fungerer som normalt, men pæreskift kan være litt krevende.
Se supplerende tekst i tilstandsrapporten. Kjøper overtar ansvar og risiko for dette.
Standard
En lys og tiltalende halvpart tomannsbolig, over to etasjer. Første etasje byr på en flislagt entré med gulvvarme, en hyggelig stue med vedovn, et praktisk kjøkken med hvitevarer, helfliset bad og hovedsoverom. Fra stuen er det direkte utgang til en romslig terrasse på 34 m² med direkte tilgang til hagen som innbyr til lek og moro for store og små.I andre etasje finner du en ekstra stue med utgang til balkong, et baderom og to soverom. Boligen har god lagringsplass i sportsbod ved inngangspartiet, samt parkering på egen gårdsplass.
Entré:
Det er adkomst til boligen via gruslagt gårdsplass til overbygget inngangsparti. Ved inngangspartiet er det plass til kafé-sett og grønne vekster. Det er i tillegg ekstra lagringsplass i tilhørende sportsbod. Inne i boligen blir du møtt av en flislagt entré med behagelig gulvvarme.
Kjøkken:
Stue og kjøkken i 1. etasje ligger i en praktisk, åpen løsning. Ved kjøkkenet er det plass til stort spisebord hvor du kan dekke på og invitere inn til sosiale sammenkomster og hyggelige måltider. Lys kjøkkeninnredning med glatte fronter, benkeplater i laminat, oppvaskkum med ett-greps blandebatteri og ventilator over kokesonen. Frittstående komfyr med keramisk platetopp. Komfyrvakt. Mekanisk kjøkkenventilator. Frittstående oppvaskmaskin. Hvitevarer medfølger. Det gjøres oppmerksom på at hvitevarene er kjøpt for noen år tilbake, og kjøper må forvente slitasje som følge alder og normal bruk
Stue:
Boligen har stuer i begge etasjer, noe som gir familien ekstra spillerom i hverdagen. Stuen i 1. etasje har vedovn som gir ekstra hygge og varme på kjølige høst- og vinterkvelder. Utgang til delvis overbygget terrasse på 34 m2 som blir en naturlig forlengelse av stuen på sommertid. Terrassen ligger skjermet til og har god plass til det du ønsker av utemøbler. Et herlig sted å nyte sommeren med grilling og hyggelig selskap. Fra terrassen er det direkte adkomst til den grønne og barnevennlige hagen med skogen i bakkant.
Bad:
Helfliset baderom i 1. etasje. Vegghengt servantskap med heldekkende servant og ettgreps armatur. Speil over servant med overlys. Dusjnisje med dusjforheng og dusjarmatur. Gulvmontert toalett. Opplegg for vaskemaskin.
I 2. etasje kan ungdommene i huset få sin egen avdeling med TV-stue. Fra stuen er det utgang til balkong på 7 m2.
Baderom i 2. etasje fra 2019. Flislagt gulv med elektrisk gulvvarme. Veggflater kledd med våtromsplater. Malt himlingflate med downlights. Vegghengt servantskap med heldekkende servant og ett-greps armatur. Speilskap over servant med overlys. Dusjnisje med innfellbare glassdører og dusjarmatur. Innebygget sisterne med vegghengt klosett.
Soverom:
Boligen har til sammen tre soverom. Hovedsoverommet i 1. etasje har plass til dobbeltseng og oppbevaring i stor garderobeløsning. De to andre soverommene ligger i 2. etasje og passer fint som barnerom eller gjesterom.
Innvendige overflater:
Gulv: Parkett og fliser.
Vegger: Malte flater og fliser.
Himling: Malt himling.
Løsøre og tilbehør
Vi viser til liste fra Norges Eiendomsmeglerforbund som gjelder fra 01.01.2020 angående løsøre og tilbehør.
Oppvarming
Boligen er oppvarmet elektrisk i kombinasjon med vedfyring. Varmekabler i entrè og begge bad.
Dersom beboelsesrom ikke har vegg- eller fastmonterte varmekilder ved visning, følger dette heller ikke med.
Ferdigattest/brukstillatelse
Det foreligger ferdigattest på tomannsboligen, datert 29.11.2011. Denne kan fås ved henvendelse til megler.
Det gjøres oppmerksom på at en bod i 2.etasje er innlemmet i bad jf. byggetegninger og er ikke bruksendret/omsøkt og er heller ikke godkjent av kommunen. Konsekvensen ved søknad kan være at rommet ikke godkjennes og at badet må gjøres mindre og rommet som er innlemmet i bad må brukes som bod/midlertidig oppbevaring.
Kjøper overtar alt ansvar, kostnad og risiko for dette videre.
Tinglyste heftelser og rettigheter
Eiendommen overdras fri for pengeheftelser.
Det er ingen tinglyste servitutter på eiendommen.
Eventuell adgang til utleie
Eiendommen har ikke separat utleieenhet. Det vil normalt være anledning til utleie av hele eiendommen eller enkeltrom, såfremt utleiearealet er bygningsmessig godkjent for varig opphold og har forsvarlige radonnivåer.
Beliggenhet og tomteforhold
Beliggenhet og tomteforhold
Beliggenhet
Flott halvpart tomannsbolig beliggende i Fenstad. Fenstad er et lite sted i Nes kommune i Akershus. Stedet er preget av vakker natur og rik tilgang på friluftsaktiviteter. Flere store gårdsbruk som driver kornproduksjon ligger i bygda. Ferdselsåren gjennom bygda er Riksvei 177 som går fra Minnesund til Årnes. Eiendommen har gode lys- og solforhold, fine tur og friluftsmuligheter i nærområdet.
Kollektiv transport
Fra Grinderstubben er "Fenstadgarasjen" er den nærmeste bussholdeplassen. Herfra går det buss til Årnes og Eidsvoll. Fra Årnes går det lokaltog til Oslo.
Kun ti minutter til Haugseter leir med gode togforbindelser. Her har man også gratis pendlerparkering.
Nes Skianlegg
Nes skianlegg ligger i Fenstad. Skianlegget har mye å by på som:
* Fis godkjente langrennsløyper(1, 2, 3 og 5 km)
* Rulleskibane(1,3km)
* Hoppbakke(K15)
* Snowboardbakke med skitrekk
* Kunstsnøanlegg
Anlegget er åpent for allmennheten. Sjekk: www.nesski.no for mer informajson.
Bademuligeter
Forbi skianlegget og videre innover er det om sommeren flere flotte bademuligheter. Blandt annet Merrahølen som har en liten sandstrand og flytebrygge. Veien går også videre oppover helt fram til Vika med parkeringsplass. Herfra er det også skiltet og merket opp til en av de høyeste punktene i Nes, Vardehøgda som ligger 410 m.o.h. Her er det flott utsikt. Stien passerer forbi Dalsjøhytta og Dalsjøen.
Ellingsjøen har også flotte bade og turmuligheter med gapahuker og sti rundt vannet. Fint å padle kano og nyte sommerværet.
Fiskemuligheter
Kampåa er en liten elv som renner fra Utsjøen på grensen til Eidsvoll og har utløp i Glomma ved Oppaker. Størstedelen av nedbørsfeltet til elva er i Eidsvoll, og Nord-Odal i Hedmark. I øvre deler renner den gjennom skogen, mens nedre parti renner stille gjennom kulturlandskapet. Åa kan tilby godt ørret/abbor fiske, og er mye besøkt i sommer halvåret. Fine muligheter for telting/overnatting oppe ved Kampåvegen, nord i Fenstad. Våre skogsvann er også å anbefale. Spesielt Ellingsjøen, hvor det tas stor ørret/abbor hvert år.
Svanefossen
Svanfossen er en foss i elva Vorma som renner igjennom Fenstad. Fossen vart bygd ut første gang i 1859, som en dam som skulle øke vannstanden i Vorma. Slik at man lettere kunne få til helårstrafikk mellom Mjøsa og Eidsvoll i de øvre delene av Vorma.
På denne måten kunne jernbanen fra Oslo korrespondere med dampbåtene til de tre mjøsbyene og videre frakte både folk og gods fra Lillehammer nordover Gudbrandsdalen til Trondheim.
Fenstad SPA
Gangavstand til Fenstad SPA AS som er et privat og eksklusivt Spa hvor man kan koble av fra hverdagens stress og nyte et rikt utvalg av flotte ansikt - og kroppsbehandlinger. Fenstad SPA holder til i et stille og fredfullt område hvor man slipper parkeringsavgifter og mangel på plass. Gå inn på www.fenstadspa.no for mer informajson
Nærbutikk
Joker Fenstad er bygget ut og blitt en stor og flott butikk. Her har man post i butikk og tipping. Butikken ligger en kort kjøretur fra boligen.
Avstander med bil:
Jessheim ca. 20 min
Gardermoen ca. 20 min
Oslo ca. 45 min
Adkomst
Fra Oslo:
Kjør E6 nordover mot Trondheim. Ved Kløfta følg skilting mot Kongsvinger og E16. Følg veien helt til du har kommet over Vormsundbrua. I rundkjøringen etter brua, ta til venstre mot Eidsvoll. Følg veien helt til du kjører inn i Fenstad. Kjør forbi bensinstasjonen og barneskolen på høyre side og forbi Joker butikken som vil komme på din venstre side. Etter butikken skal man ta første kryss inn til venstre ved Fenstad SPA og Hårstua. Grinderstubben ligger nå på din venstre side. Det vil bli skiltet med Krogsveen visningsskilter ved fellesvisninger.
Barnehager, skoler og fritid
Espira Furuholmen åpnet i 2005 og ligger i Grinderstubben, kun noen hus i mellom. Skogen innenfor gjerdet, hvor barna kan plukke molter og blåbær om høsten. Om vinteren er det skiløyper like utenfor gjerdet, og mange fine akebakker i nærheten av barnehagen.
Fenstad skole ligger sentralt i bygda. Selve skolen har eksistert siden 1858 og opp gjennom årene har den vært modernisert og utbygd flere ganger.
Vormsund ungdomsskole ligger et steinkast fra Vorma, og med utsikt til Nes golfklubbs bane. Det går buss fra nærmeste bussholdeplass til ungdomsskolen. Elevene kommer fra de tre barneskolene Fenstad, Neskollen og Skogbygda.
Nes Videregående skole er den største skolen i kommunen, og har et bredt utvalg av studieretninger som kan passe enhver.
Informasjon om tilhørende skolekretser er hentet fra Prognosesenteret som dataleverandør, og tilhørigheten kan årlig endres av kommunen. Dersom skole- og barnehagetilbud er av betydning for kjøpet, ber vi om at det rettes en særskilt henvendelse til kommunen for oppdatert informasjon.
Beskrivelse av tomt
Eiertomt på 529 kvm. Tomteareal opparbeidet med biloppstillingsplasser, plenarealer, prydbusker, trær og diverse beplantning.
Parkering
Godt med parkeringsmuligheter på egen tomt.
Vei, vann og avløp
Eiendommen har adkomst via privat vei med felles vedlikeholdsansvar.
Eiendommen er tilknyttet kommunalt ledningsnett via private stikkledninger. Eier er selv ansvarlig for private stikkledninger til boligen.
Regulerings-og arealplaner
Eiendommen er regulert til konsentrert småhusbebyggelse i henhold til reguleringsplan Furuholmen og Korsvoll datert 22.10.2002 med tilhørende reguleringsbestemmelse.
Avsatt i kommuneplanen til boligbebyggelse, nåværende.
Utsnitt av plan med tilhørende bestemmelser kan fås ved henvendelse til megler.
Økonomi
Økonomi
Kommunale utgifter
Kommunale avgifter er kr 20.733,- for inneværende år. I dette inngår gebyr for eiendomsskatt, vann, avløp, renovasjon og feiing/tilsyn.
Nåværende eier har et strømforbruk som tilsvarer ca. kr 13.465 kwh. pr. år.
Boligen har en årlig forsikringspremie på kr 7.604.
Veiavgift er kr 1.500 pr. år.
Boligen er tilknyttet Viken Fiber som leverandør av fiber og har avgift på kr 1.339 pr. mnd. Tv-tuner/dekoder medfølger.
Utgiftene er basert på nåværende eiers forbruk og avtaler.
Formuesverdi
Formuesverdi for 2023 var kr 851 330,- ifølge skatteetaten. Beløpet forutsetter at eier bor fast i boligen (primærbolig).
Ved eventuell øvrig bruk av eiendommen (f.eks. fritidsbolig, pendlerbolig, utleieobjekt) var formuesverdien for 2023 kr 3 405 320,-.
Formuesverdien justeres normalt årlig. Se skatteetaten.no for mer informasjon om fastsettelse av formuesverdien.
Eiendomsskatt
Eiendomsskatten utgjør kr. 2.825 pr år. Disse faktureres og er medregnet i de kommunale avgiftene som nevnt over.
Omkostninger
3 450 000,00 Prisantydning
Omkostninger
86 250,00 Dokumentavgift til staten (2,5% av kjøpesum)
19 900,00 Gjensidige Boligkjøperpakke (valgfri)
545,00 Tinglysing panterettsdokument
545,00 Tinglysing skjøte
--------------------------------------------------------
107 240,00 Omkostninger totalt
--------------------------------------------------------
3 557 240,00 Totalpris inkl. omkostninger
--------------------------------------------------------
Tilbud om lånefinansiering
Megler formidler gjerne kontakt med rådgiver hos vår samarbeidspartner BN Bank. De har konkurransedyktige betingelser samt rask og løsningsorientert behandling av din lånesøknad. Krogsveen mottar et honorar dersom lån opprettes.
Betalingsbetingelser
Kjøpesum inkludert omkostninger, samt pantedokument tilknyttet eventuelt lån, skal være disponibelt hos megler 2 virkedager før overtagelsen.
Annen viktig informasjon
Annen viktig informasjon
Eier
Kari Elisabeth Julsrud
Informasjon om forkjøpsrett
Eiendommen er seksjonert, og tomannsboligen er tilknyttet Grinderstubben 7A og B sameie, med sameiebrøk 1/2.
Sameiet har ikke forretningsfører eller styre, og det føres ikke regnskap eller budsjett. Dersom det mottas felles regninger til sameiet vil kostnader bli fordelt etter nærmere regler angitt av sameiet, vanligvis etter sameiebrøk eller vedtekter.
Dokumenter for sameiet og kopi av seksjonsbegjæringen kan fås ved henvendelse til megler.
Overtakelse
Etter nærmere avtale.
Boligselgerforsikring
Selger har i forbindelse med salget tegnet boligselgerforsikring levert av Gjensidige.
Boligselgerforsikringen dekker selgers ansvar etter avhendingsloven begrenset oppad til kr 14 millioner. Dersom kjøper oppdager forhold ved eiendommen som hen mener utgjør en mangel ved eiendommen, vil Gjensidige behandle reklamasjonen på vegne av selger. Forsikringsvilkår kan fås ved henvendelse til megler.
Vedlagt salgsoppgaven følger selgers egenerklæringsskjema og tilstandsrapport. Interessenter må sette seg inn i dokumentene før bud inngis.
Boligkjøperforsikring
Innen kontraktsmøtet må kjøper ta stilling til om det ønskes å bestille Boligkjøperpakken gjennom Gjensidige. I denne gunstige pakken er boligen ferdig forsikret og inkluderer rettshjelpsforsikring, også kalt Boligkjøperforsikring. Rettshjelpsforsikring gir trygghet og tilgang på profesjonell juridisk hjelp dersom det oppdages uventede feil eller mangler det første året etter overtagelse. Forsikringsselskapet behandler i så fall ethvert mangelskrav kjøper måtte ha overfor selger.
Boligkjøperpakken inkluderer bygningsforsikring for hus og hytte, innboforsikring, flytteforsikring og dobbel rentedekning - i situasjoner hvor kjøper ikke får solgt nåværende primærbolig.
Kjøper mottar ingen særskilt faktura for Boligkjøperpakken da kostnaden det første året legges til kjøpesummen for boligen. Det gjøres oppmerksom på Krogsveen mottar et honorar for denne formidlingen.
Produktark for Boligkjøperpakken ligger vedlagt i salgsoppgaven.
Dersom ikke boligkjøperpakke ønskes kan kun rettshjelpsforsikring, også kalt boligkjøperforsikring, tegnes særskilt via megler. Rettshjelpsforsikringen varer i 5 år fra overtagelse og leveres gjennom Gjensidige. Ta kontakt med megler for ytterligere informasjon.
Selskap og privatpersoner som driver med kjøp/salg/utvikling som ledd i egen næringsvirksomhet kan ikke tegne boligkjøperpakke eller rettshjelpsforsikring.
Budgivning
Forbrukerinformasjon om budgivning er vedlagt denne salgsoppgaven og er også på vår hjemmeside Krogsveen.no. Alle bud og budforhøyelser må inngis skriftlig. I tillegg må legitimasjon være fremlagt sammen med signatur fra budgiver.
Vi oppfordrer til å gi bud elektronisk via GI BUD-knappen på eiendommens hjemmeside på Krogsveen.no. Da vil samtlige vilkår bli oppfylt.
Eventuelle forhøyelser eller endringer av budet kan bekreftes pr SMS eller på e-post. Vi oppfordrer alltid til å kontakte megler pr. telefon i tillegg da forsinkelser i SMS og e-post kan forekomme.
For at budene skal kunne bli behandlet og videreformidlet skriftlig til alle involverte parter, må alle bud ha en tilstrekkelig lang akseptfrist, jf. eiendomsmeglingsforskriften § 6-3.
Selger må også skriftlig akseptere budet før aksept kan formidles til budgiver. Akseptfrist bør derfor være på minimum 30 minutter, og budforhøyelser må derfor skje i god tid før fristens utløp.
Bud i forbrukerforhold kan uansett ikke settes med kortere frist enn kl. 12.00 første virkedag etter siste annonserte visning. I tillegg kan ikke budet ha forbehold om at det skal holdes hemmelig ovenfor øvrige interessenter. Megler har iht lov om eiendomsmegling ikke anledning til å videreformidle disse budene, og de vil dermed heller ikke bli journalført.
Etter at eiendommen er solgt vil kjøper og selger få tilsendt budjournal. Øvrige budgivere kan få utlevert kopi av budjournalen i anonymisert form.
Hvitvaskingsreglene
I henhold til lov om hvitvasking og terrorfinansiering har megler plikt til å gjennomføre kontrolltiltak overfor kunder, herunder fullmektiger. Dette innebærer bl.a. å bekrefte kunders og reelle rettighetshaveres identitet på bakgrunn av fremvist gyldig legitimasjon eller på annen godkjent måte, samt å innhente opplysninger om kundeforholdets formål og tilsiktede art.
Dersom slike kundetiltak ikke kan gjennomføres, kan megler ikke etablere kundeforholdet eller utføre transaksjonen.
Hvis kjøper ikke bidrar til gjennomføring av kundekontrollen og dette fører til at transaksjonen blir forsinket eller ikke kan gjennomføres, vil dette ansees som mislighold av avtalen og gi selger rettigheter etter avhendingslova kapittel 5. I tilfeller der selger ikke bidrar til gjennomføring av løpende kundekontroll underveis i oppdraget, er det selger som misligholder sine forpliktelser etter avtalen og gi kjøper rettigheter etter avhendingslovens kapittel 4. Partene er selv ansvarlige for eventuelle kostnader og ansvar dette kan medføre. Eiendomsmegleren eller eiendomsmeglingsforetaket kan ikke holdes ansvarlig for de konsekvenser dette vil kunne få for partene eller andre som har interesser i eiendomshandelen.
Kjøper oppfordres til å innbetale kjøpesummen som ikke kommer fra låneinstitusjon i én samlet innbetaling fra egen konto i norsk bank. Megler har plikt til å melde fra til Økokrim om eiendomshandler som fremstår som mistenkelige. Melding sendes Økokrim uten at partene varsles.
Personopplysningsloven
I henhold til personopplysningsloven gjør vi oppmerksom på at interessenter kan bli registrert for videre oppfølging.
Lovanvendelse
Generelle bestemmelser
Salgsoppgaven er basert på de opplysningene selger har gitt til megler, den bygningssakyndiges tilstandsrapport, samt opplysninger innhentet fra kommunen, Kartverket og andre tilgjengelige kilder. Det er viktig at kjøper setter seg grundig inn i alle salgsdokumentene, herunder salgsoppgave, tilstandsrapport og selgers egenerklæring. Kjøper anses kjent med forhold som er tydelig beskrevet i salgsdokumentene, og slike forhold kan ikke påberopes som mangler. Dette gjelder uavhengig av om kjøper har lest dokumentene. Alle interessenter oppfordres til å undersøke eiendommen nøye, gjerne sammen med fagkyndig før bud inngis. Kjøper som velger å kjøpe usett kan ikke gjøre gjeldende som mangel noe han burde blitt kjent med ved undersøkelsen.
Dersom det er behov for avklaringer, anbefaler vi at interessenter rådfører seg med eiendomsmegler eller egne rådgivere før det legges inn bud.
En bolig som har blitt brukt i en viss tid, har vanligvis blitt utsatt for slitasje og skader kan ha oppstått. Slik bruksslitasje må kjøper regne med, og det kan avdekkes enkelte forhold etter overtakelse som nødvendiggjør utbedringer. Normal slitasje og skader som nødvendiggjør utbedring, er innenfor hva kjøper må forvente og vil ikke utgjøre en mangel.
Kjøper og selgers rettigheter og plikter reguleres av avtalen mellom partene, samt informasjonen som har vært tilgjengelig for kjøperen i forbindelse med handelen. Avtalen utfylles av avhendingsloven, og det gjelder ulike avtalevilkår avhengig av om kjøper er forbrukerkjøper eller ikke. Dette er nærmere beskrevet nedenfor.
På grunn av ulike avtalevilkår kan selger vurdere bud fra en som ikke er forbruker, ulikt fra en forbrukers bud. Dersom kjøper ikke er forbruker, er selger sitt mulige mangelsansvar begrenset fordi eiendommen selges "som den er". Selger kan ikke ta «som den er»- forbehold overfor en forbrukerkjøper. Selv et lavere bud fra en som ikke er forbruker kan foretrekkes fordi begrensningen i mulig mangelsansvar kan ha egenverdi for selger. Selger står fritt til å forkaste eller akseptere ethvert bud, og er for eksempel ikke forpliktet til å akseptere høyeste bud.
Budgiver skal i budskjema avgi egenerklæring om budgiver er forbruker eller næringsdrivende/ person som hovedsakelig handler som ledd i næringsvirksomhet. Budgivere får informasjon dersom andre bud er inngitt av en som ikke er forbruker.
Forbrukerkjøp - definisjon
Med forbrukerkjøp menes kjøp av eiendom når kjøperen er en fysisk person som ikke hovedsakelig handler som ledd i næringsvirksomhet.
Forbruker – avtalevilkår
Eiendommen har en mangel dersom den ikke er i samsvar med kravene som følger av avtalen, eller det foreligger brudd på bestemmelsene i avhendingsloven §§ 3-2 til 3-8. Hvis eiendommen ikke er i samsvar med det kjøperen må kunne forvente ut ifra alder, type og synlig tilstand, kan det være grunnlag for mangelskrav. Det samme gjelder hvis det er holdt tilbake eller gitt uriktige opplysninger om eiendommen. Dette gjelder likevel bare dersom man kan gå ut ifra at det virket inn på avtalen at opplysningen ikke ble gitt eller at mangelskravet ikke blir rettet i tide på en tydelig måte.
Boligen kan ha en mangel etter avhendingsloven § 3-3 andre ledd, dersom det er avvik mellom opplyst og faktisk innvendig areal, forutsatt at avviket er på 2% eller mer og minimum 1 kvm.
Ved beregning av et eventuelt prisavslag eller erstatning må kjøper selv dekke tap/kostnader opptil et beløp på kr 10 000 (egenandel).
Ikke-forbruker (næringsdrivende) – definisjon
Hvis kjøper er en juridisk person, eller en fysisk person som hovedsakelig handler som ledd i næringsvirksomhet, vil kjøpet ikke anses som et forbrukerkjøp.
Ikke-forbruker – avtalevilkår
Eiendommen har en mangel dersom den ikke er i samsvar med kravene som følger av avtalen.
Eiendommen selges «som den er», og selgers ansvar utover det konkret avtalte er da begrenset etter avhendingsloven § 3-9, første ledd andre setning.
Avhendingsloven § 3-3 andre ledd fravikes, og hvorvidt boligens arealsvikt utgjør en mangel vurderes etter avhendingsloven § 3-8.
Informasjon om kjøpers undersøkelsesplikt, herunder oppfordringen om å undersøke eiendommen nøye, gjelder også for kjøpere som ikke anses som forbrukere.
Det forutsettes at hjemmel overføres til kjøper. Hvis kjøper ikke ønsker hjemmelsoverføring av eiendommen, må det tas forbehold om dette i budet.
Meglers vederlag
Vi er opptatt av verdiskapning, og har knyttet til oss samarbeidspartnere som skal sikre våre kunder de beste produkter og tjenester;
• I forbindelse med forberedelse av salget, innhenter vi informasjon om eiendommen hovedsakelig fra vår samarbeidspartner Amibita.
• Gjensidige leverer boligselgerforsikring og tilbyr bygningsforsikring
• Boligkjøperforsikring leveres av Hiscox og med Sedgwick som skadebehandler, og er formidlet gjennom Gjensidige.
• BN bank tilbyr finansieringsløsninger
• Vår avdeling Krogsveen Pluss tilbyr flyttetjenester som utvask, visningsvask, lager, tømming og transport av flyttelass, i tillegg til å formidle kontakt med Flip for overflateoppussing.
• I forbindelse med overtagelse av eiendommen tilbyr Overo avtale om strøm, alarm og bredbånd.
• Krogsveen er, sammen med øvrige bransjeaktører, medeier i Bomega AS som tilbyr den digitale annonseringsplattformen Hjem.
Opplysninger om oppdraget
Oppdragsnummer 63-0266/25
Eiendomsmegler Krogsveen AS, avd. Jessheim
Skovly Promenade 10, 2066, JESSHEIM
950 007 613
Oppdragets KR-kode KR63.25266
Dato
Sist oppdatert: 05. februar 2026 kl. 13:49
Dokumenter
Dokumenter
PDF – 934 KB
PDF – 354 KB
PDF – 139 KB
PDF – 312 KB
PDF – 29 KB
PDF – 127 KB
PDF – 392 KB
Område
Legg til steder som er viktige for deg
Visning
For å delta på visning, ber vi om at du melder deg på. Da sikrer vi at du får nødvendig informasjon og at det er satt av tilstrekkelig med tid. Kontakt megler dersom annet tidspunkt ønskes. Husk å lese salgsoppgaven før visningen, så du stiller forberedt.
Ønsker du kun å bli holdt orientert, kan du fra eiendommens hjemmeside få varsel om solgtpris, eller kontakte megler.
Lurer du på noe?
Unngå doble boligrenter
Vi tilbyr gunstig forsikring.
Vurderer du utleie?
Få et tilbud fra Utleie KrogsveenHva koster lånet?
Sjekk estimert lånekostnadVil du varsles om lignende boliger?
Ved å lagre ditt boligsøk hos oss får du beskjed når vi har en bolig som ligner denne, før den legges ut på markedet!

