Munkebekken 191
6 750 000 kr
147 m²
4 soverom
Komplett salgsoppgave

Munkebekken
Unik mulighet! Markanær og familievennlig tomannsbolig over 3 plan | Skjermet uteplass mot skog | Garasje | 2 peisovner
Prisantydning
6 750 000 krAndel fellesgjeld
603 397,91 krOmkostninger
20 296 krTotalpris
7 373 693,91 kr
Pris
Bruksareal
167 m²BRA-I (internt bruksareal)
147 m²BRA-E (eksternt bruksareal)
20 m²TBA (terrasse-balkongareal)
63 m²
Areal
Etasje
3Byggeår
1986Soverom
4 soveromBad
1 badType
RekkehusEierform
AndelFasiliteter
Garasje/P-plass og Balkong/TerrasseFellesutgifter
7 456,75 krEnergimerke
Rød D
Nøkkelinfo
Unngå doble boligrenter
Vi tilbyr gunstig forsikring.
Vurderer du utleie?
Få et tilbud fra Utleie KrogsveenHva koster lånet?
Sjekk estimert lånekostnadBeskrivelse
Kort om eiendommen
Innhold og byggemåte
Innhold og byggemåte
Eiendommen
Munkebekken 191, 1061 OSLO
Kommunenummer 301, gårdsnummer 109, bruksnummer 55
Andelsnummer 2, ELLINGSRUDFLATEN BORETTSLAG, organisasjonsnummer 948773341
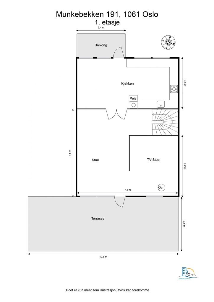
Innhold
Totalt bruksareal BRA: 167 kvm
BRA-i:
-1. etasje 51 kvm: Entré, bad, gang, rom brukt som vaskerom, og 2 soverom
1. etasje 70 kvm: Tv-stue, stue, og kjøkken
2. etasje 26 kvm: Trapperom, bod og 2 soverom
BRA-e:
-1. etasje 5 kvm: Bod under trapp med lys og knaggrekke for enkel oppbevaring
1. etasje 15 kvm: Garasje
Åpent areal:
-1. etasje 17 kvm:
1. etasje 46 kvm:
Boligen disponerer to innvendige boder og en utebod.
Vedlagte plantegninger er ikke målbare. De oppgitte arealer er hentet fra rapport med befaringsdato 12.02.2026 utført av Takstkonsulent1 AS v/ Ole-Christian Eng.
Byggemåte
Selger har fått utarbeidet en tilstandsrapport, dvs. en teknisk gjennomgang av boligen hvor eventuelle avvik, risiko for kjøper og prisoverslag for hva som bør gjøres av oppgradering, er skissert. Se særskilt TGIU (tilstandsgrad ikke undersøkt), samt TG2 og TG3 som viser hva som er boligens normale slitasje, alder og type, hva som er avvik fra dette og hva som bør/må utbedres. Rapporten og selgers egenerklæring er en del av salgsoppgaven og må leses nøye før bud inngis. Kjøper overtar ansvaret for de opplysninger som fremkommer av salgsdokumentasjonen, og kan ikke gjøre gjeldende som mangel noe som burde vært kjent eller som ikke kan anses å ha betydning for avtalen.
Del av tomannsbolig bygget i 1986. Bygningen antas fundamentert med betong til stedlige masser. Gulv mot grunn av betong. Grunnmur antas å være av betong. Etasjeskillere av trebjelkelag. Yttervegger antas oppført med isolert bindingsverk av tre, utvendig med liggende kledning. Takkonstruksjon med sperrer av tre, saltak takform, antatt tekket med takstein e.l.
Totalt 10 bygningsdeler er tildelt TG2:
Innvendig:
- Etasjeskillere grunnet grunnet målt høydeforskjell på mellom 15-30 mm gjennom hele rommet
- Det er utforede trevegger i underetasjen, utforede grunnmursvegger anses å være risikokonstruksjon med tanke på skjulte feil og/eller mangler.
- Det registreres slitasje på dørblader og karmer i underetasje
- Rommet som i dag er brukt som vaskerom er på byggetegning en bod. Det er ikke sluk i rommet.
Våtrom:
- Det er påvist at høydeforskjell fra topp slukrist til gulv/synlig topp membran ved dørterskel er mindre enn 25 mm.
- Det er påvist sprekker i fliser
- Membran kan ikke konstateres
- Det er ikke påvist tilfredsstillende løsning for å synliggjøre lekkasje fra innebygget sisterne
- Det registreres større bruksmerker på kjøkkeninnredningen
Tekniske installasjoner:
- Mer enn halvparten av forventet brukstid er passert på innvendige vannledninger og avløpsledninger
TGIU:
- Balkonger/terrasse er snødekt og derfor ikke nærmere vurdert.
- Hulltaking er ikke foretatt da det ikke er fysisk mulig pga tilliggende konstruksjoner.
- Varmtvannstanken er på ca. 120 liter. Plassert i kjøkkeninnredningen.
Det har i regi av borettslaget vært utført reparasjon av dreneringsskader på 17 leiligheter og lagt ny drenering i bakken bak 18 leiligheter.
Opplistingen er ikke uttømmende. Interessenter bes sette seg inn i tilstandsrapportens detaljer.
Standard
Velkommen til en innholdsrik og velholdt halvpart av en vertikaldelt tomannsbolig, fordelt over tre romslige plan. Boligen har en smart planløsning der de sosiale sonene med stue og kjøkken er lagt til første etasje, mens soverommene er fordelt i underetasjen og andre etasje. Med fire soverom, flere uteplasser og en beliggenhet helt inntil skogen, er dette et hjem som passer godt for en aktiv familie.
Entré:
I underetasjen blir du møtt av en innbydende entré med flislagt gulv. Herfra leder en gang med nylagt parkettgulv deg videre inn i etasjen. Både entréen og gangen har innfelte downlights i himlingen som gir god belysning.
To soverom i underetasjen:
Denne etasjen inneholder to av boligens totalt fire soverom. Begge rommene har nylig fått nye parkettgulv og har overflater med malte plater og panel på vegger og i himling.
Bad:
Badet i underetasjen er helfliset på gulv og vegger, og har elektrisk gulvvarme. Rommet er utstyrt med et vegghengt klosett, badekar og en moderne innredning med to servanter. God oppbevaringsplass i vegghengte skap og speilskap. Himlingen har panel med innfelte downlights, og rommet har mekanisk avtrekk.
Rom benyttet som vaskerom:
Praktisk rom med flislagt gulv med gulvvarme, flislagte vegger, vaskeromsinnredning med vaskekum og opplegg for vaskemaskin. Rommet har mekanisk avtrekk. I henhold til byggetegningene er dette rommet en bod, og bruksendringen til vaskerom er ikke omsøkt eller godkjent.
Stue og kjøkken:
Første etasje utgjør boligens sosiale hjerte, med en åpen og luftig løsning som forener kjøkken, spisestue, stue og TV-stue. Kjøkkenet har en moderne innredning med glatte fronter, laminatbenkeplate og fliser over benken. Av utstyr finnes integrert stekeovn, platetopp og oppvaskmaskin, samt en kjøkkenventilator. En peis med innsats på kjøkkenet bidrar med ekstra varme og hygge. Stuedelen er romslig og har en vedovn som ble montert av nåværende eier. Utvendige screens på vinduene gir effektiv solskjerming.
Balkong og terrasse:
Boligen har to store uteplasser som er perfekt for å nyte årets varmere dager i eget hjem. Sydvendt balkong i trekonstruksjoner på ca. 6 m². En nordvendt terrasse på ca. 40 m² og en sydvendt inngangsparti/terrasse på ca. 17 m².
To soverom i 2. etasje:
I øverste etasje finner du to romslige og lyse soverom. Takhøyden her er målt til 2,74 meter på det høyeste, noe som gir en god og luftig romfølelse. Her er det plass til seng og nattbord. Rommene passer perfekt som barnerom, gjesterom eller kontor.
Overflater:
Gulvoverflater: Laminat i de fleste oppholdsrom, fliser i entréen i underetasjen, parkettgulv i underetasjen.
Vegger: Malte plater og panel.
Himling: Malte plater og panel. Innfelte downlights i entré og gang i underetasjen.
Oppbevaring:
Boligen har gode lagringsmuligheter med en innvendig bod i 2. etasje, en ekstern bod i underetasjen, samt tre boder på loftet. I tillegg er det vegghengte skap på badet som gir gode oppbevaringsmuligheter. Boligen har en praktisk bod under trapp med lys og knagger.
Det medfølger også en garasjeplass med elbillader i felles garasjeanlegg, hvor hele garasjeloftet gir ytterligere god plass til oppbevaring.
For beskrivelse av tilstandsgrad (TG) 2, se punktet Byggemåte i salgsoppgaven.
Interessenter oppfordres spesielt til å undersøke disse forholdene som er gitt TG2 nærmere, da gitte tilstandsgrader her er et konkret uttrykk for alder/slitasje/ødeleggelser/konsekvenser som innebærer kostnader til utbedring. Kjøper må innta disse vurderingene og medfølgende utbedringskostnader i sin kjøpsbeslutning, jf. avhl. § 3-10. Det samme gjelder eventuelt andre opplysninger om kjente risikofaktorer, som for eksempel ufaglært arbeid, begrenset kontroll av det elektriske anlegget og opplysninger fra selgers egenerklæringsskjema.
Løsøre og tilbehør
Vi viser til liste fra Norges Eiendomsmeglerforbund som gjelder fra 01.01.2020 angående løsøre og tilbehør.
Ting som ikke medfølger salget:
- Hengelampene i stue.
- Frittstående kjøl/frys på kjøkken.
- Arlo ringerklokke utenfor ytterdør.
- Speil i stue og gang nede.
Oppvarming
Dersom beboelsesrom ikke har vegg- eller fastmonterte varmekilder ved visning, følger dette heller ikke med.
Ferdigattest/brukstillatelse
Det foreligger ferdigattest på bygget datert 21.09.1987. Denne kan fås ved henvendelse til megler.
Rom innredet som vaskerom er byggemeldt som bod og er ikke godkjent for varig opphold. Innredning av rommene til bruk for varig opphold er ikke bruksendret/omsøkt og er heller ikke godkjent for denne bruk av kommunen. Konsekvensen ved søknad kan være at rommet ikke godkjennes som varig opphold og at rommet da må brukes som bod/midlertidig oppbevaring.
Det ble oppført et tilbygg til boligen i 2003. Kommunen opplyser at det ikke foreligger ferdigattest eller midlertidig brukstillatelse for tilbygget, og det eksisterer derfor ikke dokumentasjon som bekrefter tilbyggets lovlighet. Innredning av rom til varig opphold er dermed ikke godkjent av kommunen.
Det ble i 2017 søkt om å få ferdigattest på tilbygget, hvor kommunen svarer med en henleggelse. I henhold til svaret fra Plan- og bygningsetaten, datert 01.03.2017, kan det ikke utstedes ferdigattest for tiltak som tidligere er behandlet som meldingssak etter gammel plan- og bygningslov § 86a.
Kommunen har opplyst at saken er henlagt og arkivert. Det betyr at kommunen ikke vil følge opp saken videre eller foreta ytterligere behandling. Tilbygget står derfor uten ferdigattest og anses ikke som formelt godkjent etter dagens regelverk. Dette gjelder flere tilbygg i Munkebekken og til den tid i dag har ingen blitt bedt om tilbakeføring.
Tinglyste heftelser og rettigheter
Utover andel fellesgjeld overdras leiligheten fri for pengeheftelser.
Borettslaget har legalpant for forfalte felleskostnader og andre krav som følger av borettslagsforholdet iht. burettslagsloven § 5-20. Pantet er begrenset oppad til 2G (G = folketrygdens grunnbeløp).
Servituttene vil følge eiendommen. Kjøpers bank vil få prioritet etter ovennevnte heftelser og servitutter.
Det er tinglyst 2 servitutter på borettslagets eiendom:
- Obligasjon på kr 31 807 200 til fordel for Oslo Bolig og Sparelag AL, tinglyst på eiendommen sammen med flere seksjoner.
- Tinglyst erklæring om arealregulering samt rett for kommunen til å etablere og vedlikeholde ledninger og trafostasjon.
Servituttene vil følge eiendommen. Kjøpers bank vil få prioritet etter ovennevnte heftelser og servitutter.
Eventuell adgang til utleie
Andelseier kan ikke uten samtykke fra styret i borettslaget overlate bruken av boligen til andre. Med samtykke kan andelseier overlate boligen til andre i inntil tre år hvis andelseier har bodd i boligen i minst ett av de to siste år. Utleie i andre tilfeller kan godtas ved særlige grunner, jf. burettslagslova § 5-6. Utleie forutsetter at leiligheten har forsvarlige radonverdier. Se også borettslagets vedtekter og konferer megler ved spørsmål.
Beliggenhet og tomteforhold
Beliggenhet og tomteforhold
Beliggenhet
Boligen er beliggende i et barnevennlig og rolig nabolag i Munkebekken i Oslo Kommune. Området byr på flere skoler for alle alderstrinn, barnehager med kort gangavstand og umiddelbar nærhet til marka. På vinterstid kan man gå på ski fra inngangsdøren og ut i lysløypa. Det er et rikt dyreliv i skogen utenfor, hvor det både er rådyr og ekorn som kommer innom.
Det er kort vei til både barnehager og skole. Munkebekken idrettsbarnehage ligger kun få minutters gåtur unna internt på Munkebekken, hvor barna i Munkebekken har fortrinnsrett. Noen minutter unna ligger også Ellingsrudåsen skole.
Det er et rikt utvalg dagligvarebutikker i nærheten, blant annet Rema 1000 og Kiwi på få minutters gange unna boligen. Ønsker du ytterlige servicetilbud har man Furuset Senter, Ikea og Alna Senter, som alle ligger en kort kjøretur unna. Metro Senter, Triaden/Lørenskog Storsenter og Strømmen Storsenter ligger også godt innenfor rekkevidde, med et rikt og variert utvalg. Her bor du i andre ord med enkel tilgang til det aller meste av det du skulle ha behov for i hverdagen.
Området tilbyr også god offentlig kommunikasjon via buss og T-bane, hvorav nærmeste holdeplass er Ellingsrudåsen busstopp og T-banestasjon i gangavstand fra boligen. Herfra kommer du deg med linje 2 raskt og enkelt inn til Oslo sentrum, og det er også gode bussforbindelser med rute 26 som går til Bislett gjennom Årvoll senter og Carl Berner. Med bil er det heller ikke langt til Strømmen, Lillestrøm, Oslo S og Oslo Lufthavn.
Her bor du med andre ord i nærhet til det meste du trenger i hverdagen, og i tillegg tilbaketrukket i barnevennlige og naturskjønne omgivelser.
Adkomst
Det vil bli skiltet med Krogsveen visningsskilt ved fellesvisninger.
Barnehager, skoler og fritid
Eiendommen sogner til Ellingsrudåsen skole. Videre har barn fortrinnsrett på plass i Munkebekken Idrettsbarnehage dersom de bor i Munkebekken.
Ellingsrudåsen barneskole og Ellingsrud ungdomsskole vil ha helt nyoppførte, moderne skolebygg i løpet av de neste årene. Ferdigstillelse av ungdomsskolen er satt til skolestart 2027. Ferdigstillelse av barneskolen er satt til begynnelsen av 2029.
Interessenter kan lese om rehabiliteringen på Oslo kommune sine hjemmesider:
Barneskole:
https://www.oslo.kommune.no/slik-bygger-vi-oslo/nye-ellingsrudasen-skole/
Ungdomsskole:
https://www.oslo.kommune.no/slik-bygger-vi-oslo/ellingsrud-ungdomsskole-rehabilitering-og-utvidelse/
Informasjon om tilhørende skolekretser er hentet fra Prognosesenteret som dataleverandør, og tilhørigheten kan årlig endres av kommunen. Dersom skole- og barnehagetilbud er av betydning for kjøpet, ber vi om at det rettes en særskilt henvendelse til kommunen/bydelsadministrasjonen for oppdatert informasjon.
Beskrivelse av tomt
Eiertomt på 20 919 kvm som tilhører borettslaget.
Parkering
Det medfølger garasjeplass (Garasje 50018) i felles garasjerekke. Garasjen er tilrettelagt for elbillading, og boligen har elbillader. Felleskostnaden for garasjen er kr. 850,- per måned, inkludert i de totale felleskostnadene. Det er en stor privat hems over garasjen, med adkomst via luke i garasjen for øvrig oppbevaring. Garasjen er helt ny.
Vei, vann og avløp
Eiendommen har adkomst via privat vei med felles vedlikeholdsansvar for Borettslaget.
Eiendommen er tilknyttet kommunalt ledningsnett via private stikkledninger. Borettslaget er ansvarlig for private stikkledninger til bygningen.
Regulerings-og arealplaner
Eiendommen er regulert til boligformål med tilhørende anlegg i henhold til reguleringsplan S-2596 datert 05.04.1982 med tilhørende reguleringsbestemmelser
Utdrag av planer i nærheten av området:
Saksnummer 2025/21254 - Byggesak. Munkebekken 145 B - riving av bærevegg. Søknaden omfatter åpning i bærevegg mellom kjøkken og stue i Munkebekken 145 B. Tiltaket må være lovlig satt i gang innen tre år. Tillatelse til tiltak ble gitt 03.12.2025.
Saksnummer 2025/09632 - Byggesak. Edvard Munchs vei 55 - riving, ombygging, tilbygg, påbygg og nybygg - Ellingsrud skole. Igangsettingstillatelse ble gitt 13.11.2025. Søknaden gjelder rehabilitering og utvidelse av Ellingsrud skole i bydel Alna. Tiltaket omfatter rehabilitering, ombygging og rivearbeider, tilbygg, påbygg og oppføring av nybygg, samt oppføring av 5 virksomhetsskilt, opparbeidelse av utearealer inkludert felling av trær, og opparbeidelse av utvendig teknisk infrastruktur og avkjørsel. Bebyggelsen inndeles i Bygg A, bygg B, bygg C, bygg D, bygg E, atrium F, bygg G, bygg H og bygg I.
Saksnummer 2025/07757 - Byggesak. Harald Sohlbergs vei 17 - oppføring av ny Ellingsrudåsen skole. Søknaden omfatter oppføring av nye Ellingsrudåsen skole i bydel Alna. Skolen er en ny barneskole med gymsal. Den nye skolen erstatter tidligere skole med tilhørende uteområder i tråd med Oslo kommunes skolebehovsplan for 2022-2031. Igangsettingstillatelse ble gitt 19.12.2025.
Saksnummer 202302012 - Reguleringssak. Gamle Strømsvei 110 - Planinitiativ i avklaringsfase før offentlig ettersyn - boliger - Ellingsrud gård. Eierne av Ellingsrud gård ser ingen mulighet til å drive lønnsomt ridesenter på eiendommen. Flerbrukshall søkes regulert til "Offentlig eller privat tjenesteyting - flerbrukshall". Øvrig areal søkes regulert til "konsentrert småhusbebyggelse" og "nærmiljøanlegg". Denne saken fortsetter i sak 2025/06742.
Opplistingen er ikke uttømmende og interessenter bes sette seg inn i planene på Oslo kommune sine hjemmesider. Utsnitt av plan med tilhørende bestemmelser kan fås ved henvendelse til megler.
Økonomi
Økonomi
Boligens kostnader
Felleskostnadene er kr 7 456,75,- pr. mnd. og inkluderer: Tillegg for utbygg, garasje, felleslån bolig/garasje, snømåking, internett, kommunale avgifter, styrehonorar, forretningsførsel, drift og vedlikehold m.m.
Felleskostnadene justeres normalt en til to ganger årlig i forhold til borettslagets faktiske utgifter.
Felleskostnadene fordeles slik:
Lån nr: 9820857026; IN lån 1 - Akonto renter 2 078,64
Lån nr: 9820857026; IN lån 1 - Akonto avdrag 1 024,86
Leietillegg påbygg 209,88
Felleskostnader 4 143,36
Eiendommen er ilagt eiendomsskatt, som utgjør kr. 2 010,- per år.
Nåværende eier har et strømforbruk som tilsvarer ca. kr 13 173,- pr. år. / 13 463 kwh. pr. år.
Selger har avtalt Norgespris på strøm på eiendommen ut 2026, og denne er pt på 50 øre inkl mva. Nettleie, avgifter og påslag fra kraftleverandøren kommer i tillegg. Er det fjernvarme vil det også komme kostnader i tillegg.
Denne avtalen vil følge eiendommen i den avtalte perioden.
Les mer om Norgespris her: https://www.regjeringen.no/no/aktuelt/legg-fram-lov-om-norgespris-pa-straum-og-fjernvarme/id3102642/
Boligen er tilknyttet Obos Open nett som leverandør av internett og avgiften er inkludert i felleskostnadene. Kabel-TV kan bestilles mot tillegg via Obos Open nett sine sider. Grunnpakke TV med 3 kanaler er inkludert.
Utgiftene er basert på nåværende eiers forbruk. Kjøper må selv tegne innboforsikring.
Formuesverdi
Ved hjelp av skatteetatens boligkalkulator er boligens formuesverdi beregnet til kr. 1 965 677,- for fjoråret når boligen benyttes som primærbolig.
Formuesverdien er en gitt prosent av den beregnede markedsverdien. Beregnet markedsverdi er basert på Statistisk sentralbyrå (SSB) sine opplysninger om omsatte boliger. I beregningen tas det hensyn til boligens beliggenhet, areal, byggeår og boligtype.
Det er eier av boligen som fastsetter formuesverdien, jf. skatteforvaltningsloven § 9-1 første ledd, men skattemyndighetene kan kontrollere at verdien er satt riktig.
Formuesverdi skal ikke overstige:
Primærbolig: 25 % av beregnet eller dokumentert markedsverdi opp til kr. 10 000 000, og deretter 70 % av den overskytende markedsverdi.
Sekundærbolig: 100 % av beregnet eller dokumentert markedsverdi.
Formuesverdier som overstiger disse grensene, kan kreves nedjustert av eier.
Fra 2026 har Stortinget vedtatt en oppdatert modell for beregning av formuesverdi for primærbolig, så avvik kan forekomme.
For mer informasjon se skatteetaten.no
Opplysninger om fellesgjeld
Andel formue er kr 37 803,- pr. 31.12.2025
Andel fellesgjeld er kr 603 397,91 pr. 16.02.2026
Total fellesgjeld for boligselskapet er kr 69 400 660,- pr. 16.02.2026 og lånevilkårene er:
#1
Bank: OBOS-banken AS
Lånenr.: 98207869171
Lånetype: Annuitetslån
Rentesats: 4,99%
Restsaldo 12 036 382,00
Innfrielsesdato: 30.03.2050
Type rente: Flytende rente
Terminer i året: 12
#2
Bank: OBOS-banken AS
Lånenr.: 98208570269
Lånetype: Annuitetslån
Rentesats: 4,99%
Restsaldo 57 364 278,00
Innfrielsesdato: 30.04.2048
Type rente: Flytende rente
Terminer i året: 12
Dette borettslaget har tilrettelagt for individuell nedbetaling av andel fellesgjeld (IN-ordning). Det vil si at hver enkelt andelseier helt eller delvis kan velge å nedbetale sin andel av borettslagets fellesgjeld til boligbyggelaget. Dette vil i så fall medføre en reduksjon av de månedlige felleskostnadene (andel av renter og avdrag på fellesgjelden). Nedbetalt andel av fellesgjeld knyttes til andelen og følger andelen ved et eventuelt salg.
Innbetaling vil medføre en reduksjon i felleskostnadene med kr 3 104,-.
Omkostninger
6 750 000,00 Prisantydning
603 397,91 Andel av fellesgjeld
--------------------------------------------------------
7 353 397,91 Pris inkl. fellesgjeld
Omkostninger
850,00 Eierskifte garasje
8 406,00 Forkjøpsrett - forhåndsutlyst (kjøper)
9 950,00 Gjensidige Boligkjøperpakke (valgfri)
545,00 Tinglysing hjemmel
545,00 Tinglysing panterettsdokument
--------------------------------------------------------
20 296,00 Omkostninger totalt
--------------------------------------------------------
7 373 693,91 Totalpris inkl. omkostninger
--------------------------------------------------------
Dersom kjøper ikke er medlem av boligbyggelaget, må det påregnes en innmeldingsavgift og årlig medlemsgebyr pr. ny andelseier. Dette faktureres direkte fra boligbyggelaget.
Dersom borettslaget har fellesgjeld, vil leilighetens andel av fellesgjelden komme i tillegg til kjøpesummen. Denne gjelden skal ikke innbetales i oppgjøret, men følger leiligheten.
Det tas forbehold om endringer i avgifter og gebyrer.
Tilbud om lånefinansiering
Megler formidler gjerne kontakt med rådgiver hos vår samarbeidspartner BN Bank. De har konkurransedyktige betingelser samt rask og løsningsorientert behandling av din lånesøknad. Krogsveen mottar et honorar dersom lån opprettes.
Betalingsbetingelser
Kjøpesum inkludert omkostninger, samt pantedokument tilknyttet eventuelt lån, skal være disponibelt hos megler 2 virkedager før overtagelsen.
Annen viktig informasjon
Annen viktig informasjon
Eier
Malin Skodje
Informasjon om borettslaget
Ellingsrudflaten Borettslag består av 59 tomannsboliger - 118 leiligheter. I Ellingsrud Øst ligger Munkebekken 149 til 267 – 60 leiligheter. I Ellingsrud Vest ligger Munkebekken 296 til 410 – 58 leiligheter. Borettslaget sto ferdig i 1987.
Leiligheten er tilknyttet ELLINGSRUDFLATEN BORETTSLAG. Borettslaget består av 118 boliger.
Forretningsfører er Obos Eiendomsforvaltning AS.
Det er tillatt å holde hund og katt på betingelse om at borettslagets registreringsskjema av dyrehold undertegnes av beboer/andelseier.
Foretatt påkostninger de senere år:
- Byttet vinduer
- Bygd nye garasjer
- Malt alle husene og spylt og impregnert takene
- Nye lekeplasser og nytt søppelanlegg
- Reparasjon av dreneringsskader på 17 leiligheter og lagt ny drenering i bakken bak 18 leiligheter.
- Løftet og stabilisert to hus / 4 leiligheter som sank og var skjeve.
Styret informerer om at det p.t ikke er noen store planer fremover.
Borettslaget har hatt nokså store vedlikeholdskostnader knyttet til drenering de siste årene og har derfor ikke store planer i tiden fremover.
Felleskostnadene vil ikke øke mer utover i takt med konsumprisindeksen.
I henhold til borettslagets vedtekter må kjøper godkjennes av styret som ny andelseier. Det er kjøpers ansvar at styregodkjenning blir gitt, men styret kan ikke nekte godkjenning uten saklig grunn.
Iht. burettslagslova kan man bare eie én andel i borettslaget. Kun fysiske personer kan være andelseiere.
I 2024 måtte det tas opp et nytt lån på 15 millioner kroner i forbindelse med vedlikehold av to tomannsboliger som sank og måtte rettes opp. Dette kom i tillegg til tidligere lån til store planlagte arbeider som vindusskifte, bygging av nye garasjer, lån til nødvendig rehabiliteringsarbeid etter dreneringsskader i og rundt D-husene og lån til fullføring av maler/snekkerarbeid på alle husene.
På grunn av borettslagets svake økonomi, begrenser styret vedlikeholdsarbeidet til det som absolutt er nødvendig:
- Garasjene nederst i Ellingsrudflaten vest har slitt med vanninntrengning de siste par årene.
- En kum mellom garasjerekkene i Ellingsrudflaten øst fik nytt avløp for å sikre at den ikke fryser igjen om vinteren.
- Da Munkebekken 197 varslet om at inngangspartiet sank, viste det seg at det var hele resten av huset, Munkebekken 197 og 199, som hadde sunket. Problemene er utbedret og hatt 1-årskontroll uten funn.
Øvrige andelseiere i borettslaget og eventuelt medlemmer av boligbyggelaget har forkjøpsrett. Dersom boligen tas på forkjøpsrett løses kjøper fra avtalen.
For å dekke eventuell manglende innbetaling av fellesutgifter fra øvrige andelseiere, er borettslaget tilknyttet et sikringsfond gjennom OBOS. Dette innebærer at OBOS innbetaler samtlige felleskostnader til borettslaget hver måned og dermed overtar ansvar og risiko for eventuell inndrivelse av utestående fellesutgifter. Avtalen om sikringsfond gjennom OBOS er gyldig til den sies opp av en av partene. Oppsigelsesfrist er 12 måneder.
Overtakelse
Etter nærmere avtale. Overtakelse kan tidligst skje etter at forkjøpsretten for øvrige andelseiere i borettslaget og eventuelt medlemmer av boligbyggelaget er avklart, samt at styrets godkjennelse er avklart.
Boligselgerforsikring
Selger har i forbindelse med salget tegnet boligselgerforsikring levert av Gjensidige.
Boligselgerforsikringen dekker selgers ansvar etter avhendingsloven begrenset oppad til kr 14 millioner. Dersom kjøper oppdager forhold ved eiendommen som hen mener utgjør en mangel ved eiendommen, vil Gjensidige behandle reklamasjonen på vegne av selger. Forsikringsvilkår kan fås ved henvendelse til megler.
Vedlagt salgsoppgaven følger selgers egenerklæringsskjema og tilstandsrapport. Interessenter må sette seg inn i dokumentene før bud inngis.
Boligkjøperforsikring
Innen kontraktsmøtet må kjøper ta stilling til om det ønskes å bestille Boligkjøperpakken gjennom Gjensidige. I denne gunstige pakken er boligen ferdig forsikret og inkluderer rettshjelpsforsikring, også kalt Boligkjøperforsikring. Rettshjelpsforsikring gir trygghet og tilgang på profesjonell juridisk hjelp dersom det oppdages uventede feil eller mangler det første året etter overtagelse. Forsikringsselskapet behandler i så fall ethvert mangelskrav kjøper måtte ha overfor selger.
Boligkjøperpakken inkluderer bygningsforsikring for hus og hytte, innboforsikring, flytteforsikring og dobbel rentedekning - i situasjoner hvor kjøper ikke får solgt nåværende primærbolig.
Kjøper mottar ingen særskilt faktura for Boligkjøperpakken da kostnaden det første året legges til kjøpesummen for boligen. Det gjøres oppmerksom på Krogsveen mottar et honorar for denne formidlingen.
Produktark for Boligkjøperpakken ligger vedlagt i salgsoppgaven.
Dersom ikke boligkjøperpakke ønskes kan kun rettshjelpsforsikring, også kalt boligkjøperforsikring, tegnes særskilt via megler. Rettshjelpsforsikringen varer i 5 år fra overtagelse og leveres gjennom Gjensidige. Ta kontakt med megler for ytterligere informasjon.
Selskap og privatpersoner som driver med kjøp/salg/utvikling som ledd i egen næringsvirksomhet kan ikke tegne boligkjøperpakke eller rettshjelpsforsikring.
Budgivning
Forbrukerinformasjon om budgivning er vedlagt denne salgsoppgaven og er også på vår hjemmeside Krogsveen.no. Alle bud og budforhøyelser må inngis skriftlig. I tillegg må legitimasjon være fremlagt sammen med signatur fra budgiver.
Vi oppfordrer til å gi bud elektronisk via GI BUD-knappen på eiendommens hjemmeside på Krogsveen.no. Da vil samtlige vilkår bli oppfylt.
Eventuelle forhøyelser eller endringer av budet kan bekreftes pr SMS eller på e-post. Vi oppfordrer alltid til å kontakte megler pr. telefon i tillegg da forsinkelser i SMS og e-post kan forekomme.
For at budene skal kunne bli behandlet og videreformidlet skriftlig til alle involverte parter, må alle bud ha en tilstrekkelig lang akseptfrist, jf. eiendomsmeglingsforskriften § 6-3.
Selger må også skriftlig akseptere budet før aksept kan formidles til budgiver. Akseptfrist bør derfor være på minimum 30 minutter, og budforhøyelser må derfor skje i god tid før fristens utløp.
Bud i forbrukerforhold kan uansett ikke settes med kortere frist enn kl. 12.00 første virkedag etter siste annonserte visning. I tillegg kan ikke budet ha forbehold om at det skal holdes hemmelig ovenfor øvrige interessenter. Megler har iht lov om eiendomsmegling ikke anledning til å videreformidle disse budene, og de vil dermed heller ikke bli journalført.
Etter at eiendommen er solgt vil kjøper og selger få tilsendt budjournal. Øvrige budgivere kan få utlevert kopi av budjournalen i anonymisert form.
Hvitvaskingsreglene
I henhold til lov om hvitvasking og terrorfinansiering har megler plikt til å gjennomføre kontrolltiltak overfor kunder, herunder fullmektiger. Dette innebærer bl.a. å bekrefte kunders og reelle rettighetshaveres identitet på bakgrunn av fremvist gyldig legitimasjon eller på annen godkjent måte, samt å innhente opplysninger om kundeforholdets formål og tilsiktede art.
Dersom slike kundetiltak ikke kan gjennomføres, kan megler ikke etablere kundeforholdet eller utføre transaksjonen.
Hvis kjøper ikke bidrar til gjennomføring av kundekontrollen og dette fører til at transaksjonen blir forsinket eller ikke kan gjennomføres, vil dette ansees som mislighold av avtalen og gi selger rettigheter etter avhendingslova kapittel 5. I tilfeller der selger ikke bidrar til gjennomføring av løpende kundekontroll underveis i oppdraget, er det selger som misligholder sine forpliktelser etter avtalen og gi kjøper rettigheter etter avhendingslovens kapittel 4. Partene er selv ansvarlige for eventuelle kostnader og ansvar dette kan medføre. Eiendomsmegleren eller eiendomsmeglingsforetaket kan ikke holdes ansvarlig for de konsekvenser dette vil kunne få for partene eller andre som har interesser i eiendomshandelen.
Kjøper oppfordres til å innbetale kjøpesummen som ikke kommer fra låneinstitusjon i én samlet innbetaling fra egen konto i norsk bank. Megler har plikt til å melde fra til Økokrim om eiendomshandler som fremstår som mistenkelige. Melding sendes Økokrim uten at partene varsles.
Personopplysningsloven
I henhold til personopplysningsloven gjør vi oppmerksom på at interessenter kan bli registrert for videre oppfølging.
Lovanvendelse
Generelle bestemmelser
Salgsoppgaven er basert på de opplysningene selger har gitt til megler, den bygningssakyndiges tilstandsrapport, samt opplysninger innhentet fra kommunen, Kartverket og andre tilgjengelige kilder. Det er viktig at kjøper setter seg grundig inn i alle salgsdokumentene, herunder salgsoppgave, tilstandsrapport og selgers egenerklæring. Kjøper anses kjent med forhold som er tydelig beskrevet i salgsdokumentene, og slike forhold kan ikke påberopes som mangler. Dette gjelder uavhengig av om kjøper har lest dokumentene. Alle interessenter oppfordres til å undersøke eiendommen nøye, gjerne sammen med fagkyndig før bud inngis. Kjøper som velger å kjøpe usett kan ikke gjøre gjeldende som mangel noe han burde blitt kjent med ved undersøkelsen.
Dersom det er behov for avklaringer, anbefaler vi at interessenter rådfører seg med eiendomsmegler eller egne rådgivere før det legges inn bud.
En bolig som har blitt brukt i en viss tid, har vanligvis blitt utsatt for slitasje og skader kan ha oppstått. Slik bruksslitasje må kjøper regne med, og det kan avdekkes enkelte forhold etter overtakelse som nødvendiggjør utbedringer. Normal slitasje og skader som nødvendiggjør utbedring, er innenfor hva kjøper må forvente og vil ikke utgjøre en mangel.
Kjøper og selgers rettigheter og plikter reguleres av avtalen mellom partene, samt informasjonen som har vært tilgjengelig for kjøperen i forbindelse med handelen. Avtalen utfylles av avhendingsloven, og det gjelder ulike avtalevilkår avhengig av om kjøper er forbrukerkjøper eller ikke. Dette er nærmere beskrevet nedenfor.
På grunn av ulike avtalevilkår kan selger vurdere bud fra en som ikke er forbruker, ulikt fra en forbrukers bud. Dersom kjøper ikke er forbruker, er selger sitt mulige mangelsansvar begrenset fordi eiendommen selges "som den er". Selger kan ikke ta «som den er»- forbehold overfor en forbrukerkjøper. Selv et lavere bud fra en som ikke er forbruker kan foretrekkes fordi begrensningen i mulig mangelsansvar kan ha egenverdi for selger. Selger står fritt til å forkaste eller akseptere ethvert bud, og er for eksempel ikke forpliktet til å akseptere høyeste bud.
Budgiver skal i budskjema avgi egenerklæring om budgiver er forbruker eller næringsdrivende/ person som hovedsakelig handler som ledd i næringsvirksomhet. Budgivere får informasjon dersom andre bud er inngitt av en som ikke er forbruker.
Forbrukerkjøp - definisjon
Med forbrukerkjøp menes kjøp av eiendom når kjøperen er en fysisk person som ikke hovedsakelig handler som ledd i næringsvirksomhet.
Forbruker – avtalevilkår
Eiendommen har en mangel dersom den ikke er i samsvar med kravene som følger av avtalen, eller det foreligger brudd på bestemmelsene i avhendingsloven §§ 3-2 til 3-8. Hvis eiendommen ikke er i samsvar med det kjøperen må kunne forvente ut ifra alder, type og synlig tilstand, kan det være grunnlag for mangelskrav. Det samme gjelder hvis det er holdt tilbake eller gitt uriktige opplysninger om eiendommen. Dette gjelder likevel bare dersom man kan gå ut ifra at det virket inn på avtalen at opplysningen ikke ble gitt eller at mangelskravet ikke blir rettet i tide på en tydelig måte.
Boligen kan ha en mangel etter avhendingsloven § 3-3 andre ledd, dersom det er avvik mellom opplyst og faktisk innvendig areal, forutsatt at avviket er på 2% eller mer og minimum 1 kvm.
Ved beregning av et eventuelt prisavslag eller erstatning må kjøper selv dekke tap/kostnader opptil et beløp på kr 10 000 (egenandel).
Ikke-forbruker (næringsdrivende) – definisjon
Hvis kjøper er en juridisk person, eller en fysisk person som hovedsakelig handler som ledd i næringsvirksomhet, vil kjøpet ikke anses som et forbrukerkjøp.
Ikke-forbruker – avtalevilkår
Eiendommen har en mangel dersom den ikke er i samsvar med kravene som følger av avtalen.
Eiendommen selges «som den er», og selgers ansvar utover det konkret avtalte er da begrenset etter avhendingsloven § 3-9, første ledd andre setning.
Avhendingsloven § 3-3 andre ledd fravikes, og hvorvidt boligens arealsvikt utgjør en mangel vurderes etter avhendingsloven § 3-8.
Informasjon om kjøpers undersøkelsesplikt, herunder oppfordringen om å undersøke eiendommen nøye, gjelder også for kjøpere som ikke anses som forbrukere.
Det forutsettes at hjemmel overføres til kjøper. Hvis kjøper ikke ønsker hjemmelsoverføring av eiendommen, må det tas forbehold om dette i budet.
Meglers vederlag
Meglers vederlag betales av selger og er avtalt til:
Vederlag: 1,00 % av salgssummen inkl. eventuell fellesgjeld. Minimumsprovisjon er kr 65 000,00
Vederlag:
Kontroll av hjemmel og heftelser kr 3 900,00
Markedsføringspakke kr 30 900,00
Oppgjør kr 8 900,00
Tilrettelegging kr 19 900,00
Visninger pr stk / Overtagelse kr 4 000,00
Utlegg:
Eierskiftegebyr forretningsfører - OBOS kr 6 725,00
Innhenting av informasjon forretningsfører kr 2 850,00
Tinglysing sikring kr 545,00
Andre utgifter:
AX tilstandsrapport rekkehus/tomannsbolig kr 13 000,00
Boligselgerforsikring Gjensidige Andel/Aksje regnes av prisant. kr 18 157,50
Foto kr 5 500,00
Vi er opptatt av verdiskapning, og har knyttet til oss samarbeidspartnere som skal sikre våre kunder de beste produkter og tjenester;
• I forbindelse med forberedelse av salget, innhenter vi informasjon om eiendommen hovedsakelig fra vår samarbeidspartner Amibita.
• Gjensidige leverer boligselgerforsikring og tilbyr bygningsforsikring
• Boligkjøperforsikring leveres av Hiscox og med Sedgwick som skadebehandler, og er formidlet gjennom Gjensidige.
• BN bank tilbyr finansieringsløsninger
• Vår avdeling Krogsveen Pluss tilbyr flyttetjenester som utvask, visningsvask, lager, tømming og transport av flyttelass, i tillegg til å formidle kontakt med Flip for overflateoppussing.
• I forbindelse med overtagelse av eiendommen tilbyr Overo avtale om strøm, alarm og bredbånd.
• Krogsveen er, sammen med øvrige bransjeaktører, medeier i Bomega AS som tilbyr den digitale annonseringsplattformen Hjem.
Opplysninger om oppdraget
Oppdragsnummer 37-0036/26
Eiendomsmegler Krogsveen AS, avd. Hasle
Valle View, Innspurten 11D, 0663, OSLO
950007613
Oppdragets KR-kode KR37.2636
Dato
Sist oppdatert: 21. mai 2026 kl. 19:09
Dokumenter
Dokumenter
PDF – 646 KB
PDF – 927 KB
PDF – 2 MB
PDF – 312 KB
PDF – 29 KB
PDF – 127 KB
PDF – 392 KB
Område
Legg til steder som er viktige for deg
Visning
Det er ingen planlagte visninger. Meld deg på for å avtale en tid som passer.
Lurer du på noe?
Unngå doble boligrenter
Vi tilbyr gunstig forsikring.
Vurderer du utleie?
Få et tilbud fra Utleie KrogsveenHva koster lånet?
Sjekk estimert lånekostnadVil du varsles om lignende boliger?
Ved å lagre ditt boligsøk hos oss får du beskjed når vi har en bolig som ligner denne, før den legges ut på markedet!

