Helgerødsletta 6
4 850 000 kr
130 m²
4 soverom
Komplett salgsoppgave

Bokemoa
Romslig enebolig fra 2018 med gjennomgående fin standard - Innredet med 4 soverom og 2 bad, samt separat tv-stue på loft
Prisantydning
4 850 000 krOmkostninger
142 240 krTotalpris
4 992 240 kr
Pris
Bruksareal
135 m²BRA-I (internt bruksareal)
130 m²BRA-E (eksternt bruksareal)
5 m²TBA (terrasse-balkongareal)
50 m²
Areal
Byggeår
2018Soverom
4 soveromBad
2 badTomteareal
139 m² (eiet)Type
Enebolig i kjedeEierform
EietFasiliteter
Garasje/P-plass og Balkong/TerrasseEnergimerke
Lysegrønn C
Nøkkelinfo
Unngå doble boligrenter
Vi tilbyr gunstig forsikring.
Vurderer du utleie?
Få et tilbud fra Utleie KrogsveenHva koster lånet?
Sjekk estimert lånekostnadBeskrivelse
Kort om eiendommen
Helgerødsletta 6 ble oppført i 2018 som et hjem der hverdagen skulle flyte lett og familien få rom til å vokse. Med sin gjennomtenkte planløsning, fire soverom, to bad og en innredet loftsstue, har boligen gitt plass til både rolige morgener og livlige ettermiddager.
Kjøkkenet har vært et naturlig samlingspunkt – romslig, funksjonelt og godt egnet for både hverdagsmåltider og hyggelige sammenkomster.
Boligen har blitt tatt godt vare på og fremstår i dag med en solid og moderne standard. Her har man kunnet trekke seg tilbake i rolige omgivelser, samtidig som skole, sentrum og transport har vært innen kort rekkevidde.
Et hjem bygget for trivsel, funksjonalitet og gode minner.
Boligen er omgitt av landlige omgivelser med nærhet til både åpne jorder, skogsområder samt ski og turområder.
Innhold og byggemåte
Innhold og byggemåte
Eiendommen
Helgerødsletta 6, 3160 STOKKE
Kommunenummer 3907, gårdsnummer 458, bruksnummer 512, ideell andel 1/1
Innhold
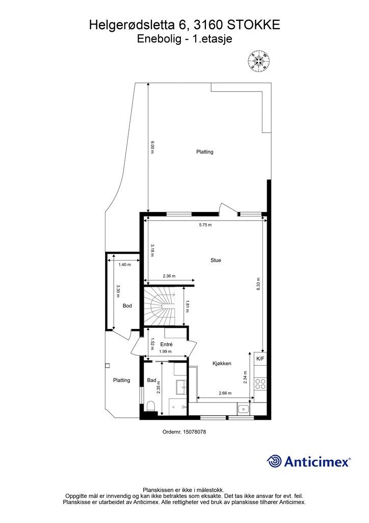
Totalt bruksareal BRA: 135 kvm
BRA-i:
1. etasje 54 kvm: Entre, bad, kjøkken og stue.
2. etasje 53 kvm: Gang, bad, bod og tre soverom.
3. etasje 23 kvm: Gang, soverom og loftstue.
BRA-e:
1. etasje 5 kvm: Bod.
Åpent areal:
1. etasje 50 kvm: To plattinger. 43 kvm og 7 kvm.
3.etasje har et totalt gulvareal (GUA) på 27 kvm, men grunnet skråtak/lav takhøyde er kun 23 kvm av arealet måleverdig som bruksareal. De delene av arealene som har lav himlingshøyde (ALH) utgjør 4 kvm.
Plattinger er dekket av snø på befaringstidspunktet. Arealmåling kan ha avvik.
Boligen har i tillegg en biloppstillingsplass på ca. 16 m2 i felles carportrekke.
Vedlagte plantegninger er ikke målbare. De oppgitte arealer er hentet fra rapport med befaringsdato 06.01.2026 utført av Anticimex Sandefjord AS. Arealene er beregnet og rom er definert etter dagens faktiske bruk, uavhengig av hva som er godkjent av bygningsmyndighetene.
Byggemåte
Selger har fått utarbeidet en tilstandsrapport, dvs. en teknisk gjennomgang av boligen hvor eventuelle avvik, risiko for kjøper og prisoverslag for hva som bør gjøres av oppgradering, er skissert. Se særskilt TGIU (tilstandsgrad ikke undersøkt), samt TG2 og TG3 som viser hva som er boligens normale slitasje, alder og type, hva som er avvik fra dette og hva som bør/må utbedres. Rapporten og selgers egenerklæring er en del av salgsoppgaven og må leses nøye før bud inngis. Kjøper overtar ansvaret for de opplysninger som fremkommer av salgsdokumentasjonen, og kan ikke gjøre gjeldende som mangel noe som burde vært kjent eller som ikke kan anses å ha betydning for avtalen.
Bygningen er iht. tilstandsrapporten oppført med grunnmur av ringmurselementer og mur-/betongkonstruksjon og støpt plate på mark. Etasjeskillere av trekonstruksjoner. Yttervegger i trekonstruksjon med utvendig liggende og stående trekledning. Yttertak med saltaksform av trekonstruksjon tekket med takstein. Ytterdør med slett flate og glassfelt. Vinduer og terrasse-/balkongdører med karmer/rammer av tre med tre-lags glass.
Utover normal elde og slitasje gjøres spesielt oppmerksom på:
TG 2:
* Bad: Gulv utenfor dusjsonen er tilnærmet flatt og har ikke tilstrekkelig fall mot sluk. Det er ingen oppkant ved dør.
* Loft: Det er pågående arbeider med sparkling og maling av vegg ved dør i loftstue. (selger opplyser at vegg nå er sparklet/malt)
* Fasader inkl kledning: Underkant kledning har kort avstand til terreng/terrasse/platting ol.
Selger opplyser at veggen sparklingen/malingen er nå fullført
Standard
Velkommen til Helgerødsletta 6 – en moderne familiebolig fra 2018
I Helgerødsletta 6 får du en bolig som kombinerer rolig beliggenhet, gode solforhold og nærhet til alt du trenger i hverdagen. Eiendommen ligger i et etablert og attraktivt område i Stokke, med et hyggelig nabolag og kort vei til både natur, servicetilbud og gode transportforbindelser.
Her bor du tilbaketrukket og fredelig, samtidig som Stokke sentrum ligger kun en kort spasertur unna. Boligen passer perfekt for både barnefamilier, par og deg som ønsker god plass i rolige omgivelser.
Helgerødsletta er kjent for sitt rolige preg og nærhet til flotte tur- og rekreasjonsområder. Her kan du starte dagen med en spasertur i nærområdet, og avslutte den med middag i egen hage eller på terrassen. Skoler, barnehager, dagligvarebutikker og kollektivtransport er lett tilgjengelig, noe som gjør hverdagen effektiv og behagelig.
Med kort vei til togstasjon og enkel adkomst til E18, er dette et ideelt bosted for pendlere. Sandefjord, Tønsberg og resten av Vestfold er innen komfortabel rekkevidde.
Boligen fremstår som velholdt og holder en gjennomgående solid og moderne standard, hvor både materialvalg og planløsning gir en lun og tidløs atmosfære.
Helgerødsletta 6 er en moderne og romslig bolig fra 2018, som holder en gjennomgående solid og tidsriktig standard. Boligen har en svært funksjonell planløsning med god plass til både familie og sosiale sammenkomster.
Boligen inneholder fire romslige soverom, som gir fleksible bruksmuligheter – enten til barnerom, gjesterom eller hjemmekontor. Videre er det to delikate bad, praktisk plassert for å dekke familiens behov i en travel hverdag.
I tillegg byr boligen på en innredet loftsstue, som fungerer utmerket som ekstra oppholdsrom, TV-stue, lekerom eller kontor. Dette gir boligen en ekstra dimensjon og god mulighet for sonedeling mellom voksne og barn.
Kjøkkenet fremstår som et av boligens naturlige samlingspunkter. Her får du et særdeles romslig kjøkken med moderne innredning, rikelig med skap- og benkeplass samt gode arbeidsforhold – ideelt både for hverdagsbruk og når man har gjester.
Nøkkelkvalifikasjoner:
*Særdeles pendlervennlig (like ved togstasjon og E-18)
*Fantastiske turområder, samt kort vei til skiløyper
*Umiddelbar nærhet til barneskole og ungdomsskole
*Mange barn og lekekamerater i nabolaget
*Kort gangavstand til sentrum
*Nyere bolig (2018) med begrenset vedlikeholdsbehov
*Innredet med 4 soverom, 2 bad og loftstue
Oppvarming
Elektrisk oppvarming med gulvvarme og panelovner samt varmepumpe.
Dersom beboelsesrom ikke har vegg- eller fastmonterte varmekilder ved visning, følger dette heller ikke med.
Ferdigattest/brukstillatelse
Det foreligger ferdigattest på "Helgerødsletta 6, 8A og 8 B", datert 28.8.2018. Denne kan fås ved henvendelse til megler.
Der foreligger også ferdigattest datert 15.09.2019 som omfatter innredning av loftsetasje (Bruksendring for loftsetasjen til boligdel).
Tinglyste heftelser og rettigheter
Eiendommen overdras fri for pengeheftelser.
Det er ingen tinglyste servitutter på eiendommen.
Eventuell adgang til utleie
Eiendommen har ikke separat utleieenhet. Det vil normalt være anledning til utleie av hele eiendommen eller enkeltrom, såfremt utleiearealet er bygningsmessig godkjent for varig opphold og har forsvarlige radonnivåer.
Diverse
El-bil lader følger ikke med, men det er lagt opplegg klart til montering.
Beliggenhet og tomteforhold
Beliggenhet og tomteforhold
Beliggenhet
Bolig beliggende i et populært og barnevennlig område i Stokke. Kort vei til barnehage, barneskole og ungdomsskole samt flotte turstier i Bokemoa. Det er også kort avstand til et godt utvalg av flere serveringssteder, bibliotek, butikker, vinmonopol og helsetjenester i Stokke sentrum.
Kort vei til E18, samt tre minutters gangavstand fra bolig til både busstopp og Jernbanestasjonen med hyppige avganger både sydover samt mot Drammen/Oslo/Gardermoen. Kun 10 minutter med bil til Torp Flyplass der du får daglige avganger til en rekke europeiske byer!
For tur- og skientusiastene er Storås kun 6 minutter unna med bil, her får du fantastiske skiløyper på vinterstid og flotte turområder på sommerstid. Stokke byr også på en idyllisk bøkeskog, flotte turområder med stier og lysløyper. For den golfinteresserte er det få minutters kjøreavstand til Vestfold Golfbane som er en tradisjonsrik og veldrevet 18-hulls golfbane i flotte omgivelser.
En flott eiendom for den aktive familie som søker lett tilgang til flotte tur- og rekreasjonsområder samtidig som nærheten til sentrumsfunksjoner spiller en vesentlig rolle. Her vil barna kunne løpe fritt i et område med gode og trygge oppvekstvilkår!
Adkomst
Megler oppfordrer alle interessenter til å vise hensyn ved kjøring inn til eiendommen, da det bor og ferdes mange barn i området. Det vil bli satt opp «Til salgs»-skilter på huset
For øvrig vises det til vedlagt kartskisse nederst i FINN-annonsen. Ved å klikke på kartet får du enkel tilgang til en detaljert reiserute fra ønsket startdestinasjon til eiendommen.
Barnehager, skoler og fritid
Særdeles kort gangavstand Frydenlund barnehage, Bokmoa barneskole og Stokke ungdomsskole.
Tilhørigheten kan årlig endres av kommunen. Dersom skole- og barnehagetilbud er av betydning for kjøpet, ber vi om at det rettes en særskilt henvendelse til kommunen for oppdatert informasjon.
Beskrivelse av tomt
Lettstelt eiertomt på 139 kvm. bestående av en fint skjermet og opparbeidet hage, som er omkranset av en solid hekk som sørger for lite innsyn.
Det gjøres oppmerksom på at nabo disponerer p-plass i forkant av kjøkkenvindu, og at dette arealet ligger på nabotomt.
Parkering
Parkering i carport.
Vei, vann og avløp
Eiendommen har adkomst via kommunal vei.
Eiendommen er tilknyttet kommunalt ledningsnett via private stikkledninger. Eier er selv ansvarlig for private stikkledninger til boligen.
Regulerings-og arealplaner
Eiendommen er regulert til Båndlegging for regulering etter pbl (Intercity Vetfolbanen, planstrekning Stokke -Larvik), boligbebyggelse og gul sone i henhold til kommuneplanens arealdel vedtatt 21.9.2023.
Iht reguleringsplan "Stokke sentrum syd" datert 11.6.2020 er eiendommen regulert til boligbebyggelse.
Utsnitt av plan med tilhørende bestemmelser kan fås ved henvendelse til megler.
Økonomi
Økonomi
Kommunale utgifter
Kommunale avgifter er kr 13 927,- for inneværende år. I dette inngår gebyr for vann, avløp og renovasjon (andel av fellesløsning).
Nåværende eier har et strømforbruk på ca 22 200 kwh. pr. år. Det er ikke tegnet Norgespris.
Boligen har en årlig forsikringspremie på kr 10 939,-.
Privat brøyting ca kr 2 000,- pr. år.
Boligen er tilknyttet Altibox/Viken fiber som leverandør av fiber og har en avgift på kr 1 399,- pr. mnd. Tv-tuner/dekoder medfølger.
Utgiftene er basert på nåværende eiers forbruk og avtaler.
Formuesverdi
Ved hjelp av skatteetatens boligkalkulator er boligens formuesverdi beregnet til kr. 1 203.128,-for 2024 når boligen benyttes som primærbolig.
Formuesverdien er en gitt prosent av den beregnede markedsverdien. Beregnet markedsverdi er basert på Statistisk sentralbyrå (SSB) sine opplysninger om omsatte boliger. I beregningen tas det hensyn til boligens beliggenhet, areal, byggeår og boligtype.
Det er eier av boligen som fastsetter formuesverdien, jf. skatteforvaltningsloven § 9-1 første ledd, men skattemyndighetene kan kontrollere at verdien er satt riktig.
Formuesverdi skal ikke overstige:
Primærbolig: 25 % av beregnet eller dokumentert markedsverdi opp til kr. 10 000 000, og deretter 70 % av den overskytende markedsverdi.
Sekundærbolig: 100 % av beregnet eller dokumentert markedsverdi.
Formuesverdier som overstiger disse grensene, kan kreves nedjustert av eier.
For mer informasjon se skatteetaten.no
Omkostninger
4 850 000,00 Prisantydning
Omkostninger
121 250,00 Dokumentavgift til staten (2,5% av kjøpesum)
19 900,00 Gjensidige Boligkjøperpakke (valgfri)
545,00 Tinglysing panterettsdokument
545,00 Tinglysing skjøte
--------------------------------------------------------
142 240,00 Omkostninger totalt
--------------------------------------------------------
4 992 240,00 Totalpris inkl. omkostninger
--------------------------------------------------------
Betalingsbetingelser
Kjøpesum inkludert omkostninger, samt pantedokument tilknyttet eventuelt lån, skal være disponibelt hos megler 2 virkedager før overtagelsen.
Annen viktig informasjon
Annen viktig informasjon
Eier
Mathias Hommelsgård-Vethe og Maria Hommelsgård-Vethe
Overtakelse
Etter nærmere avtale.
Boligselgerforsikring
Selger har i forbindelse med salget tegnet boligselgerforsikring levert av Gjensidige.
Boligselgerforsikringen dekker selgers ansvar etter avhendingsloven begrenset oppad til kr 14 millioner. Dersom kjøper oppdager forhold ved eiendommen som hen mener utgjør en mangel ved eiendommen, vil Gjensidige behandle reklamasjonen på vegne av selger. Forsikringsvilkår kan fås ved henvendelse til megler.
Vedlagt salgsoppgaven følger selgers egenerklæringsskjema og tilstandsrapport. Interessenter må sette seg inn i dokumentene før bud inngis.
Boligkjøperforsikring
Innen kontraktsmøtet må kjøper ta stilling til om det ønskes å bestille Boligkjøperpakken gjennom Gjensidige. I denne gunstige pakken er boligen ferdig forsikret og inkluderer rettshjelpsforsikring, også kalt Boligkjøperforsikring. Rettshjelpsforsikring gir trygghet og tilgang på profesjonell juridisk hjelp dersom det oppdages uventede feil eller mangler det første året etter overtagelse. Forsikringsselskapet behandler i så fall ethvert mangelskrav kjøper måtte ha overfor selger.
Boligkjøperpakken inkluderer bygningsforsikring for hus og hytte, innboforsikring, flytteforsikring og dobbel rentedekning - i situasjoner hvor kjøper ikke får solgt nåværende primærbolig.
Kjøper mottar ingen særskilt faktura for Boligkjøperpakken da kostnaden det første året legges til kjøpesummen for boligen. Det gjøres oppmerksom på Krogsveen mottar et honorar for denne formidlingen.
Produktark for Boligkjøperpakken ligger vedlagt i salgsoppgaven.
Dersom ikke boligkjøperpakke ønskes kan kun rettshjelpsforsikring, også kalt boligkjøperforsikring, tegnes særskilt via megler. Rettshjelpsforsikringen varer i 5 år fra overtagelse og leveres gjennom Gjensidige. Ta kontakt med megler for ytterligere informasjon.
Selskap og privatpersoner som driver med kjøp/salg/utvikling som ledd i egen næringsvirksomhet kan ikke tegne boligkjøperpakke eller rettshjelpsforsikring.
Budgivning
Forbrukerinformasjon om budgivning er vedlagt denne salgsoppgaven og er også på vår hjemmeside Krogsveen.no. Alle bud og budforhøyelser må inngis skriftlig. I tillegg må legitimasjon være fremlagt sammen med signatur fra budgiver.
Vi oppfordrer til å gi bud elektronisk via GI BUD-knappen på eiendommens hjemmeside på Krogsveen.no. Da vil samtlige vilkår bli oppfylt.
Eventuelle forhøyelser eller endringer av budet kan bekreftes pr SMS eller på e-post. Vi oppfordrer alltid til å kontakte megler pr. telefon i tillegg da forsinkelser i SMS og e-post kan forekomme.
For at budene skal kunne bli behandlet og videreformidlet skriftlig til alle involverte parter, må alle bud ha en tilstrekkelig lang akseptfrist, jf. eiendomsmeglingsforskriften § 6-3.
Selger må også skriftlig akseptere budet før aksept kan formidles til budgiver. Akseptfrist bør derfor være på minimum 30 minutter, og budforhøyelser må derfor skje i god tid før fristens utløp.
Bud i forbrukerforhold kan uansett ikke settes med kortere frist enn kl. 12.00 første virkedag etter siste annonserte visning. I tillegg kan ikke budet ha forbehold om at det skal holdes hemmelig ovenfor øvrige interessenter. Megler har iht lov om eiendomsmegling ikke anledning til å videreformidle disse budene, og de vil dermed heller ikke bli journalført.
Etter at eiendommen er solgt vil kjøper og selger få tilsendt budjournal. Øvrige budgivere kan få utlevert kopi av budjournalen i anonymisert form.
Hvitvaskingsreglene
I henhold til lov om hvitvasking og terrorfinansiering har megler plikt til å gjennomføre kontrolltiltak overfor kunder, herunder fullmektiger. Dette innebærer bl.a. å bekrefte kunders og reelle rettighetshaveres identitet på bakgrunn av fremvist gyldig legitimasjon eller på annen godkjent måte, samt å innhente opplysninger om kundeforholdets formål og tilsiktede art.
Dersom slike kundetiltak ikke kan gjennomføres, kan megler ikke etablere kundeforholdet eller utføre transaksjonen.
Hvis kjøper ikke bidrar til gjennomføring av kundekontrollen og dette fører til at transaksjonen blir forsinket eller ikke kan gjennomføres, vil dette ansees som mislighold av avtalen og gi selger rettigheter etter avhendingslova kapittel 5. I tilfeller der selger ikke bidrar til gjennomføring av løpende kundekontroll underveis i oppdraget, er det selger som misligholder sine forpliktelser etter avtalen og gi kjøper rettigheter etter avhendingslovens kapittel 4. Partene er selv ansvarlige for eventuelle kostnader og ansvar dette kan medføre. Eiendomsmegleren eller eiendomsmeglingsforetaket kan ikke holdes ansvarlig for de konsekvenser dette vil kunne få for partene eller andre som har interesser i eiendomshandelen.
Kjøper oppfordres til å innbetale kjøpesummen som ikke kommer fra låneinstitusjon i én samlet innbetaling fra egen konto i norsk bank. Megler har plikt til å melde fra til Økokrim om eiendomshandler som fremstår som mistenkelige. Melding sendes Økokrim uten at partene varsles.
Personopplysningsloven
I henhold til personopplysningsloven gjør vi oppmerksom på at interessenter kan bli registrert for videre oppfølging.
Lovanvendelse
Generelle bestemmelser
Salgsoppgaven er basert på de opplysningene selger har gitt til megler, den bygningssakyndiges tilstandsrapport, samt opplysninger innhentet fra kommunen, Kartverket og andre tilgjengelige kilder. Det er viktig at kjøper setter seg grundig inn i alle salgsdokumentene, herunder salgsoppgave, tilstandsrapport og selgers egenerklæring. Kjøper anses kjent med forhold som er tydelig beskrevet i salgsdokumentene, og slike forhold kan ikke påberopes som mangler. Dette gjelder uavhengig av om kjøper har lest dokumentene. Alle interessenter oppfordres til å undersøke eiendommen nøye, gjerne sammen med fagkyndig før bud inngis. Kjøper som velger å kjøpe usett kan ikke gjøre gjeldende som mangel noe han burde blitt kjent med ved undersøkelsen.
Dersom det er behov for avklaringer, anbefaler vi at interessenter rådfører seg med eiendomsmegler eller egne rådgivere før det legges inn bud.
En bolig som har blitt brukt i en viss tid, har vanligvis blitt utsatt for slitasje og skader kan ha oppstått. Slik bruksslitasje må kjøper regne med, og det kan avdekkes enkelte forhold etter overtakelse som nødvendiggjør utbedringer. Normal slitasje og skader som nødvendiggjør utbedring, er innenfor hva kjøper må forvente og vil ikke utgjøre en mangel.
Kjøper og selgers rettigheter og plikter reguleres av avtalen mellom partene, samt informasjonen som har vært tilgjengelig for kjøperen i forbindelse med handelen. Avtalen utfylles av avhendingsloven, og det gjelder ulike avtalevilkår avhengig av om kjøper er forbrukerkjøper eller ikke. Dette er nærmere beskrevet nedenfor.
På grunn av ulike avtalevilkår kan selger vurdere bud fra en som ikke er forbruker, ulikt fra en forbrukers bud. Dersom kjøper ikke er forbruker, er selger sitt mulige mangelsansvar begrenset fordi eiendommen selges "som den er". Selger kan ikke ta «som den er»- forbehold overfor en forbrukerkjøper. Selv et lavere bud fra en som ikke er forbruker kan foretrekkes fordi begrensningen i mulig mangelsansvar kan ha egenverdi for selger. Selger står fritt til å forkaste eller akseptere ethvert bud, og er for eksempel ikke forpliktet til å akseptere høyeste bud.
Budgiver skal i budskjema avgi egenerklæring om budgiver er forbruker eller næringsdrivende/ person som hovedsakelig handler som ledd i næringsvirksomhet. Budgivere får informasjon dersom andre bud er inngitt av en som ikke er forbruker.
Forbrukerkjøp - definisjon
Med forbrukerkjøp menes kjøp av eiendom når kjøperen er en fysisk person som ikke hovedsakelig handler som ledd i næringsvirksomhet.
Forbruker – avtalevilkår
Eiendommen har en mangel dersom den ikke er i samsvar med kravene som følger av avtalen, eller det foreligger brudd på bestemmelsene i avhendingsloven §§ 3-2 til 3-8. Hvis eiendommen ikke er i samsvar med det kjøperen må kunne forvente ut ifra alder, type og synlig tilstand, kan det være grunnlag for mangelskrav. Det samme gjelder hvis det er holdt tilbake eller gitt uriktige opplysninger om eiendommen. Dette gjelder likevel bare dersom man kan gå ut ifra at det virket inn på avtalen at opplysningen ikke ble gitt eller at mangelskravet ikke blir rettet i tide på en tydelig måte.
Boligen kan ha en mangel etter avhendingsloven § 3-3 andre ledd, dersom det er avvik mellom opplyst og faktisk innvendig areal, forutsatt at avviket er på 2% eller mer og minimum 1 kvm.
Ved beregning av et eventuelt prisavslag eller erstatning må kjøper selv dekke tap/kostnader opptil et beløp på kr 10 000 (egenandel).
Ikke-forbruker (næringsdrivende) – definisjon
Hvis kjøper er en juridisk person, eller en fysisk person som hovedsakelig handler som ledd i næringsvirksomhet, vil kjøpet ikke anses som et forbrukerkjøp.
Ikke-forbruker – avtalevilkår
Eiendommen har en mangel dersom den ikke er i samsvar med kravene som følger av avtalen.
Eiendommen selges «som den er», og selgers ansvar utover det konkret avtalte er da begrenset etter avhendingsloven § 3-9, første ledd andre setning.
Avhendingsloven § 3-3 andre ledd fravikes, og hvorvidt boligens arealsvikt utgjør en mangel vurderes etter avhendingsloven § 3-8.
Informasjon om kjøpers undersøkelsesplikt, herunder oppfordringen om å undersøke eiendommen nøye, gjelder også for kjøpere som ikke anses som forbrukere.
Det forutsettes at hjemmel overføres til kjøper. Hvis kjøper ikke ønsker hjemmelsoverføring av eiendommen, må det tas forbehold om dette i budet.
Meglers vederlag
Meglers vederlag betales av selger og er avtalt til:
Fastpris: 30 000,-
Vederlag:
Fotopakke kr 4 800,00
Kontroll av hjemmel og heftelser kr 2 900,00
Markedsføringspakke kr 29 900,00
Oppgjør kr 7 500,00
Tilrettelegging kr 17 000,00
Utlegg:
Innhenting av offentlig opplysninger Sandefjord - Norkart kr 3 166,00
Tinglysing sikring kr 545,00
Andre utgifter:
AX tilstandsrapport enebolig kr 20 625,00
Boligselgerforsikring Gjensidige Eiet - regnes av prisantydning kr 25 124,00
Vi er opptatt av verdiskapning, og har knyttet til oss samarbeidspartnere som skal sikre våre kunder de beste produkter og tjenester;
• I forbindelse med forberedelse av salget, innhenter vi informasjon om eiendommen hovedsakelig fra vår samarbeidspartner Amibita.
• Gjensidige leverer boligselgerforsikring og tilbyr bygningsforsikring
• Boligkjøperforsikring leveres av Hiscox og med Sedgwick som skadebehandler, og er formidlet gjennom Gjensidige.
• BN bank tilbyr finansieringsløsninger
• Vår avdeling Krogsveen Pluss tilbyr flyttetjenester som utvask, visningsvask, lager, tømming og transport av flyttelass, i tillegg til å formidle kontakt med Flip for overflateoppussing.
• I forbindelse med overtagelse av eiendommen tilbyr Overo avtale om strøm, alarm og bredbånd.
• Krogsveen er, sammen med øvrige bransjeaktører, medeier i Bomega AS som tilbyr den digitale annonseringsplattformen Hjem.
Opplysninger om oppdraget
Oppdragsnummer 22-0496/25
Eiendomsmegler Krogsveen AS, avd. Sandefjord
Jernbanealléen 13, 3210, SANDEFJORD
950 007 613
Oppdragets KR-kode KR22.25496
Dato
Sist oppdatert: 21. januar 2026 kl. 15:34
Dokumenter
Dokumenter
PDF – 1017 KB
PDF – 561 KB
PDF – 137 KB
PDF – 312 KB
PDF – 29 KB
PDF – 127 KB
PDF – 392 KB
Område
Legg til steder som er viktige for deg
Visning
For å delta på visning, ber vi om at du melder deg på. Da sikrer vi at du får nødvendig informasjon og at det er satt av tilstrekkelig med tid. Kontakt megler dersom annet tidspunkt ønskes. Husk å lese salgsoppgaven før visningen, så du stiller forberedt. NB. Visning utgår dersom det ikke er noen påmeldte.
Ønsker du kun å bli holdt orientert, kan du fra eiendommens hjemmeside få varsel om solgtpris, eller kontakte megler.
Lurer du på noe?
Unngå doble boligrenter
Vi tilbyr gunstig forsikring.
Vurderer du utleie?
Få et tilbud fra Utleie KrogsveenHva koster lånet?
Sjekk estimert lånekostnadVil du varsles om lignende boliger?
Ved å lagre ditt boligsøk hos oss får du beskjed når vi har en bolig som ligner denne, før den legges ut på markedet!

