Nyvei 15
4 150 000 kr
66 m²
1 soverom
Solgt

Loggen Brygge
BUD MOTTATT! Fin leilighet på bryggekanten - Direkte adkomst til sjøen - Parkering i garasjeanlegg - Båtplass medfølger!
Prisantydning
4 150 000 krAndel fellesgjeld
37 977 krOmkostninger
115 710 krTotalpris
4 303 687 kr
Pris
Bruksareal
71 m²BRA-I (internt bruksareal)
66 m²BRA-E (eksternt bruksareal)
5 m²TBA (terrasse-balkongareal)
33 m²
Areal
Byggeår
2014Soverom
1 soveromBad
1 badType
EierleilighetEierform
EierseksjonFasiliteter
Garasje/P-plass og Balkong/TerrasseFellesutgifter
4 101 krEnergimerke
Rød C
Nøkkelinfo
Unngå doble boligrenter
Vi tilbyr gunstig forsikring.
Vurderer du utleie?
Få et tilbud fra Utleie KrogsveenHva koster lånet?
Sjekk estimert lånekostnadBeskrivelse
Kort om eiendommen
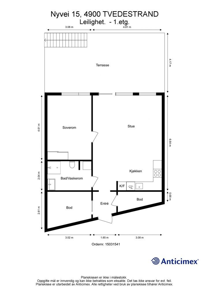
Nyvei 15 er en fin leilighet med gode løsninger. Det tilhører en stor terrasse på ca. 33 kvm med god plass til soling, gjester og grilling blant annet. Det er sol på terrassen fra formiddag til sent på kveld og en fin utsikt fra stue/kjøkken mot sjøen. Leiligheten holder en god stand og er oppgradert i nyere tid, blant annet med innredning og fliser på baderommet. Leiligheten er praktisk og moderne med en fantastisk beliggenhet. Adkomst er enkel via heis i bygget, eller innvendige/utvendige trapper. Det er vannbåren varme i boligen og lave strømutgifter.
Leiligheten inneholder: Entré, bad/vaskerom, soverom, to boder og stue/kjøkken. En parkeringsplass i felles garasjeanlegg og en sportsbod. Fine fellesarealer med brygge og bademuligheter.
Område
Legg til steder som er viktige for deg
På flyttefot? Tenk kjøp og salg samtidig.
Få din egen rådgiver gjennom hele kjøps- og salgsprosessen. Det starter med en verdivurdering.
Unngå doble boligrenter
Vi tilbyr gunstig forsikring.
Vurderer du utleie?
Få et tilbud fra Utleie KrogsveenHva koster lånet?
Sjekk estimert lånekostnadVil du varsles om lignende boliger?
Ved å lagre ditt boligsøk hos oss får du beskjed når vi har en bolig som ligner denne, før den legges ut på markedet!

