Berberissveien 30H
4 300 000 kr
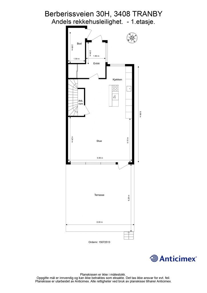
112 m²
3 soverom
Solgt

Presenteres av
Truls Eirik HolmTRANBY
Pent oppusset rekkehus i barnevennlig og trygt område. 3 soverom. Garasjeplass, v.vann og fyring inkl. i felleskost.
Prisantydning
4 300 000 krAndel fellesgjeld
230 198 krOmkostninger
17 610 krTotalpris
4 547 808 kr
Pris
Bruksareal
118 m²BRA-I (internt bruksareal)
112 m²BRA-E (eksternt bruksareal)
6 m²TBA (terrasse-balkongareal)
44 m²
Areal
Etasje
2Byggeår
1974Soverom
3 soveromBad
1 badType
RekkehusEierform
AndelFasiliteter
Garasje/P-plass og Balkong/TerrasseFellesutgifter
8 643 krEnergimerke
Grønn E
Nøkkelinfo
Unngå doble boligrenter
Vi tilbyr gunstig forsikring.
Vurderer du utleie?
Få et tilbud fra Utleie KrogsveenHva koster lånet?
Sjekk estimert lånekostnadBeskrivelse
Kort om eiendommen
Velkommen til Berberissveien 30H, presentert av Truls E. Holm i Krogsveen.
Her får du et innholdsrikt rekkehus over 2 etasjer som inneholder 3 soverom, bad/vaskerom, WC-rom, stue, kjøkken og entré. Boligen ligger i et trygt og barnevennlig område med nærhet til lekeplass.
Kort fortalt:
3 soverom
Bad og separat WC-rom
Varmtvann og oppvarming er inkludert i felleskostnadene
Parkeringsplass i garasjeanlegg
Barnevennlig beliggenhet med umiddelbar nærhet til lekeplass
Gangavstand til buss, barnehage, skoler, matbutikk, idrettsanlegg m.m.
Gode solforhold
Ca. 15 min. med bil til Asker og ca. 10 min. til Drammen
Nærhet til marka og bademuligheter
Velkommen til visning! </
Område
Legg til steder som er viktige for deg
Megler

Truls Eirik Holm
Eiendomsmegler/ Partner
På flyttefot? Tenk kjøp og salg samtidig.
Få din egen rådgiver gjennom hele kjøps- og salgsprosessen. Det starter med en verdivurdering.
Unngå doble boligrenter
Vi tilbyr gunstig forsikring.
Vurderer du utleie?
Få et tilbud fra Utleie KrogsveenHva koster lånet?
Sjekk estimert lånekostnadVil du varsles om lignende boliger?
Ved å lagre ditt boligsøk hos oss får du beskjed når vi har en bolig som ligner denne, før den legges ut på markedet!
På flyttefot? Slik gjør vi det enklere for deg
Skreddersydd flyttepakke
Vi fikser håndverkere, vask, pakking, lagring og transport, og legger ut for utgiftene underveis.
Hjelp med både kjøp og salg
Hos oss har du din egen rådgiver gjennom hele kjøps- og salgsprosessen.
Hjelp til finansiering
Vårt samarbeid med BN Bank sikrer deg rask og løsningsorientert hjelp, til konkurransedyktige betingelser.
