Konvallveien 12A
2 500 000 kr
70 m²
2 soverom
Solgt
Attraktiv & sentral tomannsbolig på ett plan |2 sov |Garasje |Romslig hage!
Prisantydning
2 500 000 krOmkostninger
83 490 krTotalpris
2 583 490 kr
Pris
Bruksareal
106 m²BRA-I (internt bruksareal)
70 m²BRA-E (eksternt bruksareal)
36 m²TBA (terrasse-balkongareal)
16 m²
Areal
Etasje
1Byggeår
1973Soverom
2 soveromBad
1 badTomteareal
695 m² (eiet)Type
Halvpart vertikaldelt boligEierform
EietFasiliteter
Garasje/P-plass og Balkong/TerrasseEnergimerke
Oransje G
Nøkkelinfo
Unngå doble boligrenter
Vi tilbyr gunstig forsikring.
Vurderer du utleie?
Få et tilbud fra Utleie KrogsveenHva koster lånet?
Sjekk estimert lånekostnadBeskrivelse
Kort om eiendommen
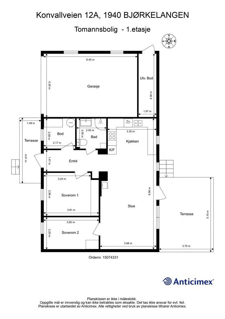
Konvallveien 12 A er en lys og innbydende halvpart av en vertikaldelt tomannsbolig – alt på ett plan med en praktisk og funksjonell planløsning. Eiendommen ligger i et attraktivt og sentralt boligområde på Bjørkelangen, med kort gangavstand til både skoler, barnehager og dagligvarebutikk.
Her kan du nyte solen fra tidlig morgen til sen kveld, takket være terrasser mot både øst og vest. Hagen er pent opparbeidet – perfekt for lek, avslapning og hagearbeid. Det er parkering både i garasje og på gruset gårdsplass.
Innendørs har boligen gjennomgående lyse og tidløse fargevalg. Den romslige stuen har store vindusflater og peisovn. Stuen ligger i åpen løsning mot et pent kjøkken fra 2012. Videre har boligen bad, 2 lyse soverom og innredet rom som egner seg som hjemmekontor eller oppbevaring.
Område
Legg til steder som er viktige for deg
På flyttefot? Tenk kjøp og salg samtidig.
Få din egen rådgiver gjennom hele kjøps- og salgsprosessen. Det starter med en verdivurdering.
Unngå doble boligrenter
Vi tilbyr gunstig forsikring.
Vurderer du utleie?
Få et tilbud fra Utleie KrogsveenHva koster lånet?
Sjekk estimert lånekostnadVil du varsles om lignende boliger?
Ved å lagre ditt boligsøk hos oss får du beskjed når vi har en bolig som ligner denne, før den legges ut på markedet!




