Bølersletta 4C
9 700 000 kr
139 m²
3 soverom
Solgt
Bøler / Ulsrud
Attraktivt rekkehus o/3 plan| To herlige uteplasser|Bad+vaskerom||Vedovn|Utebod|Barnevennlig tun|Garasje*|Nær marka
Prisantydning
9 700 000 krAndel fellesgjeld
152 000 krOmkostninger
249 890 krTotalpris
10 101 890 kr
Pris
Bruksareal
144 m²BRA-I (internt bruksareal)
139 m²BRA-E (eksternt bruksareal)
5 m²TBA (terrasse-balkongareal)
28 m²
Areal
Byggeår
1958Soverom
3 soveromBad
1 badType
RekkehusEierform
EierseksjonFasiliteter
Balkong/TerrasseFellesutgifter
5 235 krEnergimerke
Oransje F
Nøkkelinfo
Unngå doble boligrenter
Vi tilbyr gunstig forsikring.
Vurderer du utleie?
Få et tilbud fra Utleie KrogsveenHva koster lånet?
Sjekk estimert lånekostnadDette liker selger best ved boligen
Pent rekkehus over 3 plan. Barnevennlig. Skjermet hage med sol hele dagen. Nær marka. Garasje.
Beskrivelse
Kort om eiendommen
Velkommen til Bølersletta 4C – et pent og oppgradert rekkehus over tre plan, med svært barnevennlig beliggenhet nær både Østmarka og Østensjøvannet!
Verdt å merke seg:
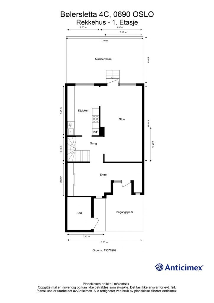
• Skjermet, solrik hage med markterrasse på 28 kvm
• Hovedsakelig nyere vinduer (2015-2024), og terrassedør fra 2023
• Stilrent IKEA-kjøkken fra 2013
• Nye vegg- og takoverflater i 2. etg. 2025
• To stuer - én med vedovn i underetasjen
• Eldre baderom med badekar
• Romslig vaskerom fra 2025
• Tre soverom av god størrelse – alle på samme plan
• Stor entré med gulvvarme og skyvedørsgarderobe
• Mulighet for kjøp av garasje etter avtale med selger
• Svært barnevennlig område – Tyrikollen har tre lekeplasser, én i hvert tun
• Utebod på 5 kvm + uteplass v/inngang
• Kort vei til skole, barnehage, butikker, T-bane og marka
Område
Legg til steder som er viktige for deg
På flyttefot? Tenk kjøp og salg samtidig.
Få din egen rådgiver gjennom hele kjøps- og salgsprosessen. Det starter med en verdivurdering.
Unngå doble boligrenter
Vi tilbyr gunstig forsikring.
Vurderer du utleie?
Få et tilbud fra Utleie KrogsveenHva koster lånet?
Sjekk estimert lånekostnadVil du varsles om lignende boliger?
Ved å lagre ditt boligsøk hos oss får du beskjed når vi har en bolig som ligner denne, før den legges ut på markedet!




