Marcus Thranes gate 16
3 950 000 kr
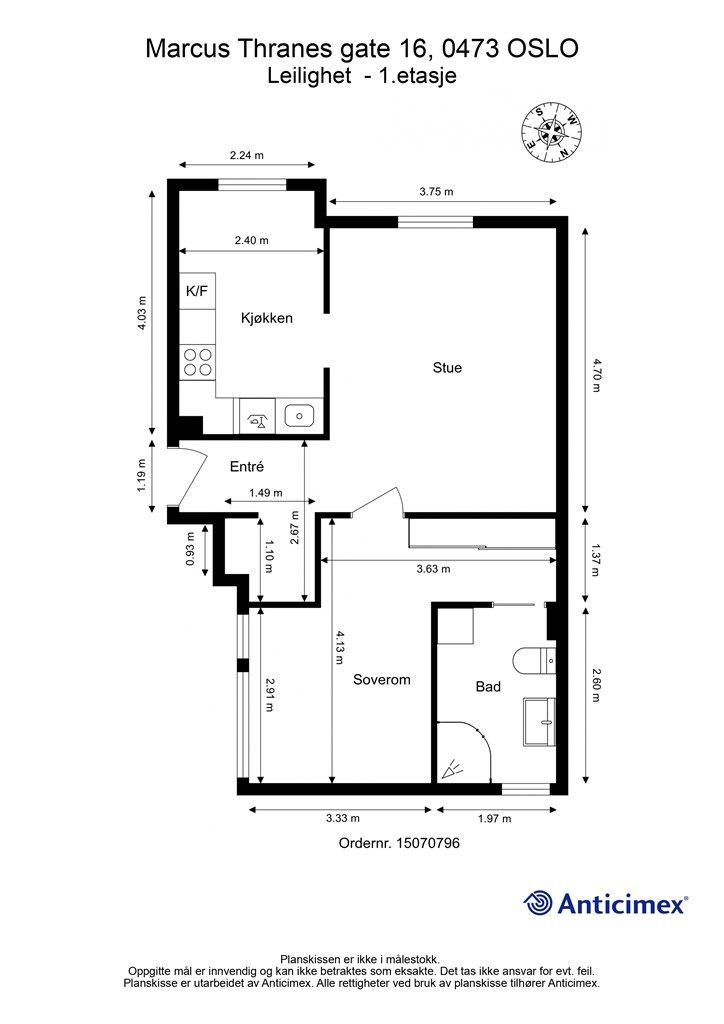
55 m²
1 soverom
Solgt

Torshov
Hyggelig og gjennomgående 2-roms i populært område. Romslig soverom mot rolig bakgård. Stue med peis. Nyere vinduer.
Prisantydning
3 950 000 krAndel fellesgjeld
364 923 krOmkostninger
18 978 krTotalpris
4 333 901 kr
Pris
Bruksareal
66 m²BRA-I (internt bruksareal)
55 m²BRA-E (eksternt bruksareal)
11 m²
Areal
Etasje
1Byggeår
1915Soverom
1 soveromBad
1 badType
AndelsleilighetEierform
AndelFellesutgifter
7 428 kr
Nøkkelinfo
Unngå doble boligrenter
Vi tilbyr gunstig forsikring.
Vurderer du utleie?
Få et tilbud fra Utleie KrogsveenHva koster lånet?
Sjekk estimert lånekostnadBeskrivelse
Kort om eiendommen
Velkommen til Marcus Thranes gate 16 - En lys, romslig og hyggelig andelsleilighet beliggende i klassisk bygård sentralt på nedre Torshov. Leiligheten ble ombygget og påkostet i 2003/2004 inkl. nytt kjøkken og bad. Soverom og kjøkken byttet plass slik at soverommet nå vender mot rolig bakgård.
Kort fortalt:
- Gjennomgående og lys leilighet med god planløsning
- Hyggelig, grønn bakgård
- God takhøyde med ca. 2,8 m i stue, kjøkken og soverom
- Veldrevet borettslag med god vedlikeholdshistorikk
- Nye vinduer i 2018
- To disponible kjellerboder
- Varmtvann og internett inkl. i felleskostnadene
- Peisovn i stuen
- IN-ordning med mulighet for innfrielse av andel fellesgjeld. Fellesutgiftene reduseres da til 4.678,-
- Kort vei til offentlig kommunikasjon, butikker, spisesteder og grøntområde
Område
Legg til steder som er viktige for deg
På flyttefot? Tenk kjøp og salg samtidig.
Få din egen rådgiver gjennom hele kjøps- og salgsprosessen. Det starter med en verdivurdering.
Unngå doble boligrenter
Vi tilbyr gunstig forsikring.
Vurderer du utleie?
Få et tilbud fra Utleie KrogsveenHva koster lånet?
Sjekk estimert lånekostnadVil du varsles om lignende boliger?
Ved å lagre ditt boligsøk hos oss får du beskjed når vi har en bolig som ligner denne, før den legges ut på markedet!

