Ekornkroken 11
4 990 000 kr
187 m²
3 soverom
Solgt

Innholdsrik enebolig over tre plan med integrert garasje | 3 soverom | Romslig uteområde | Barnevennlig boområde |
Prisantydning
4 990 000 krOmkostninger
145 740 krTotalpris
5 135 740 kr
Pris
Bruksareal
199 m²BRA-I (internt bruksareal)
187 m²BRA-E (eksternt bruksareal)
12 m²TBA (terrasse-balkongareal)
116 m²
Areal
Byggeår
1984Soverom
3 soveromBad
1 badTomteareal
687 m² (eiet)Type
Enebolig - FrittliggendeEierform
EietFasiliteter
Garasje/P-plass og Balkong/TerrasseEnergimerke
Gul F
Nøkkelinfo
Unngå doble boligrenter
Vi tilbyr gunstig forsikring.
Vurderer du utleie?
Få et tilbud fra Utleie KrogsveenHva koster lånet?
Sjekk estimert lånekostnadDette liker selger best ved boligen
Rolig beliggenhet innerst i blindvei. Stor bolig med mange rom. Stor flat tomt.
Beskrivelse
Kort om eiendommen
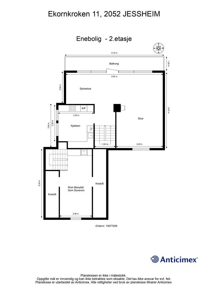
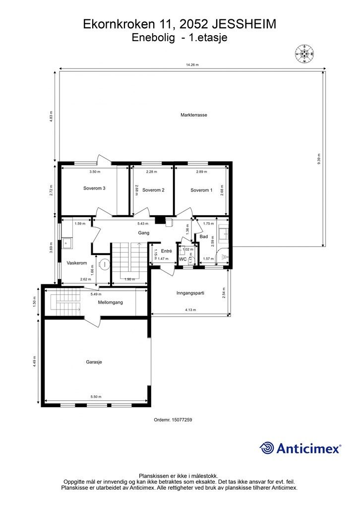
Innholdsrik enebolig over tre plan med integrert garasje. Det er adkomst via flislagt platting og overbygget inngangsparti i første etasje. Boligen består av første etasje med entré, gang, mellomgang, bad, vaskerom, wc-rom, tre soverom og garasje. Andre etasje inneholder stue, spisestue, kjøkken og ett innredet rom som soverom. Tredje etasje/loftsetasje er innredet som loftstue. Innredet soverom over garasje i andre etasje og innredet loftstue er ikke søkt kommunen eller godkjent til varig opphold. Boligen har platting ved inngangspartiet, en stor markterrasse og to balkonger. Det er frittstående redskapsbod i hagen. Boligen trenger oppgraderinger.
Det er ett meget barnevennlig boområde med barnehage i nærhet, og kort vei til barneskole.
Område
Legg til steder som er viktige for deg
På flyttefot? Tenk kjøp og salg samtidig.
Få din egen rådgiver gjennom hele kjøps- og salgsprosessen. Det starter med en verdivurdering.
Unngå doble boligrenter
Vi tilbyr gunstig forsikring.
Vurderer du utleie?
Få et tilbud fra Utleie KrogsveenHva koster lånet?
Sjekk estimert lånekostnadVil du varsles om lignende boliger?
Ved å lagre ditt boligsøk hos oss får du beskjed når vi har en bolig som ligner denne, før den legges ut på markedet!

