Lierstranda 57A
4 150 000 kr
92 m²
2 soverom
Solgt

Lierstranda
Moderne og stilren enebolig - omfattende rehabilitert i 2019. Gulvvarme i alle rom. Platting. Gårdsplass. Sentralt!
Prisantydning
4 150 000 krOmkostninger
124 740 krTotalpris
4 274 740 kr
Pris
Bruksareal
97 m²BRA-I (internt bruksareal)
92 m²BRA-E (eksternt bruksareal)
5 m²TBA (terrasse-balkongareal)
23 m²
Areal
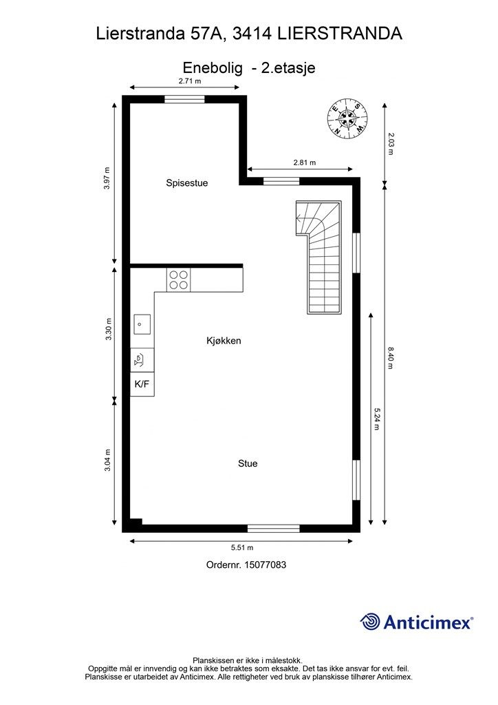
Etasje
2Byggeår
1956Soverom
2 soveromBad
1 badType
Enebolig - FrittliggendeEierform
EierseksjonFasiliteter
Balkong/TerrasseEnergimerke
Rød G
Nøkkelinfo
Unngå doble boligrenter
Vi tilbyr gunstig forsikring.
Vurderer du utleie?
Få et tilbud fra Utleie KrogsveenHva koster lånet?
Sjekk estimert lånekostnadBeskrivelse
Kort om eiendommen
Velkommen til Lierstranda 57A!
En stilren og moderne enebolig som ble omfattende rehabilitert i 2019. Boligen har en praktisk planløsning over to etasjer, med en sosial og åpen sone for stue og kjøkken i andre etasje. Eiendommen ligger sentralt til på Lierstranda, med kort vei til det nye sykehuset, Drammen sentrum, skoler og barnehager. Offentlig transport er lett tilgjengelig, med busstopp i umiddelbar nærhet.
Boligen fremstår som tidsriktig med høy standard. Her får du et moderne kjøkken med integrerte hvitevarer, et delikat flislagt bad fra 2019. Huset har i dag to gode soverom, og et tredje kan enkelt etableres. Gulvvarme i begge etasjer gir en jevn og behagelig komfort. Fra entréen er det utgang til en platting på 23 kvm. Det er parkering på gruset gårdsplass ved boligen.
Område
Legg til steder som er viktige for deg
På flyttefot? Tenk kjøp og salg samtidig.
Få din egen rådgiver gjennom hele kjøps- og salgsprosessen. Det starter med en verdivurdering.
Unngå doble boligrenter
Vi tilbyr gunstig forsikring.
Vurderer du utleie?
Få et tilbud fra Utleie KrogsveenHva koster lånet?
Sjekk estimert lånekostnadVil du varsles om lignende boliger?
Ved å lagre ditt boligsøk hos oss får du beskjed når vi har en bolig som ligner denne, før den legges ut på markedet!

