Bjerkeveien 13
6 200 000 kr
241 m²
8 soverom
Solgt

Bergsåsen
NYHET! Romslig og fin familiebolig med 8 sov - 3 kjøkken - 3 bad - Skjermet og solrik hage med stor terrasse - parkering
Prisantydning
6 200 000 krOmkostninger
175 990 krTotalpris
6 375 990 kr
Pris
Bruksareal
252 m²BRA-I (internt bruksareal)
241 m²BRA-E (eksternt bruksareal)
11 m²TBA (terrasse-balkongareal)
56 m²
Areal
Etasje
2Byggeår
1979Soverom
8 soveromBad
3 badTomteareal
644 m² (eiet)Type
Enebolig med utleiedelEierform
EietFasiliteter
Balkong/TerrasseEnergimerke
Oransje F
Nøkkelinfo
Unngå doble boligrenter
Vi tilbyr gunstig forsikring.
Vurderer du utleie?
Få et tilbud fra Utleie KrogsveenHva koster lånet?
Sjekk estimert lånekostnadBeskrivelse
Kort om eiendommen
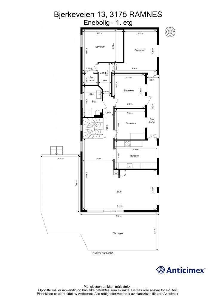
Boligen har en fin planløsning fordelt over et plan, innredet med 4 soverom, bad og kjøkken med en stor stue og kjøkken i delvis åpen løsning, her er det plass til å samle hele storfamilien.
Solfylt terrasse med utgang fra stuen som strekker seg rundt deler av boligen, her sitter du lunt og usjenert til og har plass til å møblere med flere sittegrupper. Direkte adkomst til hagen med plenområde som passer perfekt til lek og moro for store og små.
I boligens 1.etg er det entre og hall for adkomst til hovedplan samt 2 stk leiligheter med totalt 4 soverom. Disse ligger mot syd og nord i boligen. Se mer informasjon i punkt om ferdigattest.
Revetal er et flott sted å bo og her kan man trygt la de håpefulle leke fritt i trygge omgivelser.
Velkommen til visning og velkommen hjem!
Område
Legg til steder som er viktige for deg
På flyttefot? Tenk kjøp og salg samtidig.
Få din egen rådgiver gjennom hele kjøps- og salgsprosessen. Det starter med en verdivurdering.
Unngå doble boligrenter
Vi tilbyr gunstig forsikring.
Vurderer du utleie?
Få et tilbud fra Utleie KrogsveenHva koster lånet?
Sjekk estimert lånekostnadVil du varsles om lignende boliger?
Ved å lagre ditt boligsøk hos oss får du beskjed når vi har en bolig som ligner denne, før den legges ut på markedet!

