Ramsvikvegen 23
2 920 000 kr
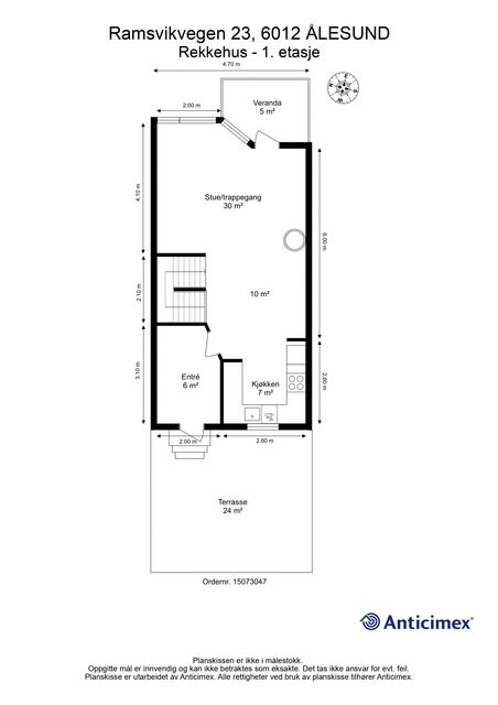
86 m²
2 soverom
Solgt

Ramsvika
Rekkehus i barnevennlig og skjermet område | Terrasser og balkong | Utsikt | Kort veg til sjøen
Prisantydning
2 920 000 krOmkostninger
93 990 krTotalpris
3 013 990 kr
Pris
Bruksareal
86 m²BRA-I (internt bruksareal)
86 m²TBA (terrasse-balkongareal)
38 m²
Areal
Etasje
2Byggeår
2002Soverom
2 soveromBad
1 badTomteareal
113 m² (eiet)Type
RekkehusEierform
EietFasiliteter
Balkong/TerrasseEnergimerke
Rød D
Nøkkelinfo
Unngå doble boligrenter
Vi tilbyr gunstig forsikring.
Vurderer du utleie?
Få et tilbud fra Utleie KrogsveenHva koster lånet?
Sjekk estimert lånekostnadBeskrivelse
Kort om eiendommen
Krogsveen Sunnmøre v/Eiendomsmegler Preben Willmann har gleden av å presentere et flott enderekkehus i populært og attraktivt boligområde i Ramsvika. Boligen går over to plan. Terrasse på 24 kvm og balkong på 5 kvm i 1. etasje samt terrasse på 9 kvm i underetasje. Barnevennelig område med liten trafikkbelastning og meget gode sol og utsiktsforhold.
Boligen ligger cirka 1,5 km fra Flisnes barneskole. Det er litt over 1 km gangavstand til Blindheim ungdomsskole og 1 km til Møre barne- og ungdomskole (privat). Kort avstand til badeplasser i Ramsvika, Eikenosvågen, Skråvika, Stavsetneset og Emblemssanden. Flotte turmuligheter på Emblemsfjellet, med Høkubben og Bjønnalogen som fine mål.
Område
Legg til steder som er viktige for deg
På flyttefot? Tenk kjøp og salg samtidig.
Få din egen rådgiver gjennom hele kjøps- og salgsprosessen. Det starter med en verdivurdering.
Unngå doble boligrenter
Vi tilbyr gunstig forsikring.
Vurderer du utleie?
Få et tilbud fra Utleie KrogsveenHva koster lånet?
Sjekk estimert lånekostnadVil du varsles om lignende boliger?
Ved å lagre ditt boligsøk hos oss får du beskjed når vi har en bolig som ligner denne, før den legges ut på markedet!

