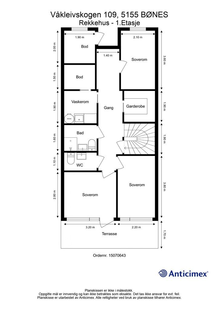
Våkleivskogen 109
5 490 000 kr
118 m²
3 soverom
Solgt

Bønes
VISNING AVLYST! Strøkent rekkehus oppusset 2023-2025 i svært barnevennlig gate. Fast garasjeplass m/lader.
Prisantydning
5 490 000 krOmkostninger
11 040 krTotalpris
5 501 040 kr
Pris
Bruksareal
122 m²BRA-I (internt bruksareal)
118 m²BRA-E (eksternt bruksareal)
4 m²TBA (terrasse-balkongareal)
43 m²
Areal
Etasje
1Byggeår
1983Soverom
3 soveromBad
1 badType
RekkehusEierform
AndelFellesutgifter
5 204 krEnergimerke
Rød F
Nøkkelinfo
Unngå doble boligrenter
Vi tilbyr gunstig forsikring.
Vurderer du utleie?
Få et tilbud fra Utleie KrogsveenHva koster lånet?
Sjekk estimert lånekostnadDette liker selger best ved boligen
Veldig rolig og barnevennlig område, velholdt uteområder og utrolig gode naboer, samt gode bussforbindelser.
Beskrivelse
Kort om eiendommen
Velkommen til Våkleivskogen 109. Et svært lekkert rekkehus på beste Bønes. Her er det stille og rolig, solrikt og lunt. Huset er av god størrelse, det har en fornuftig planløsning og 3 innbydende fine uteplasser med solrike forhold.
Kort fortalt:
- Huset er i perioden 2023- 2025 oppusset i helhetlig stil med moderne overflater
- Fast garasjeplass med el-lader i felles lukket garasjeanlegg.
- Flere uteplasser rundt boligen og fin gressplen/hage.
- Solforhold sommertid fra ca 09-20 (fremsiden) og 14-2130 (baksiden)
- Lekkert kjøkken med integrerte hvitevarer og mye oppbevaringsplass
- Stue og kjøkken er i åpen løsning, men naturlig inndelt i soner
- Downlights i de fleste rom
- Varmekabler i nesten alle rom
- Store flotte romslige soverom
- Separat praktisk vaskerom
- Utvendig sportsbod
Område
Legg til steder som er viktige for deg
På flyttefot? Tenk kjøp og salg samtidig.
Få din egen rådgiver gjennom hele kjøps- og salgsprosessen. Det starter med en verdivurdering.
Unngå doble boligrenter
Vi tilbyr gunstig forsikring.
Vurderer du utleie?
Få et tilbud fra Utleie KrogsveenHva koster lånet?
Sjekk estimert lånekostnadVil du varsles om lignende boliger?
Ved å lagre ditt boligsøk hos oss får du beskjed når vi har en bolig som ligner denne, før den legges ut på markedet!

