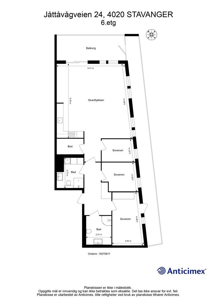
Jåttåvågveien 24
7 450 000 kr
105 m²
3 soverom
Solgt

Presenteres av
Lene Hviding Stor og flott hjørneleilighet i urbane og maritime omgivelser. 3 soverom og 2 bad. Innglasset veranda. Parkering og heis.
Prisantydning
7 450 000 krOmkostninger
197 290 krTotalpris
7 647 290 kr
Pris
Bruksareal
127 m²BRA-I (internt bruksareal)
105 m²BRA-E (eksternt bruksareal)
6 m²TBA (terrasse-balkongareal)
17 m²
Areal
Etasje
6Byggeår
2013Soverom
3 soveromBad
2 badType
EierleilighetEierform
EierseksjonFasiliteter
Garasje/P-plass, Heis og Balkong/TerrasseFellesutgifter
3 591 krEnergimerke
Grønn C
Nøkkelinfo
Unngå doble boligrenter
Vi tilbyr gunstig forsikring.
Vurderer du utleie?
Få et tilbud fra Utleie KrogsveenHva koster lånet?
Sjekk estimert lånekostnadBeskrivelse
Kort om eiendommen
Lene Hviding v/Krogsveen har gleden av å presentere Jåttåvågveien 24. En stor og lekker leilighet i et urbant og maritimt boligområde i Jåttåvågen. Gjennomgående høy standard.
Lys og flott leilighet med bla 3 soverom og 2 bad.
Lekkert kjøkken fra HTH med kjøkkenøy.
Innglasset veranda- en forlengelse av stuen.
To gjestehybler for utleie.
Felles parkering i lukket anlegg med el-billader.
Gratis gjesteparkering i garasjeanlegg mot registrering.
Heis.
Gåavstand til Stadionparken kjøpesenter og alle dens fasiliteter, samt Lyse Arena.
Flotte turområder langs sjø.
Gode tog og bussforbindelser.
Enkel adkomst til E39.
Velkommen til hyggelig visning!
Område
Legg til steder som er viktige for deg
På flyttefot? Tenk kjøp og salg samtidig.
Få din egen rådgiver gjennom hele kjøps- og salgsprosessen. Det starter med en verdivurdering.
Unngå doble boligrenter
Vi tilbyr gunstig forsikring.
Vurderer du utleie?
Få et tilbud fra Utleie KrogsveenHva koster lånet?
Sjekk estimert lånekostnadVil du varsles om lignende boliger?
Ved å lagre ditt boligsøk hos oss får du beskjed når vi har en bolig som ligner denne, før den legges ut på markedet!
På flyttefot? Slik gjør vi det enklere for deg
Skreddersydd flyttepakke
Vi fikser håndverkere, vask, pakking, lagring og transport, og legger ut for utgiftene underveis.
Hjelp med både kjøp og salg
Hos oss har du din egen rådgiver gjennom hele kjøps- og salgsprosessen.
Hjelp til finansiering
Vårt samarbeid med BN Bank sikrer deg rask og løsningsorientert hjelp, til konkurransedyktige betingelser.

