Torvvikveien 59
8 700 000 kr
183 m²
2 soverom
Komplett salgsoppgave

Torvvik
Enebolig flott utsikt, mulighet for alt på én flate, hybel. Dobbel garasje med eget kjøkken/hobbyrom. Flotte utearealer.
Prisantydning
8 700 000 krOmkostninger
238 490 krTotalpris
8 938 490 kr
Pris
Bruksareal
183 m²BRA-I (internt bruksareal)
183 m²TBA (terrasse-balkongareal)
104 m²
Areal
Byggeår
1991Soverom
2 soveromBad
2 badTomteareal
2 212 m² (eiet)Type
Enebolig - FrittliggendeEierform
EietFasiliteter
Garasje/P-plass og Balkong/TerrasseEnergimerke
Oransje E
Nøkkelinfo
Unngå doble boligrenter
Vi tilbyr gunstig forsikring.
Vurderer du utleie?
Få et tilbud fra Utleie KrogsveenHva koster lånet?
Sjekk estimert lånekostnadDette liker selger best ved boligen
Stille rolig område , nærhet til sjø, kyststi , skog og mark . Fantastisk utsikt. Eiendommen oppfatter vi ligger godt i le for vind .
Beskrivelse
Kort om eiendommen
Flott og innholdsrik enebolig med nydelig fjordutsikt, dobbel garasje og en usjenert, svært pent opparbeidet tomt. Boligen har store vindusflater som gir lys, romfølelse og en eksklusiv atmosfære. U.etg byr på ekstra areal til hoveddel, i tillegg en hybel. Løsningen er fleksibel og kan enkelt tilpasses etter behov – enten som en separat hybel eller som en naturlig forlengelse av hoveddelen. Store terrassearealer og et romslig kjøkken/hobbyrom i garasjebygget gir gode soner for både selskapelighet og hobbyliv. Eiendommen ligger idyllisk, landlig og meget barnevennlig til, med kort vei til Nesoddmarkas flotte turmuligheter. Dagligvare finnes ved Kirkekrysset, og Tangen Senter ligger ca. 11 minutter unna. Ca. 9 minutters gange til buss med forbindelse til båt mot Aker brygge og Lysaker.
Innhold og byggemåte
Innhold og byggemåte
Eiendommen
Torvvikveien 59, 1459 NESODDEN
Kommunenummer 3212, gårdsnummer 9, bruksnummer 163, ideell andel 1/1
Innhold
BRA-i:
Enebolig:
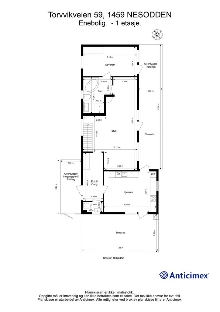
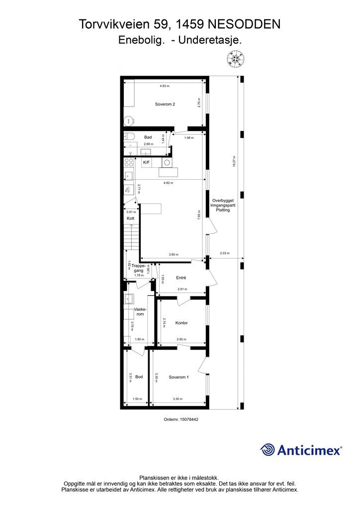
U. etasje 93 kvm: Entré, trappegang, vaskerom, bod, kontor, 2 soverom (1 ikke godkjent til varig opphold)d, bad, kott og stue med åpen kjøkkenløsning
1. etasje 90 kvm: Entré/gang, toalettrom, kjøkken, stue, bad og soverom
Åpent areal:
Enebolig:
U. etasje 39 kvm: Overbygget inngangsparti/platting
1. etasje 65 kvm: Østvendt veranda (27 kvm), sydvendt terrasse (27 kvm) og overbygget inngangsparti/platting (11 kvm)
Platting på bakkeplan har ikke direkte tilknytning til boligen og er derfor ikke medregnet i areal for terrasse og balkongareal (TBA). Gulvflate oppmålt til ca 26 kvm.
Frittstående garasje
Tilliggende dobbelgarasje med hems/oppbevaringsrom, hobbyrom/kjøkken og fyr-rom totalt oppmålt til ca 56 kvm. Det er montert el-bil lader på vestvendt yttervegg på boligen.
Terrassen ved garasje har ikke direkte tilknytning til boligen og er derfor ikke medregnet i areal for terrasse og balkongareal (TBA). Gulvflate oppmålt til ca 19 kvm.
Vedlagte plantegninger er ikke målbare. De oppgitte arealer er hentet fra rapport med befaringsdato 19.01.2026 utført av Anticimex AS v/Lars Petter Ausland. Arealene er beregnet og rom er definert etter dagens faktiske bruk, uavhengig av hva som er godkjent av bygningsmyndighetene.
Det gjøres spesielt oppmerksom på at det er ukjent om det er søkt om/godkjent etablering av utleiedel og innredning av underetasjen i boligen, og det er heller ikke tatt stilling til om dette lar seg gjøre. Det kan derfor ikke verifiseres om etasjen er godkjent til varig opphold. Arealene er medtatt i rapporten etter bruken på befaringsdagen.
Byggemåte
Selger har fått utarbeidet en tilstandsrapport, dvs. en teknisk gjennomgang av boligen hvor eventuelle avvik, risiko for kjøper og prisoverslag for hva som bør gjøres av oppgradering, er skissert. Se særskilt TGIU (tilstandsgrad ikke undersøkt), samt TG2 og TG3 som viser hva som er boligens normale slitasje, alder og type, hva som er avvik fra dette og hva som bør/må utbedres. Rapporten og selgers egenerklæring er en del av salgsoppgaven og må leses nøye før bud inngis. Kjøper overtar ansvaret for de opplysninger som fremkommer av salgsdokumentasjonen, og kan ikke gjøre gjeldende som mangel noe som burde vært kjent eller som ikke kan anses å ha betydning for avtalen.
Eneboligen er iht. tilstandsrapporten oppført i tre og er fundamentert med støpt gulv mot grunn og grunnmur av pussede murkonstruksjoner.
Boligen er oppført i 1991, grunnmuren i midten er sannsynligvis fra tidligere hytte i 1954.
Etasjeskillere av treverk. Yttervegger av trekonstruksjoner utvendig kledd med stående trekledning. Takkonstruksjon av valmtakskonstruksjon utvendig tekket med takshingel. Profilert entrédør og ytterdører med glassfelt. Verandadører og terrassedør med to-lags glass fra ukjent årstall. Vinduer med to-lags glass fra 1990 og ukjent årstall.
Uinnredet kaldtloft med adkomst via takluke i kjøkken 1. etasje.
Tilliggende garasje i pussede lettklinkerblokker. Takkonstruksjon av valmtakskonstruksjon utvendig tekket med takshingel. Elektrisk leddport, belysning og elbil lader. Hems/lagringsplass over garasje. Hobbyrom/kjøkken og fyr-rom.
Les for øvrig mer om byggemåte og den tekniske tilstanden i rapporten.
Det gjøres spesielt oppmerksom på:
TG3 er gitt:
Bad 1. etasje:
- Membran, tettesjikt og overgang til sluk.: Det er i følge eiers opplysninger hull/skader på gulvmembran og det har tidligere vært lekkasje ned til underetasje. Membran er ikke utbedret etter lekkasje. Eier har satt inn dusjkabinett som midlertidig løsning. Konsekvens kan være økt fare for fuktvandring med påfølgende skader i konstruksjonen. Utbedring av eventuelle skader i konstruksjonen og utskifting av tettesjikt må påregnes innen rimelig tid. Sjablongmessig prisanslag gjelder etablering av nytt tettesjikt på gulv.
Sjablonmessig prisanslag: kr 50 000 - 100 000
Uinnredet loft:
- Overflater vegger/undertak: Det er utført fuktmåling med pigg i treverk med egnet instrument (Protimeter MMS), i undertak på loftet. Det ble registrert forhøyede fuktverdier i eldre deler av undertaket på loftet. Målingene viser vektprosent over 20. Fuktskjolder svertesopp observert i tak/undertak. Årsak kan være kondensproblematikk og/eller uttettheter i yttertaktekking Tiltak for å stoppe fukttilførsel må påregnes. Konsekvens kan være risiko for skader i konstruksjonen. Ytterligere undersøkelser for å fastlegge eventuelle tiltak bør påregnes. Sjablongmessig prisanslag gjelder for bytte av yttertaktekking og eventuelle råteskader.
Sjablongmessig prisanslag: kr 100 000 - 200 000
Grunnmur, fundamenter:
- Grunnmur: Det registreres sprekker på grunnmur ved soverom 2 underetasje. Setninger kan ikke utelukkes. Synlige deformasjoner/sprekker i grunnmur er observert, kan skyldes jordtrykk. Konsekvens kan bli ytterligere skader i konstruksjonen hvis videre utvikling skulle oppstå. Årsak og skadeomfang må videre avdekkes. Skade bør utbedres. Sjablongmessig prisanslag gjelder for tetting av sprekker med egnet tettemasse og videre undersøkelser. Ytterligere kostnader må påregnes ved evt større utbedringer.
Sjablongmessig prisanslag: kr 0 - 50 000
TG2 er gitt:
Bad u. etasje:
- Fallforhold (gulv): Nivåforskjell fra døråpning på topp overflate gulv og til hovedsluk er på tilfeldig sted målt til ca 6 mm. Dette er vurdert til å ikke være tilfredsstillende mht lekkasjesikkerhet.
- Membran, tettesjikt og overgang til sluk.: Det er ikke fremlagt dokumentasjon på baderommet. Tettesjiktet har en alder som tilsier at restlevetiden er usikker. Det kan ikke verifiseres om det er benyttet tilstrekkelig tettesjikt på våtrommets gulvflater/veggflater, eventuelt bør nytt tettesjikt etableres.
- Ventilasjon: Avtrekksvifte lager ulyd og bør utbedres.
- Sanitærutstyr / innredning: Det er stedvis registrert svelling/fuktskader på nedre del til skrog på servantskap. Tiltak kan iverksettes ved behov.
Bad 1. etasje:
- Overflater vegger: Vinduets plassering i våtsone er uegnet. Fare for fukt i konstruksjon. Vindu bør skjermes.
- Fallforhold (gulv): Nivåforskjell fra døråpning på topp overflate gulv og til hovedsluk er på tilfeldig sted målt til ca 6 mm. Dette er vurdert til å ikke være tilfredsstillende mht lekkasjesikkerhet.
- Vannrør: Vannrør av kobber er vurdert til å ha en alder som tilsier at anbefalt brukstid er passert. På bakgrunn av alderen er det grunn til å varsle om risiko for skjulte avvik, svekket funksjon, usikker restlevetid eller lignende forhold som utvikles over tid.
- Ventilasjon: Tilluftsspalte ved terskel/dørblad er ikke etablert. Forholdet fører til redusert ventilering av rommet når døren er lukket. Tilluftsspalte bør etableres.
Vaskerom:
- Fallforhold (gulv): Nivåforskjell fra døråpning på topp overflate gulv og til hovedsluk er på tilfeldig sted målt til ca 6 mm. Dette er vurdert til å ikke være tilfredsstillende mht lekkasjesikkerhet.
- Membran, tettesjikt og overgang til sluk.: Det kan ikke verifiseres om det er benyttet tilstrekkelig tettesjikt på våtrommets gulvflater eventuelt bør nytt tettesjikt etableres.
- Vannrør: Vannrør av kobber er vurdert til å ha en alder som tilsier at anbefalt brukstid er passert. På bakgrunn av alderen er det grunn til å varsle om risiko for skjulte avvik, svekket funksjon, usikker restlevetid eller lignende forhold som utvikles over tid.
- Ventilasjon: Tilluftsspalte ved terskel/dørblad er ikke etablert. Forholdet fører til redusert ventilering av rommet når døren er lukket. Tilluftsspalte bør etableres.
Kjøkken u. etasje:
- Overflater vegger: Det er registrert riss i murvegg. Ukjent årsakssammenheng. Krever oppfølging med jevnlig ettersyn.
- Overflater gulv: Det registreres stedvise riper/hakk/merker i gulvets overflatemateriale. Tiltak kan iverksettes ved behov.
- Vannrør: Vannrør av kobber er vurdert til å ha en alder som tilsier at anbefalt brukstid er passert. På bakgrunn av alderen er det grunn til å varsle om risiko for skjulte avvik, svekket funksjon, usikker restlevetid eller lignende forhold som utvikles over tid.
Kjøkken 1. etasje:
- Vannrør: Vannrør av kobber er vurdert til å ha en alder som tilsier at anbefalt brukstid er passert. På bakgrunn av alderen er det grunn til å varsle om risiko for skjulte avvik, svekket funksjon, usikker restlevetid eller lignende forhold som utvikles over tid.
Toalettrom 1. etasje:
- Ventilasjon: Ingen, eller lite ventilasjon av rommet. Forholdet kan medføre økt fuktbelastning og redusert luftkvalitet.
- Vannrør: Vannrør av kobber er vurdert til å ha en alder som tilsier at anbefalt brukstid er passert. På bakgrunn av alderen er det grunn til å varsle om risiko for skjulte avvik, svekket funksjon, usikker restlevetid eller lignende forhold som utvikles over tid.
Øvrige rom 1. etasje:
- Overflater gulv: Det registreres stedvise sprekker mellom gulvbord. Tiltak kan iverksettes ved behov.
- Ventilasjon: Ventilasjonen vurderes til å stedvis ikke være tilfredsstillende. Det er registrert 1 ventil i stue. Konsekvens kan være redusert luftutskiftning. Tiltak kan iverksettes ved behov.
Underetasje:
- Overflater vegger: Det er registrert fuktmerke i nord-vendt hjørne i soverom 2. Det ble med fuktindikasjonsinstrument utført overflatemåling. Det ble ikke registrert forhøyede fuktverdier. Krever oppfølging med jevnlig ettersyn. Det er registrert pussavskalling i syd-vendt hjørnet i soverom 1. Det ble med fuktindikasjonsinstrument utført overflatemåling på pussavskalling, og det ble registrert forhøyede fuktverdier. Årsak kan være kapilærsug fra grunnen og/eller sviktende drenssystem. Det er registrert riss i veggflate på soverom 2. Krever oppfølging med jevnlig ettersyn.
- Overflater gulv: Det registreres stedvise riper/hakk/merker i guvenes overflatemateriale. Tiltak kan iverksettes ved behov.
- Innerdører: Dørblader til innerdører har stedvis kontakt med dørterskel/dørkarm, noe som gjør at dørene henger når den åpnes og lukkes. Justering av dørblad/dørkarm kan vurderes.
Etasjeskiller 1. etasje:
- Skjevhetsmåling: Det er noe merkbare skjevheter i stue. Forskjellen mellom høyeste og laveste punkt på 2,0 meter er målt til 22 mm. Forøvrig ingen merknader i det andre rommet som er målt (kjøkken).
Tekniske anlegg, VVS anlegg (Sjekkpunkter utover det som er inkludert i andre rom):
- Vannrør (Sjekkpunkter utover det som er inkludert i andre rom): Vannrør av kobber er vurdert til å ha en alder som tilsier at anbefalt brukstid er passert. På bakgrunn av alderen er det grunn til å varsle om risiko for skjulte avvik, svekket funksjon, usikker restlevetid eller lignende forhold som utvikles over tid.
- Stakeluke: Stakeluke er ikke lokalisert. Stakeluke må lokaliseres og tilkomst må etableres.
- Varmtvannsbereder (Sjekkpunkter utover det som er inkludert i andre rom): På bakgrunn av berederens alder er det grunn til å varsle om usikker restlevetid eller andre forhold som utvikles over tid. Det kan ikke utelukkes behov for reparasjon/utskiftning. Jevnlig ettersyn anbefales slik at eventuelle tiltak kan iverksettes ved behov. Varmtvannsbereder er plassert i rom uten sluk/overløp eller annen sikring mot fuktskader. Konsekvens kan være at det oppstår fuktskader hvis lekkasje fra varmtvannsbereder skulle oppstå. Tiltak anbefales.
Yttervegger inkl. fasader og konstruksjon:
- Fasader ink. kledning: Det er ikke montert musesperre bak trekledning. Musesperre bør etableres. Panel er stedvis montert for nære terreng, noe som kan medføre økt fuktbelastning på nedre del av panel og påfølgende råteskader. Tiltak bør iverksettes. Det er usikkert om panelet stedvis er montert med lufting. Manglende lufting kan påvirke panelets levetid negativt. Eier opplyser om tidvis svertesopp på panel, noe som kan indikere manglende lufting av ytterkledningen. Ytterligere undersøkelser anbefales for å avdekke om lufting er etablert.
Dører og vinduer:
- Vinduer: Vinduer er av eldre dato og har behov for oppgraderinger/ overflatebehandling. Det må forventes høyere varmetap fra disse vinduene sammenlignet med vinduer fra nyere dato. Til informasjon ble det utført stikkprøvekontroll på enkelte vinduer, hvor åpne/lukkefunksjon fungerte som forventet.
- Dører: Ytterdører i underetasje samt verandadører og terrassedører er av eldre dato og har behov for oppgraderinger/overflatebehandling. Det må forventes høyere varmetap fra disse dørene sammenlignet med dører fra nyere dato. Til informasjon ble det utført stikkprøvekontroll på dører hvor åpne/lukkefunksjon fungerte som forventet.
Yttertak:
- Inspeksjonsmulighet: Deler av taket er ikke fysisk inspisert grunnet is og snø (sikkerhetsmessige forhold). TG 2 er valgt på bakgrunn av at taket kan være utsatt for slitasje, skader eller feil utførelse som ikke registreres grunnet begrenset tilkomst. Yttertaket bør kontrolleres i sin helhet når forholdene ligger til rette.
- Tekking (undertak, lekter og yttertekking): Det er registrert symptomer på elde og slitasje, det anbefales oppfølging med jevnlig ettersyn slik at vedlikeholds- og eventuelle utbedringstiltak kan iverksettes. TG 2 er satt for å belyse skaderisikoen som følge av alder og observert tilstand på loft. Konsekvens kan være økt fare for fuktvandring og råteskader i innvendige konstruksjoner.
- Beslag, renner, nedløp og snøfangere: Det er stedvis registrert slitasje på renner og nedløp. Utskiftning bør påregnes.
- Takgjennomføringer: Fotbeslag rundt skorstein har synlige slitasjesymptomer. Fotbeslag bør fornyes og eventuelle følgeskader utbedres.
- Skorsteiner over tak: Skorsteinen har slitasjesymptomer. Krever oppfølging med jevnlig ettersyn.
Drenering:
- Alder: Dreneringens tilstand og funksjon påvirker boligens innvendige konstruksjoner og bruksområder. Dreneringen er nedgravd og skjult, og tilstanden vurderes derfor i hovedsak ut fra alder. Estimert teknisk levetid for dreneringer ligger mellom 20 - 60 år. På bakgrunn av dreneringens alder er det derfor grunn til å varsle om risiko for svekket funksjon eller lignende forhold som utvikles over tid. Jevnlig ettersyn anbefales slik at nødvendige tiltak kan iverksettes ved behov.
- Terrengfall fra grunnmur: Stedvis lite terrengfall vekk fra grunnmuren. Forholdet kan øke fuktbelastningen på grunnmuren. Tiltak bør iverksettes ved behov.
- Fuktsikring av grunnmur: Det kan ikke verifiseres at grunnmuren har utvendig fuktsperre. Forholdet øker faren for fuktvandring i konstruksjoner under bakkenivå, og bør ses i sammenheng med opplysninger om alderen til dreneringen.
Stikkledninger og tanker:
- Oljetanker: Ingen dokumentasjon som viser materiale, type, alder og om kontroll er foretatt. Ytterligere undersøkelser anbefales. Det er ukjent om det er etablert tilstrekkelig lekkasjesikring for oljetank. TG2 er satt for å belyse risiko.
Frittstående garasje:
- Helhetsvurdering: Det er foretatt en forenklet overordnet vurdering av tilstanden og moderat vedlikehold vurderes være tilstrekkelig. Det er registrert motfall på garasjegulv. Konsekvens er vannansamlinger på gulv. Tiltak bør iverksettes ved behov.
TGIU er gitt:
- Bad u. etg: På grunn av våtrommets utforming og bruk er det ikke praktisk mulig å gjennomføre hulltaking og fuktmåling i de mest fuktutsatte delene av våtsonen, som
erfaringsmessig er områdene der skader forekommer. Hulltaking og fuktmåling i lukkede konstruksjoner er derfor ikke utført. Det ble derimot gjennomført et overflatesøk med fuktindikator, uten at det ble påvist indikasjoner som tyder på fuktskader.
- Vaskerom: På grunn av våtrommets utforming og bruk er det ikke praktisk mulig å gjennomføre hulltaking og fuktmåling i de mest fuktutsatte delene av våtsonen, som
erfaringsmessig er områdene der skader forekommer. Hulltaking og fuktmåling i lukkede konstruksjoner er derfor ikke utført. Det ble derimot gjennomført et overflatesøk med fuktindikator, uten at det ble påvist indikasjoner som tyder på fuktskader.
- Ildsted u. etasje har ikke vært i bruk. Funksjon er ikke testet. Ytterligere undersøkelser anbefales.
- Platting u. etasje er ikke besiktiget grunnet snø.
- Byggegrunn Byggegrunnens beskaffenhet er ukjent
- Fundamenter Fundamenter er naturgitt skjult, og det er for øvrig ingen sikre og dokumenterte opplysninger om type fundamenter som huset har.
Se supplerende tekst i tilstandsrapporten. Kjøper overtar ansvar og risiko for dette.
Moderniseringer og påkostninger
2000:
- Montert dusjkabinett på bad i 1. etasje (egeninnsats)
2023:
- Montert ladestasjon på vegg mot vest (egeninnsats)
- Montert varmepumpe i kjeller (AC senteret)
Standard
Hoveddel:
Entré /gang
Romslig entré/gang med god plass til oppbevaring av klær og sko i stor skyvedørsgarderobe.
Ved adkomsten er det en vestvendt, delvis overbygget platting på ca 11 kvm.
Stue
Lys og innbydende stue med store vinduer mot utsikten. Gulv og vegger er holdt i en lys og nøytral farge som gir deg frihet til å sette ditt personlige preg med møbler og dekorasjoner. Romløsningen åpner for flere innredningsmuligheter og har god plass til både sofagruppe, sittegruppe og ønsket møblement.
Det er utgang fra stuen til østvendt, delvis overbygget veranda på totalt 27 kvm.
Kjøkken
Kjøkkeninnredning fra ukjent årstall med lyse profilerte og glatte fronter. Benkeplater av laminat med nedsenket oppvaskkum av kompositt materiale. Det er montert fliser på vegg over kjøkkenbenk og belysning og stikkontakter under overskap. Det er avsatt plass til hvitevarer som oppvaskmaskin, frittstående komfyr m/steketopp samt frittstående kjøleskap m/frysedel og vanndispenser. Ventilator med mekanisk avtrekk. Det er utgang fra kjøkkenet til østvendt, delvis overbygget veranda på totalt 27 kvm samt en sydvendt terrasse på ca 27 kvm.
Det er kun de hvitevarene som er listet opp som medfølger: Oppvaskmaskin, kombiskap.
Det gjøres oppmerksom på at hvitevarene er kjøpt for noen år tilbake, og kjøper må forvente slitasje som følge alder og normal bruk.
Soverom
Boligen har ett romslig soverom i 1.etg med god plass til dobbeltseng og tilhørende nattbord. Garderobeløsning medfølger.
Kontor samt 1 soverom i u.etg (Soverommet er ikke godkjent/omsøkt til varig opphold).
Bad
Flislagt bad fra ukjent årstall med gulvvarme. Vegghengt baderomsinnredning med profilerte lyse fronter og heldekkende servant med ett-greps armatur. Det er montert speil med belysning og stikkontakt over servant. Dusjkabinett med glassfelt og skyvedør av glass og dusjarmatur tilkoblet hånddusj. Hjørnebadekar/massasjebadekar med ett-greps armatur tilkoblet hånddusj. Avtrekksventil med mekanisk avtrekk montert i vegg.
Toalettrom m/adkomst fra entré
Toalettrom med vegghengt servantinnredning med profilerte lyse fronter og heldekkende servant. Det er montert belysning på vegg. Gulvstående toalett.
Vaskerom
Vaskerom i u. etasje fra ukjent årstall med flislagt gulv. Veggflater med malte murkonstruksjoner og himling belagt med trepanel med lampepunkt. Utslagsvask av rustfritt stål med ett-greps armatur og benkeplate av laminat. Opplegg for vaskemaskin og tørketrommel. Ventilator med mekanisk avtrekk montert i vegg.
Teknisk/VVS
- Vannrør av typen forkrommede rør med stoppeventiler
- Synlige avløpsrør av plast
- Vannrør av typen kobberrør
- Varmtvannsbereder på 287 liter (årstall 1984) montert i soverom 2.
- Utekran montert på øst-vendt yttervegg
- Hovedstoppekran, trykktank og vannmåler montert i fyr-rom i garasje
- Gammelt sentralvarmeanlegg er ikke i bruk og er montert i fyr-rom
- Ventilasjonen i 1 etg. er basert på naturlig ventilasjon med tilluftsventil i vindu i soverom, kombinert med mekanisk avtrekk fra kjøkken og baderom.
- Ventilasjonen i underetasje er basert på naturlig ventilasjon med tilluftsventiler i vinduer og yttervegger, kombinert med mekanisk avtrekk fra kjøkken og baderom.
Vegger: Fliser, malt panel, strietapet, malt mur, teglstein
Gulv: Parkett, malt laminat, gulvbelegg, malt tregulv, vegg-til-vegg tepper, fliser
Himling: Malt strietapet, panel, himlingsplater
Annet fast inventar
- Brannslukningsutstyr
- Brannvarslingsutstyr
- Skyvedørsgarderobe i entré/gang 1. etasje
- Garderobeinnredning i soverom 1. etasje
Hybel:
Entré
Lys og hyggelig entré med plass til oppbevaring av yttertøy og sko.
Ved adkomsten er det en østvendt overbygget platting på ca 39 kvm.
Stue og kjøkken i åpen løsning
Lys og hyggelig stue-/kjøkkenløsning med plass til sittegruppe og spiseplass.
Det er utgang fra stue/kjøkken til frittliggende terrasse på ca 26 kvm.
Peis i stue har ikke vært i bruk og er ikke funksjonstestet.
Kjøkkeninnredning med glatte lyse fronter og benkeplate av laminat med nedsenket oppvaskkum av rustfritt stål. Det er montert glassplater/sprutsikring på vegg over kjøkkenbenk og belysning samt stikkontakter under overskap. Det er avsatt plass til hvitevarer som komfyr m/steketopp, oppvaskmaskin og frittstående kjøleskap m/frysedel. Det er montert stoppekran under oppvaskkum. Ventilator med mekanisk avtrekk.
Det er kun de hvitevarene som er listet opp som medfølger: Oppvaskmaskin og komfyr.
Det gjøres oppmerksom på at hvitevarene er kjøpt for noen år tilbake, og kjøper må forvente slitasje som følge alder og normal bruk.
Romslig soverom med god plass til garderobe.
Bad
Bad fra ukjent årstall med flislagt gulv med gulvvarme. Vegger med malt panel, samt flislagte vegger i dusjsonen og ved speilnisjen. Himling med lysmalt strietapet. Vegghengt servantinnredning med profilerte lyse fronter. og heldekkende servant med ett-greps armatur. Det er speilskap med belysning over servant og stikkontakt på vegg. Opplegg for vaskemaskin.
Løsøre og tilbehør
Vi viser til liste fra Norges Eiendomsmeglerforbund som gjelder fra 01.01.2020 angående løsøre og tilbehør.
Oppvarming
Oppvarming med elektrisitet, varmepumpe og vedfyring i u.etg og 1.etg. Selger opplyser at det har vært røkinntrenging fra peisen i kjelleren. Brannvesenet har kontrollert og det ble ikke, det er ikke blitt fyrt i peisen etter dette.
Gulvvarme i begge bad.
Dersom beboelsesrom ikke har vegg- eller fastmonterte varmekilder ved visning, følger dette heller ikke med.
Det er en glassfiber tank nedgravd bak garasje vegg mot vest, antagelig 2000 liter. Fremstår som tom etter at anlegget sluknet av seg selv i 2010. Anlegget kan i følge selger benyttes med biobrennstoff.
Det er innført forbud mot oppvarming av boliger med fossil olje eller parafin fra 2020. Vi gjør derfor oppmerksom på at det kan komme pålegg for eiendommer med nedgravd oljetank/parafintank om at tanken må fjernes og erstattes med miljøvennlige alternativ, alternativt tømmes/spyles/plomberes.
Kjøper overtar ansvaret og evt. økonomiske følger av dette. For utfyllende informasjon, se www.oljefri.no.
Selger har avtalt Norgespris på strøm på eiendommen fram til 31.12.2026, og denne er pt på 50 øre inkl mva. Nettleie, avgifter og påslag fra kraftleverandøren kommer i tillegg.
Er det fjernvarme vil det også komme kostnader i tillegg.
Denne avtalen vil følge eiendommen i den avtalte perioden.
Les mer om Norgespris her: https://www.regjeringen.no/no/aktuelt/legg-fram-lov-om-norgespris-pa-straum-og-fjernvarme/id3102642/
Sikringsskap
Sikringsskap med automatsikringer er montert i gang.
Sikringsskap er montert i kott i underetasje.
Sikringsskap med automatsikringer og strømmåler montert i garasje.
Dersom beboelsesrom ikke har vegg- eller fastmonterte varmekilder ved visning, følger dette heller ikke med.
Ferdigattest/brukstillatelse
Eiendommen har vært brukt til boligformål siden byggeår 1991.
Kommunen opplyser at det ikke foreligger ferdigattest eller midlertidig brukstillatelse for eiendommen. Det finnes av den grunn ikke dokumentasjon over eiendommens lovlighet. Kjøper overtar eiendommen slik den fremstår på visning med risiko og ansvaret for eventuelle pålegg fra kommunen og kostnader forbundet med dette.
Følgende endringer er utført iht. byggetegninger:
U.etg: Soverommet mot sydøst i u.etg er opprinnelig som bod og er ikke godkjent til varig opphold. Innredning av rommet til bruk for varig opphold er ikke bruksendret/omsøkt og er heller ikke godkjent for denne bruk av kommunen. Konsekvensen ved søknad kan være at rommet ikke godkjennes som varig opphold og at rommet da må brukes som bod/midlertidig oppbevaring. Bod og vaskerom er slått sammen, gjesterom er omgjort til entrè, det er installert kjøkken i peisestuen.
1.etg: Badet er noe utvidet, det er satt opp en vegg mellom entre og stue.
Kjøper overtar alt ansvar, kostnad og risiko for dette videre.
Det gjøres oppmerksom på at det ikke lenger utstedes ferdigattest på tiltak det er søkt om før 1998 jf. plan- og bygningsloven § 21-10. Kommunen vil ikke kreve ferdigattest for disse tiltakene og vil avvise eventuelle søknader. Bestemmelsen innebærer ikke at tiltak med manglende søknad blir lovlige, men at man ikke trenger å avslutte gamle byggesaker. Normalt sett kreves ferdigattest for alle søknadspliktige tiltak som gjøres etter plan- og bygningsloven.
Det foreligger ferdigattest for riving av fritidsbolig datert 22.06.2022, denne er revet.
Tinglyste heftelser og rettigheter
På eiendommen er det tinglyst følgende heftelser:
Tinglyst 08.08.1951 - Dokumentnr: 3203
Gjelder denne registerenheten med flere
Forklaring: Deleforbud. Krav til villamessig bebyggelse, maks 1 våningshus og et uthus. Forbud mot handel- og generende bedrift. Gjerdeplikt.
Tinglyst 04.11.1963 - Dokumentnr: 5447
Bestemmelse om bebyggelse og benyttelse av sommerhus.
Gjelder denne registerenheten med flere
Forklaring: Servitutten antas å ikke lenger ha betydning for eiendommen.
Tinglyst 11.03.1977 - Dokumentnr: 2027
Gjelder denne registerenheten med flere
Forklaring: Krav til å innrette seg etter kommunens pålegg dersom privat VA-anlegg ikke virker. Plikt til å koble seg til off. VA-anlegg når dette blir fremført, og betale tilkoblingsavgift og refusjoner iht. gjeldende regler. Plikt til å dekke sin kostnadsandel ved felles private lag eller kloakklag.
Servitutten antas å ikke lenger ha betydning for eiendommen.
Tinglyst 11.03.2022 - Dokumentnr: 278343
Bestemmelse om fiber-/data-/telekabel
Rettighetshaver: Knr:3212 Gnr:9 Bnr:71
Gjelder denne registerenheten med flere
Forklaring: Rett for bnr. 71 å anlegge oppkjørsel tin sin eiendom iht. vedlagt situasjonskart.
Ved behov gis også rett til å anlegge VA, fiber og telefon.
Servituttene vil følge eiendommen. Kjøpers bank vil få prioritet etter ovennevnte heftelser og servitutter.
Eventuell adgang til utleie
Den del av boligens u. etasje som er innredet som en hybel er lovlig for beboelse, men er ikke godkjent som separat boenhet av kommunen.
Det gjøres oppmerksom på at det er krav til forsvarlige radonnivåer ved utleie. Det er ikke gjennomført radonmåling på denne boligen
Beliggenhet og tomteforhold
Beliggenhet og tomteforhold
Beliggenhet
Eiendommen ligger i et landlig og fredelig boområde på Nesoddens østside, omgitt av natur og med en storslått utsikt over fjorden. Beliggenheten gir en sjelden kombinasjon av ro og nærhet til sjøen – her er det bokstavelig talt slippers-avstand til stranden, kun rundt tre minutters rusletur hjemmefra. Området er svært barnevennlig, med lite trafikk og trygge omgivelser som innbyr til lek og utforskning.
Fra boligen kan blikket hvile på fjorden, og dagene preges av stillhet, fuglesang og et åpent landskap som skifter karakter med årstidene. Samtidig ligger Nesoddmarka like i nærheten, med flotte turmuligheter både sommer og vinter. Her finner du et variert terreng som passer alt fra rolige søndagsturer til mer krevende treningsøkter.
Dette er et sted for deg som ønsker en hverdag tett på naturen, uten å gi avkall på komfort og nærhet til sjø og skog.
Nærmeste dagligvareforretning ligger ved Kirkekrysset. Ca. 11 min. med bil til Tangen Senter med en stor Meny-butikk, vinmonopol og et godt utvalg andre forretninger.
Ca 9 minutters gange til bussholdeplass på Torget. Bussen korrespondere med båt til Aker brygge (ca. 23 min.) og til Lysaker (ca. 8 min). Kun 50 min. reisevei til Oslo med bil.
Adkomst
Ta av ved Nesset og følg fv 156 mot Nesoddtangen. Ta til høyre ned Torvvikveien og følg denne ned mot Torvvik brygge. Eiendommen ligger på høyre side.
Det vil bli skiltet med Krogsveen visningsskilt ved fellesvisninger. Veibeskrivelse Se Google maps - det er enkelt å finne frem i kartet.
Barnehager, skoler og fritid
Barneskole på Jaer og skolebussordning til ungdomsskole på Alværn. Steinerskole på Skoklefall og videregående skole på Berger/Hellvik. Informasjon om tilhørende skolekretser er hentet fra Prognosesenteret som dataleverandør, og tilhørigheten kan årlig endres av kommunen. Dersom skole- og barnehagetilbud er av betydning for kjøpet, ber vi om at det rettes en særskilt henvendelse til kommunen/bydelsadministrasjonen for oppdatert informasjon.
Beskrivelse av tomt
Eiertomt på 2 212 kvm som er opparbeidet med gruslagt innkjørsel, biloppstillingsplasser, tilliggende garasje, terrasser, plattinger, utvendige trapper, gressplen, trær og diverse beplantning.
Parkering
Parkering i frittstående dobbelgarasje. Det er montert el-bil lader på vesvendt yttervegg på boligen.
Garasjen har hems/oppbevaringsrom, hobbyrom/kjøkken og fyr-rom.
Vei, vann og avløp
Eiendommen har adkomst via kommunal vei.
Eiendommen er tilknyttet kommunalt ledningsnett via private stikkledninger. Eier er selv ansvarlig for private stikkledninger til boligen.
Regulerings-og arealplaner
Eiendommen er regulert til boligbebyggelse - frittliggende småhusbebyggelse og midlertidig bygge- og anleggsområde (utgått) i henhold til reguleringsplan Kirkevika-Torvvikveien datert 09.03.2016 med tilhørende reguleringsbestemmelser.
Eiendommen er avsatt til boligbebyggelse, nåværende i kommuneplan for 2022-2046.
Områdeanalyse megler har mottatt viser:
Radon: Eiendommen ligger i et område med høy aktsomhet for radon.
Utsnitt av plan med tilhørende bestemmelser kan fås ved henvendelse til megler.
Økonomi
Økonomi
Kommunale utgifter
Kommunale avgifter er kr 24 359,- for 2025. I dette inngår gebyr for vann, avløp, renovasjon og feiing/tilsyn. Vann og avløp faktureres etter forbruk.
Nåværende eier har et strømforbruk som tilsvarer ca. kr 25 000,-/år.
Boligen har en årlig forsikringspremie på kr 8 300,-.
Velavgift til Torvvik Vel (frivillig) kr 200,-/år.
Boligen er tilknyttet til fiber ca kr. 770,- pr. mnd samt parabol. Tv-tuner/dekoder medfølger.
Utgiftene er basert på nåværende eiers forbruk og avtaler.
Formuesverdi
Formuesverdi for 2024 var kr 1 596 242,- ifølge Skatteetaten. Beløpet forutsetter at eier bor fast i boligen (primærbolig).
Ved eventuell øvrig bruk av eiendommen (f.eks. fritidsbolig, pendlerbolig, utleieobjekt) var formuesverdien for 2023 kr 6 384 967,-.
Fra 2026 har Stortinget vedtatt en oppdatert modell for beregning av formuesverdi for primærbolig, så avvik kan forekomme.
For mer informasjon se skatteetaten.no
Eiendomsskatt
Det er p.t ikke vedtatt eiendomsskatt for eiendommer i kommunen.
Omkostninger
8 700 000,00 Prisantydning
Omkostninger
217 500,00 Dokumentavgift til staten (2,5% av kjøpesum)
19 900,00 Gjensidige Boligkjøperpakke (valgfri)* (valgfritt)
545,00 Tinglysing panterettsdokument
545,00 Tinglysing skjøte
--------------------------------------------------------
218 590,00 Omkostninger totalt (uten Gjensidige Boligkjøperpakke (valgfri))
238 490,00 Omkostninger totalt (med Gjensidige Boligkjøperpakke (valgfri))
--------------------------------------------------------
8 918 590,00 Totalpris inkl. omkostninger
8 938 490,00 Totalpris inkl. omkostninger (med Gjensidige Boligkjøperpakke (valgfri))
--------------------------------------------------------
Totalpris inkl. omkostninger forutsetter kjøp til prisantydning.
Det tas forbehold om endringer i avgifter og gebyrer.
Tilbud om lånefinansiering
Megler formidler gjerne kontakt med rådgiver hos vår samarbeidspartner BN Bank. De har konkurransedyktige betingelser samt rask og løsningsorientert behandling av din lånesøknad. Krogsveen mottar et honorar dersom lån opprettes.
Betalingsbetingelser
Kjøpesum inkludert omkostninger, samt pantedokument tilknyttet eventuelt lån, skal være disponibelt hos megler 2 virkedager før overtagelsen.
Annen viktig informasjon
Annen viktig informasjon
Eier
Pål Roy Skurdal og Gry Skurdal
Konsesjon
Da eiendommen er over 2 mål er den i utgangspunktet underlagt konsesjonslovgivning, og kjøper må ved kontrakt undertegne egenerklæring om konsesjonsfrihet. Denne erklæringen må godkjennes fra kommunen før eiendommen kan overskjøtes til kjøper.
Overtakelse
Etter nærmere avtale.
Boligselgerforsikring
Selger har i forbindelse med salget tegnet boligselgerforsikring levert av Gjensidige.
Boligselgerforsikringen dekker selgers ansvar etter avhendingsloven begrenset oppad til kr 14 millioner. Dersom kjøper oppdager forhold ved eiendommen som hen mener utgjør en mangel ved eiendommen, vil Gjensidige behandle reklamasjonen på vegne av selger. Forsikringsvilkår kan fås ved henvendelse til megler.
Vedlagt salgsoppgaven følger selgers egenerklæringsskjema og tilstandsrapport. Interessenter må sette seg inn i dokumentene før bud inngis.
Boligkjøperforsikring
Innen kontraktsmøtet må kjøper ta stilling til om det ønskes å bestille Boligkjøperpakken gjennom Gjensidige. I denne gunstige pakken er boligen ferdig forsikret og inkluderer rettshjelpsforsikring, også kalt Boligkjøperforsikring. Rettshjelpsforsikring gir trygghet og tilgang på profesjonell juridisk hjelp dersom det oppdages uventede feil eller mangler det første året etter overtagelse. Forsikringsselskapet behandler i så fall ethvert mangelskrav kjøper måtte ha overfor selger.
Boligkjøperpakken inkluderer bygningsforsikring for hus og hytte, innboforsikring, flytteforsikring og dobbel rentedekning - i situasjoner hvor kjøper ikke får solgt nåværende primærbolig.
Kjøper mottar ingen særskilt faktura for Boligkjøperpakken da kostnaden det første året legges til kjøpesummen for boligen. Det gjøres oppmerksom på Krogsveen mottar et honorar for denne formidlingen.
Produktark for Boligkjøperpakken ligger vedlagt i salgsoppgaven.
Dersom ikke boligkjøperpakke ønskes kan kun rettshjelpsforsikring, også kalt boligkjøperforsikring, tegnes særskilt via megler. Rettshjelpsforsikringen varer i 5 år fra overtagelse og leveres gjennom Gjensidige. Ta kontakt med megler for ytterligere informasjon.
Selskap og privatpersoner som driver med kjøp/salg/utvikling som ledd i egen næringsvirksomhet kan ikke tegne boligkjøperpakke eller rettshjelpsforsikring.
Budgivning
Forbrukerinformasjon om budgivning er vedlagt denne salgsoppgaven og er også på vår hjemmeside Krogsveen.no. Alle bud og budforhøyelser må inngis skriftlig. I tillegg må legitimasjon være fremlagt sammen med signatur fra budgiver.
Vi oppfordrer til å gi bud elektronisk via GI BUD-knappen på eiendommens hjemmeside på Krogsveen.no. Da vil samtlige vilkår bli oppfylt.
Eventuelle forhøyelser eller endringer av budet kan bekreftes pr SMS eller på e-post. Vi oppfordrer alltid til å kontakte megler pr. telefon i tillegg da forsinkelser i SMS og e-post kan forekomme.
For at budene skal kunne bli behandlet og videreformidlet skriftlig til alle involverte parter, må alle bud ha en tilstrekkelig lang akseptfrist, jf. eiendomsmeglingsforskriften § 6-3.
Selger må også skriftlig akseptere budet før aksept kan formidles til budgiver. Akseptfrist bør derfor være på minimum 30 minutter, og budforhøyelser må derfor skje i god tid før fristens utløp.
Bud i forbrukerforhold kan uansett ikke settes med kortere frist enn kl. 12.00 første virkedag etter siste annonserte visning. I tillegg kan ikke budet ha forbehold om at det skal holdes hemmelig ovenfor øvrige interessenter. Megler har iht lov om eiendomsmegling ikke anledning til å videreformidle disse budene, og de vil dermed heller ikke bli journalført.
Etter at eiendommen er solgt vil kjøper og selger få tilsendt budjournal. Øvrige budgivere kan få utlevert kopi av budjournalen i anonymisert form.
Hvitvaskingsreglene
I henhold til lov om hvitvasking og terrorfinansiering har megler plikt til å gjennomføre kontrolltiltak overfor kunder, herunder fullmektiger. Dette innebærer bl.a. å bekrefte kunders og reelle rettighetshaveres identitet på bakgrunn av fremvist gyldig legitimasjon eller på annen godkjent måte, samt å innhente opplysninger om kundeforholdets formål og tilsiktede art.
Dersom slike kundetiltak ikke kan gjennomføres, kan megler ikke etablere kundeforholdet eller utføre transaksjonen.
Hvis kjøper ikke bidrar til gjennomføring av kundekontrollen og dette fører til at transaksjonen blir forsinket eller ikke kan gjennomføres, vil dette ansees som mislighold av avtalen og gi selger rettigheter etter avhendingslova kapittel 5. I tilfeller der selger ikke bidrar til gjennomføring av løpende kundekontroll underveis i oppdraget, er det selger som misligholder sine forpliktelser etter avtalen og gi kjøper rettigheter etter avhendingslovens kapittel 4. Partene er selv ansvarlige for eventuelle kostnader og ansvar dette kan medføre. Eiendomsmegleren eller eiendomsmeglingsforetaket kan ikke holdes ansvarlig for de konsekvenser dette vil kunne få for partene eller andre som har interesser i eiendomshandelen.
Kjøper oppfordres til å innbetale kjøpesummen som ikke kommer fra låneinstitusjon i én samlet innbetaling fra egen konto i norsk bank. Megler har plikt til å melde fra til Økokrim om eiendomshandler som fremstår som mistenkelige. Melding sendes Økokrim uten at partene varsles.
Personopplysningsloven
I henhold til personopplysningsloven gjør vi oppmerksom på at interessenter kan bli registrert for videre oppfølging.
Lovanvendelse
Generelle bestemmelser
Salgsoppgaven er basert på de opplysningene selger har gitt til megler, den bygningssakyndiges tilstandsrapport, samt opplysninger innhentet fra kommunen, Kartverket og andre tilgjengelige kilder. Det er viktig at kjøper setter seg grundig inn i alle salgsdokumentene, herunder salgsoppgave, tilstandsrapport og selgers egenerklæring. Kjøper anses kjent med forhold som er tydelig beskrevet i salgsdokumentene, og slike forhold kan ikke påberopes som mangler. Dette gjelder uavhengig av om kjøper har lest dokumentene. Alle interessenter oppfordres til å undersøke eiendommen nøye, gjerne sammen med fagkyndig før bud inngis. Kjøper som velger å kjøpe usett kan ikke gjøre gjeldende som mangel noe han burde blitt kjent med ved undersøkelsen.
Dersom det er behov for avklaringer, anbefaler vi at interessenter rådfører seg med eiendomsmegler eller egne rådgivere før det legges inn bud.
En bolig som har blitt brukt i en viss tid, har vanligvis blitt utsatt for slitasje og skader kan ha oppstått. Slik bruksslitasje må kjøper regne med, og det kan avdekkes enkelte forhold etter overtakelse som nødvendiggjør utbedringer. Normal slitasje og skader som nødvendiggjør utbedring, er innenfor hva kjøper må forvente og vil ikke utgjøre en mangel.
Kjøper og selgers rettigheter og plikter reguleres av avtalen mellom partene, samt informasjonen som har vært tilgjengelig for kjøperen i forbindelse med handelen. Avtalen utfylles av avhendingsloven, og det gjelder ulike avtalevilkår avhengig av om kjøper er forbrukerkjøper eller ikke. Dette er nærmere beskrevet nedenfor.
På grunn av ulike avtalevilkår kan selger vurdere bud fra en som ikke er forbruker, ulikt fra en forbrukers bud. Dersom kjøper ikke er forbruker, er selger sitt mulige mangelsansvar begrenset fordi eiendommen selges "som den er". Selger kan ikke ta «som den er»- forbehold overfor en forbrukerkjøper. Selv et lavere bud fra en som ikke er forbruker kan foretrekkes fordi begrensningen i mulig mangelsansvar kan ha egenverdi for selger. Selger står fritt til å forkaste eller akseptere ethvert bud, og er for eksempel ikke forpliktet til å akseptere høyeste bud.
Budgiver skal i budskjema avgi egenerklæring om budgiver er forbruker eller næringsdrivende/ person som hovedsakelig handler som ledd i næringsvirksomhet. Budgivere får informasjon dersom andre bud er inngitt av en som ikke er forbruker.
Forbrukerkjøp - definisjon
Med forbrukerkjøp menes kjøp av eiendom når kjøperen er en fysisk person som ikke hovedsakelig handler som ledd i næringsvirksomhet.
Forbruker – avtalevilkår
Eiendommen har en mangel dersom den ikke er i samsvar med kravene som følger av avtalen, eller det foreligger brudd på bestemmelsene i avhendingsloven §§ 3-2 til 3-8. Hvis eiendommen ikke er i samsvar med det kjøperen må kunne forvente ut ifra alder, type og synlig tilstand, kan det være grunnlag for mangelskrav. Det samme gjelder hvis det er holdt tilbake eller gitt uriktige opplysninger om eiendommen. Dette gjelder likevel bare dersom man kan gå ut ifra at det virket inn på avtalen at opplysningen ikke ble gitt eller at mangelskravet ikke blir rettet i tide på en tydelig måte.
Boligen kan ha en mangel etter avhendingsloven § 3-3 andre ledd, dersom det er avvik mellom opplyst og faktisk innvendig areal, forutsatt at avviket er på 2% eller mer og minimum 1 kvm.
Ved beregning av et eventuelt prisavslag eller erstatning må kjøper selv dekke tap/kostnader opptil et beløp på kr 10 000 (egenandel).
Ikke-forbruker (næringsdrivende) – definisjon
Hvis kjøper er en juridisk person, eller en fysisk person som hovedsakelig handler som ledd i næringsvirksomhet, vil kjøpet ikke anses som et forbrukerkjøp.
Ikke-forbruker – avtalevilkår
Eiendommen har en mangel dersom den ikke er i samsvar med kravene som følger av avtalen.
Eiendommen selges «som den er», og selgers ansvar utover det konkret avtalte er da begrenset etter avhendingsloven § 3-9, første ledd andre setning.
Avhendingsloven § 3-3 andre ledd fravikes, og hvorvidt boligens arealsvikt utgjør en mangel vurderes etter avhendingsloven § 3-8.
Informasjon om kjøpers undersøkelsesplikt, herunder oppfordringen om å undersøke eiendommen nøye, gjelder også for kjøpere som ikke anses som forbrukere.
Det forutsettes at hjemmel overføres til kjøper. Hvis kjøper ikke ønsker hjemmelsoverføring av eiendommen, må det tas forbehold om dette i budet.
Meglers vederlag
Meglers vederlag betales av selger og er avtalt til:
Vederlag: 0,80 % av salgssummen inkl. eventuell fellesgjeld.
Minimumsprovisjon er kr 60 000,00
Vederlag:
Kontroll av hjemmel og heftelser kr 2 900,00
Markedsføringspakke kr 27 400,00
Oppgjør kr 7 500,00
Tilrettelegging kr 17 000,00
Visninger pr stk / Overtagelse kr 3 500,00
Utlegg:
Innhenting av offentlig opplysninger Nesodden kommune kr 5 175,00
Tinglysing sikring kr 545,00
Andre utgifter:
AX tilstandsrapport enebolig kr 20 625,00
Boligselgerforsikring Gjensidige Eiet - regnes av prisantydning kr 50 248,00
Foto kr 5 000,00
Vi er opptatt av verdiskapning, og har knyttet til oss samarbeidspartnere som skal sikre våre kunder de beste produkter og tjenester;
• I forbindelse med forberedelse av salget, innhenter vi informasjon om eiendommen hovedsakelig fra vår samarbeidspartner Ambita.
• Gjensidige leverer boligselgerforsikring og tilbyr bygningsforsikring
• Boligkjøperforsikring leveres av Hiscox og med Sedgwick som skadebehandler, og er formidlet gjennom Gjensidige.
• BN bank tilbyr finansieringsløsninger
• Vår avdeling Krogsveen Pluss tilbyr flyttetjenester som utvask, visningsvask, lager, tømming og transport av flyttelass, i tillegg til å formidle kontakt med Flip for overflateoppussing.
• I forbindelse med overtagelse av eiendommen tilbyr Overo avtale om strøm, alarm og bredbånd.
• Krogsveen er, sammen med øvrige bransjeaktører, medeier i den digitale annonseringsplattformen Hjem som eies av Bomega AS.
Opplysninger om oppdraget
Oppdragsnummer 51-0069/25
Eiendomsmegler Krogsveen AS, avd. Nesodden
Vestveien 51, Tangen Center, 1452, NESODDTANGEN
950 007 613
Oppdragets KR-kode KR51.2569
Dato
Sist oppdatert: 21. mai 2026 kl. 09:29
Dokumenter
Dokumenter
PDF – 969 KB
PDF – 444 KB
PDF – 167 KB
PDF – 746 KB
PDF – 1 MB
PDF – 505 KB
PDF – 1 MB
PDF – 996 KB
PDF – 3 MB
PDF – 4 MB
PDF – 312 KB
PDF – 29 KB
PDF – 127 KB
PDF – 392 KB
Område
Legg til steder som er viktige for deg
Visning
For å delta på visning, ber vi om at du melder deg på. Da sikrer vi at du får nødvendig informasjon og at det er satt av tilstrekkelig med tid. Kontakt megler dersom annet tidspunkt ønskes. Husk å lese salgsoppgaven før visningen, så du stiller forberedt.
Ønsker du kun å bli holdt orientert, kan du fra eiendommens hjemmeside få varsel om solgtpris, eller kontakte megler.
Lurer du på noe?
Unngå doble boligrenter
Vi tilbyr gunstig forsikring.
Vurderer du utleie?
Få et tilbud fra Utleie KrogsveenHva koster lånet?
Sjekk estimert lånekostnadVil du varsles om lignende boliger?
Ved å lagre ditt boligsøk hos oss får du beskjed når vi har en bolig som ligner denne, før den legges ut på markedet!












































