Valbergheia 26
2 790 000 kr
111 m²
3 soverom
Solgt

Valbergheia
BUD MOTTATT! Enebolig og garasje med alt på en flate - Tre soverom - Sentralt i Tvedestrand - Utestue
Prisantydning
2 790 000 krOmkostninger
90 740 krTotalpris
2 880 740 kr
Pris
Bruksareal
168 m²BRA-I (internt bruksareal)
111 m²BRA-E (eksternt bruksareal)
57 m²TBA (terrasse-balkongareal)
123 m²
Areal
Etasje
1Byggeår
2005Soverom
3 soveromBad
1 badTomteareal
806 m² (eiet)Type
Enebolig - FrittliggendeEierform
EietFasiliteter
Garasje/P-plass og Balkong/TerrasseEnergimerke
Oransje D
Nøkkelinfo
Unngå doble boligrenter
Vi tilbyr gunstig forsikring.
Vurderer du utleie?
Få et tilbud fra Utleie KrogsveenHva koster lånet?
Sjekk estimert lånekostnadBeskrivelse
Kort om eiendommen
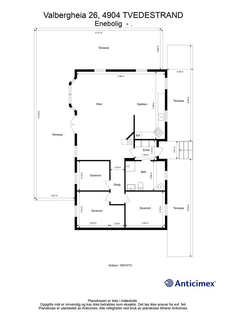
Valbergheia 26 ligger flott og solrikt til i et hyggelig nabolag med kort avstand til sentrum. Sola skinner på eiendommen fra ca. kl. 08-22 midtsommers. Det er ca. 2 km til skole, barnehage og sentrum, samt kortere gangavstand til badeplasser fra eiendommen. Boligen er velholdt med få merknader i tilstandsrapporten. Garasjen har to el-porter, strøm og loft til lagring. Det er kommunal vei forbi huset og asfaltert tun, så her er det lettstelt. Eneboligen inneholder entré, gang, bad/vaskerom, tre soverom, stor stue med åpen løsning til kjøkken. Ved behov er det mulighet for et ekstra soverom ved å bruke en del av stuen. Det er varmekabler i flere rom, samt peisovn i stue.
Det er en stor terrasse med usjenerte uteplasser og utestue for sene høstkvelder.
Område
Legg til steder som er viktige for deg
På flyttefot? Tenk kjøp og salg samtidig.
Få din egen rådgiver gjennom hele kjøps- og salgsprosessen. Det starter med en verdivurdering.
Unngå doble boligrenter
Vi tilbyr gunstig forsikring.
Vurderer du utleie?
Få et tilbud fra Utleie KrogsveenHva koster lånet?
Sjekk estimert lånekostnadVil du varsles om lignende boliger?
Ved å lagre ditt boligsøk hos oss får du beskjed når vi har en bolig som ligner denne, før den legges ut på markedet!

